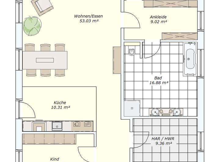
Gut durchdacht und vor allem großzügig ist unser Grundriss-Vorschlag für den Wärmepumpen-Bungalow: Die home-office-Arbeiter werden es schätzen, dass auch für evtl. Besucher noch Platz ist. Und wenn diese zu viel Kaffee intus haben, ist das Gäste-Bad gleich gegenüber (sie müssen ja nicht gleich duschen). Der HWR ist ebenfalls nicht so winzig wie oft schon gesehen; hier passt perspektivisch auch die Technik der Fotovoltaik-Anlage rein!
Damit beim Zähneputzen im Hauptbad kein Ellenbogen-Kontakt zu befürchten ist, wurde auch hier beim Platz etwas großzügiger geplant.
Richtig Platz – und das ist jetzt ganz sicher nicht übertrieben – hat die Familie im Wohn-Ess-Bereich: Bei offener Küche kann hier der Kulinarik-Vortrag (man kann auch Mittagessen sagen) auf 63 qm zelebriert werden! Abgerundet wird das Ganze durch die obligatorische Ankleide neben dem Eltern-Schlafzimmer, damit das Familien-Oberhaupt (er, sie, es) endlich die 42 Paar Schuhe geordnet unterbringen kann. Also, wir meinen, ein bisschen genial ist das ganze Haus schon, oder?
Bungalow m. Luft-Wasser-Wärmepumpe, FBH, Tondachziegel, Grundriss veränderbar usw., Preis inkl. Grd.
04654 Frohburg
Die vollständige Adresse der Immobilie erhalten Sie vom Anbieter.
Auf Karte anzeigen
Die vollständige Adresse der Immobilie erhalten Sie vom Anbieter.
Finanzierungszertifikat
In nur zwei Minuten zu Ihrem persönlichen Finanzierungszertifkat.
Infos
| Haustyp | Bungalow |
|---|---|
| Etagenzahl | 1 |
| Wohnfläche ca. | 143 m2 |
| Grundstücksfläche | 560 m2 |
| Bezugsfrei ab | nach Vereinbarung |
| Zimmer | 4 |
| Schlafzimmer | 3 |
| Badezimmer | 1 |
Kosten
| Kaufpreis |
416.750 € |
|---|---|
| Provision | Nein |
Finanzierungsrechner:
Kaufpreis:
600.000 €
Eigenkapital:
600.000 €
Monatliche Rate
0 €
Effektiver Jahreszins
0 %
Sollzinsbindung
10 Jahre
Bausubstanz & Energieausweis
| Bauphase | Haus in Planung (projektiert) |
|---|---|
| Objektzustand | Erstbezug |
| Qualität der Austattung | Gehoben |
| Heizungsart | Wärmepumpe |
| Wesentliche Energieträger | Umweltwärme |
Beschreibung des Objekts
Ausstattung
Im Grundpreis enthalten sind u.a.:
• Bau-Antrag inkl. Wärmeschutznachweis nach GEG, Wfl.-Berechnung, Kubatur
• Blower-Door-Test
• Schnurgerüst, Baustellen-WC, Entsorgung Bauschutt
• Bodenplatte Stahlbeton nach Statik inkl. Kies-/Schotter-Schicht 20 cm
• Keller (nur wenn vertraglich vereinbart)
• Außenwände / tragende Innenwände Porenbeton; nichttragende Wände Trockenbau (doppelte Beplankung für besseren Schallschutz)
• Stahlbeton-Geschossdecke
• Gerüst
• Sparren und Pfetten aus Konstruktionsvollholz bei Satteldächern
• Nagelplattenbinderdach bei Walmdächern
• Dachrinnen, Bleche und Fallrohre etc. in Titanzink
• Dacheindeckung = Falzziegel aus Ton
• Kunststofffenster weiß
• Fensterbänke außen Aluminium / innen Agglomarmor
• Rollläden mit Gurt und Gurtwickler
• Haustür Kunststoff weiß mit Automatik-Verriegelung 3-fach
• Grundputz außen farbig (ca. 500 Pastell-Töne) / Sockelputz 30 cm
• Wandfeinputz innen als Gipsputz, Qualität Q2
• Luft-Wasser-Wärmepumpe mit integriertem Warmwasserspeicher
• Fußbodenheizung in allen Wohnräumen
• Zementestrich auf Trittschall- und Wärmedämmung
• umfangreiche Sanitär-Ausstattung, u.a. bodengleiche Dusche 90x90 cm
• solide Elektro-Ausstattung, z.B. Schalter + Steckdosen von Busch-Jäger
• Gartenwasser-Anschluss
• Massivholztreppe Buche (nicht bei Bungalow)
• Innentüren nach Musterkollektion
Lage
Frohburg liegt etwa in der Mitte zwischen Leipzig und Chemnitz, ca. 35 km südlich von Leipzig und 10 km südlich von Borna. Durch Frohburg verläuft die Staatsstraße 51 (ehemalige Bundesstraße 95). Südlich von Frohburg kreuzen sich die Bundesstraße 7 und die Staatsstraße 51. Im aktuellen Bundesverkehrswegeplan ist ein Neubau der Bundesstraße 7von Altenburg über Benndorfer Flur direkt zu einer neuen Autobahnanschlussstelle "Frohburg" an der Autobahn 72 in der Nähe von Bubendorf enthalten. Auch die Bahnstrecke (Leipzig-) Neukieritzsch-Chemnitz führt durch die Stadt. Zirka 5 km östlich der Stadt Frohburg verläuft die Bundesautobahn 72, über die AS Geithain bzw. Borna Süd ist die Stadt von Süden bzw. Norden erreichbar. Durch den Ortsteil Flößberg führt die Bundesstraße 176, durch die Ortsteile Hopfgarten und Tautenhain die Bahnstrecke Leipzig–Geithain mit je einem Haltepunkt. Der Bahnhof Frohburg liegt an der S-Bahn-Linie 6 der S-Bahn Mitteldeutschland.
Sonstige Angaben
Gern stellen wir Ihnen in einem persönlichen Gespräch weitere Bauplätze und alternative Hausplanungen auch an anderen Standorten vor. Über 2 Termin-Vorschläge (einer passt dann sicher auch bei uns) freuen wir uns!
Bitte haben Sie Verständnis, dass wir Anfragen nur bei vollständigen Angaben (mind. Name, Tel.-Nr., Mail-Adresse) bearbeiten können. Ohne den direkten Dialog können wir auch keine Grundstückskontakte weiterleiten. Ihre an uns übermittelten Angaben unterliegen dem Datenschutz und werden ausschließlich im Unternehmen gespeichert.
Weitere Dokumente
weitere GrundstückeGrundriss
Grundriss Vorschlag
>
>
Adresse
04654 Frohburg
Interessante Orte
Preis- und Lageinformationen
Preistrend für Bestandsimmobilien in Frohburg