Das Haus wird mit bestehendem Mietverhältnis angeboten und eignet sich besonders für Käufer mit mittelfristiger Eigennutzungsplanung. Eigenbedarfskündigung durch den neuen Eigentümer nach §573 BGB möglich. Mietdauer aktuell ca. 3 Jahre, gesetzliche Mindestkündigungsfrist: 3 Monate. Die Mieter sind informiert und wurden in die Verkaufsvorbereitung einbezogen.
* Neue Fenster
*Komplette Außendämmung
*Neue Elektroinstallation, vorbereitet für zukünftige Solaranlagen. Anschlüsse für verschiedene Internetanbieter vorhanden.
*Neue Wasser- und Abwasserleitungen, renovierte Badezimmer.
*8 Zimmer auf 3 Wohnetagen.
*Voll ausbaufähiger Keller.
*Flexible Raumaufteilung mit weitgehend separaten Etagen.
Erdgeschoss:
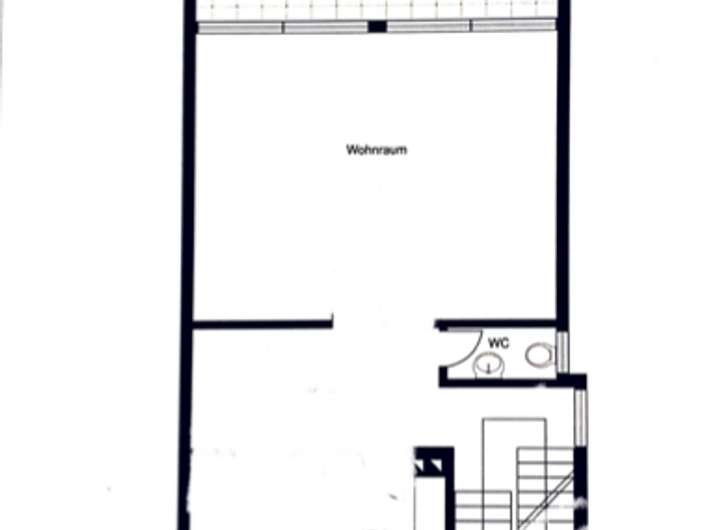
Offene Küche mit Essbereich, helles Wohnzimmer mit bodentiefen Fenstern, Zugang zur Westterrasse, Gäste-WC, Garten mit Apfelbaum und Gemüsebeet.
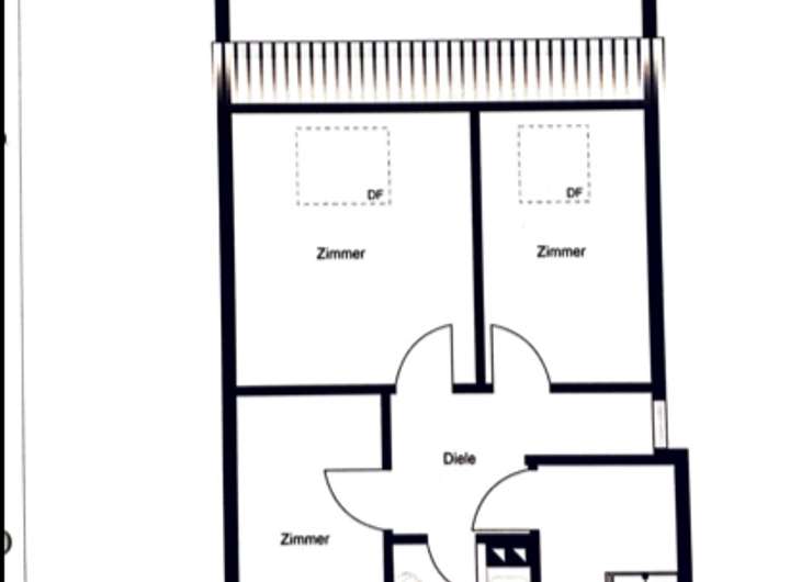
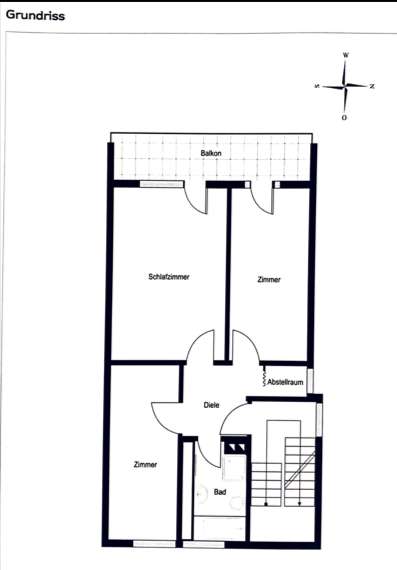
Obergeschoss:
Drei Schlafzimmer, ein Badezimmer mit Badewanne.
Ausgebautes Dachgeschoss: Drei Zimmer, Badezimmer mit Badewanne (vorinstallierte Küchenzeilenanschlüsse), separater Stromzähler – ideal als Einliegerwohnung, Homeoffice oder separate Wohneinheit. Derzeit als Kinderzimmer genutzt.
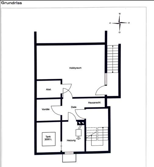
Keller: Großer Hobby-/Partyraum mit maßgefertigter bayerischer Bar, Waschküche/Hauswirtschaftsraum, Abstellraum, separater Seiteneingang, 3.000-Liter-Öltank.
Provisionsfrei - Dortelweil - Doppelhaushälfte mit Garten, ideal für Eigennutzer
61118 Bad Vilbel
Die vollständige Adresse der Immobilie erhalten Sie vom Anbieter.
Auf Karte anzeigen
Die vollständige Adresse der Immobilie erhalten Sie vom Anbieter.
Finanzierungszertifikat
In nur zwei Minuten zu Ihrem persönlichen Finanzierungszertifkat.
Infos
| Haustyp | Doppelhaushaelfte |
|---|---|
| Etagenzahl | 4 |
| Wohnfläche ca. | 178 m2 |
| Nutzfläche | 52 m2 |
| Grundstücksfläche | 453 m2 |
| Zimmer | 7 |
| Schlafzimmer | 6 |
| Badezimmer | 2 |
Kosten
| Kaufpreis |
965.000 € |
|---|---|
| Provision | Nein |
Finanzierungsrechner:
Kaufpreis:
600.000 €
Eigenkapital:
600.000 €
Monatliche Rate
0 €
Effektiver Jahreszins
0 %
Sollzinsbindung
10 Jahre
Bausubstanz & Energieausweis
| Baujahr | 1968 |
|---|---|
| Letzte Sanierung | 2021 |
| Objektzustand | Saniert |
| Qualität der Austattung | Gehoben |
| Heizungsart | Öl-Heizung |
| Wesentliche Energieträger | Öl |
| Energieausweis | liegt vor |
Beschreibung des Objekts
Ausstattung
*. Voll ausgestattete Küche
* Partyraum mit maßgefertigter bayerischer Bar und Tish garniture.
Lage
Ruhige Wohngegend in grüner Umgebung mit einem gemeinschaftlichen Gemüsegarten vor dem Haus.
S-Bahnhof S6 fußläufig erreichbar (35 min. Frankfurt Hbh)
Direkter Anschluss an die Autobahn A66
Europäische Schule RheinMain ca. 10 Minuten zu Fuß
Golfplatz 5 Gehminuten entfernt, Sportanlagen, Geschäfte, Schulen und eine ausgezeichnete Arztpraxis gleich um die Ecke.
Der Biomarkt Dotenfelderhof ist mit dem Fahrrad erreichbar.
Grundriss
Basement
>
>
kitchendortelweil
>
>
2nd floor
>
>
3 Floor
>
>
Adresse
61118 Bad Vilbel
Interessante Orte
Preis- und Lageinformationen
Preistrend für Bestandsimmobilien in Bad Vilbel