Dieses Einfamilienhaus mit 10 Zimmern und ca. 300 m² Wohnfläche befindet sich auf einem ca. 763 m² großen Grundstück in Wolfsburg-Kästorf. Das Haus wurde zuletzt im Jahr 2025 teilweise renoviert und bietet eine normale Innenausstattung. Es verfügt über 4 Badezimmer (2 WC+Dusche und 2 WC+Wanne). Zwei Carports sind vorhanden. Das Haus ist ab dem 19.01.2026 verfügbar und eignet sich ideal für Familien, die viel Platz und eine ruhige Umgebung suchen. Die Sommerresidenz ist praktisch nutzbar.
Haus, das als Einfamilienhaus mit Einliegerwohnung oder Mehrfamilienhaus genutzt werden kann
Zu dem Balken 43,
38448 Wolfsburg
Auf Karte anzeigen
Finanzierungszertifikat
In nur zwei Minuten zu Ihrem persönlichen Finanzierungszertifkat.
Infos
| Haustyp | Mehrfamilienhaus |
|---|---|
| Etagenzahl | 2 |
| Wohnfläche ca. | 300 m2 |
| Nutzfläche | 50 m2 |
| Grundstücksfläche | 763 m2 |
| Bezugsfrei ab | 19.1.2026 |
| Zimmer | 10 |
| Schlafzimmer | 8 |
| Badezimmer | 4 |
| Garage/Stellplatz | Carport |
| Anzahl Garage/Stellplatz | 2 |
Kosten
| Kaufpreis |
599.999 € |
|---|---|
| Preis für Garage/Stellplatz | 25.000 € |
| Provision | Nein |
Finanzierungsrechner:
Kaufpreis:
600.000 €
Eigenkapital:
600.000 €
Monatliche Rate
0 €
Effektiver Jahreszins
0 %
Sollzinsbindung
10 Jahre
Bausubstanz & Energieausweis
| Baujahr | 2005 |
|---|---|
| Letzte Sanierung | 2025 |
| Bauphase | Haus fertig gestellt |
| Objektzustand | Gepflegt |
| Qualität der Austattung | Normal |
| Heizungsart | Fernwärme |
| Wesentliche Energieträger | Fernwärme |
| Energieausweis | liegt vor |
Beschreibung des Objekts
Lage
Kästorf ist ein ruhiger und familienfreundlicher Stadtteil von Wolfsburg mit moderater Bevölkerungsdichte. Die öffentliche Verkehrsanbindung ist gut, mit den Buslinien 170 und 202 die regelmäßig verkehren. Der Stadtteil ist geprägt von Einfamilienhäusern. Grüne Parks und Spielplätze bieten zudem viel Raum für Kinder. Einkaufsmöglichkeiten (große ALdi, Getränkemarkt, usw.), IT-City, VW Nord Tor und Kindergarten sind 400 m entfernt.
Weitere Dokumente
FlurkarteAnsicht aus 4 Richtungen
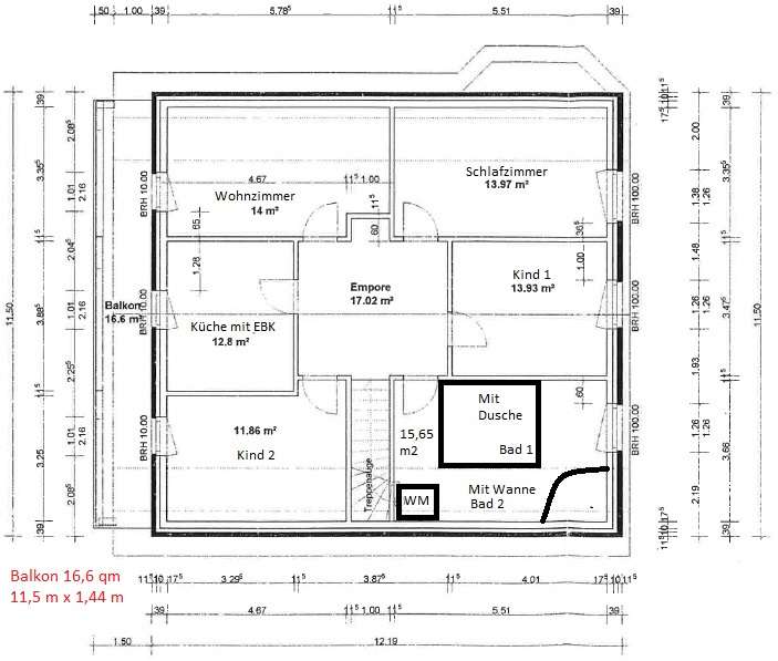
Grundriss
Grundriss OG mit 17 qm Balkon
>
>
Grundriss EG
>
>
Adresse
Zu dem Balken 43, 38448 Wolfsburg
Interessante Orte
Preis- und Lageinformationen
Preistrend für Bestandsimmobilien in Kästorf