Die hier angebotene Immobilie ist ein echtes Platzwunder und die perfekte Symbiose aus historischem Fachwerkflair und modernem Wohnstandard. Das ursprünglich um 1700 errichtete Haupthaus wurde in den 90er Jahren um einen Anbau mit zwei großen Terrassen erweitert.
Im Erdgeschoss gelangen Sie über die Diele und das Treppenhaus, das das gesamte Gebäude zentral erschließt unter anderem zu dem außergewöhnlich großen Wohn- / Essbereich, der viel Platz und somit Gestaltungsmöglichkeiten bietet. Ergänzt wird dieser Bereich durch eine große Terrasse mit Blick ins Grüne. Neben dem Wohnbereich befindet sich auch die Küche mit anschließender Speisekammer sowie ein Duschbad und ein kleines Gäste-WC im Eingangsbereich des Hauses. Auch ein großes Schlafzimmer befindet sich auf dieser Ebene.
Im ersten Obergeschoss empfängt Sie eine recht großzügige Diele, von der aus alle Räume auf dieser Etage zu begehen sind. Es stehen drei große Schlafzimmer und ein kleinerer Raum zur Verfügung. Auch ein großes Badezimmer mit Badewanne und Dusche befindet sich im ersten Obergeschoss. Highlight hier ist der kleine zusätzliche Balkon, der aktuell über das Badezimmer zu erreichen ist.
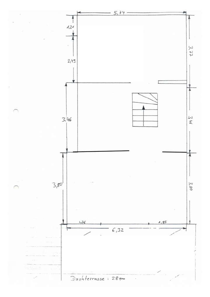
Weiter über das Treppenhaus gelangen Sie in das Dachgeschoss des Hauses. Dieses wurde zu vollwertigem Wohnraum ausgebaut und bietet zwei große Zimmer, wovon eines über direkten Zugang zur großen Dachterrasse verfügt. Auf die Dachterrasse gelangen Sie auch über eine zusätzliche Außen-Wendeltreppe vom Erdgeschoss aus. Eine weitere Schlafebene könnte zusätzlich im Dachraum realisiert werden.
Das Untergeschoss ist in zwei Bereiche aufgeteilt. Innenliegend gelangen Sie zu einem großen Kellerraum, der sich als Vorratsraum anbietet. Über einen separaten Zugang im Außenbereich gelangen Sie in den hinteren Bereich des Kellers, in dem sich neben mehreren Vorratsräumen auch die Heiztechnik befindet.
Abgerundet wird dieses Angebot durch den direkt vorm Haus befindlichen PKW-Stellplatz.
PLATZWUNDER: Charmantes Haus in naturnaher Lage von Friedrichsdorf
61381 Friedrichsdorf
Die vollständige Adresse der Immobilie erhalten Sie vom Anbieter.
Auf Karte anzeigen
Die vollständige Adresse der Immobilie erhalten Sie vom Anbieter.
Finanzierungszertifikat
In nur zwei Minuten zu Ihrem persönlichen Finanzierungszertifkat.
Infos
| Haustyp | Einfamilienhaus |
|---|---|
| Etagenzahl | 3 |
| Wohnfläche ca. | 231 m2 |
| Grundstücksfläche | 319 m2 |
| Zimmer | 8 |
| Schlafzimmer | 7 |
| Badezimmer | 2 |
| Garage/Stellplatz | Außenstellplatz |
| Anzahl Garage/Stellplatz | 1 |
Kosten
| Kaufpreis |
450.000 € |
|---|---|
| Provision |
3,57% inkl. MwSt. |
Finanzierungsrechner:
Kaufpreis:
600.000 €
Eigenkapital:
600.000 €
Monatliche Rate
0 €
Effektiver Jahreszins
0 %
Sollzinsbindung
10 Jahre
Bausubstanz & Energieausweis
| Letzte Sanierung | 2017 |
|---|---|
| Objektzustand | Gepflegt |
| Heizungsart | Zentralheizung |
| Wesentliche Energieträger | Gas |
| Energieausweis | liegt vor |
| Energieausweistyp | Bedarfsausweis |
| Energieverbrauchskennwert | 183,2 kWh/(m²*a) |
| Energieeffizienzklasse | F |
183,2
kWh/(m²*a)
Energieeffizienzklasse F
- A+
- A
- B
- C
- D
- E
- F
- G
- H
- 0
- 25
- 50
- 75
- 100
- 125
- 150
- 175
- 200
- 225
- >250
Beschreibung des Objekts
Ausstattung
- Heizung von 2017
- doppelt isolierverglaste Fenster
- 2 Bäder + 1 Gäste-WC
- Rollläden (teilweise elektrisch)
- Dachboden ausgebaut
- 2 Balkone / Terrassen
- 1 Stellplatz
- teilweise Dielenböden
- Küche mit EBK
- Dach gedämmt
- Kellerdecke teilweise gedämmt
Lage
Das Haus befindet sich in einer ruhigen Wohngegend mitten in der Altstadt des Stadtteils Burgholzhausen. Burgholzhausen selbst ist über eine fußläufig entfernte Bushaltestelle an Friedrichsdorf und von dort über die S-Bahn-Strecke an den öffentlichen Personennahverkehr nach Frankfurt angebunden. Darüber hinaus besteht ein eigener Bahnanschluss im Stadtteil selbst an die Regionalbahn des Rhein-Main-Verkehrsverbundes nach Friedberg. Neben einzelnen Geschäften des täglichen Bedarfs wird die Infrastruktur in Burgholzhausen auch durch eine eigene Grundschule mit breit aufgestelltem Angebot ergänzt.
Friedrichsdorf selbst ist eine charmante Stadt im Hochtaunuskreis, bekannt für ihre historische Altstadt mit Fachwerkhäusern und ihrem kulturellen Angebot. Die Stadt bietet zahlreiche Einkaufsmöglichkeiten, Restaurants und Freizeitaktivitäten und ist durch die gute Anbindung auch für Pendler attraktiv. Die Nähe zum Taunus und dem Naturpark Hochtaunus sorgt zudem für eine hohe Lebensqualität.
Die Region um Friedrichsdorf besticht vor allem durch ihre landschaftliche Vielfalt und ihre Nähe zur Natur. Mit zahlreichen Wanderwegen, Radstrecken und Naturschutzgebieten bietet die Umgebung viele Möglichkeiten für Outdoor-Aktivitäten. Zudem sind die Städte im Hochtaunuskreis für ihre hohe Lebensqualität und gut ausgebaute Infrastruktur bekannt. Durch die gute Anbindung an Frankfurt am Main und die Nähe zum Flughafen ist die Region auch wirtschaftlich attraktiv und gilt als beliebter Wohnort für Familien und Berufstätige.
Sonstige Angaben
Das Haus befindet sich auf einem nach WEG-geteilten Grundstück zusammen mit zwei weiteren Gebäuden (Altstadtbebauung). Die angegebene Grundstücksfläche bezieht sich daher nicht auf ein reell geteiltes Grundstück sondern auf einen einen Miteigentumsanteil von 280/1000 von insgesamt 1.139 qm Grundstücksfläche.
Alle Angaben zum Objekt basieren auf uns erteilten Informationen und können trotz sorgfältiger Prüfung fehlerhaft sein. Daher ist jegliche Haftung ausgeschlossen und Irrtum vorbehalten.
Grundriss
Grundriss EG + KG
>
>
Grundriss OG
>
>
Grundriss DG
>
>
Adresse
61381 Friedrichsdorf
Interessante Orte
Preis- und Lageinformationen
Preistrend für Bestandsimmobilien in Friedrichsdorf