Bei dem angebotenen Objekt handelt es sich um ein Architekten-Mehrfamilienhaus mit fünf Wohneinheiten in gefragter Lage im Bezirk Eimsbüttel. Das Gebäude wurde in massiver Bauweise errichtet. Das Grundstück umfasst großzügige 1.394 qm und bietet im rückwärtigen Bereich einen großen Garten, der allen Mietern zur Verfügung steht. Die Gesamtwohnfläche beträgt ca. 455 qm.
Die Wohneinheiten gliedern sich wie folgt:
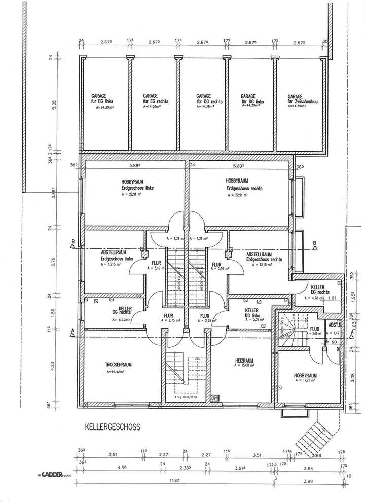
•WE 1: EG Maisonette-Wohnung links: 2 Zimmer plus Hobbyraum und Kellerraum
Wohnfläche ca. 110 qm
•WE 2: EG Maisonette-Wohnung rechts: 2 Zimmer plus Hobbyraum und Kellerraum
Wohnfläche ca. 110 qm
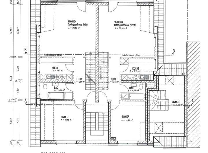
•WE 3: DG Maisonette-Wohnung links: 3 Zimmer plus Kellerraum
Wohnfläche ca. 98 qm
•WE 4: DG Maisonette-Wohnung rechts: 3 Zimmer plus Kellerraum
Wohnfläche ca. 96 qm
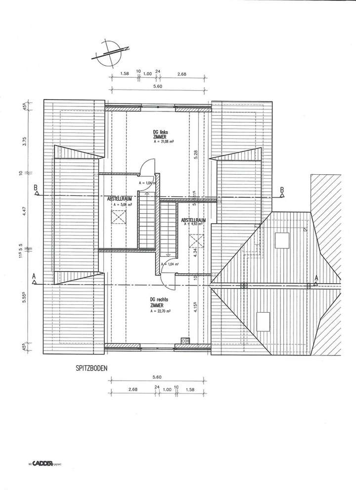
•WE 5: Zwischenbau: 1 Zimmer plus Hobbyraum
Wohnfläche ca. 41 qm
Alle Wohneinheiten sind mit funktionalen Einbauküchen und Vollbädern ausgestattet.
In allen Maisonette-Wohnungen ist der Bereich zwischen Wohnen und Kochen mit einer hochwertigen Fachwerkwand und einem Esstresen räumlich unterteilt. Der Wohn- und Kochbereich, der Flur und die Bäder sind gefliest. Die Wohnungen sind mit einem Vollbad mit Dusche ausgestattet. Von der Terrasse (EG Maisonette Wohnungen) und vom Balkon (DG Maisonette Wohnungen) lässt sich der unverbaute Blick in den grünen Garten genießen. Die Balkone sind jeweils mit Markisen ausgestattet.
Die Wohnung zum Zwischenbau ist über einen separaten Eingang erreichbar.
Allen Mietparteien steht der Wäsche- und Trockenkeller zur Verfügung. Sowohl eine Waschmaschine als auch ein Trockner (jeweils mit Münzeinwurf) sind vorhanden.
Der gemeinschaftliche Garten lädt zum Entspannen und Verweilen ein. Der gepflasterte Grillplatz mit Grillkamin kann von allen Mietparteien genutzt werden. Ein großzügiger Fahrradschuppen sowie ein zusätzlicher Schuppen für Gartengeräte sind ebenfalls vorhanden.
Zu der Anlage gehören fünf Garagen, die an die Mietparteien vermietet sind.
Alle Wohneinheiten und Garagen sind vermietet. Die Ist-Miete entspricht der Soll-Miete von 55.440 € p.a. (Kalt-Miete aller Wohnungen mit Garagenmiete). Die Mietpreise der Wohnungen unterliegen der regelmäßigen Erhöhung nach geltendem Hamburger Mietenspiegel. Für die Garagen wurden jeweils separate Mietverträge abgeschlossen.
Eine neue Gas-Brennwert Heizungsanlage wurde im Jahre 2021 eingebaut. Die Fernwärmeleitungen wurden bereits in der Straße verlegt, so dass zukünftig auch ein Hausanschluss denkbar wäre. Das Haus befindet sich in einem Glasfaserausbaugebiet. Die Telekom kann derzeit noch keinen Termin nennen, wann der Glasfaser-Hausanschluss erfolgen wird.
Der Leitungswasserschaden vom 17.04.2025 wurde durch den Allianz Handwerker Service mit 6-jähriger Gewährleistungsgarantie behoben.
Architekten-Mehrfamilienhaus auf 1.394 qm Grundstück in begehrter Lage
22525 Hamburg
Die vollständige Adresse der Immobilie erhalten Sie vom Anbieter.
Auf Karte anzeigen
Die vollständige Adresse der Immobilie erhalten Sie vom Anbieter.
Finanzierungszertifikat
In nur zwei Minuten zu Ihrem persönlichen Finanzierungszertifkat.
Infos
| Haustyp | Mehrfamilienhaus |
|---|---|
| Etagenzahl | 1 |
| Wohnfläche ca. | 455 m2 |
| Grundstücksfläche | 1.394 m2 |
| Bezugsfrei ab | nach Absprache |
| Zimmer | 14 |
| Garage/Stellplatz | Garage |
| Anzahl Garage/Stellplatz | 5 |
Kosten
| Kaufpreis |
2.200.000 € |
|---|---|
| Provision | Nein |
Finanzierungsrechner:
Kaufpreis:
600.000 €
Eigenkapital:
600.000 €
Monatliche Rate
0 €
Effektiver Jahreszins
0 %
Sollzinsbindung
10 Jahre
Bausubstanz & Energieausweis
| Baujahr | 1985 |
|---|---|
| Bauphase | Haus fertig gestellt |
| Objektzustand | Gepflegt |
| Heizungsart | Zentralheizung |
| Wesentliche Energieträger | Gas |
| Energieausweis | liegt vor |
| Energieausweistyp | Verbrauchsausweis |
| Energieverbrauchskennwert | 108,0 kWh/(m²*a) |
| Energieeffizienzklasse | D |
108,0
kWh/(m²*a)
Energieeffizienzklasse D
- A+
- A
- B
- C
- D
- E
- F
- G
- H
- 0
- 25
- 50
- 75
- 100
- 125
- 150
- 175
- 200
- 225
- >250
Beschreibung des Objekts
Ausstattung
Balkon, Terrasse, Garten, Keller, Vollbad, Einbauküche, Laminat, Teppichboden, Fliesen
Lage
Das Architekten-Mehrfamilienhaus auf einem 1.394 qm großen Grundstück befindet sich in Hamburg-Stellingen. Das quirlige Zentrum Eimsbüttels rund um die Osterstraße sowie das "Thyssen-Krupp / Diebsteich - Areal" (mit geplanter Musikhalle u.a. sowie ÖVNP) ist fußläufig und mit dem Fahrrad gut erreichbar. Das Haus liegt in einer Nebenstraße, die zukünftig auch als Radroute von der Hansestadt Hamburg geplant ist. Der "Park am Ziegelteich" mit seinen grünen Oasen und einem großen, abgegrenzten Abenteuerspielplatz befindet sich in unmittelbarer Umgebung und lädt zu Outdooraktivitäten ein.
Bäcker, Supermarkt, Fitnessstudio, Kita, Grundschule, Apotheke und Allgemeinmediziner befinden sich im Umkreis von maximal 800 m. Das Herz Eimsbüttels (die beliebte Osterstraße) mit einem vielfältigen Angebot an Geschäften, Cafés und Restaurants sowie Ärzten ist auch zu Fuß oder per Rad schnell (ca. 950 m) erreichbar. Der nächstgelegene Wochenmarkt liegt in der Grundstraße. Auch die weiterführenden Schulen befinden sich im Umkreis und unterstreichen die besonders familienfreundliche Lage.
Die Verkehrsanbindung (ÖPNV) ist ausgezeichnet und zu Fuß schnell erreichbar:
-S-Bahnlinien (S2 und S5) ab Diebsteich (zukünftig: neuer Fernbahnhof Altona)
Die S2 und S5 bieten beide eine direkte Verbindung in die Hamburger Innenstadt.
-Buslinien 115 und 183
Die Autobahn A7 (AS Stellingen) ist mit dem Auto in ca. 15 Minuten erreichbar und bietet eine optimale Verkehrsanbindung in alle Richtungen, inklusive Hamburg Airport.
Die unmittelbare Umgebung der Immobilie verbindet ruhiges, grünes Wohnen mit einer optimalen Anbindung an das städtische Leben - ein Standort, der sowohl bei Mietern als auch Investoren dauerhaft gefragt ist.
Infrastruktur (im Umkreis von 5 km):
Apotheke, Lebensmittel-Discount, Allgemeinmediziner, Kindergarten, Grundschule, Hauptschule, Realschule, Gymnasium, Gesamtschule, Öffentliche Verkehrsmittel
Sonstige Angaben
Heizungsart: Zentralheizung
Energieträger: Gas
Das Architekten-Mehrfamilienhaus auf einem 1.394 qm großen Grundstück in Hamburg-Stellingen ist im Privatbesitz. Wir möchten dieses ohne Makler veräußern.
Gerne übermitteln wir Ihnen auf Anfrage weitere Details und präsentieren Ihnen das Objekt im Rahmen einer persönlichen und ausführlichen Besichtigung. Wir bitten um Verständnis, dass wir nur E-Mail-Anfragen bearbeiten können, die Angaben zu Namen, Anschrift und Telefonnummer enthalten. Von Vorteil sind komplette Angaben mit Mobiltelefonnummer und E-Mail-Adresse. Wir freuen uns über eine Kontaktaufnahme.
Makleranfragen nicht erwünscht. Nach § 7 UWG sind unaufgeforderte Kontaktaufnahmen durch Makler ohne ausdrückliche Einwilligung des Empfängers verboten!
ohne-makler (OM) ist weder Anbieter noch Vermittler der Immobilie. OM betreibt eine Plattform für Immobilieneigentümer, die unter anderem die gleichzeitige Veröffentlichung einzelner Inserate auf mehreren Immobilienportalen ermöglicht. Die Inhalte dieser Inserate werden ausschließlich von Dritten verantwortet. Für die Richtigkeit, Vollständigkeit oder Rechtmäßigkeit der Angaben übernimmt OM keine Haftung. Hinweise auf mögliche Rechtsverstöße können jederzeit gemeldet werden und werden nach Prüfung umgehend bearbeitet.
Grundriss
Zeichnung Haus_Erdgeschoss
>
>
Zeichnung Haus_Untergeschoss
>
>
Zeichnung Haus_Dachgeschoss
>
>
Zeichnung Haus_Spitzboden
>
>
Adresse
22525 Hamburg
Interessante Orte
Preis- und Lageinformationen
Preistrend für Bestandsimmobilien in Stellingen