Am Ufer der Wedeler Au vereint dieses außergewöhnliche Anwesen Ruhe, Naturverbundenheit und architektonische Flexibilität. Das Haus von 1974 wurde 2004 saniert, 2020 modernisiert.
Im Jahr 2025 erhielt das Gebäude ein neues Dach mit einer leistungsstarken Photovoltaikanlage. Diese erreicht eine maximale Spitzenleistung von 25 kWp. Zusätzlich steht ein Batteriespeicher mit einer Kapazität von bis zu 20 kWh zur Verfügung.
Die Immobilie bietet auf drei Etagen vielfältige Nutzungsmöglichkeiten – als großzügiges Einfamilienhaus oder in bis zu drei separate Wohneinheiten teilbar.
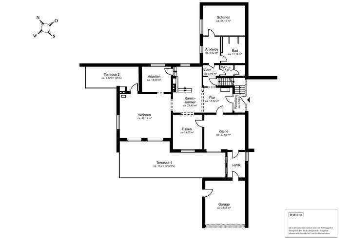
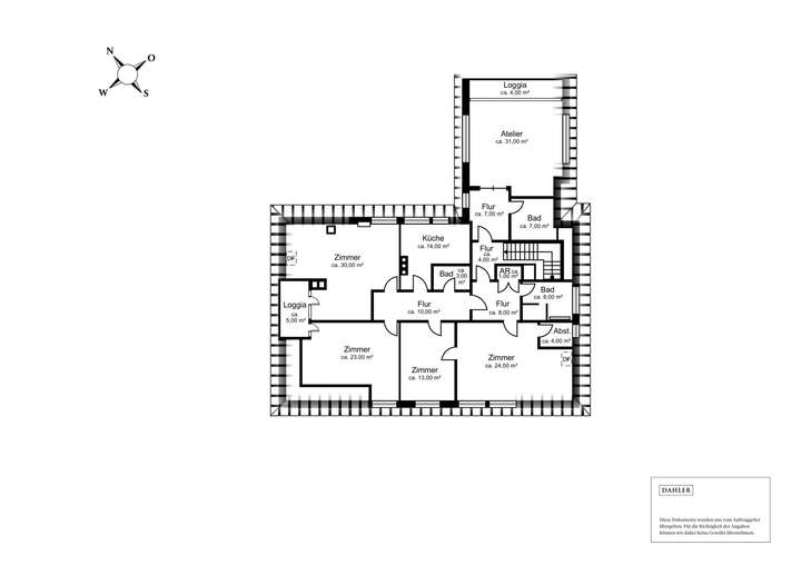
Im Erdgeschoss befinden sich ein offener Wohn- und Essbereich mit Kaminecke, Zugang zur Südterrasse, ein Schlafzimmer mit Bad en suite sowie ein Gäste-WC. Das modernisierte Obergeschoss umfasst vier Schlafzimmer, Küche, Bad und eine Loggia. Eine neu ausgebaute Atelierwohnung erweitert das Raumangebot.
Ideal für Familien, Paare oder zur Kombination von Wohnen und Arbeiten.
Große Familienvilla auf parkähnlichem, uneinsehbaren Grundstück
22559 Hamburg
Die vollständige Adresse der Immobilie erhalten Sie vom Anbieter.
Auf Karte anzeigen
Die vollständige Adresse der Immobilie erhalten Sie vom Anbieter.
Finanzierungszertifikat
In nur zwei Minuten zu Ihrem persönlichen Finanzierungszertifkat.
Infos
| Haustyp | Einfamilienhaus |
|---|---|
| Wohnfläche ca. | 404 m2 |
| Nutzfläche | 260 m2 |
| Grundstücksfläche | 2.905 m2 |
| Zimmer | 9 |
| Badezimmer | 4 |
Kosten
| Kaufpreis |
2.345.000 € |
|---|---|
| Provision |
3,57 % inkl. der gesetzl. MwSt., bezogen auf den Kaufpreis |
Finanzierungsrechner:
Kaufpreis:
600.000 €
Eigenkapital:
600.000 €
Monatliche Rate
0 €
Effektiver Jahreszins
0 %
Sollzinsbindung
10 Jahre
Bausubstanz & Energieausweis
| Baujahr | 1974 |
|---|---|
| Objektzustand | Modernisiert |
| Heizungsart | Öl-Heizung |
| Wesentliche Energieträger | Öl |
| Energieausweis | liegt vor |
| Energieausweistyp | Bedarfsausweis |
| Energieverbrauchskennwert | 113,6 kWh/(m²*a) |
| Energieeffizienzklasse | D |
113,6
kWh/(m²*a)
Energieeffizienzklasse D
- A+
- A
- B
- C
- D
- E
- F
- G
- H
- 0
- 25
- 50
- 75
- 100
- 125
- 150
- 175
- 200
- 225
- >250
Beschreibung des Objekts
Lage
Eingebettet zwischen Wildpark und Elbuferlandschaft genießen Sie hier naturnahe Ruhe – ganz ohne Fluglärm.
Das Rissener Zentrum mit vielfältigen Einkaufsmöglichkeiten, Cafés, Restaurants und Apotheken ist schnell erreichbar. Schulen und Kitas befinden sich in direkter Nähe.
Sport- und Freizeitangebote wie Tennis, Fußball, Reiten und Ponyreiten bieten Abwechslung für Groß und Klein.
Der S-Bahnhof Rissen sorgt für eine gute Anbindung: Altona ist in unter 30 Minuten erreichbar, die Hamburger Innenstadt in rund 35 Minuten.
Grundriss
Grundriss Erdgeschoss
>
>
Grundriss Obergeschoss
>
>
Grundriss Kellergeschoss
>
>
Adresse
22559 Hamburg
Interessante Orte
Preis- und Lageinformationen
Preistrend für Bestandsimmobilien in Rissen