Bei der angebotenen Immobilie handelt es sich um ein freistehendes Einfamilienhaus mit großzügigem Garten, eingelassenem Swimmingpool sowie einer Garage mit Montagegrube. Das Haus wurde ca. 1953 errichtet, im Jahr 1967 erweitert und seither kontinuierlich instandgehalten. Es befindet sich in einer der begehrtesten Wohnlagen von Neu-Isenburg und präsentiert sich in einem gepflegten Gesamtzustand. Mit den erforderlichen Renovierungs-, Modernisierungs- und Sanierungsmaßnahmen bietet diese Immobilie beste Voraussetzungen, um zu einem ganz persönlichen Zuhause zu werden.
Das Grundstück umfasst ca. 501,00 m² und bietet neben einer Wohnfläche von ca. 152,21 m² zusätzlich eine Nutzfläche von ca. 79,74 m². Damit steht Ihnen ein großzügiges Raumangebot zur Verfügung, das vielfältige Lebens- und Wohnkonzepte ermöglicht.
Der Zugang zum Haus erfolgt straßenseitig. Vorbei am Vorgarten erreichen Sie den überdachten Eingangsbereich. Über sehr breite und niedrige Stufen gelangen Sie zur Hauseingangstür und betreten das Hochparterre der Immobilie. Hier empfängt Sie eine geräumige Diele, von der aus ein langer Flur sowie ein breiter Treppenaufgang abgehen, der alle Ebenen miteinander verbindet. Das Kellergeschoss ist ebenfalls bequem direkt vom Eingangsbereich aus zugänglich.
Im Erdgeschoss befinden sich ein Gäste-WC, die Küche sowie das äußerst großzügig gestaltete Wohn- und Esszimmer. Großflächige Fensterfronten sorgen für eine hervorragende Belichtung und schaffen eine besonders helle und freundliche Wohnatmosphäre. Sowohl von der Küche als auch vom Wohnbereich aus gelangen Sie direkt auf die großzügig überdachte Terrasse. Dank der Ost-Ausrichtung genießen Sie hier insbesondere in den Morgen- und Mittagsstunden reichlich Sonnenlicht. Der Freisitz ist zudem auch über einen separaten Außenzugang vom Garten aus erreichbar.
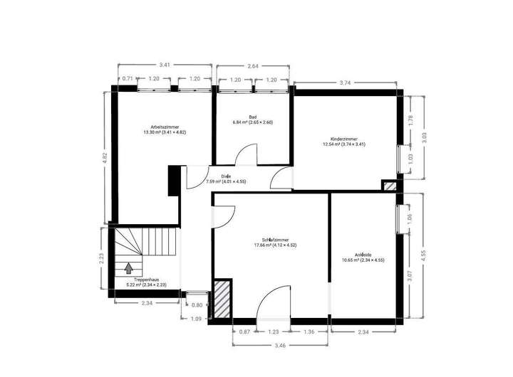
Das Dachgeschoss verfügt über einen hellen Flur, ein Tageslichtbad mit Badewanne, ein lichtdurchflutetes Arbeitszimmer, ein gut geschnittenes Kinderzimmer sowie ein Schlafzimmer mit angrenzendem Ankleidezimmer. Vom Flur aus ist über eine Luke der Spitzboden zugänglich, der zusätzlichen Stauraum bietet.
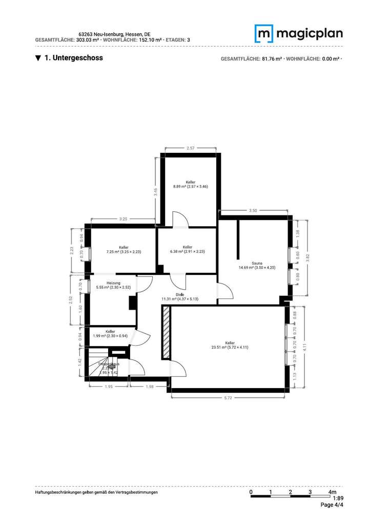
Das Kellergeschoss erreichen Sie über einen separaten Treppenabgang. Es umfasst insgesamt drei Kellerräume, einen Heizungsraum, einen Waschraum mit Sauna und Dusche, einen Weinkeller sowie einen Hobbyraum. Mit seiner Vielzahl an Räumen bietet dieser Bereich eine ideale Kombination aus funktionalen Nutzflächen, Stauraum und vielseitigen Nutzungsmöglichkeiten.
Der gepflegte, nach Osten ausgerichtete Garten ist äußerst sichtgeschützt und lädt mit zahlreichen Sonnenstunden zu entspannten Stunden im Grünen ein. Er ist sowohl vom Haus über die Terrasse als auch über die Garage zugänglich. Die großzügige Garage bietet Platz für zwei Fahrzeuge, die hintereinander abgestellt werden können. Ein großer Swimmingpool rundet dieses attraktive Immobilienangebot ab.
Einfamilienhaus mit Garten, Pool und Garage in begehrter Lage von Neu-Isenburg
63263 Neu-Isenburg
Die vollständige Adresse der Immobilie erhalten Sie vom Anbieter.
Auf Karte anzeigen
Die vollständige Adresse der Immobilie erhalten Sie vom Anbieter.
Finanzierungszertifikat
In nur zwei Minuten zu Ihrem persönlichen Finanzierungszertifkat.
Infos
| Haustyp | Einfamilienhaus |
|---|---|
| Wohnfläche ca. | 152 m2 |
| Nutzfläche | 79,74 m2 |
| Grundstücksfläche | 501 m2 |
| Bezugsfrei ab | Nach Vereinbarung |
| Zimmer | 5 |
| Schlafzimmer | 3 |
| Badezimmer | 1 |
| Garage/Stellplatz | Garage |
| Anzahl Garage/Stellplatz | 1 |
Kosten
| Kaufpreis |
699.900 € |
|---|---|
| Provision |
3,57 % inkl. MwSt. Käuferprovision beträgt 3,57 % (inkl. MwSt.) des beurkundeten Kaufpreises |
Finanzierungsrechner:
Kaufpreis:
600.000 €
Eigenkapital:
600.000 €
Monatliche Rate
0 €
Effektiver Jahreszins
0 %
Sollzinsbindung
10 Jahre
Bausubstanz & Energieausweis
| Baujahr | 1953 |
|---|---|
| Bauphase | Haus fertig gestellt |
| Objektzustand | Renovierungsbedürftig |
| Qualität der Austattung | Normal |
| Heizungsart | Zentralheizung |
| Wesentliche Energieträger | Gas |
| Energieausweis | liegt vor |
| Energieausweistyp | Bedarfsausweis |
| Energieverbrauchskennwert | 389,9 kWh/(m²*a) |
| Energieeffizienzklasse | H |
389,9
kWh/(m²*a)
Energieeffizienzklasse H
- A+
- A
- B
- C
- D
- E
- F
- G
- H
- 0
- 25
- 50
- 75
- 100
- 125
- 150
- 175
- 200
- 225
- >250
Beschreibung des Objekts
Ausstattung
- Wohnlage: Westend von Neu-Isenburg
- Gebäude: Einfamilienhaus (freistehend)
- Wohnfläche: ca. 152,21 m²
- Nutzfläche: 79,74 m²
- Grundstücksfläche: ca. 501,00 m²
- Bauweise: Massiv
- Etagen: UG, EG, DG
- Zimmer: 4
- Garten: Ja (nach Osten ausgerichtet)
- Terrasse: Ja
- Keller: Ja
- Pool: Ja
- Sauna: Ja
- Weinkeller: Ja
- Bodenbeläge: Marmor, Fliesen, Teppichboden
- Wände: Tapete, Holzverkleidung
- Badezimmer: WC, Badewanne, Tageslicht
- Gäste-WC: Ja
- Fenster: 2-fach verglast, Kunststoff
- Rollläden: Ja
- Heizung: Gas-Zentralheizung
- Kaminofen: Ja
- Dach: Satteldach
- Fassade: verputzt und gestrichen
- Garage: Ja
- Verkehrsanbindung: exzellent (sämtliche Autobahnen, Busse, Bahnen und der Frankfurter Flughafen sind in wenigen Minuten erreichbar)
Lage
WILLKOMMEN IN NEU-ISENBURG - Willkommen in einer zukunftsorientierten und aufgeschlossenen Stadt südlich von Frankfurt. Mit seiner erstklassigen Wohnlage sind die Autobahnen A3, A5 und A661 in ca. 5-10 sowie die Innenstadt von Frankfurt am Main und der internationale Flughafen in ca. 15 Autominuten erreichbar.
In unmittelbarer Nähe zum Objekt befinden sich Wälder und Wiesen, die unberührte Natur mit Erholungsfaktor bieten.
Die historischen Stadtteile präsentieren eine vielseitige Auswahl an Geschäften und Restaurants und laden zum Verweilen ein. Auch das Freizeitangebot ist besonders umfangreich. Zahlreiche Sportarten stehen Ihnen in und um Neu-Isenburg zur Auswahl.
Nur 7 km nördlich von Neu-Isenburg entfernt liegt die Börsenstadt Frankfurt am Main. Neu-Isenburg ist hervorragend an das Straßenverkehrsnetz angebunden. Mit einer direkten Anbindung an die A3, A5 und A661 erreichen Sie in Kürze Frankfurt sowie den Frankfurter Flughafen.
Die Straßenbahnhaltestelle Neu-Isenburg ist in ca. 15 Gehminuten erreichbar, der Neu-Isenburger Bahnhof mit direkten Verbindungen nach Frankfurt und in die Umgebung in etwa 5 Gehminuten.
Auch für Familien eignet sich Neu-Isenburg als Wohndomizil bestens. Öffentliche, konfessionelle und private Kindergärten sowie Grund- und Gesamtschulen und ein Gymnasium stehen Ihnen und Ihrem Nachwuchs zur Auswahl und bilden Ihre Jüngsten bestmöglich für die Zukunft aus.
Sonstige Angaben
GELDWÄSCHE: Als Immobilienmaklerunternehmen ist die Main Estate Immobilien GmbH nach § 2 Abs. 1 Nr. 14 und § 11 Abs. 1, 2 Geldwäschegesetz (GwG) dazu verpflichtet, bei der Begründung einer Geschäftsbeziehung bzw. sobald ein ernsthaftes Interesse an der Durchführung des Immobilienkaufvertrages besteht, die Identität des Vertragspartners festzustellen und zu überprüfen. Hierzu ist es erforderlich, dass wir, wenn Sie als natürliche Person handeln, nach § 11 Abs. 4 GwG die relevanten Daten Ihres Personalausweises festhalten - beispielsweise mittels einer Kopie. Bei einer juristischen Person benötigen wir eine Kopie des Handelsregisterauszugs, aus welchem der wirtschaftlich Berechtigte hervorgeht. Das Geldwäschegesetz sieht vor, dass der Makler die Kopien bzw. Unterlagen fünf Jahre aufbewahren muss. Als unser Vertragspartner haben Sie auch eine Mitwirkungspflicht nach § 11 Abs. 6 GwG.
HAFTUNG: Wir weisen darauf hin, dass die von uns weitergegebenen Objektinformationen, Unterlagen, Pläne etc. vom Verkäufer bzw. Vermieter stammen. Eine Haftung für die Richtigkeit oder Vollständigkeit der Angaben übernehmen wir daher nicht. Es obliegt daher unseren Kunden, die darin enthaltenen Objektinformationen und Angaben auf ihre Richtigkeit hin zu überprüfen. Alle Immobilienangebote sind freibleibend und vorbehaltlich Irrtümer, Zwischenverkauf- und Vermietung oder sonstiger Zwischenverwertung.
HINWEIS: Sollten mehrere Kaufzusagen zur angebotenen Immobilie / Grundstück vorliegen, hält sich der Eigentümer das Recht vor, von einem Verkaufsangebot auf ein Bieterverfahren zu wechseln.
EIGENTÜMERSERVICE: Planen Sie den Verkauf oder die Vermietung Ihrer Immobilie, so ist es für Sie wichtig, deren Marktwert zu kennen. Lassen Sie kostenfrei und unverbindlich den aktuellen Wert Ihrer Immobilie professionell durch uns einschätzen. Unser professionelles Netzwerk ermöglicht es uns, Verkäufer bzw. Vermieter und Interessenten bestmöglich zusammenzuführen.
Weitere Dokumente
Grundriss EGGrundriss DG
Grundriss UG
Grundriss
Gundriss EG
>
>
Grundriss DG
>
>
Grundriss UG
>
>
Adresse
63263 Neu-Isenburg
Interessante Orte
Preis- und Lageinformationen
Preistrend für Bestandsimmobilien in Neu-Isenburg