Bei der angebotenen Immobilie handelt es sich um eine Doppelhaushälfte, die ca. 1933 errichtet und in den 1950er/1960er sowie 1980er/1990er Jahren erweitert und modernisiert wurde. Das Objekt liegt in begehrter Wohnlage von Neu-Isenburg und präsentiert sich in einem authentischen und gepflegten Gesamtzustand, sodass es mit einfachen Renovierungs- und/oder Sanierungsmaßnahmen zu Ihrem neuen Zuhause werden kann. Mit einer Grundstücksfläche von ca.232,00 m², einer Wohnfläche von ca. 63,01 m² und einer zusätzlichen Nutzfläche von ca. 52,89 m² bietet die Liegenschaft ein großzügiges Raumangebot mit einer Wohn- und Nutzfläche von insgesamt 115,91 m² für unterschiedlichste Lebenskonzepte.
Der Zugang erfolgt über eine gepflasterte Zufahrt. Vorbei am Vorgarten und der Ostseite des Einfamilienhauses erreichen Sie das Gartentor sowie rechter Hand den überdachten und sichtgeschützten Eingangsbereich. Über einen Treppenaufgang gelangen Sie zur Hauseingangstür und betreten das Hochparterre der Immobilie.
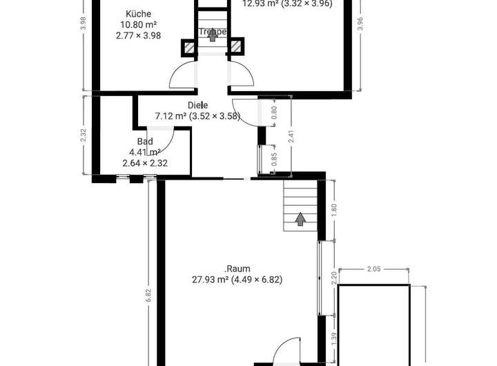
Das Objekt beeindruckt mit einer großzügigen Diele, von der Sie rechter Hand die helle Küche mit einer modernen Einbauküche und Sitzmöglichkeiten erreichen sowie außerdem das Arbeits-/Gästezimmer mit seinem wunderschönem original Holzdielen-Boden betreten. Außerdem befindet sich hier der Treppenaufgang, der Sie in das Obergeschoss der Immobilie führt. Am Kopfende der Diele befindet sich auf der linken Seite das Badezimmer mit Tageslicht und einer Badewanne.
Der aktuell als Wohnbereich genutzte Raum befindet sich direkt auf der linken Seite, nachdem Sie die Diele betreten haben. Hier führt Sie ein kleiner Treppenabgang hinunter in den Anbau. Großflächige Fensterfronten lassen sehr viel Tageslicht herein und verleihen dem Raum eine außergewöhnlich helle Atmosphäre. Von hier aus führt auch ein direkter Zugang auf den großzügigen Freisitz (Terrasse), der mit seiner Südost-Ausrichtung bei schönem Wetter sehr viel Sonnenlicht bietet. Der Freisitz (Terrasse) kann außerdem über einen Zugang von außen über den Garten erreicht werden.
Im Obergeschoss setzt sich die authentische Architektur und Raumaufteilung ihrer Zeit fort. Der Flur am Ende des Treppenaufgangs erschließt ein großzügiges Elternschlafzimmer, das über ein kleines Bad (WC) en Suite verfügt sowie ein attraktiv geschnittenes Kinder-/Ankleidezimmer gegenüber. Über eine Luke, die sich in der Decke oberhalb des Treppenaufgangs befindet, haben Sie Zugang zum Dachboden.
Das Kellergeschoss erreichen Sie über einen separaten Zugang von außen. Es umfasst 2 Kellerräume sowie einem Heizungs- und Waschraum. Mit diesen drei Räumen bietet das Kellergeschoss die perfekte Kombination aus Stauraum und Funktionalität.
Der nach Südosten ausgerichtete Garten ist gepflegt, äußerst sichtgeschützt und bietet Ihnen von mittags bis abends zahlreiche Sonnenstunden. Er ist sowohl über den Freisitz vom Gebäude aus als auch über die Einfahrt zugänglich und lädt zu entspannten Stunden im Grünen ein. Ein geräumiges Gartenhäuschen für Fahrräder oder Gartengeräte runden dieses attraktive Angebot ab.
Einfamilienhaus mit rund 116 m² Fläche, Garten und Stellplatz in begehrter Lage von Neu-Isenburg
63263 Neu-Isenburg
Die vollständige Adresse der Immobilie erhalten Sie vom Anbieter.
Auf Karte anzeigen
Die vollständige Adresse der Immobilie erhalten Sie vom Anbieter.
Finanzierungszertifikat
In nur zwei Minuten zu Ihrem persönlichen Finanzierungszertifkat.
Infos
| Haustyp | Doppelhaushaelfte |
|---|---|
| Etagenzahl | 2 |
| Wohnfläche ca. | 63 m2 |
| Nutzfläche | 52,89 m2 |
| Grundstücksfläche | 232 m2 |
| Bezugsfrei ab | Nach Vereinbarung |
| Zimmer | 4 |
| Schlafzimmer | 3 |
| Badezimmer | 1 |
| Garage/Stellplatz | Außenstellplatz |
| Anzahl Garage/Stellplatz | 1 |
Kosten
| Kaufpreis |
474.900 € |
|---|---|
| Provision |
3,57 % inkl. MwSt. Käuferprovision beträgt 3,57 % (inkl. MwSt.) des beurkundeten Kaufpreises |
Finanzierungsrechner:
Kaufpreis:
600.000 €
Eigenkapital:
600.000 €
Monatliche Rate
0 €
Effektiver Jahreszins
0 %
Sollzinsbindung
10 Jahre
Bausubstanz & Energieausweis
| Baujahr | 1933 |
|---|---|
| Bauphase | Haus fertig gestellt |
| Objektzustand | Gepflegt |
| Qualität der Austattung | Normal |
| Heizungsart | Zentralheizung |
| Wesentliche Energieträger | Gas |
| Energieausweis | liegt vor |
| Energieausweistyp | Bedarfsausweis |
| Energieverbrauchskennwert | 456,6 kWh/(m²*a) |
| Energieeffizienzklasse | H |
456,6
kWh/(m²*a)
Energieeffizienzklasse H
- A+
- A
- B
- C
- D
- E
- F
- G
- H
- 0
- 25
- 50
- 75
- 100
- 125
- 150
- 175
- 200
- 225
- >250
Beschreibung des Objekts
Ausstattung
- Wohnfläche: ca. 63,01 m²
- Nutzfläche: ca. 52,89 m²
- Grundstücksfläche: ca. 232,00 m²
- Baujahr: ca. 1933
- Küche: Einbauküche
- Badezimmer: 1 (mit Fenster und Badewanne)
- Bad en Suite (WC): 1 (im OG)
- Bodenbelag: Dielen, Fliesen, Laminat, Parkett
- Heizung: Gas-Zentralheizung
- Wand innen: Tapete
- Decke innen: Tapete
- Fenster: 2-fach verglast, Kunststoff
- Keller: Ja
- Dachboden: Ja
- Rollladen: Ja
- Terrasse/Freisitz: Ja
- Garten: Ja
- Stellplatz: Ja
- Hervorragende Verkehrsanbindung zu sämtlichen Autobahnen, Bussen, Bahnen und dem Frankfurter Flughafen
Lage
Das angebotene Objekt befindet sich in zentraler Lage von Neu-Isenburg, einem der attraktivsten Standorte von Neu-Isenburg und sehr beliebt im Rhein-Main-Gebiet.
Mit seiner erstklassigen Wohnlage sind die Autobahnen A3, A5 und A661 in 5-7 sowie die Innenstadt von Frankfurt am Main und der internationale Flughafen in 10-15 Autominuten erreichbar. Gleichzeitig befinden sich Wälder und Wiesen in unmittelbarer Nähe zum Objekt, sodass ruhigen und erholsamen Spaziergängen nichts im Wege steht. Insgesamt wird das Objekt somit jedem Anspruch gerecht und es muss kein Wunsch offen bleiben. Sie können in einer angenehmen Umgebung schnell dem Alltag entfliehen, sich entspannen und die Nähe der Natur suchen.
Gleichzeitig erreichen sie die internationale Metropole Frankfurt am Main mit ihrem pulsierenden und aufregenden Leben sowie zahlreichen Einkaufsmöglichkeiten in weniger als 15 Minuten mit dem Auto, der Bahn oder dem Bus. Diverse Freizeitmöglichkeiten sowie Geschäfte aller Art für den täglichen Bedarf finden Sie fußläufig in unmittelbarer Umgebung.
Sonstige Angaben
GELDWÄSCHE: Als Immobilienmaklerunternehmen ist die Main Estate Immobilien GmbH nach § 2 Abs. 1 Nr. 14 und § 11 Abs. 1, 2 Geldwäschegesetz (GwG) dazu verpflichtet, bei der Begründung einer Geschäftsbeziehung bzw. sobald ein ernsthaftes Interesse an der Durchführung des Immobilienkaufvertrages besteht, die Identität des Vertragspartners festzustellen und zu überprüfen. Hierzu ist es erforderlich, dass wir, wenn Sie als natürliche Person handeln, nach § 11 Abs. 4 GwG die relevanten Daten Ihres Personalausweises festhalten - beispielsweise mittels einer Kopie. Bei einer juristischen Person benötigen wir eine Kopie des Handelsregisterauszugs, aus welchem der wirtschaftlich Berechtigte hervorgeht. Das Geldwäschegesetz sieht vor, dass der Makler die Kopien bzw. Unterlagen fünf Jahre aufbewahren muss. Als unser Vertragspartner haben Sie auch eine Mitwirkungspflicht nach § 11 Abs. 6 GwG.
HAFTUNG: Wir weisen darauf hin, dass die von uns weitergegebenen Objektinformationen, Unterlagen, Pläne etc. vom Verkäufer bzw. Vermieter stammen. Eine Haftung für die Richtigkeit oder Vollständigkeit der Angaben übernehmen wir daher nicht. Es obliegt daher unseren Kunden, die darin enthaltenen Objektinformationen und Angaben auf ihre Richtigkeit hin zu überprüfen. Alle Immobilienangebote sind freibleibend und vorbehaltlich Irrtümer, Zwischenverkauf- und Vermietung oder sonstiger Zwischenverwertung.
HINWEIS: Sollten mehrere Kaufzusagen zur angebotenen Immobilie / Grundstück vorliegen, hält sich der Eigentümer das Recht vor, von einem Verkaufsangebot auf ein Bieterverfahren zu wechseln.
EIGENTÜMERSERVICE: Planen Sie den Verkauf oder die Vermietung Ihrer Immobilie, so ist es für Sie wichtig, deren Marktwert zu kennen. Lassen Sie kostenfrei und unverbindlich den aktuellen Wert Ihrer Immobilie professionell durch uns einschätzen. Unser professionelles Netzwerk ermöglicht es uns, Verkäufer bzw. Vermieter und Interessenten bestmöglich zusammenzuführen.
Weitere Dokumente
Grundriss EGGrundriss OG
Grundriss UG
Grundriss
Grundriss EG
>
>
Grundriss OG
>
>
Grundriss UG
>
>
Adresse
63263 Neu-Isenburg
Interessante Orte
Preis- und Lageinformationen
Preistrend für Bestandsimmobilien in Neu-Isenburg