Diese repräsentative Jugendstilvilla von 1906 verbindet hanseatischen Charme mit modernem Wohnkomfort. Auf einem ca. 1.249 m² großen Grundstück bietet das Haus drei abgeschlossene Wohneinheiten mit insgesamt ca. 429 m² Wohnfläche und ca. 30 m² Nutzfläche – ideal für Mehrgenerationen, Kapitalanlage oder als großes Einfamilienhaus.
Hohe Decken, Stuck, originale Türen und Holzböden prägen das stilvolle Ambiente. Die Villa wurde fortlaufend modernisiert: doppelt verglaste Fenster im historischen Stil, Hohlraumdämmung, Photovoltaikanlage sowie eine neue Viessmann-Wärmepumpenlösung, Wallbox und Glasfaseranschluss runden das nachhaltige Energiekonzept ab.
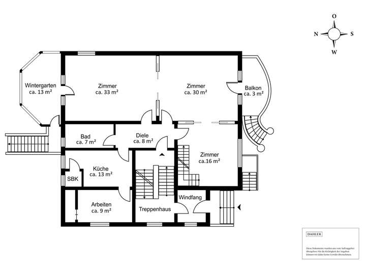
Hochparterre und ausgebautes Souterrain bilden eine großzügige Haupteinheit mit Wintergarten und Gartenzugang. Ober- und Dachgeschoss sind frisch renoviert, lichtdurchflutet und mit modernen Einbauten, hochwertigen Küchen sowie Balkon bzw. gläserner Loggia ausgestattet.
Zum Haus gehören zwei Garagen, mehrere Keller- und Abstellräume sowie ein gepflegter Außenbereich. Jede Einheit verfügt über einen eigenen Gartenanteil; das Objekt wird vollständig frei geliefert. Eine spätere getrennte Veräußerung ist möglich.
Eine seltene Kombination aus Stil, Flexibilität und Zukunftsfähigkeit.
Stil mit Geschichte – Herrschaftliche Villa mit flexibler Nutzung
22605 Hamburg
Die vollständige Adresse der Immobilie erhalten Sie vom Anbieter.
Auf Karte anzeigen
Die vollständige Adresse der Immobilie erhalten Sie vom Anbieter.
Finanzierungszertifikat
In nur zwei Minuten zu Ihrem persönlichen Finanzierungszertifkat.
Infos
| Haustyp | Mehrfamilienhaus |
|---|---|
| Etagenzahl | 3 |
| Wohnfläche ca. | 429 m2 |
| Grundstücksfläche | 1.249 m2 |
| Zimmer | 14 |
| Badezimmer | 4 |
| Garage/Stellplatz | Garage |
| Anzahl Garage/Stellplatz | 2 |
Kosten
| Kaufpreis |
3.345.000 € |
|---|---|
| Provision |
3,57 % inkl. der gesetzl. MwSt., bezogen auf den Kaufpreis |
Finanzierungsrechner:
Kaufpreis:
600.000 €
Eigenkapital:
600.000 €
Monatliche Rate
0 €
Effektiver Jahreszins
0 %
Sollzinsbindung
10 Jahre
Bausubstanz & Energieausweis
| Baujahr | 1906 |
|---|---|
| Objektzustand | Modernisiert |
| Heizungsart | Wärmepumpe |
| Energieausweis | liegt vor |
| Energieausweistyp | Bedarfsausweis |
| Energieverbrauchskennwert | 61,2 kWh/(m²*a) |
| Energieeffizienzklasse | B |
61,2
kWh/(m²*a)
Energieeffizienzklasse B
- A+
- A
- B
- C
- D
- E
- F
- G
- H
- 0
- 25
- 50
- 75
- 100
- 125
- 150
- 175
- 200
- 225
- >250
Beschreibung des Objekts
Ausstattung
Die gepflegte Jugendstilvilla umfasst drei abgeschlossene Wohneinheiten mit insgesamt ca. 429 m² Wohnfläche und ca. 30 m² Nutzfläche. Historische Details wie hohe Decken, Stuck, originale Türen und Parkett treffen auf moderne Technik und zeitgemäße Infrastruktur.
Hochparterre & Souterrain (ca. 223 m²)
– Klassische Raumfolge mit Schiebetüren, Fischgrätparkett und Jugendstilelementen
– Wintergarten mit Gartenzugang, Balkon zum Vorgarten
– Küche im historischen Stil
– Wohnlich ausgebautes Souterrain mit zwei Schlafzimmern, zwei Bädern, Ankleide und separatem Eingang
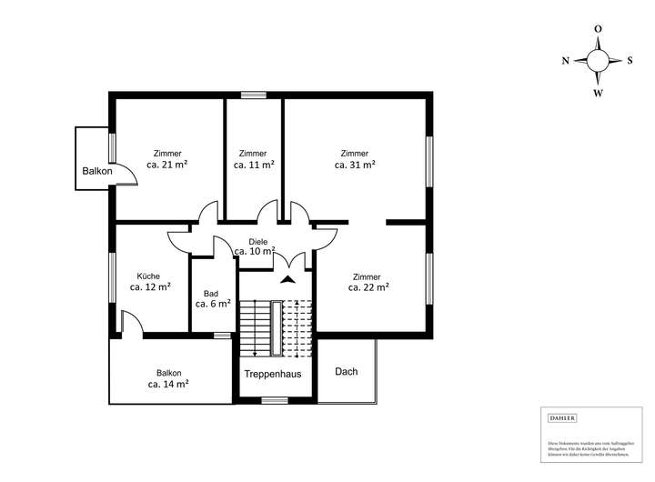
Obergeschoss (ca. 115 m²)
– Frisch renoviert, heller Parkettboden
– Moderne Nolte-Küche mit Steinplatte
– Zwei Balkone
– Vier Zimmer und gepflegtes Bad im Stil der 1970er
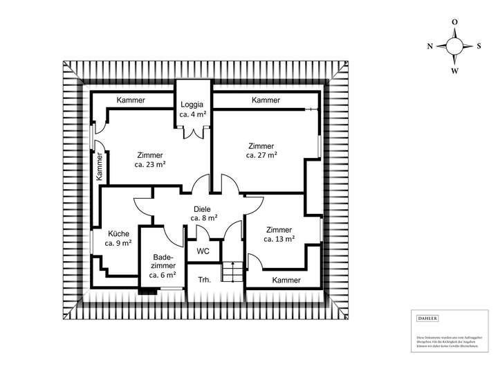
Dachgeschoss (ca. 91 m²)
– Ebenfalls renoviert, hohe Decken, kaum Dachschrägen
– Nolte-Küche mit Granit-Arbeitsplatte
– Drei Zimmer, Bad und Gäste-WC (ca. 12 Jahre alt)
– Gläserne Loggia und viel Stauraum durch Abseiten
Technik & Nachhaltigkeit
– Photovoltaikanlage (18 Module, 10-kWh-Speicher)
– Erneuerte Hohlraumdämmung, gedämmtes Dach
– Doppelt verglaste Holzfenster im Stil des Originals
– Neue Elektrik inkl. Verteilerschränke
– Installation kaskadierender Viessmann-Wärmepumpen
– Wallbox, Glasfaseranschluss
– Warmwasser in OG/DG über Durchlauferhitzer
Weitere Merkmale
– Jede Einheit mit eigenem Gartenanteil
– Zwei Garagen, Keller- und Abstellräume
– Objekt wird vollständig frei geliefert und lässt sich flexibel nutzen – Mehrfamilien-, Mehrgenerationen- oder Einfamilienhaus.
Lage
Die Villa befindet sich im Herzen von Othmarschen, einer der begehrtesten Wohnlagen im Hamburger Westen. Das Umfeld ist geprägt von repräsentativen Altbauvillen, großzügigen Grundstücken und altem Baumbestand – ein ruhiges, niveauvolles Villenviertel mit hoher Lebensqualität.
Die Nähe zur Elbe, zum Jenischpark und zum Botanischen Garten bietet ideale Möglichkeiten für Spaziergänge, Sport und Erholung im Grünen. Boutiquen, Cafés und Feinkostgeschäfte rund um die Waitzstraße sowie das nahe Elbe-Einkaufszentrum sorgen für eine hervorragende Versorgung.
Sport- und Freizeitangebote wie der Hamburger Polo Club und der Großflottbeker Tennis-, Hockey- und Golf-Club unterstreichen den exklusiven Charakter des Stadtteils.
Familien profitieren von renommierten Schulen wie dem Christianeum, der Internationalen Schule, dem Gymnasium Hochrad und der Loki-Schmidt-Schule.
Die Verkehrsanbindung ist ausgezeichnet: Die S-Bahn-Station „Othmarschen“ ermöglicht eine schnelle Verbindung in die Innenstadt, und über A7 und A23 sind Flughafen und Umland bequem erreichbar.
Eine Lage, die Ruhe, Tradition und Stadtnähe auf ideale Weise verbindet.
Adresse
22605 Hamburg
Interessante Orte
Preis- und Lageinformationen
Preistrend für Bestandsimmobilien in Othmarschen