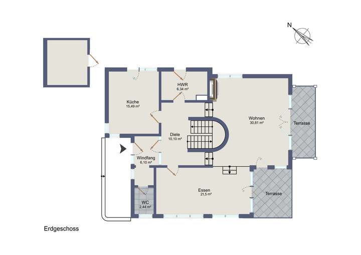
Dieses Architektenhaus aus den 1990er Jahren begeistert durch seine großzügige, helle und offene Gestaltung. Das Split-Level-Konzept verleiht den Wohnbereichen eine besondere räumliche Tiefe und eine angenehme Dynamik. Vom Eingangsbereich führt der Weg über wenige Stufen in den offenen Wohn- und Essbereich mit hohen Decken, großen Fenstern und viel Tageslicht.
Im Erdgeschoss befinden sich das stilvolle Gäste-WC, die hochwertige Einbauküche mit Kücheninsel und angrenzendem Vorratsraum sowie das Esszimmer, das über wenige Stufen in das Wohnzimmer übergeht. Der Wohnraum mit Stirnholzparkett und Kaminofen bietet eine warme, einladende Atmosphäre und öffnet sich zum Garten hin.
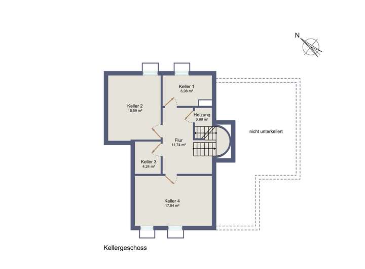
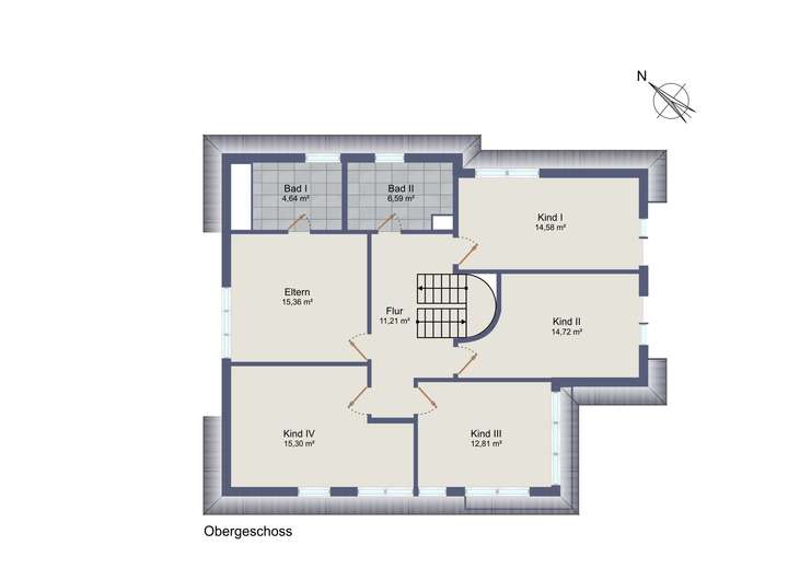
Im Obergeschoss stehen fünf gut geschnittene Schlafzimmer sowie zwei hell geflieste Bäder zur Verfügung – eines davon en suite zum Elternschlafzimmer. Ein weiteres Highlight ist die charmante Diele mit Wandtäfelung in hellem Holz. Der Dachboden bietet zusätzliche Abstellfläche, der Keller vier großzügige Räume.
Das Haus ist teilunterkellert und mit einer Brötje-Heizung (Baujahr 1993) ausgestattet. Der gepflegte Garten mit zwei Markisen, Geräteschuppen und Bewässerungssystem rundet das Gesamtbild ab.
Stilvolles Architektenhaus in Bürgerfelde – großzügig, hell und bezugsfrei
Görlitzer Str. 26,
26127 Oldenburg (Oldenburg)
Auf Karte anzeigen
Finanzierungszertifikat
In nur zwei Minuten zu Ihrem persönlichen Finanzierungszertifkat.
Infos
| Haustyp | Einfamilienhaus |
|---|---|
| Etagenzahl | 2 |
| Wohnfläche ca. | 185 m2 |
| Nutzfläche | 55 m2 |
| Grundstücksfläche | 646 m2 |
| Zimmer | 7 |
| Schlafzimmer | 5 |
| Badezimmer | 2 |
| Garage/Stellplatz | Außenstellplatz |
| Anzahl Garage/Stellplatz | 2 |
Kosten
| Kaufpreis |
499.000 € |
|---|---|
| Provision |
3% zzgl. MwSt. |
Finanzierungsrechner:
Kaufpreis:
600.000 €
Eigenkapital:
600.000 €
Monatliche Rate
0 €
Effektiver Jahreszins
0 %
Sollzinsbindung
10 Jahre
Bausubstanz & Energieausweis
| Baujahr | 1993 |
|---|---|
| Bauphase | Haus fertig gestellt |
| Objektzustand | Gepflegt |
| Qualität der Austattung | Gehoben |
| Heizungsart | Zentralheizung |
| Wesentliche Energieträger | Gas |
| Energieausweis | liegt vor |
| Energieausweistyp | Verbrauchsausweis |
|
Energieverbrauchskennwert
Energieverbrauch für Warmwasser enthalten |
138,6 kWh/(m²*a) |
Beschreibung des Objekts
Ausstattung
Erdgeschoss:
Großzügiger Eingangsbereich mit Windfang
Stilvolles Gäste-WC
Küche mit hochwertiger Einbauküche, Kücheninsel und angrenzendem Vorrats-/Anrichteraum
Offenes Esszimmer mit Übergang (Split-Level) zum Wohnzimmer
Wohnzimmer mit Stirnholzparkett, hohen Decken, großen Holzfenstern und Kaminofen
Helle, großformatige Fliesen in Küche, Flur, Esszimmer und Gäste-WC
Obergeschoss:
Fünf gut geschnittene Schlafzimmer
Zwei Tageslichtbäder (weiß gefliest)
En-suite-Bad mit Dusche, WC und Waschbecken am Elternschlafzimmer
Familienbad mit Badewanne (mit Duschabtrennung), WC und Waschbecken
Heller Parkettboden in den Wohnräumen
Freundliche Diele mit Wandtäfelung und Ablage in hellem Holz
Sonstiges:
Dachboden als Stauraum nutzbar
Teilunterkellert: vier großzügige Kellerräume
Brötje-Heizung mit Warmwasserbereitung (Baujahr 1993)
Garten mit zwei Markisen, Bewässerungssystem und Geräteschuppen
Architektenhaus mit Split-Level-Grundriss und hoher, lichtdurchfluteter Bauweise
Lage
Die Immobilie befindet sich in beliebter und ruhiger Wohnlage von Oldenburg-Bürgerfelde, einem gewachsenen Stadtteil mit hervorragender Infrastruktur.
Einkaufsmöglichkeiten, Schulen, Kindergärten sowie Ärzte sind in wenigen Minuten erreichbar. Die Innenstadt von Oldenburg liegt nur rund zehn Fahrradminuten entfernt, ebenso der Bürgerbusch als Naherholungsgebiet.
Grundriss
Grundriss Erdgeschoss
>
>
Grundriss Obergeschoss
>
>
Grundriss Keller
>
>
Adresse
Görlitzer Str. 26, 26127 Oldenburg (Oldenburg)
Interessante Orte
Preis- und Lageinformationen
Preistrend für Bestandsimmobilien in Bürgerfelde