Ruhiges Wohnen im Grünen bei guter Erreichbarkeit der Großstadt:
Der Bungalow im Braunschweiger Stadtteil Timmerlah führt zusammen, was im Leben zusammen gehört.
Die Immobilie präsentiert sich gepflegt und gemütlich, bietet viel Platz zum Wohlfühlen und ein hohes Maß an Exklusivität, da sie mit hochwertigen Materialien ausgestattet ist.
Charakteristisch für diesen Bungalow ist die Staffelgeschoss-Bauweise, bei der beide Etagen versetzt angeordnet sind und durch wenige Stufen, sowohl nach oben, als auch nach unten miteinander verbunden sind.
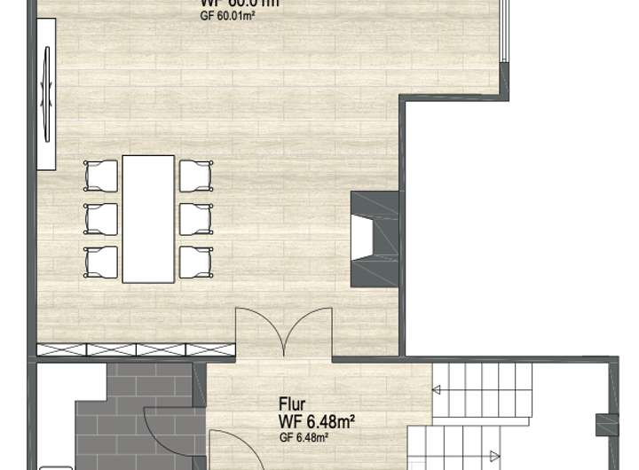
Durch den Eingangsbereich mit Gäste-WC gelangen Sie über die große Diele in die helle, geschlossene Küche, den Treppenbereich, der in beide Ebenen des Hauses führt und in den großzügigen Wohn- und Essbereich, der über einen Zugang in den herrlichen Wintergarten und in den Garten verfügt. Darüber hinaus ist der Wohnbereich mit einem Kamin ausgestattet und bietet Ihnen viel Platz für gemütliche Familienabende. Die bodentiefen Fenster und der Wintergarten geben dem Wohnraum ein helles und offenes Wohngefühl.
In der erhöhten Ebene erwarten Sie ein großes Schlafzimmer, das bei Bedarf in ein zusätzliches Zimmer geteilt werden kann, ein weiteres Zimmer, welches multifunktionale als Schlafzimmer, Büro oder Hobbyraum genutzt werden kann und das große Familienbadezimmer, das mit einem Doppelwaschtisch, einer Dusche und einer Badewanne ausgestattet ist und über Tageslicht verfügt.
In der abgesengten Ebene befinden sich ein gepflegter Wäscheraum, ein großer Lagerraum, ein Gästezimmer und eine Werkstatt.
Der idyllisch und gepflegte Außenbereich des 490 m² großen Grundstückes und das über das Smartphone steuerbare Homematic System tragen zum vollendeten Wohngenuss dieser Immobilie bei.
Split-Level-Bungalow mit durchdachter Raumaufteilung in Braunschweig-Timmerlah
38120 Braunschweig
Die vollständige Adresse der Immobilie erhalten Sie vom Anbieter.
Auf Karte anzeigen
Die vollständige Adresse der Immobilie erhalten Sie vom Anbieter.
Finanzierungszertifikat
In nur zwei Minuten zu Ihrem persönlichen Finanzierungszertifkat.
Infos
| Haustyp | Bungalow |
|---|---|
| Wohnfläche ca. | 130 m2 |
| Grundstücksfläche | 490 m2 |
| Bezugsfrei ab | nach Vereinbarung |
| Zimmer | 4 |
| Schlafzimmer | 2 |
| Badezimmer | 1 |
| Garage/Stellplatz | Garage |
| Anzahl Garage/Stellplatz | 1 |
Kosten
| Kaufpreis |
459.000 € |
|---|---|
| Provision |
3,57 % Käuferprovision inkl. gesetzl. MwSt. Die Käufer-Provision beträgt 3,57% vom Kaufpreis inkl. MwSt. Die Käufer-Provision ist verdient und fällig mit notarieller Beurkundung. Der Immobilienmakler hat einen provisionspflichtigen Maklervertrag in gleicher Höhe mit dem Verkäufer abgeschlossen. |
Finanzierungsrechner:
Kaufpreis:
600.000 €
Eigenkapital:
600.000 €
Monatliche Rate
0 €
Effektiver Jahreszins
0 %
Sollzinsbindung
10 Jahre
Bausubstanz & Energieausweis
| Baujahr | 1974 |
|---|---|
| Objektzustand | Gepflegt |
| Heizungsart | Wärmepumpe |
| Wesentliche Energieträger | Umweltwärme |
| Energieausweis | liegt vor |
| Energieausweistyp | Bedarfsausweis |
| Energieverbrauchskennwert | 63,9 kWh/(m²*a) |
| Energieeffizienzklasse | B |
63,9
kWh/(m²*a)
Energieeffizienzklasse B
- A+
- A
- B
- C
- D
- E
- F
- G
- H
- 0
- 25
- 50
- 75
- 100
- 125
- 150
- 175
- 200
- 225
- >250
Beschreibung des Objekts
Ausstattung
• Massivbau
• Splitt-Level Bungalow
• Eigentumsgrundstück
• Teil unterkellert
• Smart Home (Homematic)
• Sicherheitskamera
• lichtdurchflutetes Raumklima
• 2 Schlafzimmer
• Badezimmer mit Dusche und Badewanne
• Gäste-WC
• Einbauküche
• Große Terrasse
• Klimaanlage
• Kunststofffenster 2-fach verglast
• Wintergarten 3-fach verglast
• Außenrollläden elektrisch
• Luftwärmepumpe
• Solarkollektoren für Warmwasser
• Photovoltaik
• Garage
• Geräteraum
• Brunnen für Gartenbewässerung
Lage
Timmerlah ist ein Stadtteil, in dem man zur Ruhe kommt. Umgeben von Feldern und viel Grün, geprägt von einer gewachsenen Nachbarschaft und gepflegten Wohnstraßen, bietet der Ort ein entspanntes und angenehmes Wohnumfeld. Hier lebt man ruhig, persönlich und dennoch gut angebunden.
Die Braunschweiger Innenstadt ist in kurzer Zeit erreichbar und ermöglicht alle Vorzüge des urbanen Lebens – von Einkaufsmöglichkeiten über Gastronomie bis hin zu kulturellen Angeboten. Gleichzeitig bleibt der Alltag in Timmerlah überschaubar und angenehm: Dinge des täglichen Bedarfs, Schulen und Kindergärten befinden sich in der näheren Umgebung.
Die gute Anbindung über die A391 sowie die B1 macht den Stadtteil besonders attraktiv für Berufspendler. Auch mit öffentlichen Verkehrsmitteln ist Timmerlah zuverlässig erreichbar.
Direkt vor der Haustür laden Felder, Wege und Grünflächen zu Spaziergängen, Fahrradtouren oder einfach zu einer kleinen Auszeit im Freien ein. Timmerlah verbindet auf natürliche Weise Ruhe, Nähe zur Natur und die Vorteile der Stadt – ein Ort, an dem man sich schnell zuhause fühlt.
Sonstige Angaben
Gerne sind wir für weitere Fragen und Informationen unter Tel. 05361/83446-75 erreichbar.
Bei Kauf verpflichtet sich der Käufer an die Kristin Krumm Immobilien GmbH eine Maklerprovision in der angegebenen Höhe nach notariellem Kaufvertrag zu leisten. Durch Ihre Objektanfrage bestätigen Sie die Vereinbarung und Anerkennung dieser Maklercourtage.
Anfragen über die Immobilienportale werden nur mit vollständiger Adresse und Telefonnummer bearbeitet.
HAFTUNGSAUSSCHLUSS: Alle Angaben stammen vom Eigentümer. Trotz regelmäßiger Prüfung von Daten, Bildern und Informationen übernehmen wir keine Haftung für die Richtigkeit der Angaben. Ebenso wenig für die Verfügbarkeit des Angebotes.
Es gelten unsere Allgemeinen Geschäftsbedingungen.
Grundriss
Grundriss
>
>
Grundriss
>
>
Grundriss KG
>
>
Adresse
38120 Braunschweig
Interessante Orte
Preis- und Lageinformationen
Preistrend für Bestandsimmobilien in Timmerlah-Geitelde-Stiddien