***FESTPREISANGEBOT***
Dieses charmante Einfamilienhaus befindet sich in einer der begehrtesten Wohnlagen von Ritterhude, eingebettet in die idyllische Landschaft der Hammewiesen und umgeben von viel Grün. Hier genießen Sie ein Höchstmaß an Ruhe, Privatsphäre und Naturnähe – bei gleichzeitig guter Anbindung.
Auf ca. 120 m² Wohnfläche verteilen sich 4,5 Zimmer, die eine flexible und familienfreundliche Raumaufteilung ermöglichen. Zwei voll ausgestattete Badezimmer sorgen für hohen Wohnkomfort. Besonders hervorzuheben ist das derzeitige Esszimmer, das sich aufgrund seiner Lage und Größe hervorragend als zusätzlicher Schlafraum oder Homeoffice eignet. Das großzügige, helle Wohnzimmer bildet das Herzstück des Hauses und grenzt direkt an den Warmwintergarten, der mit einem neuen Dach aus dem Jahr 2023 ausgestattet wurde und ganzjährig genutzt werden kann.
Das Haus ist voll unterkellert und bietet somit reichlich Stauraum sowie vielfältige Nutzungsmöglichkeiten. Für Fahrzeuge stehen zwei Garagen zur Verfügung, von denen eine mit einer praktischen Waschanlage für Autos ausgestattet ist – ein echtes Plus für Autoliebhaber.
Der Außenbereich überzeugt mit einer Terrasse und einem blickdichten Garten, der zu entspannten Stunden im Freien einlädt und viel Raum für Erholung, Spiel oder Gartenliebhaber bietet.
Dieses Einfamilienhaus in Ritterhude ist ein einmalige Gelegenheit Es vereint eine solide Bausubstanz mit einem großzügigen Grundstück und vielfältigen Nutzungsmöglichkeiten. Nach einer Modernisierung entsteht hier ein individuelles Zuhause mit Charakter – perfekt für eine kleine Familie, die sich ihr eigenes Nest schaffen möchte!
***Wohnen in bester Lage von Ritterhude – Natur, Ruhe und Komfort vereint***
27721 Ritterhude
Die vollständige Adresse der Immobilie erhalten Sie vom Anbieter.
Auf Karte anzeigen
Die vollständige Adresse der Immobilie erhalten Sie vom Anbieter.
Finanzierungszertifikat
In nur zwei Minuten zu Ihrem persönlichen Finanzierungszertifkat.
Infos
| Haustyp | Einfamilienhaus |
|---|---|
| Wohnfläche ca. | 122 m2 |
| Grundstücksfläche | 625 m2 |
| Bezugsfrei ab | nach Vereinbarung |
| Zimmer | 4,5 |
| Badezimmer | 2 |
| Garage/Stellplatz | Garage |
| Anzahl Garage/Stellplatz | 3 |
Kosten
| Kaufpreis |
259.000 € |
|---|---|
| Provision |
3,57 % inkl. 19 % MwSt. |
Finanzierungsrechner:
Kaufpreis:
600.000 €
Eigenkapital:
600.000 €
Monatliche Rate
0 €
Effektiver Jahreszins
0 %
Sollzinsbindung
10 Jahre
Bausubstanz & Energieausweis
| Baujahr | 1959 |
|---|---|
| Letzte Sanierung | 2023 |
| Bauphase | Haus fertig gestellt |
| Objektzustand | Renovierungsbedürftig |
| Qualität der Austattung | Einfach |
| Heizungsart | Zentralheizung |
| Wesentliche Energieträger | Gas |
| Energieausweis | liegt vor |
| Energieausweistyp | Bedarfsausweis |
| Energieverbrauchskennwert | 192,8 kWh/(m²*a) |
| Energieeffizienzklasse | F |
192,8
kWh/(m²*a)
Energieeffizienzklasse F
- A+
- A
- B
- C
- D
- E
- F
- G
- H
- 0
- 25
- 50
- 75
- 100
- 125
- 150
- 175
- 200
- 225
- >250
Beschreibung des Objekts
Ausstattung
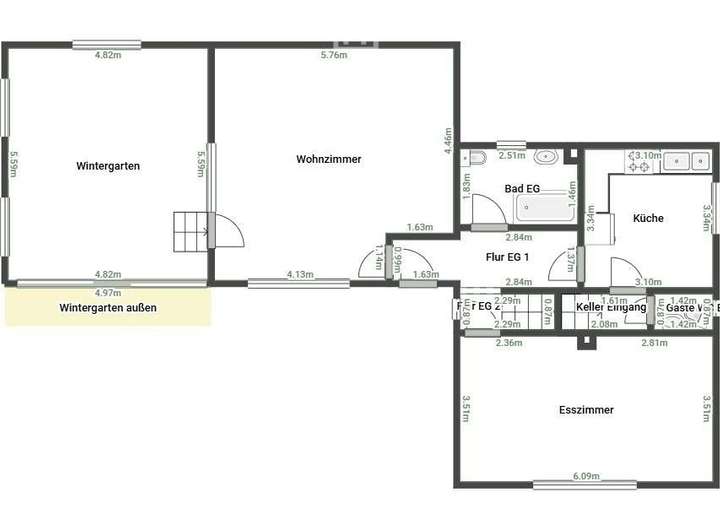
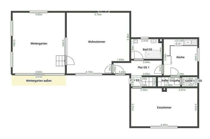
Circa 125 m² Wohn-Nutzfläche aufgeteilt in:
Erdgeschoss:
Flur
Esszimmer
Badezimmer
Küche
Gäste-WC
Wohnzimmer
Wintergarten
Obergeschoss:
Schlafzimmer
Badezimmer
kleines Zimmer
PLUS
Keller
2 Garagen
Terrasse
Garten
Lage
Das Objekt befindet sich am grünen Stadtrand von Ritterhude. Die idyllische und ruhige Gemeinde gehört zu dem Landkreis Osterholz in Niedersachsen.
Die Region besticht durch eine wunderbare Kombination aus ländlicher Ruhe und Nähe zu den urbanen Zentren Bremen und Bremerhaven. In unmittelbarer Umgebung befinden sich malerische Rad- und Wanderwege, die entlang von Flüssen und durch Wiesen führen und zu entspannten Spaziergängen einladen.
Ritterhude bietet Ihnen nicht nur Ruhe und Erholung, sondern auch eine hervorragende Anbindung an den öffentlichen Nahverkehr und die Autobahn. Schulen, Kindergärten, Einkaufsmöglichkeiten sowie Arztpraxen und Apotheken direkt im Ort sind schnell und bequem erreichbar.
Sonstige Angaben
Die in diesem Exposé enthaltenen Angaben wurden mit größter Sorgfalt zusammengestellt. Dennoch können wir keine Gewähr für die Vollständigkeit, Richtigkeit und Aktualität der bereitgestellten Informationen übernehmen. Insbesondere Angaben zu Grundrissen, Flächen, Baujahr, Ausstattung und sonstigen Details erfolgen ohne Gewähr.
Der Käufer wird daher empfohlen, alle Angaben vor Abschluss des Kaufvertrages durch eigene Untersuchungen und Besichtigungen zu überprüfen. Jegliche Haftung für Schäden, die direkt oder indirekt aus der Nutzung der im Exposé enthaltenen Informationen entstehen, ist ausgeschlossen.
Grundriss
Erdgeschoss
>
>
1. Etage
>
>
1. UG
>
>
Adresse
27721 Ritterhude
Interessante Orte
Preis- und Lageinformationen
Preistrend für Bestandsimmobilien in Ritterhude