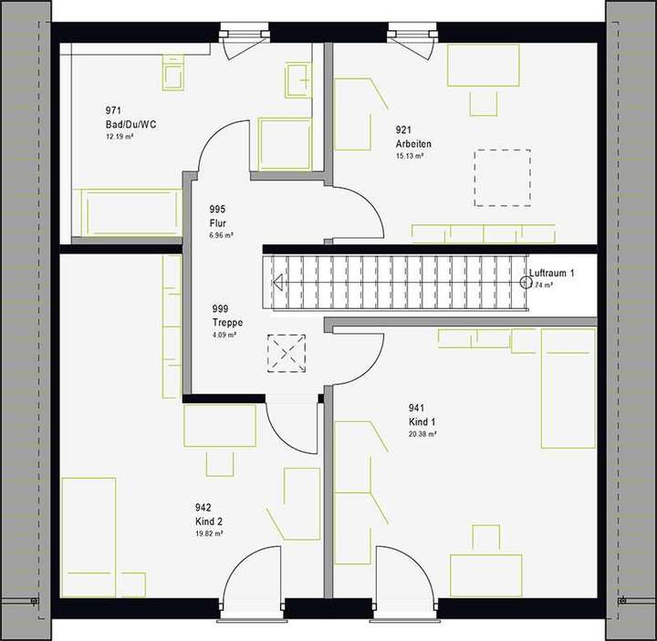
Durchdacht strukturiert und mit gerader Treppe -
Das Highlight des Einfamilienhauses LifeStyle 15.01 S ist die nahezu mittig integrierte, gerade Treppe, die beide Wohnebenen auf elegante Weise gliedert. Im Erdgeschoss ergibt sich dadurch ein einladendes Entree mit großer Diele sowie eine offene Wohn-, Ess- und Küchen-Kombination - unter dem Satteldach gruppieren sich Arbeits-, Bad- und Kinderzimmer harmonisch um den Treppenaufgang.
Einfamilienhaus mit 159 m² und einem tollen Grundriss. Ihr Zuhause in Frohburg!
04654 Frohburg
Die vollständige Adresse der Immobilie erhalten Sie vom Anbieter.
Auf Karte anzeigen
Die vollständige Adresse der Immobilie erhalten Sie vom Anbieter.
Finanzierungszertifikat
In nur zwei Minuten zu Ihrem persönlichen Finanzierungszertifkat.
Infos
| Haustyp | Einfamilienhaus |
|---|---|
| Etagenzahl | 2 |
| Wohnfläche ca. | 159 m2 |
| Grundstücksfläche | 632 m2 |
| Zimmer | 5 |
| Schlafzimmer | 1 |
| Badezimmer | 1 |
Kosten
| Kaufpreis |
485.000 € |
|---|---|
| Provision | Nein |
Finanzierungsrechner:
Kaufpreis:
600.000 €
Eigenkapital:
600.000 €
Monatliche Rate
0 €
Effektiver Jahreszins
0 %
Sollzinsbindung
10 Jahre
Bausubstanz & Energieausweis
| Baujahr | unbekannt |
|---|---|
| Bauphase | Haus in Planung (projektiert) |
| Objektzustand | Erstbezug |
| Qualität der Austattung | Gehoben |
| Heizungsart | Wärmepumpe |
Beschreibung des Objekts
Ausstattung
Bei uns entscheiden Sie!
Eigenleistung ist Eigenkapital. Beim Hausbau setzen wir deshalb auf eine flexible Bauweise, die sich durch das kostensparende Bauen mit persönlich definierbaren Eigenleistungen auszeichnet und für Sie unzählige Vorteile bietet. Dadurch lässt sich mit einem massa haus mehr Wohnkomfort realisieren, denn jedes Haus wird nach den persönlichen Wünschen unserer Baufamilien geplant. Nutzen auch Sie die Option, individuell gestaltbare Eigenleistungen beim Hausbau direkt in anrechenbares Eigenkapital umzuwandeln.
Dieses Angebot bezieht sich auf das beschriebene Einfamilienhaus in der bezugsfertigen Variante. Es beinhaltet:
- den Kaufpreis für das Grundstück
- modernes Niedrigenergiehaus
- 3-fach verglaste Wärmeschutzfenster
- Aluminium-Rollläden
- FREIRAUM-Deckenhöhe 2,75m
- modernes Haustürelement
- mineralischer Struktur-Außenputz
- Dacheindeckung in versch. Farben zur Auswahl
- Kniestockwandhöhe und Dachneigung nach Ihren Wünschen anpassbar
- Bodenplatte mit Baugrunduntersuchung und Bodengutachten
- Luft-Wasser-Wärmepumpe mit Fußbodenheizung
- integrierte Be- und Entlüftungsanlage
- Holztreppe vom Erdgeschoss in das Obergeschoss
- Elektroinstallation im Haus
- Sanitär-Rohinstallation
- Dämm- und Beplankungsmaterial inkl. Montage
- Architektenleistung (Genehmigungsplanung und Bauantrag)
- Materialien für den Innenausbau (Böden, Fliesen, Türen, Sanitärobjekte usw.)
- Innenausbau einzugsfertig (Estrich, Fußböden, Malerarbeiten usw.)
- Kran und Gerüst
- Versicherungspaket
(zzgl. Baunebenkosten sowie Ihre Sonderwünsche)
Lage
Wir bauen Ihr Traumhaus dort, wo Sie sich wohlfühlen. Auch dieses Angebot ist nicht zwingend an das zur Zeit der Anzeigenerstellung verfügbare Grundstück gebunden.
Haben Sie ein Baugrundstück zu verkaufen, sprechen Sie mich gern an! Einige unserer Baufamilien sind noch auf der Suche nach dem passenden Bauplatz - hier helfen wir selbstverständlich gern, um auch diesen Familien den Traum von den eigenen vier Wänden zu verwirklichen!
Sonstige Angaben
Frohburg liegt etwa auf halber Strecke zwischen Leipzig und Chemnitz am Übergang der Leipziger Tieflandsbucht zum Sächsischen Burgen- und Heideland, ca. 35 km südlich von Leipzig und 10 km südlich von Borna. Ideal, um hier Ihr neues Zuhause zu errichten.
Grundriss
Erdgeschoss
>
>
Dachgeschoss
>
>
Adresse
04654 Frohburg
Interessante Orte
Preis- und Lageinformationen
Preistrend für Bestandsimmobilien in Frohburg