In begehrter Wohnlage von Edewecht befindet sich dieses gepflegte Einfamilienhaus (nicht freistehend) aus dem Baujahr 1958. Die Immobilie überzeugt durch eine durchdachte Raumaufteilung, viel Platz für die ganze Familie und ein solides Fundament für individuelle Modernisierungswünsche.
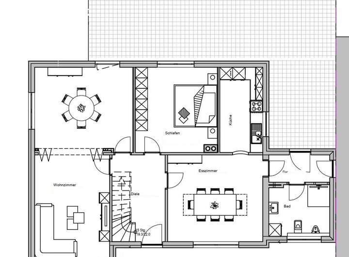
Das Haus verfügt über eine Gesamtwohnfläche von ca. 163 m², verteilt auf Erd- und Dachgeschoss. Im Erdgeschoss stehen ein großzügiges Wohnzimmer, ein separates Esszimmer, eine Küche, ein Schlafzimmer, ein Bad sowie Diele und Flur zur Verfügung. Große Fensterflächen sorgen für eine angenehme Lichtdurchflutung der Wohnräume.
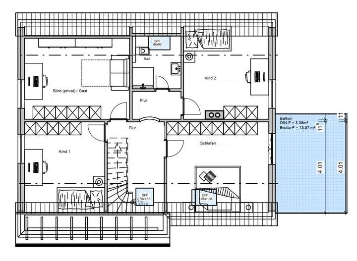
Das Dachgeschoss bietet weitere vielseitig nutzbare Räume, darunter mehrere Schlaf- bzw. Kinderzimmer, ein Büro/Gästezimmer, ein zusätzliches Bad sowie Flurbereiche. Ein Balkon ergänzt das Raumangebot und schafft einen angenehmen Rückzugsort im Außenbereich. Zusätzlich ist ein Keller mit ca. 8,6 m² Nutzfläche vorhanden.
Dieses Haus eignet sich ideal für Familien oder Käufer, die ein solides Bestandsobjekt mit Potenzial in gewachsener Wohnlage suchen.
Der großzügige Garten lädt zu entspannenden Stunden im Freien ein. Hier lässt sich eine eigene Oase der Ruhe schaffen – sei es für ein gemütliches Frühstück auf der Terrasse oder einen entspannten Abend mit Familie und Freunden. Der Garten bietet viel Platz für Kinder, Tiere und Gartenliebhaber.
Für die hier angebotene Immobilie wurde ein individuell auf das Wohnhaus zugeschnittener Sanierungsfahrplan erstellt. Dieser kann Ihnen im Zuge weiterer möglicher Sanierungsmaßnahmen im energetischen Bereich Entscheidungshilfen geben, welche förderungsfähig sind.
Gerne stellen wir auch Kontakte zu Finanzierungsspezialisten her, die individuelle Möglichkeiten für Ihre Baufinanzierung ausarbeiten.
Haben wir Ihr Interesse geweckt? Sehr gerne bringen wir Ihnen die Immobilie und das attraktive Grundstück bei einer persönlichen Besichtigung näher.
Rufen Sie noch heute an und vereinbaren Sie einen Besichtigungstermin!
6664 - Ein Zuhause zum Verwirklichen: Platz, Ruhe und Potenzial
26188 Edewecht
Die vollständige Adresse der Immobilie erhalten Sie vom Anbieter.
Auf Karte anzeigen
Die vollständige Adresse der Immobilie erhalten Sie vom Anbieter.
Finanzierungszertifikat
In nur zwei Minuten zu Ihrem persönlichen Finanzierungszertifkat.
Infos
| Haustyp | Einfamilienhaus |
|---|---|
| Wohnfläche ca. | 163 m2 |
| Nutzfläche | 8,64 m2 |
| Grundstücksfläche | 966 m2 |
| Bezugsfrei ab | Nach Vereinbarung |
| Zimmer | 7 |
| Schlafzimmer | 5 |
| Badezimmer | 2 |
Kosten
| Kaufpreis |
285.000 € |
|---|---|
| Provision |
3,57 % inkl. MwSt. vom Kaufpreis |
Finanzierungsrechner:
Kaufpreis:
600.000 €
Eigenkapital:
600.000 €
Monatliche Rate
0 €
Effektiver Jahreszins
0 %
Sollzinsbindung
10 Jahre
Bausubstanz & Energieausweis
| Baujahr | 1958 |
|---|---|
| Objektzustand | Renovierungsbedürftig |
| Wesentliche Energieträger | Gas |
| Energieausweis | liegt vor |
| Energieausweistyp | Bedarfsausweis |
| Energieverbrauchskennwert | 312,2 kWh/(m²*a) |
| Energieeffizienzklasse | H |
312,2
kWh/(m²*a)
Energieeffizienzklasse H
- A+
- A
- B
- C
- D
- E
- F
- G
- H
- 0
- 25
- 50
- 75
- 100
- 125
- 150
- 175
- 200
- 225
- >250
Beschreibung des Objekts
Ausstattung
Ausstattungsmerkmale dieses charmanten Wohnhauses sind u.a.
- zentrale und ruhige Lage
- durchdachter Grundriss
- Einbauküche
- Bad mit bodentiefer Dusche im EG
- großer Garten mit Blick ins Grüne
- überdachte Terrasse
- Balkon
- Teilunterkellert
- und, und, und...
Eine detaillierte Beschreibung würde den Rahmen sprengen, daher empfehlen wir Ihnen eine Besichtigung, sodass Sie sich selbst ein Bild von der attraktiven Immobilie machen können.
Lage
Das angebotene Objekt befindet sich in begehrter Lage von Edewecht.
Die Gemeinde Edewecht ist die südlichste Gemeinde des Landkreises Ammerland – im Nordwesten Niedersachsens gelegen - und verfügt aktuell über mehr als 23.000 Einwohner.
In der näheren Umgebung sind Haus- und Fachärzte, Apotheken oder Banken ebenso fußläufig erreicht, wie auch Einkaufsmöglichkeiten, Schulen oder Kindergarten. Auch Bushaltestellen der Buslinien, die beispielsweise die Universitätsstadt Oldenburg oder den sehr beliebten Kur- und Ferienort Bad Zwischenahn ansteuern, sind in unmittelbarer Nähe vorhanden.
Das Freizeitangebot ist beispielsweise durch das Hallen- und Freizeitbad, die Tennisanlage, Sport- und Reitvereine, den nahe gelegenen Wildenloh oder das in kürze erreichbare Bad Zwischenahner Meer sehr vielfältig.
Der sehr beliebte Kur- und Ferienort Bad Zwischenahn ist in ca. 5 Kilometern erreicht. Hier erwartet Sie ein breites Freizeitangebot: Neben einem hervorragend ausgebauten Radwandernetz, verfügt Bad Zwischenahn beispielsweise über ein Casino, einen Yachthafen, einen Golfclub, diverse Sportvereine oder den beliebten Badepark.
In etwa 15 Kilometern Entfernung liegt die Universitätsstadt Oldenburg mit seinen etwa 176.000 Einwohnern. Auch hier wird Ihnen ein vielfältiges Angebot an Freizeit und Kultur geboten, beispielsweise mit dem Staatstheater oder dem OLantis Badeland im Marschwegviertel.
Bekannt für sein hervorragendes Rad- und Wandernetz lädt das Ammerland außerdem zu Fahrradtouren und ausgiebigen Spaziergängen ein.
Der nächste Bahnhof befindet sich in Bad Zwischenahn.
Sonstige Angaben
Wichtige Hinweise:
Alle Angaben zum Objekt beruhen auf den Angaben des Eigentümers. Für die Vollständigkeit und Richtigkeit dieser Daten übernehmen wir daher grundsätzlich keine Gewähr. Irrtümer sowie Zwischenvermietung bleiben vorbehalten.
Wir bitten um Verständnis dafür, dass wir Informationen zu unseren Objekten nur erteilen, wenn Sie bei ihren Anfragen ihre vollständige Postanschrift, E-Mail und Telefonnummer angeben.
Es ist möglich, dass Sie dieses Objekt auch von anderen Maklern aus der Immobilienbörse Weser-Ems angeboten bekommen. In dem Fall wenden Sie sich an den Makler Ihres Vertrauens.
Nach GEG § 80 Abs. 4 muss im Falle des Verkaufs von Ein- und Zweifamilienhäusern ein kostenfreies, informatorisches Beratungsgespräch mit einer nach § 88 GEG ausstellungsberechtigten Person zum Energieausweis geführt werden.
Grundriss
Grundriss
>
>
Grundriss OG
>
>
Adresse
26188 Edewecht
Interessante Orte
Preis- und Lageinformationen
Preistrend für Bestandsimmobilien in Edewecht