Zum Verkauf steht ein außergewöhnliches Wohnensemble in den Heiligengeisthöfen 23 und 25 in attraktiver, innenstadtnaher Lage der nördlichen Oldenburger Innenstadt. Das Gebäudeensemble wurde im Jahr 2010 als hochwertiges Neubauquartier errichtet und überzeugt durch moderne Architektur, sehr gute Bauqualität sowie einen effizienten Energiestandard.
Wohneinheiten im Überblick:
Heiligengeisthöfe 25
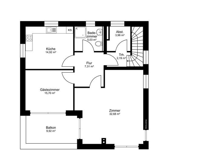
- Wohnhaus über Erdgeschoss und Obergeschoss
- Ca. 190 m² Wohnfläche, verbunden durch eine innenliegende Treppe
- Hochwertige Ausstattung und großzügige Raumhöhen von ca. 2,74 m
- Überwiegend bodentiefe Fenster mit hohem Tageslichteinfall
- Direkter Zugang zu einem ca. 200 m² großen, professionell angelegten Garten- und Außenbereich
Heiligengeisthöfe 23
- Wohnung im 2. Obergeschoss
- Ca. 81 m² Wohnfläche
- Aufgeteilt in Wohnraum, Schlafraum, Küche und Bad
- Süd-West-Balkon mit angenehmer Ausrichtung
- Zuletzt genutzt als Büro- und Gästebereich
Nutzungskonzept & Besonderheiten
- Verbindung der Einheiten über das linke Treppenhaus
- Technisch und rechtlich getrennte Wohneinheiten
Flexible Nutzungsmöglichkeiten:
- Großzügiges Familienwohnen
- Kombination aus Wohnen und Arbeiten
- Mehrgenerationenkonzept denkbar
Beide Wohneinheiten sowie der Tiefgaragenstellplatz sind rechtlich selbständig.
Wohnensemble Heiligengeisthöfe: Hochwertige Architektur, geschmackvolle Ausstattung, Blick ins Grüne
26121 Oldenburg (Oldenburg)
Die vollständige Adresse der Immobilie erhalten Sie vom Anbieter.
Auf Karte anzeigen
Die vollständige Adresse der Immobilie erhalten Sie vom Anbieter.
Finanzierungszertifikat
In nur zwei Minuten zu Ihrem persönlichen Finanzierungszertifkat.
Infos
| Haustyp | Einfamilienhaus |
|---|---|
| Etagenzahl | 3 |
| Wohnfläche ca. | 271 m2 |
| Grundstücksfläche | 290 m2 |
| Bezugsfrei ab | nach Absprache |
| Zimmer | 5 |
| Schlafzimmer | 3 |
| Badezimmer | 3 |
| Garage/Stellplatz | Tiefgarage |
| Anzahl Garage/Stellplatz | 1 |
Kosten
| Kaufpreis |
1.395.000 € |
|---|---|
| Provision |
1,785 % |
Finanzierungsrechner:
Kaufpreis:
600.000 €
Eigenkapital:
600.000 €
Monatliche Rate
0 €
Effektiver Jahreszins
0 %
Sollzinsbindung
10 Jahre
Bausubstanz & Energieausweis
| Baujahr | 2010 |
|---|---|
| Objektzustand | Neuwertig |
| Heizungsart | Blockheizkraftwerk |
| Wesentliche Energieträger | KWK fossil |
| Energieausweis | liegt vor |
| Energieausweistyp | Verbrauchsausweis |
| Energieverbrauchskennwert | 55,6 kWh/(m²*a) |
| Energieeffizienzklasse | B |
55,6
kWh/(m²*a)
Energieeffizienzklasse B
- A+
- A
- B
- C
- D
- E
- F
- G
- H
- 0
- 25
- 50
- 75
- 100
- 125
- 150
- 175
- 200
- 225
- >250
Beschreibung des Objekts
Ausstattung
Diese Immobilie überzeugt durch eine moderne, hochwertige Ausstattung sowie einen sehr guten energetischen Standard (Energieklasse B), der zeitgemäßes und nachhaltiges Wohnen ermöglicht.
- Effiziente Nahwärmeversorgung über ein zentrales Blockheizkraftwerk (Energiecontracting)
- Fußbodenheizung in sämtlichen Wohnbereichen für hohen Wohnkomfort
- Klimageräte in drei Schlafzimmern
- Photovoltaikanlage mit ca. 8,5 kWp Leistung und Speicher
- Hochwertige Elektroinstallation mit LAN- und Satellitenanschlüssen
- Videogegensprechanlagen auf allen Etagen
- Professionelle Alarmanlage mit Aufschaltung
- Elektrische Jalousien an allen Süd- und Westfenstern
- Stilvolle Einbauküche sowie hochwertige Innenausstattung
- hochwertiger Kaminofen
- exklusive Sauna
Der Außenbereich wurde mit viel Liebe zum Detail gestaltet und bietet ein hohes Maß an Privatsphäre sowie vielseitige Nutzungsmöglichkeiten.
- Ca. 200 m² großer, aufwendig angelegter Garten
- Mehrere Terrassen- und Sitzbereiche für Erholung und Geselligkeit
- Natürliche Blickabschirmung durch Hecken und gewachsenen Baumbestand
- Komfortables automatisiertes Bewässerungssystem im gesamten Garten
- Sonnig ausgerichteter Balkon im 2. Obergeschoss, angebunden an das Bewässerungssystem
Lage
Die Heiligengeisthöfe befinden sich in ruhiger und geschützter Lage innerhalb der nördlichen Innenstadt von Oldenburg. Trotz der zentralen Position ist das Wohnensemble kaum durch städtischen Verkehr beeinträchtigt und bietet ein angenehm zurückgezogenes Wohnumfeld.
Die nachhaltige Aufwertung des Quartiers wird durch mehrere städtebauliche Maßnahmen unterstrichen:
- Der neu gestaltete Erholungspark auf dem ehemaligen Finanzamtsgelände
- die geplante Umgestaltung des Pferdemarktes sowie weitere Investitionsprojekte steigern die Attraktivität und Zukunftsfähigkeit des Standortes nachhaltig.
Infrastruktur & Nahversorgung:
- Fußläufige Erreichbarkeit der Oldenburger Fußgängerzone
- Vielfältige Gastronomie, Einzelhandel und kulturelle Einrichtungen in direkter Nähe
- Schulen aller Schulformen, Ärzte und Apotheken im unmittelbaren Umfeld
- Medizinische Versorgung durch das nahegelegene Pius-Hospital
Verkehrsanbindung:
- Sehr gute Anbindung an den öffentlichen Personennahverkehr
- Kurze Wege zum Hauptbahnhof Oldenburg
- Schnelle Erreichbarkeit der Autobahnanschlüsse
Stellplätze & Besonderheiten:
- Ein besonderes Alleinstellungsmerkmal dieser Immobilie ist die genehmigte und grundbuchlich gesicherte, ebenerdige Zufahrt direkt am Haus Heiligengeisthöfe 25 mit eigenem Stellplatz und Wallbox.
- Zusätzlich gehört ein separat grundbuchlich geführter Tiefgaragenstellplatz mit Wallbox im Eigentümerbereich des Parkhauses Parkhaus Heiligengeisthöfe zum Angebot.
- Bei Interesse können bis zu 5 weitere Tiefgaragenstellplätze erworben werden
Sonstige Angaben
Der Verkäufer hat uns mit der Vermittlung oder dem Nachweis eines Käufers beauftragt.
Die Provisionsteilung erfolgt hälftig. Auf den Käufer entfällt eine Maklercourtage in Höhe von 1,5 % des Kaufpreises zzgl. USt.. Die Angaben des Angebotes werden uns von den Eigentümern oder Dritten geliefert. Eine rechtliche oder steuerrechtliche Prüfung dieser Angaben und Unterlagen haben wir nicht vorgenommen. Trotz der von uns aufgewandten Sorgfalt können wir für die Richtigkeit und Vollständigkeit des Angebotes keine Haftung übernehmen.
Das Angebot erfolgt freibleibend; Zwischenverkauf bleibt vorbehalten.
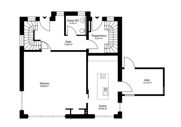
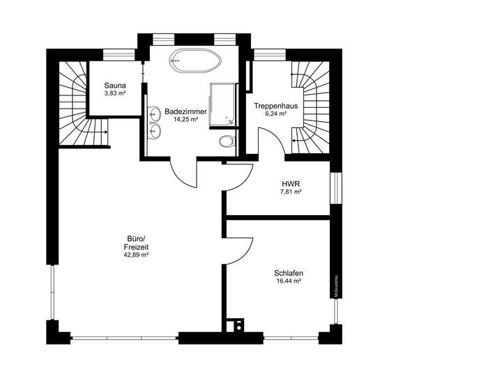
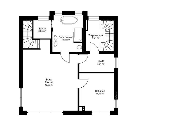
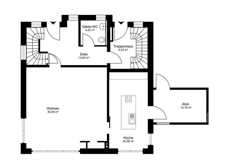
Grundriss
Grundriss EG
>
>
Grundriss 1.OG
>
>
Grundriss Wohnung
>
>
Adresse
26121 Oldenburg (Oldenburg)
Interessante Orte
Preis- und Lageinformationen
Preistrend für Bestandsimmobilien in Innenstadt