In bester, ruhiger und begehrter Wohnlage von Ober-
Erlenbach entsteht ein exklusives, architektonisch
anspruchsvolles Wohnensemble, das modernes
Wohnen mit zeitloser Bauhaus-Ästhetik vereint. Die
klaren, geradlinigen Formen und die Verwendung
hochwertiger Materialien verleihen den Gebäuden eine
elegante und moderne Ausstrahlung – perfekt für
anspruchsvolle Bewohner mit Sinn für Design und
Komfort.
Die großzügige Stadtvilla im Bauhaus-Stil bietet zwei
Wohneinheiten, mit einer durchdachten,
Raumaufteilung, die viel Flexibilität und ein offenes
Wohngefühl garantiert:
DOPPELHAUSHÄLFTE 1:
Wohnfläche ca. 240 m² mit
ca. 384 m² Grundstücksanteil - zu einem Kaufpreis
von 1.725.000 EUR
Erdgeschoss:
Großzügiger Wohn-Essbereich mit offener Küche, der das
Herzstück dieser Ebene bildet, mit
direktem Zugang zu Terrasse und Garten. Ergänzt wird diese
Ebene durch einen Hauswirtschaftsraum (HWR), einen
Hausanschlussraum (HAR) und ein Gäste-WC.
Obergeschoss:
Drei helle und vielseitig nutzbare Zimmer, ideal als
Schlafzimmer und/oder Kinderzimmer, sowie zwei
moderne Badezimmer. Eine Galerie bietet zudem eine
sonnige Fläche als Homeoffice.
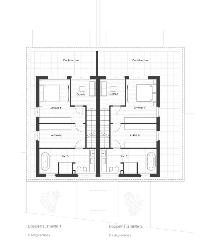
Dachgeschoss:
Penthouseähnliche Masteretage mit einer dreiseitig
umlaufenden Dachterrasse, einem großzügigen
Elternschlafzimmer, einer eleganten Ankleide und
einem luxuriösen Bad – ein Rückzugsort mit exklusivem Flair.
DOPPELHAUSHÄLFTE 2:
Wohnfläche 263 m² mit ca.
460 m² Grundstücksanteil - zu einem Kaufpreis von 1.890.000 EUR
Die etwas größere Wohneinheit bietet neben der, wie
zuvor beschrieben Aufteilung, ein zusätzliches
Zimmer im Obergeschoss. Auch hier steht ein
großzügiger Gartenbereich zur Verfügung.
Jede Wohneinheit verfügt über eine Garage bzw.
Doppelgarage und modernste Haustechnik, die
höchsten Wohnkomfort garantiert.
Die Immobilie wird im KfW-Effizienzhaus-Standard 50
errichtet und erfüllt damit besonders strenge Vorgaben
hinsichtlich Wärmedämmung und Energieverbrauch.
Die Beheizung erfolgt über eine moderne
Wärmepumpe, die effizient und umweltfreundlich
arbeitet - für dauerhaft niedrige Energiekosten und ein
zukunftssicheres Zuhause.
Dieses exklusive Projekt verbindet großzügige
Raumkonzepte, edle Ausstattung und eine exklusive
Lage in Ober-Erlenbach – perfekt für alle, die sich ein
zeitlos modernes und hochwertiges Zuhause
wünschen. Starten Sie in Ihr neues Traumhaus!
Bauhaus² - Exklusives Neubauprojekt in ruhiger Lage! *Fertigstellung Sommer 2026*
61352 Bad Homburg vor der Höhe
Die vollständige Adresse der Immobilie erhalten Sie vom Anbieter.
Auf Karte anzeigen
Die vollständige Adresse der Immobilie erhalten Sie vom Anbieter.
Finanzierungszertifikat
In nur zwei Minuten zu Ihrem persönlichen Finanzierungszertifkat.
Infos
| Wohnfläche ca. | 240 m2 |
|---|---|
| Grundstücksfläche | 384 m2 |
| Zimmer | 6 |
| Badezimmer | 3 |
| Garage/Stellplatz | Garage |
Kosten
| Kaufpreis |
1.725.000 € |
|---|---|
| Provision |
2,38% Die Käufercourtage in Höhe von 2,38 % auf den Kaufpreis inkl. 19% Mehrwertsteuer ist bei notariellem Vertragsabschluss verdient und fällig. Wir haben einen entgeltpflichtigen Maklervertrag über den gleichen Provisionssatz mit dem Verkäufer geschlossen (Maklervertrag mit beiden Seiten gem. § 656 c BGB). |
Finanzierungsrechner:
Kaufpreis:
600.000 €
Eigenkapital:
600.000 €
Monatliche Rate
0 €
Effektiver Jahreszins
0 %
Sollzinsbindung
10 Jahre
Bausubstanz & Energieausweis
| Baujahr | 2026 |
|---|---|
| Bauphase | Haus im Bau |
| Objektzustand | Erstbezug |
| Qualität der Austattung | Luxus |
| Heizungsart | Wärmepumpe |
Beschreibung des Objekts
Ausstattung
- Bauausführung in KfW-Effizienzhaus-Standard 50
- Moderne Wärmepumpentechnik - umweltfreundlich &
kostensparend
- Echtholzparkett in großzügigen Dielenformaten
- Großformatige Feinsteinzeug- oder Natursteinfliesen
- Bodentiefe Fenster mit 3-fach-Verglasung und
elektrischen Rollläden oder Raffstores
- Design-Innentüren mit hochwertigen Beschlägen
- Panorama-Kamin auf Wunsch
- Marken-Sanitär von Antoniolupi, Philippe Starck
Duravit oder vergleichbar
- Walk-in-Duschen
- Fußbodenheizung in allen Wohnräumen
- Solar-/Photovoltaikanlage vorbereitet
- Smarthome-Steuerung für Licht, Heizung und
Sicherheit
- Gepflegte Gartenanlage mit Terrasse, Rollrasen, etc.
- Garage bzw. Doppelgarage mit elektrischem Tor
Lage
Das Neubauprojekt liegt in einer der beliebtesten
Wohngegenden von Ober-Erlenbach, einem grünen
und familienfreundlichen Teil von Bad Homburg vor der
Höhe. Eingebettet in eine ruhige, gepflegte
Anwohnerstraße, genießt man hier ein Höchstmaß an
Ruhe und Sicherheit – fernab vom Durchgangsverkehr
und dennoch hervorragend angebunden.
Nur wenige Minuten trennen Sie von weitläufigen
Feldern, sanften Hügeln und malerischen
Spazierwegen, die zu sportlichen Aktivitäten oder
entspannten Ausflügen ins Grüne einladen.
Gleichzeitig erreichen Sie in kürzester Zeit die
exklusive Innenstadt von Bad Homburg mit ihren
eleganten Boutiquen, erstklassigen Restaurants, dem
traditionsreichen Kurpark und vielfältigen kulturellen
Angeboten.
Die Infrastruktur lässt keine Wünsche offen:
Einkaufsmöglichkeiten, Bäckereien, eine Apotheke
sowie medizinische Versorgung liegen im nahen
Umfeld. Familien profitieren von nahegelegenen
Kindertagesstätten und Schulen, während Sport- und
Freizeiteinrichtungen ebenfalls im direkten Umfeld
vorhanden sind. Ergänzt wird das Ganze durch eine
schnelle Anbindungen an internationale
Bildungseinrichtungen.
Über den nahen Anschluss an das Rhein-Main-
Verkehrsnetz erreichen Sie die Frankfurter Innenstadt
und den Flughafen Frankfurt/Main in weniger als 25
Minuten – ideal für Geschäftsreisende und
Kosmopoliten, die die Ruhe eines gehobenen
Wohnumfeldes mit urbaner Nähe verbinden möchten.
Sonstige Angaben
Dank des weit fortgeschrittenen Bauzustands und der kurzen Fertigstellungszeit (Sommer 2026) fallen für Käufer nahezu keine Zwischenfinanzierungskosten an – ein erheblicher finanzieller Vorteil.
Zum aktuellen Zeitpunkt des Bauvorhabens besteht noch die Möglichkeit, bei der Auswahl der Ausstattung individuelle Wünsche zu berücksichtigen und Ihr neues Zuhause persönlich mitzugestalten.
Nutzen Sie die Gelegenheit, sich bereits jetzt einen
persönlichen Eindruck von der Lage und den
besonderen Vorzügen des Grundstücks zu
verschaffen.
Vor Ort erleben Sie nicht nur die ruhige und begehrte
Wohnlage, sondern auch den Ausblick, die
Himmelsausrichtung und die direkte Umgebung – all
das, was Pläne allein nicht vermitteln können. Sichern
Sie sich schon jetzt Ihre exklusive Doppelhaushälfte.
Grundriss
EG
>
>
OG
>
>
DG
>
>
Adresse
61352 Bad Homburg vor der Höhe
Interessante Orte
Preis- und Lageinformationen
Preistrend für Bestandsimmobilien in Bad Homburg vor der Höhe