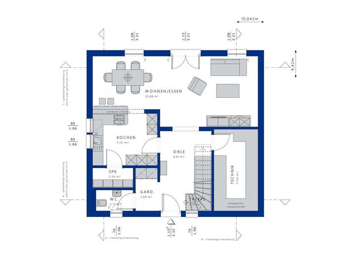
Das projektiert Fertighaus EVOLUTION 154 von Bien-Zenker steht für Vielfalt und Individualität in Architektur und Design. Mit einer großzügigen Wohnfläche von 154 m² und einer durchdachten Raumaufteilung bietet es Platz für die ganze Familie. Der attraktive Eingangsbereich führt Sie direkt in ein lichtdurchflutetes Wohn- und Esszimmer, das sich über die gesamte Hauslänge erstreckt und somit eine einladende Atmosphäre schafft. Der offene Übergang zur großen, modernen Küche, ergänzt durch eine separate Speisekammer, eröffnet vielfältige Nutzungsmöglichkeiten - ob für gemeinsame Kochabende oder gesellige Stunden mit Freunden und Familie. Die drei Schlafzimmer, die im Obergeschoss liegen, bieten Ihnen Rückzugsmöglichkeiten, während das großzügige Wellness-Bad den perfekten Ort zur Entspannung schafft. Das komplette Konzept des EVOLUTION 154 ist darauf ausgelegt, Ihre individuellen Wünsche und Vorstellungen zu realisieren und ein Zuhause zu schaffen, das sowohl funktional als auch ästhetisch ansprechend ist.
Bei Bien-Zenker setzen wir auf eine stressfreie Bauweise und bieten Ihnen die Ausbaustufe "Schlüsselfertig" an. Wir übernehmen den kompletten Hausbau, vom Fundament bis zur letzten Schraube, sodass Sie einfach einziehen können, sobald alles fertig ist. Diese umfassende Betreuung spart Ihnen nicht nur Zeit und Nerven, sondern ermöglicht es Ihnen auch, sich ganz auf die Vorfreude auf Ihr neues Zuhause zu konzentrieren.
Die Marke Bien-Zenker steht für mehr als nur ein Haus. Es ist Ihr Zuhause, es ist Ankommen, es ist Familie. Mit über 80.000 gebauten Häusern und einer mehr als 115-jährigen Erfolgsgeschichte zählt Bien-Zenker zu den größten und erfahrensten Fertighausanbietern in Deutschland. Wir legen großen Wert auf individuelle Beratung und unterstützen jede Baufamilie kompetent bis sie den Schlüssel zu ihrem eigenen Heim in der Hand halten. Unsere wohngesunden Materialien und zukunftsweisenden Standards machen jedes Bien-Zenker Haus bereit für die Zukunft.
Grundrisse und Abbildungen können Extras zeigen. Flächenangaben nach DIN 277.
Moderne Stadtvilla
29358 Eicklingen
Die vollständige Adresse der Immobilie erhalten Sie vom Anbieter.
Auf Karte anzeigen
Die vollständige Adresse der Immobilie erhalten Sie vom Anbieter.
Finanzierungszertifikat
In nur zwei Minuten zu Ihrem persönlichen Finanzierungszertifkat.
Infos
| Haustyp | Einfamilienhaus |
|---|---|
| Etagenzahl | 1 |
| Wohnfläche ca. | 154 m2 |
| Grundstücksfläche | 1.520 m2 |
| Zimmer | 7 |
| Schlafzimmer | 3 |
| Badezimmer | 1 |
Kosten
| Kaufpreis |
545.800 € |
|---|---|
| Provision | Nein |
Finanzierungsrechner:
Kaufpreis:
600.000 €
Eigenkapital:
600.000 €
Monatliche Rate
0 €
Effektiver Jahreszins
0 %
Sollzinsbindung
10 Jahre
Bausubstanz & Energieausweis
| Baujahr | 2027 |
|---|---|
| Bauphase | Haus in Planung (projektiert) |
| Qualität der Austattung | Gehoben |
| Heizungsart | Wärmepumpe |
Beschreibung des Objekts
Ausstattung
Das EVOLUTION 154 begeistert nicht nur durch seine durchdachte Raumaufteilung, sondern auch durch exklusive Komfortdetails, die das Wohnen zu einem besonderen Erlebnis machen. Die großzügige Terrasse lädt dazu ein, die warmen Sonnenstrahlen zu genießen, während der weitläufige Garten ausreichend Platz für kreative Gestaltungen und entspannende Stunden im Freien bietet. Ob Grillabende mit Freunden oder ruhige Momente im eigenen grünen Paradies - hier finden Sie Ihren persönlichen Rückzugsort. Das lichtdurchflutete Wohn- und Esszimmer schafft eine harmonische Verbindung zwischen Innen- und Außenbereich und lässt Ihnen viel Raum für individuelle Einrichtungsideen und stimmungsvolle Akzente.
Im Inneren des Hauses erwartet Sie eine Kombination aus Funktionalität und Stil. Hochwertige Materialien und moderne Ausstattungsdetails sorgen für ein angenehmes Wohnklima. Die separate Speisekammer in der Küche ist nicht nur praktisch, sondern bietet auch zusätzlichen Stauraum für Ihre Küchenutensilien. Die Schlafzimmer sind so konzipiert, dass sie sowohl Ruhe als auch Privatsphäre bieten, während das große Wellness-Bad im Obergeschoss mit modernen Armaturen und einer einladenden Atmosphäre zum Entspannen einlädt. Hier können Sie den Stress des Alltags hinter sich lassen und neue Energie tanken.
Die Entscheidung für die Ausbaustufe "Schlüsselfertig" bedeutet für Sie maximalen Komfort und minimalen Aufwand. Im Preis sind alle Leistungen bis zum Einzug enthalten - vom Rohbau über den Innenausbau bis hin zur finalen Abnahme. So können Sie sich entspannt zurücklehnen, während wir für Sie die letzten Handgriffe erledigen. Diese transparente und stressfreie Vorgehensweise ermöglicht es Ihnen, sich auf die Vorfreude auf Ihr neues Zuhause zu konzentrieren, ohne sich um Baustellenprobleme kümmern zu müssen.
Lage
Eicklingen ist ein idyllischer Ort, der Ihnen eine hervorragende Lebensqualität bietet. In der Umgebung finden Sie zahlreiche Möglichkeiten für Bildung, Gesundheit, Einkauf und Freizeit. Verschiedene Schulen und Kindergärten in der Nähe gewährleisten eine umfassende Betreuung Ihrer Kinder und eine gute Ausbildung. Für medizinische Versorgung ist ebenfalls gesorgt, mit mehreren Arztpraxen und einem nahegelegenen Krankenhaus. Einkaufsmöglichkeiten sind in kurzer Distanz erreichbar und bieten Ihnen alles, was Sie für den täglichen Bedarf benötigen.
Die Anbindung an den öffentlichen Nahverkehr ist ausgezeichnet, sodass Sie bequem in die umliegenden Städte gelangen können. Die Autobahnauffahrt ist ebenfalls nur wenige Minuten entfernt, was Ihnen eine schnelle Erreichbarkeit von größeren Städten und deren Angeboten ermöglicht. Diese zentrale Lage kombiniert ländlichen Charme mit urbaner Anbindung und sorgt dafür, dass Sie sowohl die Vorzüge der Natur als auch die Annehmlichkeiten des städtischen Lebens genießen können.
Adresse
29358 Eicklingen
Interessante Orte
Preis- und Lageinformationen
Preistrend für Bestandsimmobilien in Eicklingen