FEELS LIKE HOME. LOOKS LIKE YOU.
Ein Zuhause, das deine Handschrift trägt – individuell, durchdacht und bezahlbar.
Dein Traum vom Eigenheim ist näher, als du denkst.
Warum warten?
START YOUR HOME JOURNEY TODAY.
NEUBAU Ihr Schwabenhaus in HH Niendorf im Grünen
22455 Hamburg
Die vollständige Adresse der Immobilie erhalten Sie vom Anbieter.
Auf Karte anzeigen
Die vollständige Adresse der Immobilie erhalten Sie vom Anbieter.
Finanzierungszertifikat
In nur zwei Minuten zu Ihrem persönlichen Finanzierungszertifkat.
Infos
| Haustyp | Einfamilienhaus |
|---|---|
| Wohnfläche ca. | 150 m2 |
| Nutzfläche | 0 m2 |
| Grundstücksfläche | 973 m2 |
| Zimmer | 4 |
| Schlafzimmer | 3 |
| Badezimmer | 1 |
| Anzahl Garage/Stellplatz | 0 |
Kosten
| Kaufpreis |
1.087.600 € |
|---|---|
| Provision | Nein |
Finanzierungsrechner:
Kaufpreis:
600.000 €
Eigenkapital:
600.000 €
Monatliche Rate
0 €
Effektiver Jahreszins
0 %
Sollzinsbindung
10 Jahre
Bausubstanz & Energieausweis
| Baujahr | 2026 |
|---|---|
| Bauphase | Haus in Planung (projektiert) |
| Qualität der Austattung | Gehoben |
| Heizungsart | Wärmepumpe |
Beschreibung des Objekts
Ausstattung
THINK FAST-VOLLENDET PLUS – Bereit für dein Finish.
- Technik, Heizung & Sanitärinstallation sind drin – du kümmerst dich nur um den Feinschliff
- Das Plus mit hochwertigen Sanitärobjekten und Fliesen
- Streichen, Böden verlegen, Türen setzen – du machst, was du willst
- Kein Stress mit Rohbau oder Technik – Fokus nur noch auf den Feinschliff
- Smartes Sparpotenzial – fertig gebaut, individuell finalisiert
- Ideal für Macher mit Anspruch – hochwertige Basis für deinen Stil
Für alle, die mitgestalten wollen – ohne auf Komfort zu verzichten.
Lage
Bauen sie Ihr Schwabenhaus im Grünen von HH-Niendorf
Sonstige Angaben
Das Haus ist projektiert inkl. Grundstück. Das Grundstück wird in Kommission angeboten bzw. direkt von Dritten verkauft. Daher kann der genannte Preis aufgrund aktueller Marktsituationen schwanken.
Die Bauabwicklung kann kurzfristig nach Grundstückserwerb begonnen werden. Bilder zeigen möglicherweise Sonderausstattungen, die auf Wunsch gegen Aufspreis zusätzlich angeboten werden können.
Erhalte in deinem persönlichen Beratungsgespräch kostenlos alle wichtigen Informationen zu diesem Projekt, insbesondere: Lage und Bebauungsmöglichkeiten des Baugrundstücks, Baukosten-Kalkulation, Finanzierungs- u. Förderungsmöglichkeiten sowie detaillierte Architektur- uund Grundrissplanung.
Wir freuen uns darauf, dich beraten zu dürfen!
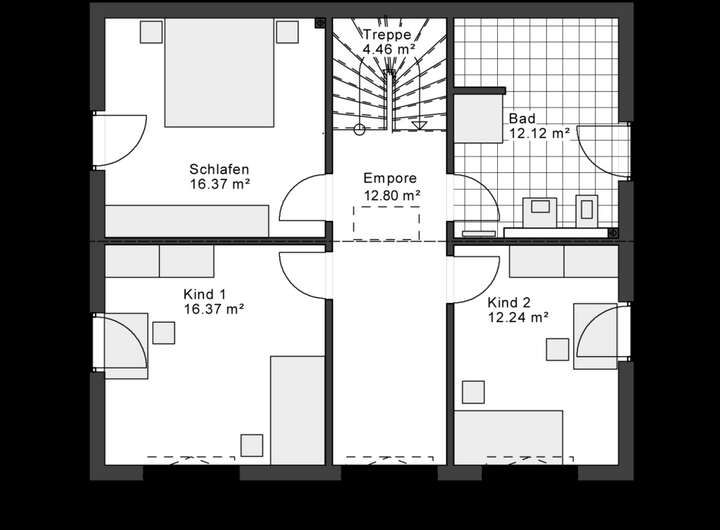
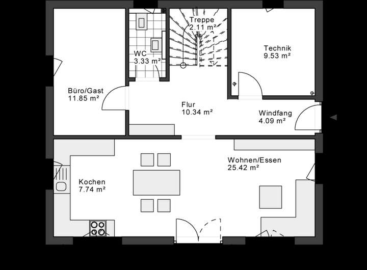
Grundriss
Grundriss EG
>
>
Grundriss OG
>
>
Adresse
22455 Hamburg
Interessante Orte
Preis- und Lageinformationen
Preistrend für Bestandsimmobilien in Niendorf