Das angebotene Einfamilienhaus wurde im Jahr 1972 in konventioneller Massivbauweise errichtet und befindet sich in einer gefragten Wohnlage von Hamburg-Eißendorf. Die Immobilie liegt auf einem großzügigen, ca. 1.376 m² großen Hanggrundstück und bietet ein hohes Maß an Privatsphäre sowie vielseitige Nutzungsmöglichkeiten.
Das Haus erstreckt sich über zwei Etagen und verfügt über insgesamt fünf Zimmer, darunter drei Schlafzimmer, ein Büro sowie ein großzügiger Wohn- und Essbereich. Zur Ausstattung zählen eine Einbauküche mit Markengeräten, ein Vollbad mit separater Dusche, ein Duschbad mit separatem WC, ein Gäste-WC, großzügige Abstellflächen, zwei Garagenstellplätze, eine Süd-Loggia sowie eine große Süd-Terrasse.
Ein besonderes architektonisches Merkmal ist die durchdachte Raumaufteilung: Die Schlafräume befinden sich überwiegend im Erdgeschoss, während sich der Wohn- und Essbereich, die Küche sowie der Masterbedroom mit Bad en suite im Obergeschoss befinden. Diese Anordnung schafft eine klare Trennung zwischen Wohn- und Arbeitsbereichen.
Über bodentiefe Glastüren gelangt man in den Eingangsbereich mit ausreichend Platz für eine Garderobe. Von hier aus führt ein großzügiger Flur zu sämtlichen Räumen des Erdgeschosses. Eine massive Holztreppe verbindet das Erdgeschoss mit dem Obergeschoss.
Linker Hand befindet sich ein großzügiges Zimmer, das derzeit als Büro genutzt wird. Der Raum erstreckt sich über zwei Ebenen, verfügt über einen Kamin mit Heizkassette und bietet direkten Zugang zur ca. 80 m² großen, teils überdachten und nach Süden ausgerichteten Terrasse.
Rechts vom Flur liegen zwei weitere Zimmer, die sich ideal als Kinder-, Gäste- oder Arbeitszimmer eignen. Am Ende des Flurs befindet sich ein Duschbad mit separatem WC. Daneben liegen der Heizungs- und Hauswirtschaftsraum sowie weitere Abstellräume mit ausreichend Stauraum.
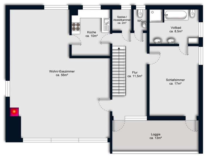
Über die Holztreppe gelangt man in das Obergeschoss. Hier befinden sich der großzügige Wohn- und Essbereich mit Kachelofen, die Küche, der Masterbedroom mit Bad en suite, ein Gäste-WC sowie ein weiterer Abstellraum/Speisekammer.
Rechts vom Flur liegt der Masterbedroom mit einem verspiegelten Einbauschrank sowie Zugang zur ca. 13 m² großen Süd-Loggia. Diese ist ebenfalls vom Flur aus erreichbar und bietet Platz für eine Sitzecke oder Sonnenliegen sowie einen geschützten Blick ins Grüne. Angeschlossen ist ein helles, grün-weiß gefliestes Vollbad mit separater Dusche, zwei Waschbecken, einem weiteren verspiegelten Einbauschrank sowie einem Fenster, das für gute natürliche Belichtung sorgt.
Links vom Flur befindet sich die Einbauküche aus ökologisch nachhaltigem Birkenholz, ausgestattet mit Markengeräten und einer Granitarbeitsplatte. Ein großes Fenster eröffnet einen schönen Blick in den Hintergarten. Küchenrückwand und Bodenfliesen sind aus dem gleichen Granit gefertigt wie die Arbeitsplatte und verleihen dem Raum ein harmonisches und hochwertiges Gesamtbild.
An die Küche schließt sich der großzügige Wohn- und Essbereich an. Durch die großen Fensterfronten auf der Nord-, Süd- und Westseite genießt man einen beeindruckenden Blick in die umliegende Natur und den eingewachsenen Garten. Der ca. 56 m² große Wohn- und Essbereich bildet das Herzstück des Hauses. Die ruhige Lage am Wald bietet ein hohes Maß an Privatsphäre. Der weiß geflieste Kachelofen sorgt insbesondere in den Wintermonaten für eine behagliche Atmosphäre.
Die große Süd-Terrasse bietet ausreichend Platz für eine großzügige Sitzgruppe und Sonnenliegen.......
************************************************************************************************************************
DIE VOLLSTÄNDIGE BESCHREIBUNG DIESES OBJEKTS FINDEN SIE IN UNSEREM EXPOSÉ, WELCHES WIR IHNEN AUF NACHFRAGE GERN ZUSENDEN.
Großzügiges Einfamilienhaus in ruhiger Hanglage in Hamburg-Eißendorf mit abteilbarem Baugrundstück
21075 Hamburg
Die vollständige Adresse der Immobilie erhalten Sie vom Anbieter.
Auf Karte anzeigen
Die vollständige Adresse der Immobilie erhalten Sie vom Anbieter.
Finanzierungszertifikat
In nur zwei Minuten zu Ihrem persönlichen Finanzierungszertifkat.
Infos
| Haustyp | Einfamilienhaus |
|---|---|
| Etagenzahl | 2 |
| Wohnfläche ca. | 190 m2 |
| Nutzfläche | 24 m2 |
| Grundstücksfläche | 1.376 m2 |
| Zimmer | 5 |
| Schlafzimmer | 3 |
| Badezimmer | 2 |
| Garage/Stellplatz | Garage |
| Anzahl Garage/Stellplatz | 2 |
Kosten
| Kaufpreis |
819.000 € |
|---|---|
| Provision |
3,13% vom Netto-Verkaufspreis |
Finanzierungsrechner:
Kaufpreis:
600.000 €
Eigenkapital:
600.000 €
Monatliche Rate
0 €
Effektiver Jahreszins
0 %
Sollzinsbindung
10 Jahre
Bausubstanz & Energieausweis
| Baujahr | 1972 |
|---|---|
| Objektzustand | Gepflegt |
| Heizungsart | Gas-Heizung |
| Wesentliche Energieträger | Gas |
| Energieausweis | liegt vor |
| Energieausweistyp | Bedarfsausweis |
| Energieverbrauchskennwert | 215,8 kWh/(m²*a) |
| Energieeffizienzklasse | G |
215,8
kWh/(m²*a)
Energieeffizienzklasse G
- A+
- A
- B
- C
- D
- E
- F
- G
- H
- 0
- 25
- 50
- 75
- 100
- 125
- 150
- 175
- 200
- 225
- >250
Beschreibung des Objekts
Ausstattung
Ausstattung:
• Hochwertiger Parkettboden
• Kachelofen
• Kamin
• Außenkamin
• Hochwertige Einbauküche mit Markengeräten und edler Granitausstattung
• Vollbad mit separater Dusche
• Zusätzliches Duschbad
• Gäste-WC
• Außen-Lastenaufzug mit Bergstation
• Massives Gartenhaus
• Loggia
• Zwei Garagenstellplätze
• Zwei Außenstellplätze
• Großzügige Südterrasse
• Große elektrische Markise
• Außenstrahler auf der Terrasse
Lage
Die Immobilie befindet sich in einem ruhigen und familienfreundlichen Wohnumfeld im Hamburger Stadtteil Eißendorf. Das gewachsene Wohngebiet ist geprägt von Ein- und Mehrfamilienhäusern sowie zahlreichen Grünflächen und bietet ideale Bedingungen für Familien, die naturnah wohnen und gleichzeitig von einer guten städtischen Infrastruktur profitieren möchten.
Einkaufsmöglichkeiten für den täglichen Bedarf, Supermärkte, Bäckereien, Apotheken sowie weitere Dienstleister sind in kurzer Zeit erreichbar. Ergänzt wird das Angebot durch das Phoenix-Center in Hamburg-Harburg, eines der größten Einkaufszentren im Hamburger Süden, das mit einer Vielzahl an Geschäften, Restaurants, Cafés und Serviceangeboten eine komfortable und vielseitige Versorgung ermöglicht.
Familien profitieren zudem von der Nähe zu Kindergärten, Grundschulen und weiterführenden Schulen, die sich im näheren Umfeld befinden und gut erreichbar sind. Zahlreiche Spielplätze, Sporteinrichtungen sowie Grün- und Naherholungsflächen bieten vielfältige Freizeitmöglichkeiten für Kinder und Erwachsene.
Ein besonderes Plus stellt der Harburger Wochenmarkt auf dem Sand dar, der zu den größten und beliebtesten Wochenmärkten Hamburgs zählt. Mehrmals wöchentlich werden hier frische Lebensmittel, regionale Produkte, Blumen und Spezialitäten angeboten. Weitere Wochenmärkte in den angrenzenden Stadtteilen ergänzen das Angebot und sorgen für eine hohe Wohn- und Lebensqualität.
Die Verkehrsanbindung ist sowohl für den Individualverkehr als auch für den öffentlichen Nahverkehr hervorragend. Die Autobahn A7, Anschlussstelle Hamburg-Heimfeld, sowie Marmstorf sind in wenigen Minuten erreichbar und gewährleisten eine schnelle Verbindung in Richtung Hamburger Innenstadt sowie in den Norden und Süden. Über das nahegelegene Horster Dreieck besteht zudem eine sehr gute Anbindung an die Autobahn A1 in Richtung Bremen, Lübeck und in das weitere Umland.
Auch der öffentliche Personennahverkehr ist optimal ausgebaut. Nahegelegene S-Bahn-Stationen bieten Anschluss an die Linien S3 und S5, mit direkter Verbindung in die Hamburger Innenstadt, zum Hauptbahnhof, nach Altona sowie in Richtung Stade. Mehrere Buslinien ergänzen das Verkehrsangebot und sorgen für eine flexible Mobilität innerhalb des Stadtteils.
Insgesamt überzeugt die Lage durch eine gelungene Kombination aus ruhigem, familienfreundlichem Wohnen, sehr guter Infrastruktur und der unmittelbaren Nähe zur Hamburger Innenstadt.
Grundriss
Untergeschoss
>
>
Grundriss OG neu (2)
>
>
Adresse
21075 Hamburg
Interessante Orte
Preis- und Lageinformationen
Preistrend für Bestandsimmobilien in Eißendorf