Diese außergewöhnlich großzügige Stadtvilla bietet ein Wohngefühl, das sich deutlich von vergleichbaren Immobilien abhebt. Mit 205 m² Wohnfläche, einem ganzjährig nutzbaren, beheizten Wintergarten sowie einem überdurchschnittlich großen Grundstück vereint sie Raum, Qualität und Privatsphäre auf hohem Niveau.
Bereits beim Betreten des Hauses wird die Großzügigkeit des Grundrisses spürbar. Der offen gestaltete Wohn- und Essbereich bildet das Herzstück des Hauses und wird durch den Wintergarten harmonisch erweitert. Großzügige Glasflächen sorgen für viel Licht und schaffen eine fließende Verbindung zwischen Innen- und Außenraum. Das Ergebnis ist ein offenes, zugleich sehr wohnliches Raumgefühl, das sowohl im Alltag als auch bei Gästen überzeugt.
Im direkten Vergleich zu Stadtvillen gleicher Bauart verfügt die Immobilie über ca. 15 % zusätzliche Wohnfläche, was sich nicht nur rechnerisch, sondern vor allem im tatsächlichen Wohngefühl bemerkbar macht. Der Wintergarten ist vollständig in die Wohnfläche integriert, beheizt und ganzjährig nutzbar - ein echter Mehrwert, der den Wohnbereich deutlich aufwertet.
Auch das Grundstück bietet mehr Abstand zu den Nachbarhäusern und damit ein hohes Maß an Privatsphäre. Garten, Terrasse und Wohnräume greifen harmonisch ineinander und schaffen vielfältige Nutzungsmöglichkeiten für Familienleben, Homeoffice und Erholung.
Die Ausstattung ist hochwertig und durchdacht. Fußbodenheizung, Kamin, Garage sowie zwei zusätzliche Stellplätze unterstreichen den qualitativen Anspruch der Immobilie. Die Haus ist gepflegt, erforderliche Instandhaltungsmaßnahmen wurden kontinuierlich durchgeführt.
Diese Immobilie richtet sich an Käufer, die nicht nur Quadratmeter vergleichen, sondern Wert auf Großzügigkeit, Wohnqualität und langfristige Perspektive legen. Ein Haus, das Raum für Familie, Alltag und Zukunft bietet - und in dieser Kombination nur selten verfügbar ist.
VON PRIVAT: Außergewöhnlich großzügige XXL-Stadtvilla mit 205 m² Wohnfläche & Wintergarten
61118 Bad Vilbel
Die vollständige Adresse der Immobilie erhalten Sie vom Anbieter.
Auf Karte anzeigen
Die vollständige Adresse der Immobilie erhalten Sie vom Anbieter.
Finanzierungszertifikat
In nur zwei Minuten zu Ihrem persönlichen Finanzierungszertifkat.
Infos
| Haustyp | Doppelhaushaelfte |
|---|---|
| Etagenzahl | 3 |
| Wohnfläche ca. | 205 m2 |
| Nutzfläche | 70 m2 |
| Grundstücksfläche | 328 m2 |
| Bezugsfrei ab | nach Absprache |
| Zimmer | 7 |
| Badezimmer | 3 |
| Garage/Stellplatz | Garage |
| Anzahl Garage/Stellplatz | 1 |
Kosten
| Kaufpreis |
1.090.000 € |
|---|---|
| Provision | Nein |
Finanzierungsrechner:
Kaufpreis:
600.000 €
Eigenkapital:
600.000 €
Monatliche Rate
0 €
Effektiver Jahreszins
0 %
Sollzinsbindung
10 Jahre
Bausubstanz & Energieausweis
| Baujahr | 2000 |
|---|---|
| Bauphase | Haus fertig gestellt |
| Objektzustand | Gepflegt |
| Wesentliche Energieträger | Gas |
| Energieausweis | liegt vor |
| Energieausweistyp | Verbrauchsausweis |
| Energieverbrauchskennwert | 74,5 kWh/(m²*a) |
| Energieeffizienzklasse | B |
74,5
kWh/(m²*a)
Energieeffizienzklasse B
- A+
- A
- B
- C
- D
- E
- F
- G
- H
- 0
- 25
- 50
- 75
- 100
- 125
- 150
- 175
- 200
- 225
- >250
Beschreibung des Objekts
Ausstattung
Balkon, Terrasse, Wintergarten, Garten, Keller, Vollbad, Duschbad, Einbauküche, Gäste-WC, Kamin, Parkett, Fliesen
Bemerkungen:
Highlights auf einen Blick
• 205 m² Wohnfläche inkl. vollständig beheiztem und ganzjährig
nutzbarem Wintergarten (aktuelle Wohnflächenberechnung liegt vor)
• Großzügiger Wohn- und Essbereich mit direkter Anbindung an den
Wintergarten für außergewöhnliches Raumgefühl und Wohlbefinden
• Hochwertige Bodenbeläge, u. a. Bambusparkett im Wohnbereich,
weitere Räume mit zeitlos abgestimmten Materialien
• Fußbodenheizung in den Wohnbereichen für
gleichmäßige Wärmeverteilung und hohen Wohnkomfort
• Kachel-Eckkamin im Wohnbereich als voll funktionsfähige Zusatzheizung
und für stilvolles Ambiente
• Moderne Smart-Home-Installation zur komfortablen Steuerung
ausgewählter Funktionen per App
• Großzügige Bäder mit Tageslicht, u. a. Whirlpool-Eckbadewanne
• Dachgeschoss mit Gauben für zusätzliche Raumhöhe und
flexible Nutzung (Homeoffice, Gäste, Jugendbereich)
• Südwest-Ausrichtung von Garten und Terrassenbereichen
für optimale Besonnung bis in die Abendstunden
• Professionell angelegte Außenanlage mit geringem Pflegeaufwand
und automatischer Rasenbewässerung
• Außergewöhnlich großes Grundstück für eine Stadtvilla
mit spürbar mehr Abstand zu den Nachbarhäusern und
hoher Privatsphäre
• Garage plus zwei zusätzliche Stellplätze
• Ruhige Anlieger- / Spielstraße, ideal für Familien mit Kindern
• Gepflegter Gesamtzustand
• Europäische Schule Rhein-Main: nur ca. 7 Gehminuten
• S-Bahn nach Frankfurt: ca. 20 Minuten bis Frankfurt-Hauptbahnhof
• Einkaufsmöglichkeiten, Ärzte, Schulen, Kitas sowie Burgfestspiele
in unmittelbarer Umgebung
• Angenehme Nachbarschaft mit hohem Familienanteil
• Hohe Wohnqualität - ruhig gelegen und dennoch urban angebunden
Lage
Die Immobilie befindet sich in Bad Vilbel-Dortelweil, eingebettet in eine ruhige Anlieger- und Spielstraße, geprägt von gewachsenen Nachbarschaften und vielen Familien. Der geringe Verkehr, das sichere Umfeld und die entspannte Atmosphäre schaffen genau den Rahmen, in dem Kinder behütet aufwachsen können - und Eltern zur Ruhe kommen.
Hier lebt man nicht nur, hier kommt man an. Spielplätze, Grünflächen und kurze Wege prägen den Alltag, während Kindergärten, Schulen und Betreuungsangebote gut erreichbar sind. Die Nähe zur Europäischen Schule macht den Standort zudem besonders attraktiv für international orientierte Familien.
Gleichzeitig bleibt das urbane Leben stets in Reichweite: Einkaufsmöglichkeiten, medizinische Versorgung, Sport- und Freizeitangebote befinden sich in kurzer Distanz. Die Anbindung nach Frankfurt am Main ist hervorragend - ob mit dem Auto oder der Bahn - und ermöglicht es, urban zu arbeiten und entspannt zu wohnen.
Diese Kombination aus Familienfreundlichkeit, Ruhe und hervorragender Infrastruktur ist kein kurzfristiger Trend, sondern ein nachhaltiger Standortvorteil. Sie sorgt für hohe Lebensqualität im Alltag und steht zugleich für eine langfristige Wertstabilität, die insbesondere für Familien mit Zukunftsperspektive von Bedeutung ist.
Ein Ort, an dem Kinder groß werden, Freundschaften entstehen und aus einem Haus ein Zuhause wird - heute und auf lange Sicht.
Infrastruktur (im Umkreis von 5 km):
Apotheke, Lebensmittel-Discount, Allgemeinmediziner, Kindergarten, Grundschule, Hauptschule, Realschule, Gymnasium, Gesamtschule, Öffentliche Verkehrsmittel
Sonstige Angaben
Heizungsart: Fußbodenheizung
Energieträger: Gas
• Verkauf erfolgt ausschließlich von privat
• Makleranfragen ausdrücklich nicht erwünscht
• Gepflegter Gesamtzustand
• Energieausweis vorhanden, gültig bis Oktober 2028
• Aktuelle Wohnflächenberechnung
• Angaben nach bestem Wissen und Gewissen
• Besichtigungen nach vorheriger Abstimmung
bei ernsthaftem Kaufinteresse
Makleranfragen nicht erwünscht. Nach § 7 UWG sind unaufgeforderte Kontaktaufnahmen durch Makler ohne ausdrückliche Einwilligung des Empfängers verboten!
ohne-makler (OM) ist weder Anbieter noch Vermittler der Immobilie. OM betreibt eine Plattform für Immobilieneigentümer, die unter anderem die gleichzeitige Veröffentlichung einzelner Inserate auf mehreren Immobilienportalen ermöglicht. Die Inhalte dieser Inserate werden ausschließlich von Dritten verantwortet. Für die Richtigkeit, Vollständigkeit oder Rechtmäßigkeit der Angaben übernimmt OM keine Haftung. Hinweise auf mögliche Rechtsverstöße können jederzeit gemeldet werden und werden nach Prüfung umgehend bearbeitet.
Weitere Dokumente
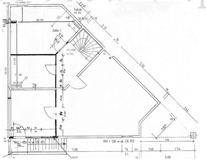
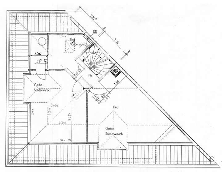
EnergieausweisGrundriss
Grundriss Keller
>
>
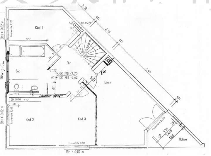
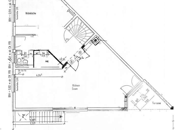
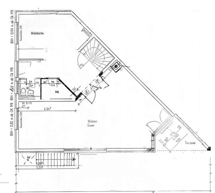
Grundriss Erdgeschoss
>
>
Grundriss Obergeschoss
>
>
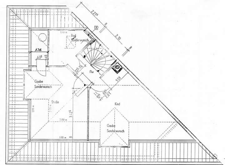
Grundriss Dachgeschoss
>
>
Adresse
61118 Bad Vilbel
Interessante Orte
Preis- und Lageinformationen
Preistrend für Bestandsimmobilien in Bad Vilbel