Hier haben wir ein schönes 1-Familienhaus mit Garten und Garage in guter Lage in der Stadt Hattersheim im Angebot (direkt Stadt Hattersheim - kein Stadtteil!).
Das Wohngebäude wurde Anfang der 1980er-Jahre in solider Bauweise errichtet. Es handelt sich keinesfalls um ein Haus von der Stange, sondern das Gebäude besticht mit seiner individuellen und eigenwilligen Architektur.
Die Bauunterlagen weisen eine reine Wohnfläche von 90,76 m² aus. Hierbei sind nur Flächen im EG und 1.OG berücksichtigt. Die Flächen im Dachgeschoss sind bereits zur Wohnnutzung ausgebaut. Die ausgewiesene Nutzfläche bezieht sich auf das ausgebaute Dachgeschoss sowie Nutzflächen im Kellergeschoss.
Das Gebäude ist voll unterkellert. Die Garage auf dem Grundstück ist ebenfalls massiv.
Es handelt sich um ein grundsätzlich solides und von der Busubstanz her "gesundes" und werthaltiges Gebäude. Wir möchten aber nicht verheimlichen, dass der aktuelle Zustand und die Ausstattung eher einfach und in die Jahre gekommen ist. Es besteht ein gewisser Instandsetzungs- und Modernsisierungsbedarf. Dies sollte man jedoch unserer Meinung nach auch als Chance sehen, das Gebäude nach seinem persönlichen Geschmack zu gestalten und gleichzeitig fit für die Zukunft zu machen. Insgesamt sehen wir für diese schöne und gut gelegene Immobilie ein gutes Entwicklungspotential. Ein handwerklich begabter Käufer, der Vieles in Eigenleistung erbringen kann, hat bei dieser Immobilie sicherlich ein hohes Einsparpotential.
Schönes 1-Familienhaus mit Garten und Garage
65795 Hattersheim am Main
Die vollständige Adresse der Immobilie erhalten Sie vom Anbieter.
Auf Karte anzeigen
Die vollständige Adresse der Immobilie erhalten Sie vom Anbieter.
Finanzierungszertifikat
In nur zwei Minuten zu Ihrem persönlichen Finanzierungszertifkat.
Infos
| Haustyp | Einfamilienhaus |
|---|---|
| Wohnfläche ca. | 90 m2 |
| Nutzfläche | 76 m2 |
| Grundstücksfläche | 330 m2 |
| Zimmer | 5 |
| Schlafzimmer | 3 |
| Badezimmer | 2 |
| Garage/Stellplatz | Außenstellplatz |
| Anzahl Garage/Stellplatz | 2 |
Kosten
| Kaufpreis |
600.000 € |
|---|---|
| Provision |
2,975 % aus dem Kaufpreis inkl. Mwst. Wir berechnen 2,5 % des Kaufpreises zzgl. der gesetzlichen Mehrwertsteuer als Provision, die vom Käufer bei Vertragsabschluss zu zahlen ist. Das entspricht 2,975 % des Kaufpreises inkl. Mwst. Der Verkäufer zahlt bei Vertragsabschluss eine Provision in mindestens gleicher Höhe. |
Finanzierungsrechner:
Kaufpreis:
600.000 €
Eigenkapital:
600.000 €
Monatliche Rate
0 €
Effektiver Jahreszins
0 %
Sollzinsbindung
10 Jahre
Bausubstanz & Energieausweis
| Baujahr | 1981 |
|---|---|
| Heizungsart | Gas-Heizung |
| Wesentliche Energieträger | Gas |
| Energieausweis | liegt vor |
| Energieausweistyp | Verbrauchsausweis |
| Energieverbrauchskennwert | 154,9 kWh/(m²*a) |
| Energieeffizienzklasse | E |
154,9
kWh/(m²*a)
Energieeffizienzklasse E
- A+
- A
- B
- C
- D
- E
- F
- G
- H
- 0
- 25
- 50
- 75
- 100
- 125
- 150
- 175
- 200
- 225
- >250
Beschreibung des Objekts
Ausstattung
1-Familienhaus in massiver Bauweise mit Garten, Hoffläche und Garage:
- reine Wohnfläche ca. 90,76 m²
- Nutzflächen ausgebautes Dachgeschoss ca. 25 m²
- Nutzflächen Keller insg ca. 53 m²
- voll unterkellert
- Gas-Zentralheizung, erneuert im Jahr 2017
- schöner Kachelofen im Wohnzimmer
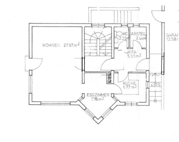
Erdgeschoss:
großes Wohnzimmer mit Kachelofen, Ausgang zur überdachten Terrasse
Essbereich neben Wohnzimmer
Küche
sowie Diele, Gäste-WC, separater Abstellraum
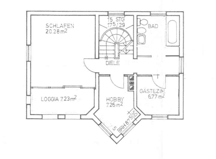
Obergeschoss:
1 Badezimmer mit Dusche und Wanne
Schlafzimmer mit Ausgang zu Loggia
2 kleinere Zimmer
Dachgeschoss:
1 großer ausgebauter Raum
1 Küche
1 kleines Badezimmer mit Dusche
Keller:
insgesamt 5 Räume
davon 1 x Heizungsraum, 1 x Waschküche
Außerdem:
Garage in massiver Bauweise (mit zusätzlichem Zugang vom Garten)
davor Hoffläche, auf der ein weiteres PKW abgestellt werden kann
Gartenhütte
Lage
Diese Immobilie liegt in ruhiger und begehrter Lage der Kernstadt Hattersheim (Kein Ortsteil!).
Bis in die Hattersheimer Innenstadt rund um den "Posthof" und die Hattersheimer Fussgängerzone sind es keine 5 Minuten zu Fuss. Die direkte Nachbarschaft ist überwiegend von Wohnbebauung in einem angenehmen sozialen Umfeld geprägt. Störendes Gewerbe befindet sich nicht in der Nachbarschaft.
Diese Immobilie liegt in jeder Beziehung sehr verkehrsgünstig. Hattersheim liegt zentral im Rhein-Main-Gebiet etwa in der Mitte zwischen den Großstädten Frankfurt und Wiesbaden. Verkehrstechnisch ist Hattersheim hervorragend an beide Städte angeschlossen, sowohl mit dem PKW als auch mit öffentlichen Verkehrsmitteln. Der Hattersheimer Bahnhof. In die Zentren der beiden Großstädte Frankfurt und Wiesbaden gelangen Sie in jeweils etwa 30 Minuten. Den Frankfurter Flughafen, von dem Sie übrigens kaum etwas hören werden, erreichen Sie mit dem PKW in ca. 15 Minuten. Auch zum Industriepark Höchst mit seinen vielen Arbeitsplätzen ist es nicht weit.
Hattersheim hat insgesamt betrachtet eine hervorragende Infrastruktur. Sämtliche Geschäfte für den täglichen Bedarf, von Supermärkten bis zum Bäcker, gibt es vor Ort. Außerdem finden Sie hier einige Fachgeschäfte, Ärzte, Gastronomie, Friseure, Grund- und Gesamtschule, Kindergärten, usw. Dazu die vielen nicht weit von Hattersheim entfernten Einkaufsmöglichkeiten in den Nachbargemeinden, im Main-Taunus-Zentrum mit Kinopolis und in Frankfurt und Wiesbaden.
Auch in Sachen Freizeit hat Hattersheim Einiges zu bieten: das Hattersheimer Freibad ist nicht weit entfernt. Der an Hattersheim angrenzende Regionalpark Rhein-Main lädt zum Fahrradfahren oder Spazierengehen ein. Das Hattersheimer Vereinsleben ist rege und vielfältig und auch um Hattersheim herum finden sich viele schöne und lohnende Ausflugziele und Naherholungsmöglichkeiten (z.B. Taunus, Rheingau).
Weitere Informationen zu Hattersheim finden Sie unter: www.hattersheim.de
Sonstige Angaben
Bei Interesse nehmen Sie einfach Kontakt mit uns auf - wir stimmen dann gerne einen Besichtigungstermin mit Ihnen ab.
Grundriss
Grundriss Erdgeschoss
>
>
Grundriss 1.OG
>
>
Grundriss Keller
>
>
Adresse
65795 Hattersheim am Main
Interessante Orte
Preis- und Lageinformationen
Preistrend für Bestandsimmobilien in Hattersheim am Main