Dieses außergewöhnliche Gutshaus, dessen Geschichte bis ins 19. Jahrhundert zurückreicht, vereint historischen Charme mit modernen Wohnannehmlichkeiten. Der Ursprung des Anwesens wurde im Jahr 1904 durch einen Umbau gestärkt, während in den 1970er Jahren drei Wohneinheiten hinzugefügt wurden. Im Jahr 1984 erfolgte ein weiterer Ausbau mit einem Anbau, zwei zusätzlichen Wohneinheiten und drei Garagen, wodurch eine Gesamtnutzfläche von rund 601 m² auf einem großzügigen Grundstück von ca. 3.348 m² entstanden ist.
Dank regelmäßiger Instandhaltungsmaßnahmen befindet sich das Haus in einem guten Zustand. Im Haupthaus sorgt eine Gaszentralheizung seit 2019 für behagliche Wärme, zusätzlich steht im Kaminzimmer ein gemütlicher Kaminofen für wohlige Stunden zur Verfügung.
Im Nebengebäude besitzen die Wohnungen eigenständige Gas-Etagenheizungen aus den Jahren 2010 bzw. 2020. Mehrfach wurden die Bäder 2005 erneuert, der Hausflur 1999 renoviert und die Außenfassade 1999 modernisiert. Hochwertige dreifach verglaste Fenster an der Südseite sowie isolierverglaste Kunststofffenster aus 2016 sorgen für eine gute Wärmedämmung.
Ob als renditestarke Kapitalanlage oder als individuelles Eigenheim mit Mietoptionen – dieses stilvolle Gutshaus bietet vielfältige Nutzungsmöglichkeiten. Der großzügige Gartenbereich eröffnet weiteres Entwicklungspotenzial. Drei Garagen und ausreichend Stellplätze runden das Angebot ab. Im Außenbereich finden Sie zudem ein kleines Nebengebäude mit Garage, sowie einen idyllischen Außenpool, der Erinnerungen an vergangene Tage weckt.
Historisches Gutshaus in Bornum – Wohnen mit Charme & attraktive Rendite
38312 Börßum
Die vollständige Adresse der Immobilie erhalten Sie vom Anbieter.
Auf Karte anzeigen
Die vollständige Adresse der Immobilie erhalten Sie vom Anbieter.
Finanzierungszertifikat
In nur zwei Minuten zu Ihrem persönlichen Finanzierungszertifkat.
Infos
| Haustyp | Mehrfamilienhaus |
|---|---|
| Etagenzahl | 3 |
| Wohnfläche ca. | 601 m2 |
| Grundstücksfläche | 3.348 m2 |
| Zimmer | 16 |
| Garage/Stellplatz | Garage |
| Anzahl Garage/Stellplatz | 10 |
Kosten
| Kaufpreis |
520.000 € |
|---|---|
| Provision |
3.57 % inkl. MwSt. Bei Abschluss eines notariellen Kaufvertrages ist eine Käuferprovision vom Käufer in Höhe von 3.57 % inkl. MwSt. aus dem Kaufpreis fällig. |
| Mieteinnahmen | 14.000 € |
Finanzierungsrechner:
Kaufpreis:
600.000 €
Eigenkapital:
600.000 €
Monatliche Rate
0 €
Effektiver Jahreszins
0 %
Sollzinsbindung
10 Jahre
Bausubstanz & Energieausweis
| Baujahr | 1850 |
|---|---|
| Letzte Sanierung | 2019 |
| Objektzustand | Saniert |
| Qualität der Austattung | Normal |
| Heizungsart | Gas-Heizung |
| Wesentliche Energieträger | Erdgas leicht |
| Energieausweis | liegt vor |
| Energieausweistyp | Bedarfsausweis |
| Energieverbrauchskennwert | 165,0 kWh/(m²*a) |
| Energieeffizienzklasse | F |
165,0
kWh/(m²*a)
Energieeffizienzklasse F
- A+
- A
- B
- C
- D
- E
- F
- G
- H
- 0
- 25
- 50
- 75
- 100
- 125
- 150
- 175
- 200
- 225
- >250
Beschreibung des Objekts
Ausstattung
* Hauptgebäude (altes Gutshaus)
* Nebengebäude mit 3 Wohneinheiten
* 3 Garagen
* Ausreichend Stellplätze
* Außenpool (nicht mehr in Betrieb)
* Gesamtnutzfläche von ca. 601 m²
* Grundstücksfläche von 3.348 m²
* Bäder teilweise renoviert
* Hausflur und Außenfassade 1999 renoviert
* Dreifach verglaste Fenster zur Südseite
* Isolierverglaste Kunststofffenster aus 2016
Lage
Bornum gehört zur Samtgemeinde Oderwald im Landkreis Wolfenbüttel. Die unmittelbare Umgebung zeichnet sich durch eine gepflegte ländliche Infrastruktur, grüne Feld- und Waldflächen sowie eine geringe Bebauungsdichte aus. Die Immobilie befindet sich am Rand eines idyllischen Ortsteils, eingebettet in eine historische Parkanlage mit altem Baumbestand. Die nächstgelegenen Landes- und Kreisstraßen sind gut erreichbar, eine rasche Anbindung an umliegende Ortschaften ist gewährleistet. Regelmäßige Busverbindungen in die umliegenden Städte sind vorhanden; der Bahnhof in Braunschweig ist mit dem Auto ca. 25 bis 35 Minuten entfernt. Die Anbindung an überregionale Straßenverbindungen ist günstig, sodass eine schnelle Erreichbarkeit von Ballungszentren gewährleistet ist. In Bornum und der nahen Umgebung finden sich Einkaufsmöglichkeiten, Schulen und medizinische Einrichtungen in bedarfsgerechter Entfernung. Naherholungsgebiete und Wanderwege laden zu Freizeitaktivitäten in der Natur ein.
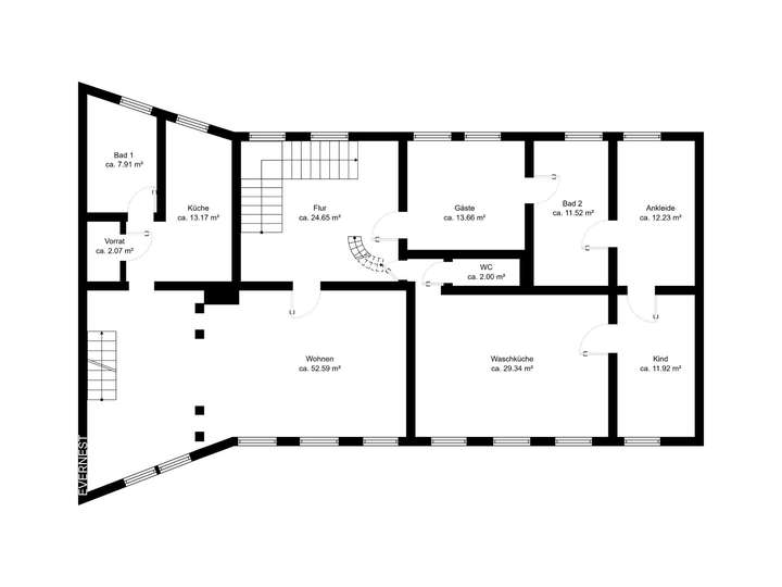
Grundriss
Erdgeschoss
>
>
1.Obergeschoss
>
>
Dachgeschoss
>
>
Adresse
38312 Börßum
Interessante Orte
Preis- und Lageinformationen
Preistrend für Bestandsimmobilien in Börßum