Dieses wunderschöne Einfamilienhaus in Poppenbüttel überzeugt durch seine durchdachte Architektur und die Möglichkeit, nach deinen persönlichen Wünschen und Vorstellungen projektiert zu werden. Mit einer großzügigen Wohnfläche von 143,81 m² und fünf Zimmern bietet es genug Platz für die ganze Familie. Der klassische Satteldach mit einer Neigung von 38 Grad verleiht dem Haus eine charmante Optik, während die bodentiefen Fenster für einen lichtdurchfluteten Wohn- und Lebensbereich sorgen. Hier kannst du mit kleinen Kniffen viel Platz und Licht in dein Zuhause bringen und eine entspannte, einladende Atmosphäre schaffen.
LivingHaus bietet dir zahlreiche zusätzliche Leistungen, die dein Bauprojekt unterstützen und bereichern. Mit der hochwertigen Traumküche von Living Haus erhältst du eine Küche, die perfekt auf deinen Grundriss angepasst ist. Sie kommt mit modernster Technik, cleveren Stauraumlösungen und einem ästhetischen Design, sodass du sofort nach dem Einzug loskochen kannst.
Das Living Haus Bau-Cockpit ist dein digitaler Begleiter während des gesamten Bauprojekts. Mit dieser App behältst du jederzeit den Überblick über Zeitplan und Dokumente, was dir hilft, stressfrei zu bauen.
Mit I-KON - Intelligentes Bauen wird dein Zuhause energieeffizient und umweltfreundlich realisiert. Es fügt sich perfekt an deine Bedürfnisse an und nutzt modernste Technik.
Das Zuhause-Darlehen bietet dir die Möglichkeit, dein Traumhaus zu finanzieren. Du erhältst bis zu 250.000 EUR zu einem besonders günstigen Zinssatz und profitierst von staatlichen Förderprogrammen, die dir den Einstieg in dein neues Zuhause erleichtern.
Dein Haus kommt mit dem Zuhause-Paket, das eine hochwertige Grundausstattung umfasst. Moderne Böden, edle Türen und stilvolle Sanitäranlagen sind optimal aufeinander abgestimmt und werden fix & fertig geliefert.
Falls du gerne selbst Hand anlegst, unterstützt dich das DIY-Ausbau-Coaching. In nur drei Tagen zeigen dir Experten, wie du den Innenausbau selbst meisterst, und geben dir praxisnahe Tipps und Profi-Unterstützung, damit du zum Profi in deinem eigenen Zuhause wirst.
Dein individuelles Traumhaus in Poppenbüttel - maßgeschneidert für dich!
22399 Hamburg
Die vollständige Adresse der Immobilie erhalten Sie vom Anbieter.
Auf Karte anzeigen
Die vollständige Adresse der Immobilie erhalten Sie vom Anbieter.
Finanzierungszertifikat
In nur zwei Minuten zu Ihrem persönlichen Finanzierungszertifkat.
Infos
| Haustyp | Einfamilienhaus |
|---|---|
| Etagenzahl | 2 |
| Wohnfläche ca. | 143 m2 |
| Nutzfläche | 143,81 m2 |
| Grundstücksfläche | 631 m2 |
| Bezugsfrei ab | 2027 |
| Zimmer | 5 |
| Schlafzimmer | 1 |
| Badezimmer | 1 |
Kosten
| Kaufpreis |
889.132 € |
|---|
Finanzierungsrechner:
Kaufpreis:
600.000 €
Eigenkapital:
600.000 €
Monatliche Rate
0 €
Effektiver Jahreszins
0 %
Sollzinsbindung
10 Jahre
Bausubstanz & Energieausweis
| Baujahr | 2027 |
|---|---|
| Bauphase | Haus in Planung (projektiert) |
| Qualität der Austattung | Gehoben |
| Energieausweis | liegt vor |
| Energieausweistyp | Bedarfsausweis |
| Energieverbrauchskennwert | 18,0 kWh/(m²*a) |
| Energieeffizienzklasse | A+ |
18,0
kWh/(m²*a)
Energieeffizienzklasse A+
- A+
- A
- B
- C
- D
- E
- F
- G
- H
- 0
- 25
- 50
- 75
- 100
- 125
- 150
- 175
- 200
- 225
- >250
Beschreibung des Objekts
Ausstattung
Das Einfamilienhaus in Poppenbüttel überzeugt nicht nur durch seine Architektur, sondern auch durch eine umfangreiche Ausstattung. Die hochwertige Traumküche wird passgenau für deinen Grundriss geplant und kommt mit modernster Technik sowie cleveren Stauraumlösungen. Das Zuhause-Paket bietet dir eine umfassende Grundausstattung, zu der moderne Böden und stilvolle Sanitäranlagen gehören. Mit I-KON - Intelligentes Bauen wird dein Zuhause energieeffizient und umweltfreundlich. Das Living Haus Bau-Cockpit ermöglicht dir eine einfache digitale Verwaltung deines Bauprojekts. Zudem erhältst du Unterstützung durch das DIY-Ausbau-Coaching, bei dem dir Profis wertvolle Tipps geben. Mit diesen Möglichkeiten gestaltest du dein zukünftiges Zuhause nach deinen individuellen Vorstellungen und Bedürfnissen - dein »Wie ich es will Fertighaus«!
Lage
Poppenbüttel ist ein idealer Wohnort für Familien und Naturliebhaber. In der Umgebung findest du zahlreiche Bildungseinrichtungen wie die Grundschule Poppenbüttel und die Stadtteilschule Poppenbüttel, die beide eine hervorragende Reputation genießen. Für die Kleinsten gibt es mehrere Kindergärten, die fußläufig erreichbar sind. Supermärkte wie EDEKA, REWE und ALDI sind in der Nähe und bieten dir eine Vielzahl an Einkaufsmöglichkeiten. Gesundheitsversorgung ist ebenfalls gewährleistet, mit verschiedenen Arztpraxen und einem nahegelegenen Krankenhaus.
Freizeitangebote sind hier vielfältig: Der Poppenbütteler Moorpark lädt zu ausgedehnten Spaziergängen und sportlichen Aktivitäten ein. Zudem sind Sportvereine und Spielplätze in erreichbarer Nähe, was den Ort besonders familienfreundlich macht. Die Anbindung an den öffentlichen Nahverkehr ist dank der S-Bahn-Station Poppenbüttel optimal. In wenigen Minuten bist du im Hamburger Stadtzentrum oder hast Zugang zu den Autobahnen A1 und A7, was Pendlern zugutekommt und dir eine schnelle Verbindung zu anderen Städten ermöglicht. Die Kombination aus Natur, guter Infrastruktur und einem starken Gemeinschaftsgefühl macht Poppenbüttel zu einem perfekten Ort für dein neues Zuhause.
Sonstige Angaben
Das hier angebotene Grundstück ist im obigen Preis eingerechnet, es wird ohne zusätzliche Provision einen Living Haus - Bauherrn bereitgestellt.
Zusätzliche Baunebenkosten müssen noch hinzugerechnet werden, hierüber beraten wir dich gerne.
Wir bieten auch interessante Finanzierungsmöglichkeiten inklusive Beantragung aller Fördermittel!
Die Hausabbildung und die Bilder der Inneneinrichtung zeigen möglicherweise Extras, die nicht im Kaufpreis inbegriffen sind.
Gute Beratung ist der Anfang von Allem. Deshalb analysieren wir gemeinsam mit euch eure Vorstellungen, Wünsche und Bedürfnisse und finden das für dich und deiner Familie
Living Haus.
Interessiert? Kontaktiere mich und vereinbare noch heute einen kostenlosen und unverbindlichen Beratungstermin unter
0170-4711970
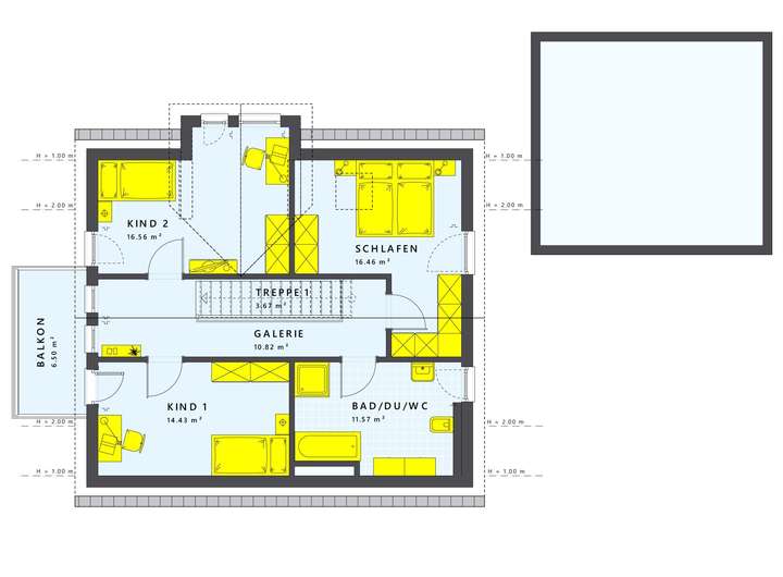
Grundriss
Konzeptbeispiel - Livinghaus:
>
>
Konzeptbeispiel - Familienfreu
>
>
Konzeptbeispiel - Livinghaus:
>
>
Konzeptbeispiel - Familienfreu
>
>
Konzeptbeispiel - Livinghaus:
>
>
Konzeptbeispiel - Familienfreu
>
>
Konzeptbeispiel - Livinghaus:
>
>
Konzeptbeispiel - Cleveres Fam
>
>
Adresse
22399 Hamburg
Interessante Orte
Preis- und Lageinformationen
Preistrend für Bestandsimmobilien in Poppenbüttel