Die Immobilie befindet sich in zentraler und gefragter Lage von Hamburg-Bergedorf, inmitten der etablierten und stark frequentierten Einkaufsstraße Sachsentor. Das unvergleichliche Straßenbild ist geprägt von anmutend und aufwendig gestalteten Fassaden, die von der Gründerzeit und Fachwerkhäusern aus dem 17. Jahrhundert geprägt sind.
Das Angebot umfasst ein Wohn- und Geschäftshaus, welches 1901 auf einem etwa 68 m² großen Grundstück in geschlossener Bauweise errichtet wurde. Das Objekt teilt sich derzeit in 5 Einheiten auf und erstreckt sich über eine Fläche von ca. 133 m² zzgl. Dachboden.
Derzeit sind 3 von 5 Einheiten vermietet. Die Jahresnettokaltmiete beläuft sich auf 44.691,12 €. Durch die Neuvermietung der Wohnung im 2. Obergeschoss sowie dem Dachgeschoss können Sie den weitere Mieteinnahmen generiert werden.
Im Jahr 2011 sind die Wohnungen im 2. Obergeschoss und das Büro im 1. Obergeschoss neu aufgeteilt und mit Kosten von ca. 130.000 € saniert worden. Das Objekt wurde zu diesem Zeitpunkt mit einer Gas-Zentralheizung ausgestattet. Die Ladeneinheit links wurde 2017 und die Ladeneinheit rechts wurde 2018 saniert. Der Kostenaufwand belief sich hier auf etwa 70.000 €.
Weiterhin wurden in den letzten Jahren folgende Maßnahmen umgesetzt:
2024 - Neuanstrich Fassade
2018 - Erneuerung der Elektroverteilung
2018 - Renovierung Treppenhaus
Es liegt ein Sanierungsfahrplan für die Ertüchtigung der Balken in den Giebelwänden vor. Eine Förderzusage durch die KfW wird derzeit geprüft und kann Ihnen bei positiver Rückmeldung zur Verfügung gestellt werden.
Zur Erweiterung des Wohnraums in Form einer Zusammenlegung der zwei oberen Etagen zu einer Maisonettewohnung und Vergrößerung um einen Wintergarten auf der Dachterrasse liegt ein weiteres Konzept vor. Die Förderung dieses Konzept wird derzeit ebenfalls geprüft und kann Ihnen bei positiver Rückmeldung zur Verfügung gestellt werden.
Modernisiertes Wohn- & Geschäftshaus mit Entwicklungspotential in exponierter Lage
21029 Hamburg
Die vollständige Adresse der Immobilie erhalten Sie vom Anbieter.
Auf Karte anzeigen
Die vollständige Adresse der Immobilie erhalten Sie vom Anbieter.
Finanzierungszertifikat
In nur zwei Minuten zu Ihrem persönlichen Finanzierungszertifkat.
Infos
| Wohnfläche ca. | 133 m2 |
|---|---|
| Grundstücksfläche | 68 m2 |
| Bezugsfrei ab | nach Vereinbarung |
| Zimmer | 8 |
Kosten
| Kaufpreis |
995.000 € |
|---|---|
| Provision |
6,5% des Kaufpreises inkl. des derzeit gültigen Mehrwertsteuer |
Finanzierungsrechner:
Kaufpreis:
600.000 €
Eigenkapital:
600.000 €
Monatliche Rate
0 €
Effektiver Jahreszins
0 %
Sollzinsbindung
10 Jahre
Bausubstanz & Energieausweis
| Baujahr | 1901 |
|---|---|
| Objektzustand | Modernisiert |
| Heizungsart | Zentralheizung |
| Wesentliche Energieträger | Gas |
| Energieausweis | liegt vor |
| Energieausweistyp | Verbrauchsausweis |
Beschreibung des Objekts
Lage
Bergedorf, Hamburgs süd-östlichster Stadtteil, (wo in Hamburg die Sonne aufgeht!) hat etwa 130.000 Einwohner. Ein Stadtteil, der für seine Vielfältigkeit und Ruhe bekannt ist. Der historische Stadtkern mit seinen vielen Einkaufsmöglichkeiten, Gastronomien und Ärzten in der Fußgängerzone Sachsentor und dem Einkaufszentrum CCB liegen vor der Tür. Sie liegt unweit vom „Bergedorfer Gehölz“, das sich für entspannende Waldspaziergänge anbietet. Vor den Toren Bergedorfs befinden sich die Vier- und Marschlande, ein traditionelles Anbaugebiet für Obst, Gemüse und Blumen sowie ein Naherholungsgebiet mit großzügigen Grünflächen, der Elbe, Badeseen und vielen Freizeitmöglichkeiten.
Bergedorf verfügt über diverse Kindergärten und über alle Schularten, neben den staatlichen Schulen auch über eine Rudolf-Steiner- sowie eine Montessorischule. Zwei Gymnasien liegen in direkter Umgebung.
Eine Bushaltestelle in Richtung Bergedorfer Bahnhof liegt in unmittelbarer Nähe. Den Hamburger Hauptbahnhof erreicht man mit der S-Bahn in ca. 20 Minuten, den Flughafen in ca. 50 Minuten. In Bergedorf halten ebenfalls Fernzüge nach Schwerin, Rostock, Berlin und Dresden. Ein eigener Autobahnanschluss, führt direkt zu den Autobahnen in Richtung Bremen, Hannover und Lübeck. Auch die A24 in Richtung Berlin ist schnell erreichbar.
Sonstige Angaben
Ankaufkosten:
Alle mit dem Abschluss eines Kaufvertrags entstehenden Kosten, Steuern und Abgaben (Notargebühren, 5,5% Grunderwerbssteuer, Gerichtskosten) sind vom Käufer zu tragen.
Maklercourtage:
Die Maklercourtage beträgt 6,50% des Kaufpreises inklusive der zurzeit gültigen Mehrwertsteuer und ist vom Käufer allein zu tragen.
Mit dieser Aufgabe bieten wir Ihnen das bezeichnete Objekt und zugleich unsere Dienste als Makler an. Bei aller Sorgfalt können wir keine Gewähr dafür übernehmen, dass alle Angebotsangaben richtig sind und das Objekt im Augenblick des Zugangs dieser Offerte noch verfügbar ist. Der Inhalt dieser Offerte ist vertraulich. Sie dürfen daher weder das Angebot noch Einzelheiten daraus Dritten ohne unsere Einwilligung weitergeben.
Der Empfänger ist zur Zahlung der vollen Maklercourtage verpflichtet, wenn der Dritte, an den er die Maklerinformation weitergegeben hat, das Geschäft selbst vornimmt. Die Maklercourtage wird bei Abschluss des Vertrages wirksam und fällig, der sich aus der Weitergabe ergeben sollte.
Wir bitten um Ihr Verständnis, dass wir Ihre Anfrage nur bearbeiten können, wenn Sie uns Ihre vollständigen Kontaktdaten (Vor- und Zuname, Meldeadresse und Telefonnummer) in der Anfrage angeben.
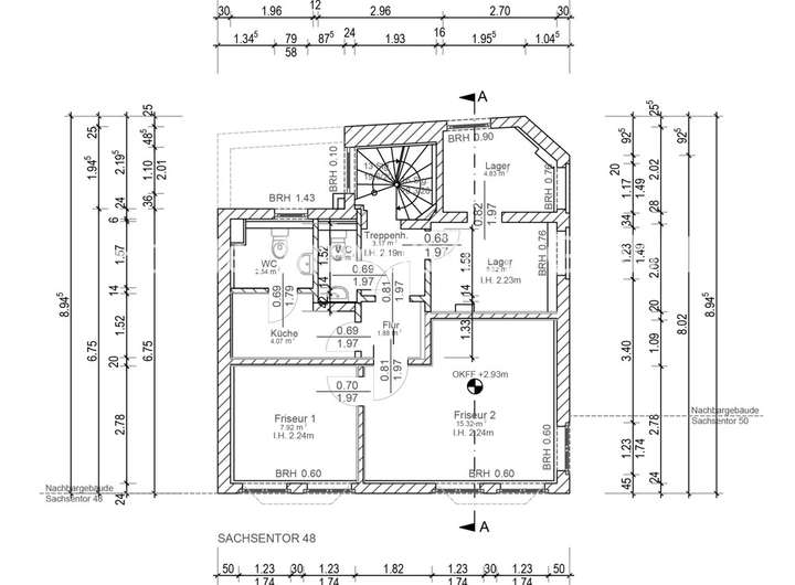
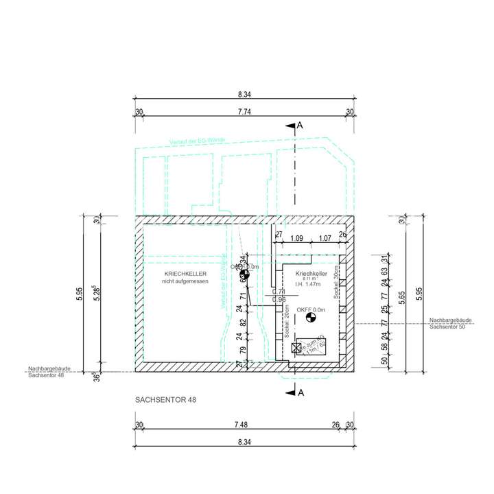
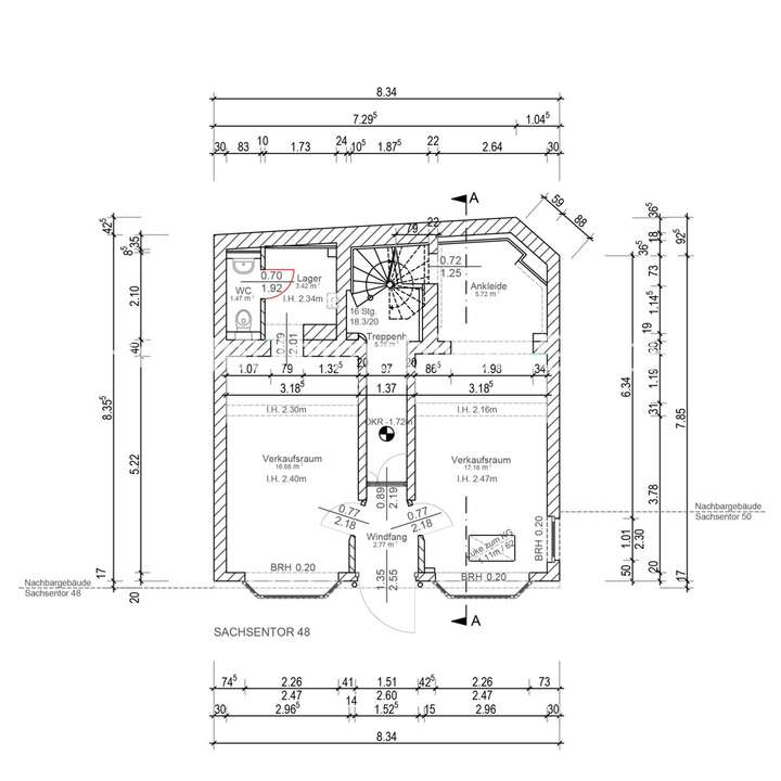
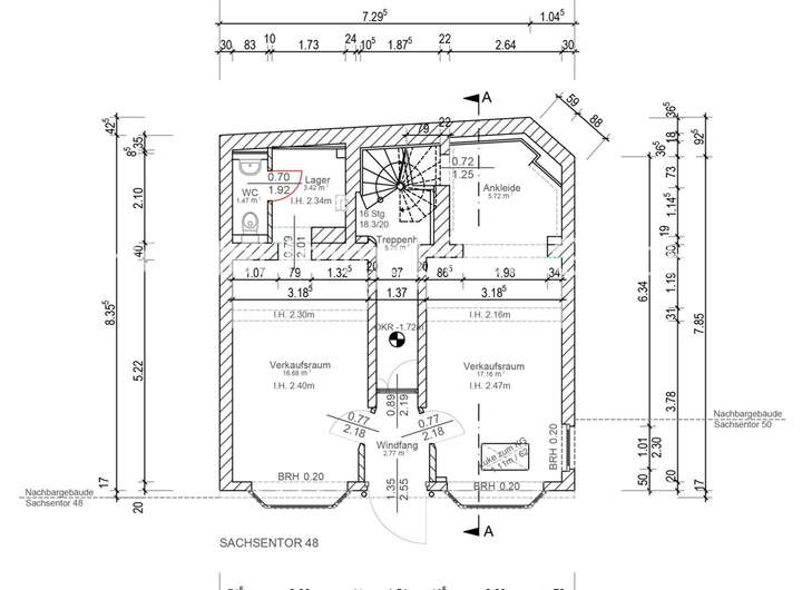
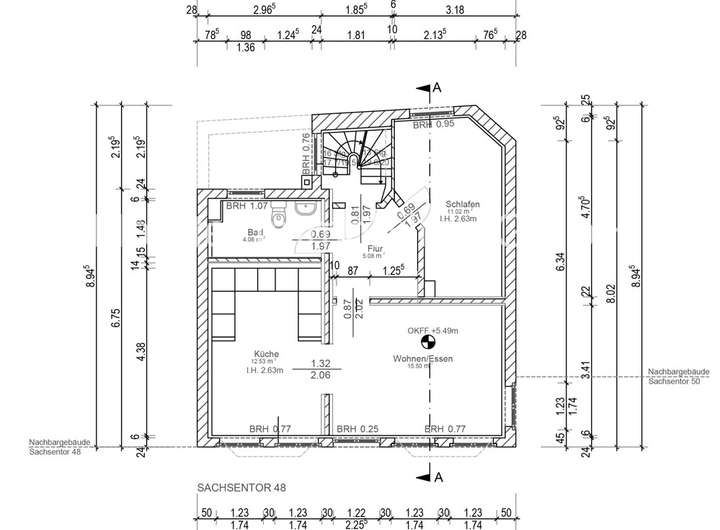
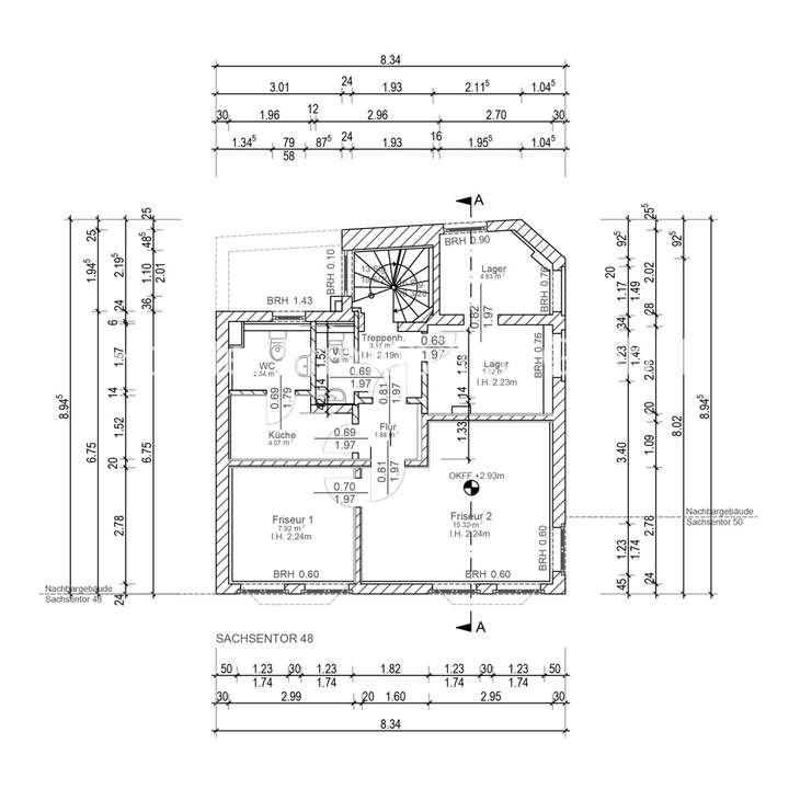
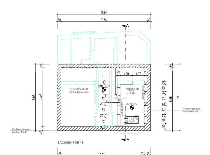
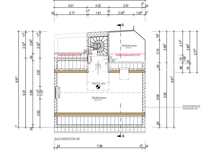
Grundriss
Erdgeschoss
>
>
1. Obergeschoss
>
>
2. Obergeschoss
>
>
Dachgeschoss
>
>
Kellergeschoss
>
>
Adresse
21029 Hamburg
Interessante Orte
Preis- und Lageinformationen
Preistrend für Bestandsimmobilien in Bergedorf