In ruhiger, gewachsener Wohnlage von Eppstein wartet dieses freistehende Einfamilienhaus auf Menschen mit Ideen die Lage, Grundstück und Gestaltungsspielraum schätzen.
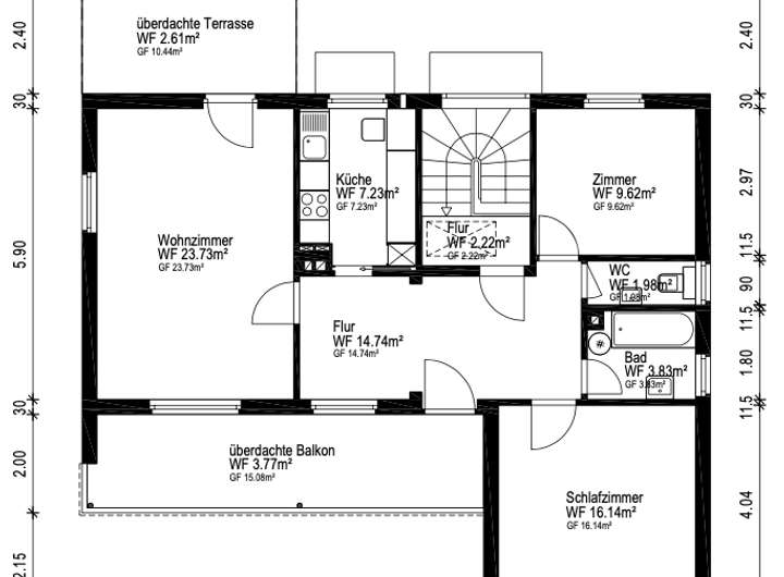
Auf einem großzügigen Grundstück von ca. 1.267 m² gelegen, bietet die Immobilie viel Platz, Privatsphäre und Entwicklungsspielraum. Herzstück ist das nach Südwesten ausgerichtete Wohnzimmer mit Terrasse – perfekt für sonnige Nachmittage, entspannte Abende und lange Sommerstunden im Grünen.
Wer im Sommer an heißen Tagen auf der Suche nach einem schattigen Plätzchen ist, wird sich über den großen Balkon auf der Talseite des Hauses freuen.
Das Haus stammt aus dem Jahr 1964, ist massiv gebaut, bietet ca. 114 m² Wohnfläche, ist voll unterkellert (teilweise wohnlich genutzt) und verfügt über einen großzügigen Garagenstellplatz.
Der Gebäudezustand ist grundsolide und entspricht einem einfachen Standard mit deutlichem Modernisierungsbedarf – ideal für Eigennutzer mit Gestaltungswunsch, Sanierer oder Bauherren, die das außergewöhnlich große Grundstück und die attraktive Lage schätzen.
Beheizt wird das Haus über eine Niedertemperatur-Öl-Zentralheizung (aus 2004), die Fenster sind doppelt verglast. 2012 erhielt die Fassade ein neues Aussehen, was den gepflegten Zustand des Gebäudes von außen schön unterstreicht.
Fazit:
Eine seltene Gelegenheit für Käufer, die Lage, Grundstücksgröße und Sonnenausrichtung über den Ausstattungsstandard stellen und eine Immobilie nach eigenen Vorstellungen entwickeln möchten.
👉 Neugierig? Dann lohnt sich ein Blick – dieses Grundstück erzählt mehr als tausend Worte.
Sonne, Ruhe & Raum für Ideen – freistehendes Haus mit Traumgrundstück
65817 Eppstein
Die vollständige Adresse der Immobilie erhalten Sie vom Anbieter.
Auf Karte anzeigen
Die vollständige Adresse der Immobilie erhalten Sie vom Anbieter.
Finanzierungszertifikat
In nur zwei Minuten zu Ihrem persönlichen Finanzierungszertifkat.
Infos
| Haustyp | Einfamilienhaus |
|---|---|
| Wohnfläche ca. | 114 m2 |
| Nutzfläche | 52 m2 |
| Grundstücksfläche | 1.267 m2 |
| Zimmer | 4 |
| Badezimmer | 1 |
| Garage/Stellplatz | Garage |
| Anzahl Garage/Stellplatz | 1 |
Kosten
| Kaufpreis |
598.000 € |
|---|---|
| Provision |
2,98% Die Käuferprovision beträgt 2,98 % vom Kaufpreis (inkl. 19% MwSt.) und ist verdient und zur Zahlung fällig nach Abschluss des notariellen Kaufvertrages. Ein provisionspflichtiger Maklervertrag wurde mit dem Verkäufer in gleicher Höhe abgeschlossen. |
Finanzierungsrechner:
Kaufpreis:
600.000 €
Eigenkapital:
600.000 €
Monatliche Rate
0 €
Effektiver Jahreszins
0 %
Sollzinsbindung
10 Jahre
Bausubstanz & Energieausweis
| Baujahr | 1964 |
|---|---|
| Letzte Sanierung | 2004 |
| Objektzustand | Renovierungsbedürftig |
| Qualität der Austattung | Normal |
| Heizungsart | Zentralheizung |
| Wesentliche Energieträger | Öl |
| Energieausweis | liegt vor |
| Energieausweistyp | Bedarfsausweis |
| Energieverbrauchskennwert | 379,0 kWh/(m²*a) |
| Energieeffizienzklasse | H |
379,0
kWh/(m²*a)
Energieeffizienzklasse H
- A+
- A
- B
- C
- D
- E
- F
- G
- H
- 0
- 25
- 50
- 75
- 100
- 125
- 150
- 175
- 200
- 225
- >250
Beschreibung des Objekts
Lage
Warum Eppstein?
Eppstein zählt zu den gefragten Wohnlagen im Main-Taunus-Kreis. Die Kombination aus Natur direkt vor der Tür - Taunusnähe, hohem Freizeitwert und dazu noch sehr guter Anbindung an Frankfurt, Wiesbaden und das gesamte Rhein-Main-Gebiet macht den Standort besonders attraktiv.
Einkaufsmöglichkeiten, Schulen, Kindergärten und Freizeitangebote sind in kurzer Zeit erreichbar.
Ein Wohnort für alle, die Ruhe lieben, aber auf Urbanität nicht verzichten wollen.
Sonstige Angaben
Da wir uns bei allen Angaben auf die Informationen Dritter stützen müssen, können wir keine Gewähr für deren Richtigkeit und Vollständigkeit übernehmen.
Bitte haben Sie Verständnis dafür, dass wir nur Anfragen mit vollständiger Adressangabe und erreichbarer Telefonnummer bearbeiten können.
Nachdem Ihre Anfrage per E-Mail bei uns eingegangen ist, werden wir uns mit Ihnen zur Abstimmung eines Besichtigungstermins in Verbindung setzen. Bitte nennen Sie deshalb in Ihrer E-Mail eine Tel.-Nr., unter der wir Sie sicher erreichen können.
Weitere Dokumente
EnergieausweisGrundriss
Grundriss EG (OG)
>
>
Grundriss KG (UG)
>
>
Adresse
65817 Eppstein
Interessante Orte
Preis- und Lageinformationen
Preistrend für Bestandsimmobilien in Eppstein