Zum Verkauf steht ein freistehendes Mehrfamilienhaus in einer der begehrten und gewachsenen Wohnlagen von Langen, in dem Stadtteil Linden. Das im Jahr 1969 errichtete Gebäude befindet sich auf einem ca. 576 qm großen Grundstück und umfasst insgesamt fünf Wohneinheiten. Ergänzt wird das Angebot durch eine Einzelgarage sowie eine zusätzliche Stellmöglichkeit auf der Auffahrt.
Das Haus ist vollunterkellert und präsentiert sich in einem gepflegten, soliden Gesamtzustand. Altersbedingte Instandhaltungs- und Renovierungsmaßnahmen sind - wie bei einer Immobilie dieser Baualterklasse üblich - einzuplanen. Die Immobilie wurde jedoch fortlaufend genutzt, instand gehalten und vermittelt einen ordnungsgemäßen und wertigen Eindruck.
Die Wohneinheiten sind funktional geschnitten und sprechen eine breite und stabile Mieterzielgruppe an. Sämtliche Wohnungen sind derzeit vollständig wie folgt vermietet:
➤ Souterrain
1-Zimmer-Wohnung mit Wohnküche und Tageslichtbad, ca. 51 qm Wohnfläche
Aktuelle monatliche Nettomieteinnahme € 380 (+ € 70 Nebenkosten + € 100 Heizung) vermietet seit (Info folgt)
➤ Erdgeschoss
4-Zimmer-Wohnung mit Küche,
Speisekammer, Tageslichtbad, Gäste-WC, Abstellkammer und Gartennutzung, ca. 94,07 qm Wohnfläche
Aktuelle monatliche Nettomieteinnahme € 750 (+ € 230 Nebenkosten + € 280 Heizung), vermietet seit 2005
➤ Obergeschoss
4-Zimmer-Wohnung mit Küche,
Speisekammer, Tageslichtbad, Gäste-WC, Abstellkammer und Balkon, ca. 98,97 qm Wohnfläche
Aktuelle monatliche Nettomieteinnahme € 600 (+ € 90 Nebenkosten + € 280 Heizung), vermietet seit 2001
➤ Dachgeschoss 1
2-Zimmer-Wohnung mit Küche, Tageslichtbad und Balkon, ca. 47,08 qm Wohnfläche
Aktuelle monatliche Nettomieteinnahme € 550 (+ € 70 Nebenkosten + € 90 Heizung), vermietet seit 2024
➤ Dachgeschoss 2
1-Zimmer-Wohnung mit Küche, Tageslichtbad und Balkon, ca. 34,64 qm Wohnfläche
Aktuelle monatliche Nettomieteinnahme € 330 (+ € 60 Nebenkosten + € 90 Heizung) vermietet seit 2022
➤ Garage vermietet an den Mieter im Erdgeschoss zu monatlich € 40
Die Immobilie ist vollvermietet und erzielt derzeit eine järhliche Nettokaltmiete von € 31.800.
Auf Basis des Kaufpreises ergibt sich eine aktuelle Bruttorendite von ca. 2,84 % p.a.
Diese Rendite ist bewusst realistisch und marktgerecht eingeordnet und reflektiert vor allem die hohe Lagequalität, die stabile Vermietung sowie das geringe Leerstandsrisiko dieses Objekts. Die Immobilie richtet sich ausdrücklich nicht an kurzfristig orientierte Renditeoptimierer, sondern an langfristige Bestandshalter, die Wert auf Sicherheit, Werthaltigkeit und nachhaltige Vermietbarkeit legen.
Ein wesentlicher Aspekt: Ein Teil der Mietverhältnisse besteht bereits seit längerer Zeit. In der Vergangenheit wurden keine regelmäßigen Mietanpassungen vorgenommen. Vor diesem Hintergrund besteht - unter Beachtung der gesetzlichen Möglichkeiten - Potenzial zur moderanten Weiterentwicklung des Mietniveaus, insbesondere bei Neuvermietungen oder im Rahmen zulässiger Anpassungen. Dieses Potenzial wurde bislang nicht ausgeschöpft.
Die Stärke dieses Investments ilegt somit nicht in einer maximalen Anfangsrendite, sondern in der Kombination aus gesicherter Ist-Miete, exzenellenter Vermietbarkeit und langfritiger Wertstabilittät.
Kapitalanlage in gefragter Lage - Mehrfamilienhaus mit 5 Einheiten
63225 Langen (Hessen)
Die vollständige Adresse der Immobilie erhalten Sie vom Anbieter.
Auf Karte anzeigen
Die vollständige Adresse der Immobilie erhalten Sie vom Anbieter.
Finanzierungszertifikat
In nur zwei Minuten zu Ihrem persönlichen Finanzierungszertifkat.
Infos
| Haustyp | Mehrfamilienhaus |
|---|---|
| Etagenzahl | 3 |
| Wohnfläche ca. | 325 m2 |
| Grundstücksfläche | 576 m2 |
| Bezugsfrei ab | nach Absprache |
| Zimmer | 12 |
| Garage/Stellplatz | Garage |
| Anzahl Garage/Stellplatz | 1 |
Kosten
| Kaufpreis |
1.119.000 € |
|---|---|
| Provision |
2,38 % Die Vermittlungsprovision ist nach Abschluss bzw. mit Rechtwirksamkeit eines notariellen Kaufvertrages verdient, zur Zahlung fällig und vom Käufer zu entrichten. Sordon Immobilien hat einen provisionspflichtigen Maklervertrag mit dem Verkäufer in gleicher Höhe abgeschlossen. |
| Mieteinnahmen | 2.650 € |
Finanzierungsrechner:
Kaufpreis:
600.000 €
Eigenkapital:
600.000 €
Monatliche Rate
0 €
Effektiver Jahreszins
0 %
Sollzinsbindung
10 Jahre
Bausubstanz & Energieausweis
| Baujahr | 1969 |
|---|---|
| Wesentliche Energieträger | Gas |
| Energieausweis | liegt vor |
| Energieausweistyp | Verbrauchsausweis |
| Energieverbrauchskennwert | 167,0 kWh/(m²*a) |
| Energieeffizienzklasse | F |
167,0
kWh/(m²*a)
Energieeffizienzklasse F
- A+
- A
- B
- C
- D
- E
- F
- G
- H
- 0
- 25
- 50
- 75
- 100
- 125
- 150
- 175
- 200
- 225
- >250
Beschreibung des Objekts
Lage
Das Mehrfamilienhaus befindet sich in Langen-Linden, einer der begehrten, gewachsenen Wohnlagen der Stadt. Die Straße ist als ruhige Sackgasse angelegt und geprägt von gepflegter Wohnbebauung - ein Umfeld, das sowohl bei Familien aus auch bei Berufspendlern gefragt ist.
Schulen und Kindergärten befinden sich in fußläufiger Entfernung: Eine Grundschule ist in wenigen Minuten erreichbar, ebenso mehrere Kindertagesstätten, darunter auch ein evangelischer Kindergarten in unmittelbarer Nähe. Einrichtungen des täglichen Bedarfs wie Bäckereien, Apotheken und weitere Nahversorgungsangebote liegen ebenfalls schnell erreichbar im näheren Umfeld. Die Lage vereint damit Ruhe, kurze Wege und hohe Alltagstauglichkeit - ideale Voraussetzungen für eine dauerhaft gute Vermietbarkeit.
Der Langener Bahnhof ist ebenfalls fußläufig erreichbar und bietet regelmäßige Verbindungen mit der S-Bahn sowie dem Regionalverkehr in Richtung Frankfurt am Main und Darmstadt. Für den Individualvekehr ist die Umgehungsstraße B486 in kürzester Zeit erreichbar und schafft eine zügige Anbindung an die Autobahnen A661, A5 und A3. Der Flughafen Frankfurt ist sowohl mit dem Auto als auch mit der Bahn in kurzer Zeit erreichbar - ein klarer Standort für Berufspendler.
Insgesamt bietet die Lage des Objekts eine überdurchschnittlich gute Kombination aus Ruhe, Wohnqualität und Anbindung - ein wesentlicher Faktor für die nachhaltige Attraktivität dieser Kapitalanlage.
📍 LANGEN - ein etablierter Wohnstandort im Rhein-Main-Gebiet:
Langen selbst ist eine attraktive Stadt mit rund 40.000 Einwohnern und liegt zentral im Rhein-Main-Gebiet, zwischen Frankfurt, Darmstadt, Offenbach, Rüsselsheim und Dieburg. Die Stadt verfügt über eine sehr gute Infrastruktur mit vielfältigen Einkaufs-, Bildungs- und Freizeitangeboten, medizinischer Versorgung, einem breiten Vereinsleben sowie zahlreichen Naherholungsmöglichkeiten. Die Kombination aus starker regionaler Wirtschaft, guter Verkehrsanbindung und hoher Wohnqualität macht Langen seit Jahren zu einem stabil nachgefragten Wohnstandort.
Sonstige Angaben
Hinweise & Haftungsausschluss
Alle Angaben in diesem Exposé basieren auf Informationen, die uns vom Eigentümer bzw. von Dritten zur Verfügung gestellt wurden. Für die Richtigkeit, Vollständigkeit und Aktualität dieser Angaben übernehmen wir keine Haftung. Änderungen, Irrtümer, Zwischenverkauf sowie eine anderweitige Verwertung bleiben ausdrücklich vorbehalten.
Im Falle eines wirksamen Vertragsabschlusses sind wir gemäß den gesetzlichen Bestimmungen verpflichtet, die Identität unserer Vertragspartner festzuhalten. Verbraucher werden im Falle des Abschlusses eines Maklervertrages gesondert über ihr gesetzliches Widerrufsrecht informiert.
Sofern ein Maklervertrag zustande kommt, gelten die jeweils individuell vereinbarten Konditionen.
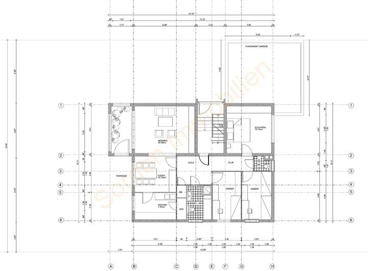
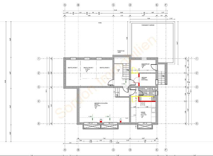
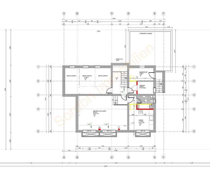
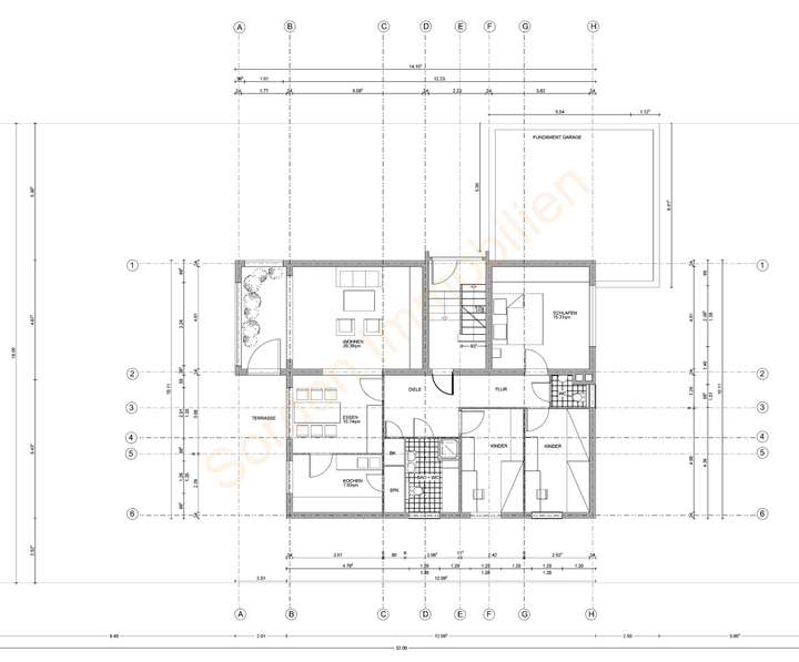
Grundriss
Grundriss UG
>
>
Grundriss EG
>
>
Grundriss OG
>
>
Grundriss DG
>
>
Adresse
63225 Langen (Hessen)
Interessante Orte
Preis- und Lageinformationen
Preistrend für Bestandsimmobilien in Langen (Hessen)