Diese gepflegte Doppelhaushälfte aus dem Baujahr 1932 und erweitert in 1968, verbindet den Charme einer gewachsenen Wohnlage mit dem Potenzial für individuelle Gestaltung, ideal für Familien oder Paare, die Raum, Ruhe und Grün zu schätzen wissen.
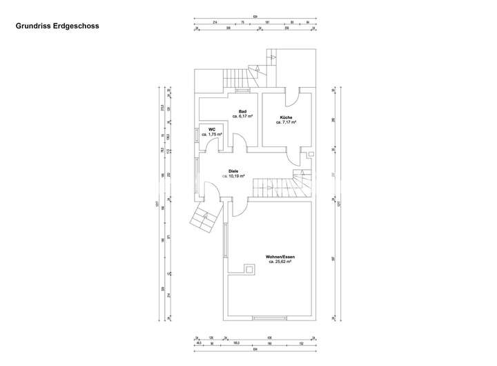
Das Haus bietet auf rund 126 m² Wohnfläche eine klassische, gut nutzbare Aufteilung über drei Ebenen: Im Erdgeschoss befinden sich der Wohn-/Essbereich mit Zugang zum Garten, eine separate Küche, ein Badezimmer sowie ein Gäste-WC.
Im Obergeschoss liegen zwei große Zimmer und ein Balkon, im Dachgeschoss zwei weitere Zimmer und eine kleine Diele, ideal als Kinder-, Arbeits- oder Gästeetage.
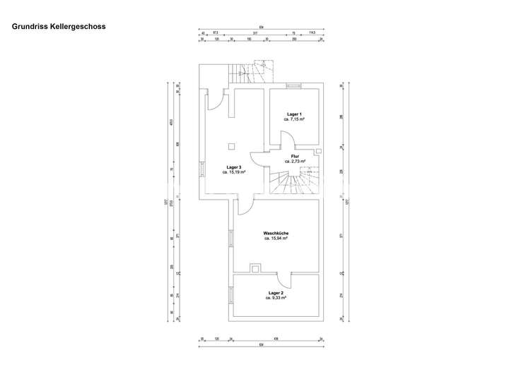
Das Haus ist vollständig unterkellert und bietet mit mehreren Lager-/Nutzräumen, einer Kellerbar sowie einer großzügigen Waschküche zusätzliche Fläche.
Der weitläufige Garten erstreckt sich entlang der Hausseite und hinter dem Gebäude und bietet viel Grün, Privatsphäre und Gestaltungsspielraum.
Zur Immobilie gehören außerdem eine massive Doppelgarage mit integrierter Werkstatt und Grube sowie ein zusätzlicher Geräteschuppen.
Technisch wurden bereits wichtige Maßnahmen umgesetzt: Die Heiztherme wurde 2020 erneuert, der Warmwasserspeicher 2024.
Teile der Wasser- und Elektroleitungen wurden in den Jahren 1970 und 2000 modernisiert.
Das Objekt ist in Massivbauweise errichtet und wird über eine Gas-Zentralheizung versorgt.
Das Grundstück ist ein Erbpachtgrundstück mit einer Größe von ca. 738 m².
Die Immobilie steht ab sofort bezugsfrei und eignet sich sowohl zur direkten Nutzung als auch zur Modernisierung nach eigenen Vorstellungen.
Der bestehende Erbbauvertrag wird nach Neuanpassung der Erbpachtzins bis 2111 verlängert. Bei der vorliegenden Nutzung als Ein- bis Zweifamilienhaus ist künftig ein Erbbauzins in Höhe von 3.938 € pro Jahr zu zahlen. Die Zahlung erfolgt vierteljährlich bzw. pro Quartal an die Stadt Frankfurt.
Familienfreundliche Doppelhaushälfte mit großem Garten und Doppelgarage in Frankfurt-Goldstein
60529 Frankfurt am Main
Die vollständige Adresse der Immobilie erhalten Sie vom Anbieter.
Auf Karte anzeigen
Die vollständige Adresse der Immobilie erhalten Sie vom Anbieter.
Finanzierungszertifikat
In nur zwei Minuten zu Ihrem persönlichen Finanzierungszertifkat.
Infos
| Haustyp | Doppelhaushaelfte |
|---|---|
| Etagenzahl | 3 |
| Wohnfläche ca. | 125 m2 |
| Grundstücksfläche | 738 m2 |
| Bezugsfrei ab | sofort |
| Zimmer | 5 |
| Schlafzimmer | 4 |
| Badezimmer | 1 |
| Anzahl Garage/Stellplatz | 2 |
Kosten
| Kaufpreis |
399.000 € |
|---|---|
| Provision |
3,57 % inkl. MwSt. |
Finanzierungsrechner:
Kaufpreis:
600.000 €
Eigenkapital:
600.000 €
Monatliche Rate
0 €
Effektiver Jahreszins
0 %
Sollzinsbindung
10 Jahre
Bausubstanz & Energieausweis
| Baujahr | 1968 |
|---|---|
| Letzte Sanierung | 2020 |
| Bauphase | Haus fertig gestellt |
| Objektzustand | Gepflegt |
| Qualität der Austattung | Einfach |
| Heizungsart | Zentralheizung |
| Wesentliche Energieträger | Gas |
| Energieausweis | liegt vor |
| Energieausweistyp | Bedarfsausweis |
| Energieverbrauchskennwert | 265,2 kWh/(m²*a) |
| Energieeffizienzklasse | H |
265,2
kWh/(m²*a)
Energieeffizienzklasse H
- A+
- A
- B
- C
- D
- E
- F
- G
- H
- 0
- 25
- 50
- 75
- 100
- 125
- 150
- 175
- 200
- 225
- >250
Beschreibung des Objekts
Ausstattung
- Ab sofort bezugsfrei
- 5 Zimmer, Küche, Bad, Gäste-WC
- ca. 126 m² Wohnfläche
- ca. 738 m² Erbpacht-Grundstück
- Baujahr 1932 und 1968 erweitert
- Massivbauweise
- Doppelgarage mit integrierter Werkstatt und Grube
- Gepflegter Garten mit viel Potenzial
- Geräteschuppen
- Gas-Zentralheizung
- Heizungstherme erneuert in 2020, Warmwasserspeicher in 2024
- Wasser-/Elektroleitungen teilweise modernisiert (1970 & 2000)
- Unterkellert
- Erbbauzins: jährlich 3.938 €
Lage
Frankfurt-Goldstein - zwischen den Stadtteilen Niederrad und Schwanheim - grenzt im Süden an den Stadtwald und im Norden an das Mainufer. Der Stadtteil verfügt über viele Sport- und Freizeitangebote für Jung und Alt.
Die Goldsteinschule (Grundschule), die Leistungssportschule Carl-von-Weinberg-Schule (Gesamtschule mit Gymnasialzweig), Kindertagesstätten, Sportplätze, Einkaufsmöglichkeiten, der Stadtwald, das Mainufer und vieles mehr sind bequem fußläufig erreichbar.
Öffentliche Verkehrsmittel (Straßenbahn- und Buslinien) sind vorhanden. Der S-Bahnhof in Frankfurt-Niederrad ist innerhalb von 15-20 Minuten erreichbar.
Optimale Anbindung zum Frankfurter-Kreuz und zu den Autobahnen A5, A3 und der A66.
Grundriss
Grundriss EG
>
>
Grundriss OG
>
>
Grundriss DG
>
>
Grundriss KG
>
>
Adresse
60529 Frankfurt am Main
Interessante Orte
Preis- und Lageinformationen
Preistrend für Bestandsimmobilien in Schwanheim