Auf einem großzügigen Grundstück von ca. 2.043 m² erwartet Sie ein interessantes Ensemble aus zwei sanierungsbedürftigen Zweifamilienhäusern. Das erste Wohnhaus stammt aus dem Jahr 1961, das zweite wurde 1985 aus einer ehemaligen Stallung zu Wohnzwecken ausgebaut. Beide Gebäude beherbergen jeweils zwei abgeschlossene Wohnungen – insgesamt also vier Wohneinheiten mit viel Gestaltungsspielraum. Die Dachgeschosswohnung benötigt vor Bezug noch eine Genehmigung.
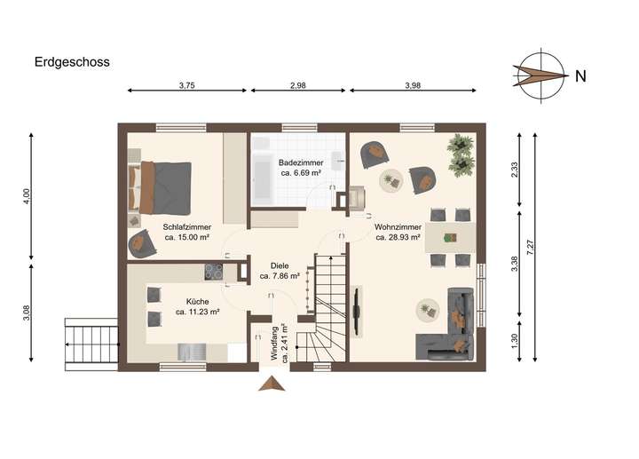
Die beiden hellen Vierzimmerwohnungen verfügen über ca. 100,09 m² bzw. 104,77 m² Wohnfläche und überzeugen durch durchdachte Grundrisse und große Fensterflächen. Die Erdgeschosswohnung ist aktuell vermietet und bietet bereits eine laufende Einnahmequelle. Das ältere Wohnhaus beherbergt zwei großzügige Zweizimmerwohnungen mit Wohnflächen von ca. 69,71 m² bzw. 73,20 m² – ideal für Paare, Singles oder als separate Einheiten für Familienmitglieder.
Das weitläufige Grundstück bietet zahlreiche Nutzungsmöglichkeiten: Zwei Garagen, mehrere Außenstellplätze, ein überdachter Innenhof sowie ein gepflegter Garten schaffen Raum für Freizeit, Hobby und Erholung.
Die Beheizung erfolgt über Nachtspeicheröfen, die Ausstattung entspricht größtenteils dem Baujahr. Somit eröffnet sich hier eine hervorragende Gelegenheit, mit einer Sanierung und individueller Gestaltung neues Leben in diese Immobilie zu bringen. Mehrgenerationenprojekt, Kapitalanlage oder Eigennutzung - es liegt in Ihrer Hand.
Kapitalanlage mit Potenzial in Nähe zu Wolfsburg – zwei Häuser auf einem Grundstück
38471 Rühen
Die vollständige Adresse der Immobilie erhalten Sie vom Anbieter.
Auf Karte anzeigen
Die vollständige Adresse der Immobilie erhalten Sie vom Anbieter.
Finanzierungszertifikat
In nur zwei Minuten zu Ihrem persönlichen Finanzierungszertifkat.
Infos
| Haustyp | Mehrfamilienhaus |
|---|---|
| Etagenzahl | 2 |
| Wohnfläche ca. | 347 m2 |
| Nutzfläche | 397,66 m2 |
| Grundstücksfläche | 2.043 m2 |
| Zimmer | 12 |
| Schlafzimmer | 8 |
| Badezimmer | 4 |
| Garage/Stellplatz | Garage |
| Anzahl Garage/Stellplatz | 2 |
Kosten
| Kaufpreis |
215.000 € |
|---|---|
| Provision |
Die Käuferprovision beträgt 3,57% inkl. 19% MwSt. vom notariellen Kaufpreis. |
Finanzierungsrechner:
Kaufpreis:
600.000 €
Eigenkapital:
600.000 €
Monatliche Rate
0 €
Effektiver Jahreszins
0 %
Sollzinsbindung
10 Jahre
Bausubstanz & Energieausweis
| Baujahr | 1961 |
|---|---|
| Heizungsart | Nachtspeicherofen |
| Wesentliche Energieträger | Strom |
| Energieausweis | liegt vor |
| Energieausweistyp | Bedarfsausweis |
| Energieverbrauchskennwert | 211,6 kWh/(m²*a) |
| Energieeffizienzklasse | G |
211,6
kWh/(m²*a)
Energieeffizienzklasse G
- A+
- A
- B
- C
- D
- E
- F
- G
- H
- 0
- 25
- 50
- 75
- 100
- 125
- 150
- 175
- 200
- 225
- >250
Beschreibung des Objekts
Ausstattung
- großes Grundstück mit Garten
- Ausbau der Nr. 9A im Jahr 1985
- zwei Garagen und mehrere Außenstellplätze
- Innenhof mit Terrasse großzügig überdacht
- vier separate Wohneinheiten
- zwei großzügige Zwei-Zimmer-Wohnungen
- eine geräumige Vier-Zimmer-Wohnung (vermietet)
- eine weitere Vier-Zimmer-Wohnung (Klärung Vermietbarkeit)
Lage
Brechtorf ist ein charmanter Ortsteil der Gemeinde Rühen im Landkreis Gifhorn und liegt inmitten einer ruhigen, landschaftlich reizvollen Umgebung zwischen Wolfsburg und Gifhorn. Die idyllische Lage kombiniert dörfliche Ruhe mit der Nähe zu den wirtschaftlich starken Zentren der Region. Ideal für alle, die naturnah wohnen und dennoch kurze Wege zur Arbeit oder in die Stadt schätzen.
Das familienfreundliche Dorf zeichnet sich durch eine gepflegte Nachbarschaft, ein aktives Vereinsleben und eine angenehme, ländliche Atmosphäre aus. In wenigen Minuten erreichen Sie Rühen, wo Einkaufsmöglichkeiten des täglichen Bedarfs, Kindergärten, Schulen, Ärzte und weitere Dienstleistungen vorhanden sind.
Die nahegelegene Stadt Wolfsburg ist in etwa 10 Minuten mit dem Auto erreichbar und bietet zahlreiche Arbeitgeber – darunter das Volkswagenwerk – sowie ein breites Kultur-, Freizeit- und Einkaufsangebot. Auch Gifhorn und Helmstedt sind gut erreichbar.
Brechtorf profitiert von einer sehr guten Verkehrsanbindung: Über die Bundesstraßen 188 und 244 sowie die Autobahn A39 gelangen Sie schnell in alle Richtungen. Die umliegenden Wälder, Wiesen und Radwege laden zu Spaziergängen, Fahrradtouren und Erholung in der Natur ein.
Insgesamt bietet Brechtorf eine attraktive Kombination aus ruhigem Wohnen im Grünen und der Nähe zu den urbanen Zentren. Ein idealer Wohnort für Familien, Berufspendler und alle, die Lebensqualität in naturnaher Umgebung suchen.
Sonstige Angaben
Alle Angaben in diesem Exposé beruhen auf Informationen des Verkäufers und wurden mit Sorgfalt zusammengestellt. Für deren Richtigkeit, Vollständigkeit und Aktualität übernehmen wir keine Haftung. Irrtümer und Zwischenverkauf bleiben vorbehalten.
Die dargestellten Fotos dienen der Veranschaulichung. Einzelne Bilder können digital optimiert oder mithilfe moderner Bildbearbeitung, einschließlich KI-gestützter Verfahren, angepasst worden sein. Maßgeblich ist der persönliche Eindruck bei einer Besichtigung.
Bitte beachten Sie, dass ausschließlich schriftliche Anfragen mit vollständig ausgefüllten Kontaktdaten bearbeitet werden können. Vielen Dank für Ihr Verständnis.
Gern berate ich Sie persönlich.
Möchten Sie Ihre Immobilie verkaufen?
☎ 0176 5767 6564
Ihr Ansprechpartner: Thomas Preuße
Grundriss
Grundriss Nr.9 EG
>
>
Grundriss Nr.9 OG
>
>
Grundriss Nr.9 KG
>
>
Grundriss Nr.9a EG
>
>
Grundriss Nr.9a DG
>
>
Adresse
38471 Rühen
Interessante Orte
Preis- und Lageinformationen
Preistrend für Bestandsimmobilien in Rühen