Dieses innen und außen denkmalgeschützte Einfamilienhaus befindet sich auf einem 582qm großen Grundstück (bestehend aus 2 Flurstücken) von F-Sachsenhausen Süd (Mühlberg).
Das Haus wurde Mitte des 19.Jahrhunderts (ca. 1855) als Sommerhaus fertiggestellt und ist als Kulturdenkmal der Stadt Frankfurt eingetragen. Es befindet sich in einer ruhigen Lage ohne viel Verkehr. Die S-Bahn-Station Mühlberg ist aber in unter 5 Minuten Fußweg zu erreichen.
historisches Haus in F-Sachsenhausen Süd
60599 Frankfurt am Main
Die vollständige Adresse der Immobilie erhalten Sie vom Anbieter.
Auf Karte anzeigen
Die vollständige Adresse der Immobilie erhalten Sie vom Anbieter.
Finanzierungszertifikat
In nur zwei Minuten zu Ihrem persönlichen Finanzierungszertifkat.
Infos
| Wohnfläche ca. | 107 m2 |
|---|---|
| Grundstücksfläche | 582 m2 |
| Zimmer | 5 |
| Garage/Stellplatz | Carport |
Kosten
| Kaufpreis |
800.000 € |
|---|---|
| Provision |
3,57% des Kaufpreises inkl. gesetzl. MwSt., jeweils von Käufer und Verkäufer |
Finanzierungsrechner:
Kaufpreis:
600.000 €
Eigenkapital:
600.000 €
Monatliche Rate
0 €
Effektiver Jahreszins
0 %
Sollzinsbindung
10 Jahre
Beschreibung des Objekts
Lage
Sachsenhausen ist der größte Stadtteil in Frankfurt und gehört gleichzeitig auch zu den beliebtesten Stadtteilen. Im Frankfurter Dialekt wird es auch „Dribbdebach“ genannt (jenseits des Flusses). Das Museumsufer gehört zu den international bekanntesten Sehenswürdigkeiten. Vom Ufer aus hat man einen einmaligen Blick auf die Frankfurter Skyline. Entlang der Schweizer Straße (und Nebenstraßen) reihen sich traditionelle Apfelweinlokale, Cafes, Bars, Gourmet- und Lifestyleläden. Die Nähe zur Stadtmitte und die gute Anbindung an das öffentliche Verkehrsnetz machen Sachsenhausen zu einer angenehmen und beliebten Wohnlage. Im Süden des Stadtteils befinden sich der Sachsenhäuser Berg sowie der Lerchesberg, beides Wohngebiet mit überwiegend 1-2 Familienhäusern mit schönen Grundstücken.
Sonstige Angaben
Da es sich um ein denkmalgeschütztes Gebäude handelt wird kein Energieausweis benötigt.
Da wir Objektangaben nicht selbst ermitteln, übernehmen wir hierfür keine Gewähr.
Unsere Courtage ist verdient und fällig bei Vertragsabschluss
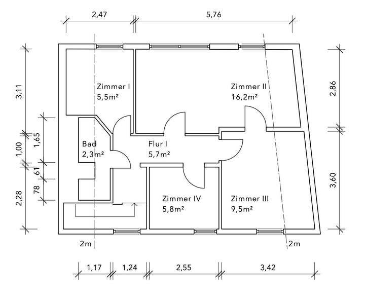
Grundriss
Grundriss EG
>
>
Grundriss 1.OG
>
>
Grundriss DG
>
>
Adresse
60599 Frankfurt am Main
Interessante Orte
Preis- und Lageinformationen
Preistrend für Bestandsimmobilien in Sachsenhausen-Süd