Diese charmante Doppelhaushälfte aus dem Baujahr um 1929 wurde in massiver Bauweise errichtet und befindet sich auf einem großzügigen, ca. 1.403 m² großen Grundstück, das ideell geteilt ist. Laut Teilungserklärung sind ca. 842 m² dieser Fläche dem hier angebotenen Haus zugeordnet.
Die Immobilie bietet eine Wohn- und Nutzfläche von rund 150 m², verteilt auf Erdgeschoss, Obergeschoss und ein ausgebautes Dachgeschoss. Insgesamt stehen 5 Zimmer zur Verfügung, die eine flexible Nutzung für Paare oder kleine Familien ermöglichen.
Die aktuell reine Wohnfläche beträgt ca. 116 m².
Im Erdgeschoss gelangen Sie über einen kleinen, einladenden Windfang in den Wohnbereich. Hier befinden sich die Küche, ein Vollbad, ein Gäste-WC, der Heizungsraum sowie ein Zugang zu einem Werkstattraum, der vielfältige Nutzungsmöglichkeiten bietet.
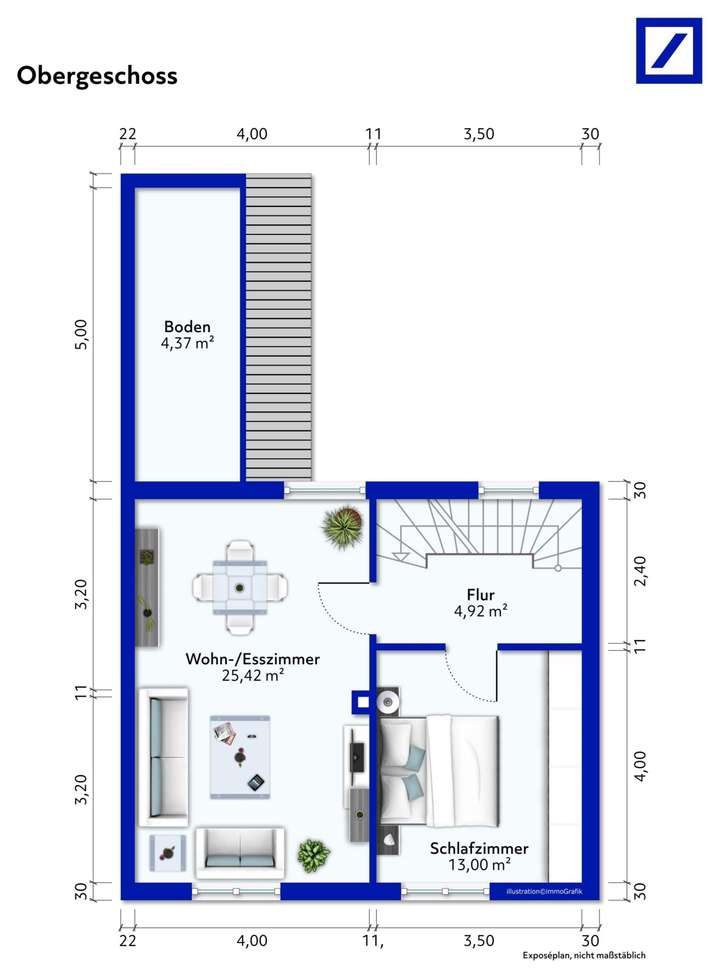
Über eine charmante Holztreppe erreichen Sie das Obergeschoss, das ein Schlafzimmer sowie das wohl Herzstück des Hauses beherbergt – ein lichtdurchflutetes, großzügiges Wohnzimmer, das mit seinem gemütlichen Charakter überzeugt.
Im ausgebauten Dachgeschoss stehen drei vollwertige Zimmer zur Verfügung, die sich ideal als Kinder-, Arbeits- oder Gästezimmer eignen.
Rückwärtig zur Immobilie befindet sich ein Doppelcarport, das zum Haus gehört und ausreichend Stellfläche für Fahrzeuge bietet. Beheizt wird das Haus über eine Gas-Zentralheizung.
Zwar besteht ein Sanierungsbedarf, da die letzte umfassende Modernisierung in den 1970er-Jahren erfolgte, doch überzeugt die Immobilie mit ihrem massiven Ausbaupotenzial. Eine Erweiterung des Gebäudes ist grundsätzlich möglich, wodurch zusätzlicher Wohnraum geschaffen werden kann – eine ideale Grundlage für individuelle Gestaltungsideen und langfristige Wertsteigerung.
Sanierungsbedürftige DHH mit Anbaupotenzial in ruhiger Lage von HH Alt-Nettelnburg
21035 Hamburg
Die vollständige Adresse der Immobilie erhalten Sie vom Anbieter.
Auf Karte anzeigen
Die vollständige Adresse der Immobilie erhalten Sie vom Anbieter.
Finanzierungszertifikat
In nur zwei Minuten zu Ihrem persönlichen Finanzierungszertifkat.
Infos
| Haustyp | Doppelhaushaelfte |
|---|---|
| Etagenzahl | 2 |
| Wohnfläche ca. | 115 m2 |
| Grundstücksfläche | 841,8 m2 |
| Zimmer | 5 |
| Schlafzimmer | 4 |
| Badezimmer | 1 |
| Garage/Stellplatz | Carport |
| Anzahl Garage/Stellplatz | 1 |
Kosten
| Kaufpreis |
419.000 € |
|---|---|
| Provision |
3,57 % inkl. ges. MwSt. |
Finanzierungsrechner:
Kaufpreis:
600.000 €
Eigenkapital:
600.000 €
Monatliche Rate
0 €
Effektiver Jahreszins
0 %
Sollzinsbindung
10 Jahre
Bausubstanz & Energieausweis
| Baujahr | 1929 |
|---|---|
| Letzte Sanierung | 1970 |
| Bauphase | Haus fertig gestellt |
| Heizungsart | Zentralheizung |
| Wesentliche Energieträger | Gas |
| Energieausweis | liegt vor |
| Energieausweistyp | Bedarfsausweis |
| Energieverbrauchskennwert | 332,0 kWh/(m²*a) |
| Energieeffizienzklasse | H |
332,0
kWh/(m²*a)
Energieeffizienzklasse H
- A+
- A
- B
- C
- D
- E
- F
- G
- H
- 0
- 25
- 50
- 75
- 100
- 125
- 150
- 175
- 200
- 225
- >250
Beschreibung des Objekts
Ausstattung
- DHH Baujahr ca. 1929
- Großzügiges Grundstück mit ca. 842 m²
- ca. 150 m² Wohn- und Nutzfläche verteilt auf drei Ebenen mit 5 Zimmern, davon ca. 116 m² Wohnfläche
- Ausgebautes Dachgeschoss
- Doppelcarport
- Erweiterungs- und Ausbaupotenzial
Lage
Die Immobilie befindet sich in einer ruhigen und familienfreundlichen Wohngegend im beliebten Hamburger Stadtteil Alt-Nettelnburg im Bezirk Bergedorf. Das Umfeld ist geprägt von gepflegten Einfamilien- und Doppelhäusern mit großzügigen Gärten und einem grünen, gewachsenen Charakter. Hier verbinden sich angenehme Wohnruhe und die Nähe zur Natur mit einer guten Anbindung an das Hamburger Stadtzentrum.
Einkaufsmöglichkeiten für den täglichen Bedarf, Schulen, Kindergärten sowie Ärzte befinden sich in unmittelbarer Umgebung. Der nahegelegene Ortskern von Bergedorf bietet zudem ein vielfältiges Angebot an Geschäften, Restaurants und Cafés.
Auch verkehrstechnisch ist die Lage attraktiv: Über die S-Bahn-Station Nettelnburg ist die Hamburger Innenstadt in etwa 25 Minuten erreichbar. Die Autobahn A25 sowie die B5 bieten eine schnelle Verbindung in Richtung Innenstadt, Geesthacht und zur Elbregion.
Für Freizeit und Erholung sorgen die nahegelegenen Naturschutzgebiete rund um die Dove Elbe, zahlreiche Spazier- und Radwege sowie der Bergedorfer Gehölzpark. Diese Lage bietet damit eine ideale Kombination aus städtischer Anbindung und naturnahem Wohnen.
Sonstige Angaben
Mit der Deutsche Bank Immobilien GmbH haben Sie starke Partner an Ihrer Seite!
Rund 850 selbstständige Immobilienberaterinnen und -berater betreuen Sie bundesweit persönlich und erfolgsorientiert – von der professionellen Marktpreiseinschätzung bis zur Vertragsunterzeichnung.
Warum mit weniger zufrieden geben, wenn Sie alles aus einer Hand bekommen können?
Mit der Deutsche Bank Immobilien GmbH entscheiden Sie sich für einen Partner, der weit über die Leistungen eines klassischen Maklers hinausgeht. Als Bankenmakler vereinen wir Immobilienkompetenz, Finanzstärke und die Sicherheit einer renommierten Marke – für Ihren erfolgreichen Weg zur Traumimmobilie oder zum bestmöglichen Verkaufserfolg.
Persönliche Beratung – bundesweit und engagiert
Profitieren Sie von unserer einzigartigen Vertriebsreichweite, einem starken Netzwerk und umfassender Finanzierungskompetenz.
Ob Kauf, Verkauf, Geldanlage oder Vermögensberatung – bei uns erhalten Sie alles aus einer Hand. Wir kombinieren Immobilienvermittlung mit individueller Finanzierungsberatung und ganzheitlichen Lösungen rund um Ihr Vermögen.
Vertrauen, Sicherheit und Erfolg
Lassen Sie Ihre Immobilie kostenfrei bewerten oder vereinbaren Sie direkt ein persönliches Beratungsgespräch.
Wir freuen uns darauf, Sie kennenzulernen – persönlich, transparent und partnerschaftlich.
Tipp: Wenn Sie regelmäßig über neue Immobilienangebote und Markttrends informiert werden möchten, abonnieren Sie gerne unseren kostenlosen Newsletter auf unserer Homepage.
Rechtlicher Hinweis auf den Urheber des Exposés
Amir Shabanpour
Selbstständiger Immobilienberater
Bengelsdorfstr. 19 22179 Hamburg
E-Mail: amir.shabanpour@db.com
Telefon: 040 767970120
Aufsichtsbehörde: Freie Hansestadt Hamburg Bezirksamt Wandsbek
Internet: https://www.hamburg.de/politik-und-verwaltung/bezirke/wandsbek/ihr-bezirksamt
Anschrift: Schloßstraße 60 ; 22041 Hamburg
Grundriss
Grundriss Erdgeschoss
>
>
Grundriss Obergeschoss
>
>
Grundriss Dachgeschoss
>
>
Adresse
21035 Hamburg
Interessante Orte
Preis- und Lageinformationen
Preistrend für Bestandsimmobilien in Bergedorf