Zum Verkauf steht ein hochwertiges Neubau-Mehrfamilienhaus in begehrter Lage von Hamburg-Wandsbek. Das im Jahr 2025 errichtete Objekt umfasst drei moderne Wohnungen sowie eine flexible Büroeinheit und überzeugt durch nachhaltige Energietechnik, exklusive Ausstattung und eine hervorragende Infrastruktur. Ideal für Kapitalanleger oder zur Kombination von Wohnen und Arbeiten.
Am Thiedeweg 24 entsteht ein architektonisch klares und zukunftssicheres Mehrfamilienhaus mit insgesamt 4 Einheiten auf einem 318 m² großen Grundstück. Die Wohnungsgrößen liegen zwischen 77 m² und 99 m², ergänzt durch eine Büroeinheit im Souterrain.
Großzügige Grundrisse, bodentiefe Fenster und Balkone sorgen für lichtdurchflutete Räume und hohen Wohnkomfort. Die hochwertige Bauausführung sowie die energieeffiziente Haustechnik machen dieses Objekt zu einer wertstabilen und nachhaltigen Investition.
Finanzierungszertifikat
In nur zwei Minuten zu Ihrem persönlichen Finanzierungszertifkat.
Infos
| Haustyp | Mehrfamilienhaus |
|---|---|
| Etagenzahl | 3 |
| Wohnfläche ca. | 320 m2 |
| Nutzfläche | 371 m2 |
| Grundstücksfläche | 318 m2 |
| Bezugsfrei ab | 30.1.2026 |
| Zimmer | 12 |
| Schlafzimmer | 7 |
| Badezimmer | 4 |
| Garage/Stellplatz | Außenstellplatz |
| Anzahl Garage/Stellplatz | 2 |
Kosten
| Kaufpreis |
2.295.000 € |
|---|---|
| Provision | Nein |
Finanzierungsrechner:
Kaufpreis:
600.000 €
Eigenkapital:
600.000 €
Monatliche Rate
0 €
Effektiver Jahreszins
0 %
Sollzinsbindung
10 Jahre
Bausubstanz & Energieausweis
| Baujahr | 2025 |
|---|---|
| Bauphase | Haus fertig gestellt |
| Objektzustand | Neuwertig |
| Heizungsart | Wärmepumpe |
| Energieausweis | liegt vor |
| Energieausweistyp | Bedarfsausweis |
| Energieverbrauchskennwert | 29,6 kWh/(m²*a) |
| Energieeffizienzklasse | A |
29,6
kWh/(m²*a)
Energieeffizienzklasse A
- A+
- A
- B
- C
- D
- E
- F
- G
- H
- 0
- 25
- 50
- 75
- 100
- 125
- 150
- 175
- 200
- 225
- >250
Beschreibung des Objekts
Lage
Hamburg-Wandsbek ist ein beliebter Stadtteil mit einer guten Infrastruktur. Zahlreiche Einkaufsmöglichkeiten für den täglichen Bedarf sowie Ärzte und Schulen sind gut erreichbar. Die Anbindung an den öffentlichen Nahverkehr ist ausgezeichnet, was schnelle Wege in die Hamburger Innenstadt ermöglicht. Diverse Grünflächen und Parks in der Umgebung laden zur Erholung ein und bieten Freizeitmöglichkeiten für Jung und Alt.
Weitere Dokumente
ExposeGrundriss
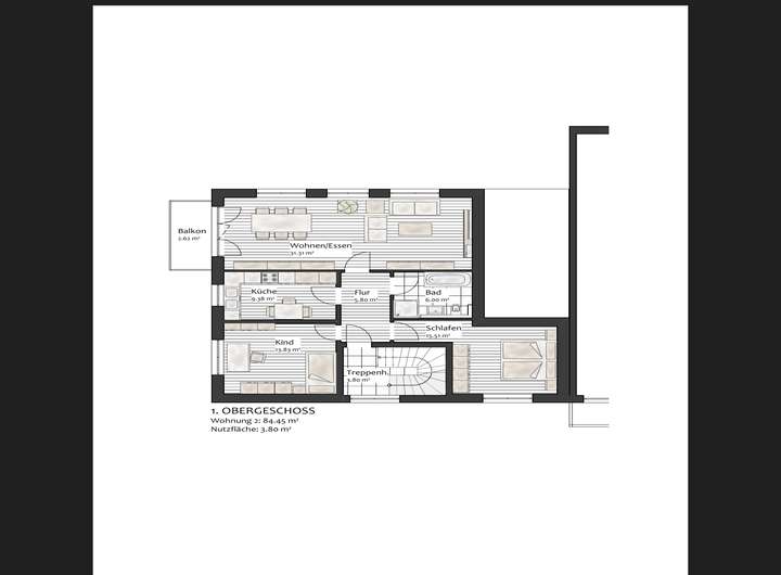
1_Obergeschoss
>
>
2_Obergeschoss
>
>
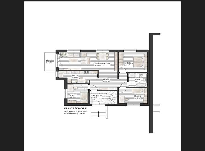
Erdgeschoss
>
>
Keller
>
>
Adresse
Thiedeweg 24, 22047 Hamburg
Interessante Orte
Preis- und Lageinformationen
Preistrend für Bestandsimmobilien in Wandsbek