Dieser vielseitige Investoren-Knaller befindet sich im Herzen Bad Homburgs, neben der heißbegehrten Louisenstraße.
Mit insgesamt 15 Zimmern und einer großzügigen Wohnfläche von 304 m², besticht dieses Objekt mit seinem einzigartigen Grundriss. Die an der Fußgängerzone liegende Front des Hauses, beinhaltet zwei vermietete Ladeflächen und eine obere Einliegerwohnung. Der begrünte Hinterhof kann seitlich, wie auch durch den vorderen Haupteingang betreten werden und führt zu den weiteren Wohneinheiten.
Die beiden Mehrfamilienhäuser sind vollausgebaut und verfügen über eine moderne Waschküche, einem Teilkeller und einem Gäste-WC. Insgesamt sind diese Einheiten mit 7 Bädern ausgestattet. Der nach hinten ausgerichtete, groß angelegte Garten, ist eine wahre Ruheoase und auch eine zusätzliche Terrasse bietet exklusiven Freiraum. Es steht für die Fahrzeuge Ihrer Mieter ein Stellplatz zur Verfügung.
Besonderes Highlight Ihres Investoren-Glücks: Um den historischen Charakter der Bad-Homburger Altstadt zu wahren, stehen die vorderen Gewerbeeinheiten, aus dem Baujahr 1716, unter Ensembleschutz!
Der Massivbau wird mit Gas geheizt. Sie profitieren zudem von der erst kürzlich begonnenen Modernisierung der Wärmedämmung, aus dem Jahr 2022. Die doppelt-verglasten Kunststofffenster sorgen für weiteren Komfort.
In bester Lage und unter optimalen Voraussetzungen, lohnt es sich definitiv, in diese Wohn- und Gewerbefläche zu investieren!
LOUISENSTRAßE 📍 Mehrfamilienhaus mit 2 Ladenflächen in Top-Lage von Bad Homburg!
61348 Bad Homburg vor der Höhe
Die vollständige Adresse der Immobilie erhalten Sie vom Anbieter.
Auf Karte anzeigen
Die vollständige Adresse der Immobilie erhalten Sie vom Anbieter.
Finanzierungszertifikat
In nur zwei Minuten zu Ihrem persönlichen Finanzierungszertifkat.
Infos
| Haustyp | Mehrfamilienhaus |
|---|---|
| Etagenzahl | 2 |
| Wohnfläche ca. | 304 m2 |
| Nutzfläche | 20 m2 |
| Grundstücksfläche | 374 m2 |
| Bezugsfrei ab | Nach Absprache |
| Zimmer | 15 |
| Anzahl Garage/Stellplatz | 1 |
Kosten
| Kaufpreis |
1.250.000 € |
|---|---|
| Provision |
5,95 % inkl. MwSt. Die Käuferprovision beträgt 5,95 % inkl. der gesetzlichen MwSt. vom Kaufpreis und ist verdient und fällig bei Abschluss des notariellen Kaufvertrages. |
| Mieteinnahmen | 5.462 € |
Finanzierungsrechner:
Kaufpreis:
600.000 €
Eigenkapital:
600.000 €
Monatliche Rate
0 €
Effektiver Jahreszins
0 %
Sollzinsbindung
10 Jahre
Bausubstanz & Energieausweis
| Baujahr | 1716 |
|---|---|
| Letzte Sanierung | 2022 |
| Bauphase | Haus fertig gestellt |
| Objektzustand | Gepflegt |
| Qualität der Austattung | Normal |
| Heizungsart | Gas-Heizung |
| Wesentliche Energieträger | Gas |
| Energieausweis | liegt vor |
Beschreibung des Objekts
Ausstattung
- 4 Wohneinheiten
- Brutto-Jahresmiete: 65.544 €
- doppelt-verglaste Fenster
- Waschküche
- Teilkeller
- Gäste-WC
- Garten
- Stellplatz
- Ensemble
- Massivbau
- Terrasse
Modernisierungen:
- Wärmedämmung (teilweise, 2022)
- Badezimmer (2010)
- teilw. Fenster (2010)
- Heizungsleitungen (2000)
Lage
Bad Homburg ist eine charmante Stadt im Taunus und zeichnet sich durch eine lebendige Mischung aus urbanem Leben, historischen Elementen und erholsamer Natur aus. Das Haus liegt in einer ruhigen Seitenstraße, die direkt in die Louisenstraße mündet – damit profitieren Sie von einer nahezu einzigartigen Lage, bei der Sie fußläufig sämtliche Vorteile der Innenstadt erreichen, ohne unmittelbar im Trubel zu wohnen.
Die Louisenstraße ist die zentrale Einkaufs‑ und Geschäftsstraße der Stadt mit einer Länge von etwa 1,5 Kilometern und markiert das wirtschaftliche und soziale Herz der Innenstadt. Entlang dieser Straße finden sich zahlreiche Boutiquen, Fachgeschäfte, Cafés, Restaurants, Dienstleister und Einkaufspassagen – darunter moderne Einkaufszentren und renommierte Einzelhändler – die zum Flanieren, Einkaufen und Verweilen einladen.
Die Lage des Hauses ist insbesondere durch die Mikrolage direkt am Übergang von ruhigem Wohnumfeld zur belebten Innenstadt geprägt. In wenigen Schritten erreichen Sie die Louisenstraße inklusive ihrer fußgängerfreundlichen Abschnitte, wodurch sich tägliche Wege zu Einkaufsmöglichkeiten, Gastronomie und urbanen Angeboten entspannt zu Fuß erledigen lassen. Gleichzeitig sorgt die Seitenstraße für eine ruhige Wohnatmosphäre mit geringem Durchgangsverkehr.
Nur einen kurzen Spaziergang entfernt liegt zudem der weitläufige Kurpark – eine grüne Oase mit Spazierwegen, Sitzbereichen und Erholungsmöglichkeiten mitten in der Stadt. Diese unmittelbare Nähe verbindet städtisches Leben mit naturnahem Rückzugsraum in direkter Umgebung.
Die hervorragende Anbindung an den öffentlichen Nahverkehr ermöglicht bequeme Verbindungen in die gesamte Rhein‑Main‑Region, einschließlich Frankfurt und umliegender Städte. Kurzstrecken zum Bus und zur Bahn sind fußläufig erreichbar und erleichtern den Alltag sowohl für Berufspendler als auch für Freizeitaktivitäten.
Außerdem verfügt Bad Homburg über ein vielfältiges Angebot an Schulen, Betreuungseinrichtungen und Bildungsstätten in der Umgebung, was die Lage auch für Familien besonders attraktiv macht.
Sonstige Angaben
Haftungsausschluss:
Alle in diesem Exposé enthaltenen Angaben, Darstellungen und Berechnungen stammen vom Verkäufer oder wurden von Dritten übernommen. Eine Haftung für die Richtigkeit, Vollständigkeit und Aktualität der Angaben kann nicht übernommen werden. Jegliche Haftung für Schäden, die durch die Nutzung der in diesem Exposé enthaltenen Informationen entstehen, wird ausdrücklich ausgeschlossen.
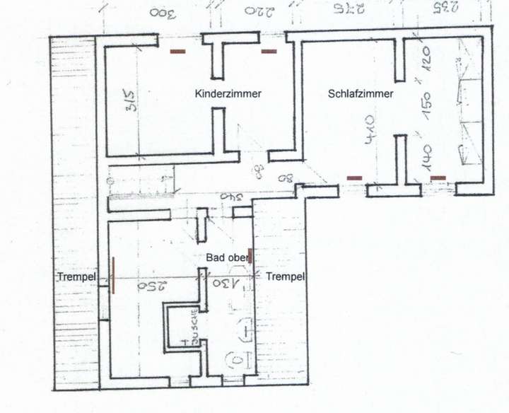
Grundriss
Grundriss EG
>
>
Grundriss OG
>
>
Adresse
61348 Bad Homburg vor der Höhe
Interessante Orte
Preis- und Lageinformationen
Preistrend für Bestandsimmobilien in Bad Homburg vor der Höhe