Dieser moderne Bungalow in Hamburg-Bergstedt ist nicht nur ein architektonisches Highlight, sondern auch ein Raum, der nach deinen persönlichen Wünschen und Vorstellungen gestaltet wird. Mit einer großzügigen Wohnfläche von 110,45 m² und einem Grundstück von 650 m² bietet er dir und deiner Familie viel Platz zum Entfalten. Die besondere Fassade des Hauses zieht sofort die Blicke auf sich und die beiden Querhäuser rechts und links schaffen eine einladende Einbuchtung unter dem Walmdach. Hier kannst du deinen Freisitz ganz nach deinem Geschmack gestalten und ihn als Terrasse nutzen, um die warmen Sonnenstrahlen zu genießen. Die Aufteilung des Hauses bietet dir zudem einen großzügigen Wohnraum, der perfekt für große Essgruppen geeignet ist, sowie einen gemütlichen Rückzugsort in deinem Schlafzimmer mit einer Leseecke.
LivingHaus bietet dir zahlreiche zusätzliche Leistungen, die deinen Bauprozess erleichtern und dein Zuhause zu einem echten Traumhaus machen. Die hochwertige Traumküche wird speziell auf deinen Grundriss angepasst und kommt mit modernster Technik sowie cleveren Stauraumlösungen, sodass du direkt nach dem Einzug loskochen kannst. Mit der Living Haus Bau-App behältst du jederzeit den Überblick über dein Bauprojekt. Von der Zeitplanung bis zur Dokumentenverwaltung hast du alles digital im Griff.
Das I-KON Konzept verbindet intelligentes Bauen mit nachhaltigen Lösungen, damit dein Zuhause energieeffizient und umweltfreundlich ist. Auch die Finanzierung deines Traumhauses ist dank des Zuhause-Darlehens mit exklusiven Vorteilen unkompliziert, wobei du von staatlichen Förderprogrammen profitieren kannst.
Das Zuhause-Paket umfasst eine hochwertige Grundausstattung mit modernen Böden, edlen Türen und stilvollen Sanitäranlagen, alles perfekt aufeinander abgestimmt und fix und fertig geliefert. Wenn du Lust auf DIY-Projekte hast, steht dir ein Ausbau-Coaching zur Verfügung, bei dem Experten dir in nur drei Tagen zeigen, wie du den Innenausbau selbst meisterst.
Mit LivingHaus erhältst du ein durchdachtes Gesamtkonzept, das von der Finanzierung über die Planung bis zur individuellen Ausgestaltung reicht - damit dein Traumhaus so sicher und passend wie möglich verwirklicht wird.
Gestalte dein individuelles Traumhaus in Hamburg-Bergstedt mit LivingHaus
22395 Hamburg
Die vollständige Adresse der Immobilie erhalten Sie vom Anbieter.
Auf Karte anzeigen
Die vollständige Adresse der Immobilie erhalten Sie vom Anbieter.
Finanzierungszertifikat
In nur zwei Minuten zu Ihrem persönlichen Finanzierungszertifkat.
Infos
| Haustyp | Bungalow |
|---|---|
| Wohnfläche ca. | 110 m2 |
| Nutzfläche | 110,45 m2 |
| Grundstücksfläche | 650 m2 |
| Zimmer | 4 |
| Schlafzimmer | 1 |
| Badezimmer | 1 |
Kosten
| Kaufpreis |
763.204 € |
|---|
Finanzierungsrechner:
Kaufpreis:
600.000 €
Eigenkapital:
600.000 €
Monatliche Rate
0 €
Effektiver Jahreszins
0 %
Sollzinsbindung
10 Jahre
Bausubstanz & Energieausweis
| Baujahr | 2027 |
|---|---|
| Bauphase | Haus in Planung (projektiert) |
| Energieausweis | liegt vor |
| Energieausweistyp | Bedarfsausweis |
| Energieverbrauchskennwert | 18,0 kWh/(m²*a) |
| Energieeffizienzklasse | A+ |
18,0
kWh/(m²*a)
Energieeffizienzklasse A+
- A+
- A
- B
- C
- D
- E
- F
- G
- H
- 0
- 25
- 50
- 75
- 100
- 125
- 150
- 175
- 200
- 225
- >250
Beschreibung des Objekts
Ausstattung
Die Ausstattung deines neuen Bungalows ist auf höchstem Niveau. Du erhältst eine hochwertige Traumküche, die perfekt auf deinen Grundriss abgestimmt ist. Das Zuhause-Paket umfasst moderne Böden, edle Türen und stilvolle Sanitäranlagen, alles optimal aufeinander abgestimmt und fix & fertig geliefert. Zudem profitierst du von einem hohen Vorfertigungsgrad, der den Bauprozess effizient gestaltet. Selbstverständlich sind auch alle essenziellen Bauversicherungen, eine 18-monatige Festpreisgarantie sowie die Baufinanzierungsschutz enthalten.
Moderne Wärmepumpentechnik mit Komfortlüftung sorgt für ein angenehmes Raumklima und niedrige Energiekosten. Aluminiumgeschäumte Rollläden bieten im Sommer Hitzeschutz und tragen im Winter zur Wärmedämmung bei. Du kannst dich auf eine individuelle Gestaltung deines Innenausbaus freuen, wobei du auch Baustrom- und Bauwasseranschlüsse über Living Haus organisieren lassen kannst.
Mit einem innovativen DIY-Ausbau-Coaching wirst du zum Profi in deinem eigenen Zuhause. Genieße die Freiheit, dein "Wie ich es will Fertighaus" zu gestalten und individuell anzupassen.
Lage
In Hamburg-Bergstedt erwartet dich eine hervorragende Anbindung an Bildung, Gesundheit, Einkauf und Freizeit. Hier befinden sich mehrere Kindergärten sowie Grund- und weiterführende Schulen, die eine gute Ausbildung für deine Kinder gewährleisten. Die Grundschule Bergstedt wird von Eltern sehr geschätzt und bietet ein familiäres Umfeld. Auch das Gymnasium in der Umgebung hat einen ausgezeichneten Ruf.
Für den täglichen Bedarf sorgen diverse Supermärkte und Fachgeschäfte in unmittelbarer Nähe. Der Edeka und der Rewe sind besonders beliebt und bieten eine breite Auswahl an Lebensmitteln. Ärzte und Apotheken sind ebenfalls in der Umgebung zu finden, sodass du stets gut versorgt bist.
Freizeitangebote sind in Bergstedt vielfältig. Die umliegende Natur lädt zu ausgedehnten Spaziergängen und Radtouren ein. Der Bergstedter Moorpark ist ein schöner Ort zum Entspannen und die Nähe zur Alster bietet Möglichkeiten für Wassersport und Erholung. Auch Sportvereine und Freizeitaktivitäten wie Tennis und Fußball sind in der Nähe.
Die Anbindung an den öffentlichen Nahverkehr ist hervorragend, mit Buslinien, die dich schnell in die Hamburger Innenstadt bringen. Auch die Autobahn A1 ist in wenigen Minuten erreichbar und ermöglicht dir eine unkomplizierte Anbindung an das Umland und die Metropolregion. Bergstedt ist der ideale Ort für Familien, Naturliebhaber und Pendler, die eine ruhige und dennoch zentrale Lage suchen.
Sonstige Angaben
Das hier angebotene Grundstück ist im obigen Preis eingerechnet, es wird ohne zusätzliche Provision einen Living Haus - Bauherrn bereitgestellt.
Zusätzliche Baunebenkosten müssen noch hinzugerechnet werden, hierüber beraten wir dich gerne.
Wir bieten auch interessante Finanzierungsmöglichkeiten inklusive Beantragung aller Fördermittel!
Die Hausabbildung und die Bilder der Inneneinrichtung zeigen möglicherweise Extras, die nicht im Kaufpreis inbegriffen sind.
Gute Beratung ist der Anfang von Allem. Deshalb analysieren wir gemeinsam mit euch eure Vorstellungen, Wünsche und Bedürfnisse und finden das für dich und deiner Familie
Living Haus.
Interessiert? Kontaktiere mich und vereinbare noch heute einen kostenlosen und unverbindlichen Beratungstermin unter
0170-4711970
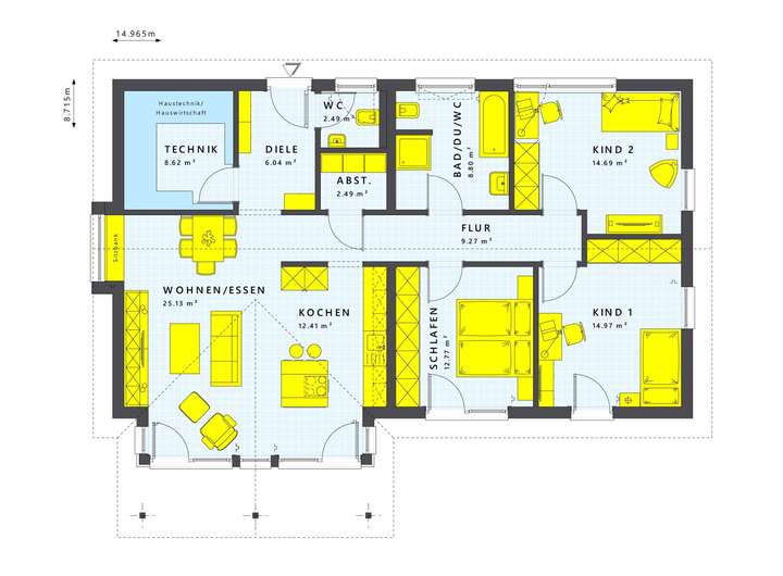
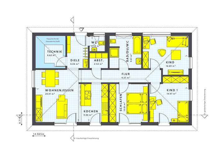
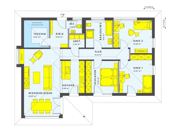
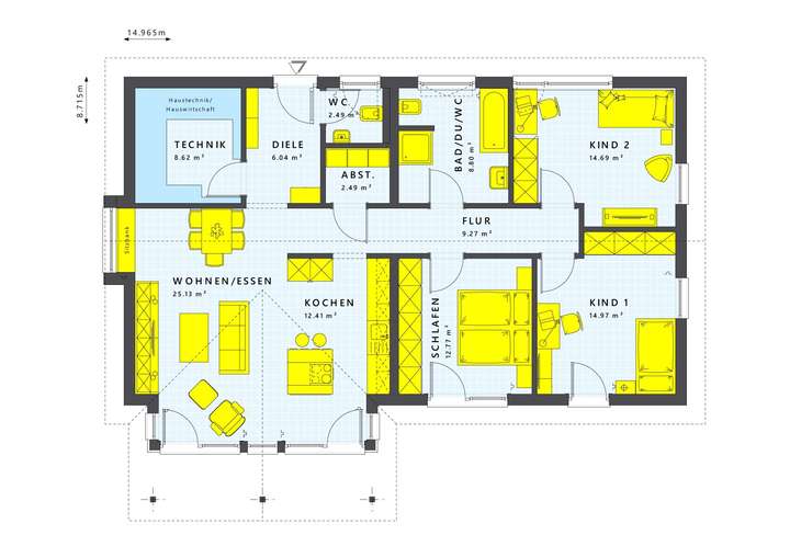
Grundriss
Gestaltungsbeispiel - Familien
>
>
Gestaltungsbeispiel - Familien
>
>
Gestaltungsbeispiel - Familien
>
>
Gestaltungsbeispiel - Wohnkom
>
>
Gestaltungsbeispiel mit Keller
>
>
Adresse
22395 Hamburg
Interessante Orte
Preis- und Lageinformationen
Preistrend für Bestandsimmobilien in Bergstedt