Hat die Immobilie Ihr Interesse geweckt und wünschen Sie das Exposé?
Aus Exklusivitätsgründen ist die Kontaktaufnahme über das Portal derzeit ausschließlich für KäuferPlus-Kunden möglich.
Gerne können Sie mich jederzeit direkt per E-Mail unter breitenstein@nordside-immobilien.de kontaktieren – ich lasse Ihnen das Exposé umgehend zukommen.
Zum Verkauf steht dieses charmante und gepflegte Reihenendhaus im gefragten Ortsteil Bremen-Nord / Hammersbeck.
Die Immobilie überzeugt durch eine durchdachte Raumaufteilung, helle Wohnräume und ausgewählte hochwertige Ausstattungsmerkmale und bietet ideale Voraussetzungen für komfortables Wohnen.
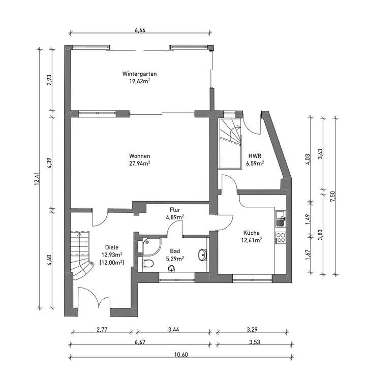
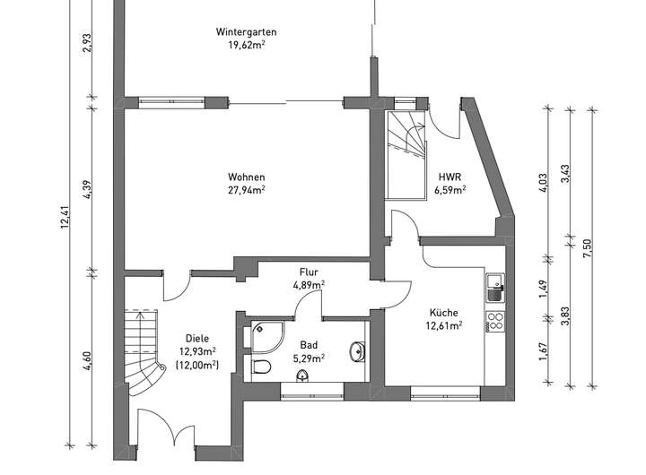
Die Wohnfläche von ca. 133 m² verteilt sich auf mehrere Ebenen und wird durch einen lichtdurchfluteten Wintergarten (Baujahr 2004) auf besonders attraktive Weise ergänzt. Dieser bildet das Herzstück des Hauses und verbindet den Wohnbereich mit dem Garten. Ausgestattet mit einer Fußbodenheizung, einem zusätzlichen Heizkörper sowie einem Ofen, ist der Wintergarten ganzjährig nutzbar und schafft eine besonders behagliche Wohnatmosphäre. Von hier aus eröffnet sich ein Blick ins Grüne sowie ein direkter Zugang in den Garten, wodurch der Innen- und Außenbereich harmonisch miteinander verbunden werden.
Der Eingangsbereich empfängt Bewohner und Gäste freundlich und bietet Zugang sowohl zum Obergeschoss als auch zum Wohnbereich mit angrenzendem Wintergarten. Vom zentral gelegenen Flur aus erreicht man zudem das Badezimmer im Erdgeschoss, das ursprünglich als Gäste-WC konzipiert und zu einem vollwertigen Badezimmer erweitert wurde. Dieses verfügt über eine Dusche, eine Toilette, ein zusätzliches Pissoir sowie einen großzügigen Waschbeckenbereich und bietet damit auch für Gäste einen hohen Komfort.
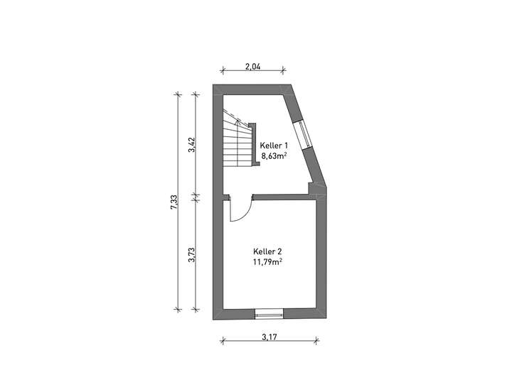
Die hochwertige Einbauküche der Marke Nolte ist funktional und angenehm dimensioniert. Sie ist mit hochwertigen Elektrogeräten ausgestattet und bereits im Kaufpreis enthalten. Der angrenzende Hauswirtschaftsraum bietet praktische Abstell- und Arbeitsflächen. Von hier aus gelangt man sowohl in den Keller als auch in den Gartenbereich, was kurze Wege und einen hohen Alltagskomfort ermöglicht. Die vorhandene Teilunterkellerung schafft zusätzliche Nutz- und Abstellmöglichkeiten.
Der Gartenbereich lädt zum Entspannen ein und besticht durch einen freien, unverbauten Blick ins Grüne. Die überdachte Terrasse bietet einen geschützten Platz für gemütliche Stunden im Freien. Eine Garage sowie ein angrenzender Abstellraum ergänzen den Außenbereich sinnvoll.
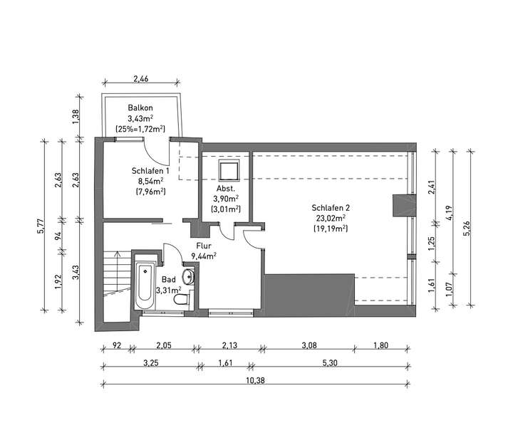
Im Obergeschoss befinden sich zwei Schlafräume, ein Badezimmer mit Badewanne sowie ein weiterer kompakt geschnittener, individuell nutzbarer Raum, der sich ideal als Büro, Ankleide oder Hobbyraum eignet. Zusätzlich steht ein Dachboden als Stauraum zur Verfügung.
Dieses Reihenendhaus eignet sich ideal für Paare oder kleine Familien, die ein gepflegtes Zuhause mit hellen Räumen, durchdachter Aufteilung und ruhiger Lage mit Blick ins Grüne in Bremen-Nord suchen.
Bremen - Vegesack I Charmantes Reihenendhaus mit Wintergarten und Garage
28755 Bremen
Die vollständige Adresse der Immobilie erhalten Sie vom Anbieter.
Auf Karte anzeigen
Die vollständige Adresse der Immobilie erhalten Sie vom Anbieter.
Finanzierungszertifikat
In nur zwei Minuten zu Ihrem persönlichen Finanzierungszertifkat.
Infos
| Haustyp | Reiheneckhaus |
|---|---|
| Etagenzahl | 2 |
| Wohnfläche ca. | 133 m2 |
| Grundstücksfläche | 427 m2 |
| Zimmer | 5 |
| Schlafzimmer | 2 |
| Badezimmer | 2 |
| Garage/Stellplatz | Garage |
| Anzahl Garage/Stellplatz | 2 |
Kosten
| Kaufpreis |
249.000 € |
|---|---|
| Provision |
3,57% inkl. MwSt |
Finanzierungsrechner:
Kaufpreis:
600.000 €
Eigenkapital:
600.000 €
Monatliche Rate
0 €
Effektiver Jahreszins
0 %
Sollzinsbindung
10 Jahre
Bausubstanz & Energieausweis
| Baujahr | 1972 |
|---|---|
| Letzte Sanierung | 2004 |
| Objektzustand | Gepflegt |
| Qualität der Austattung | Normal |
| Heizungsart | Öl-Heizung |
| Wesentliche Energieträger | Öl |
| Energieausweis | liegt vor |
| Energieausweistyp | Bedarfsausweis |
| Energieverbrauchskennwert | 246,5 kWh/(m²*a) |
| Energieeffizienzklasse | G |
246,5
kWh/(m²*a)
Energieeffizienzklasse G
- A+
- A
- B
- C
- D
- E
- F
- G
- H
- 0
- 25
- 50
- 75
- 100
- 125
- 150
- 175
- 200
- 225
- >250
Beschreibung des Objekts
Ausstattung
+ Überdachte Terrasse
+ Helle, lichtdurchflutete Räume
+ 2 voll ausgestattete Badezimmer
+ Garage mit angrenzendem Abstellraum
+ Hochwertige Einbauküche der Marke Nolte
+ Wintergarten (Baujahr 2004) mit Fußbodenheizung und Ofen
Lage
Die Immobilie befindet sich in einer ruhigen und gewachsenen Wohnlage im Bremer Norden, im beliebten Stadtteil Hammersbeck. Die Umgebung ist überwiegend von gepflegten Ein- und Reihenhäusern geprägt und zeichnet sich durch eine angenehme Nachbarschaft sowie ein familienfreundliches Wohnumfeld aus.
Dank der guten infrastrukturellen Anbindung sind Einkaufsmöglichkeiten für den täglichen Bedarf, Schulen, Kindergärten, Ärzte und Apotheken in kurzer Entfernung erreichbar. Öffentliche Verkehrsmittel sind fußläufig gut erreichbar, der Bahnhof Bremen-Burg liegt etwa 8,5 km entfernt, sodass eine schnelle Anbindung an die Bremer Innenstadt und umliegende Städte gewährleistet ist. Die Autobahnauffahrten befinden sich in rund 8 km Entfernung, ideal für Pendler.
Die Lage bietet zudem eine hohe Lebensqualität und Freizeitnähe: Zum beliebten Waterfront Einkaufs- und Freizeitcenter sind es ca. 18 km, während der Filmpalast Bremen mit Kino- und Unterhaltungsangeboten in etwa 6 km erreichbar ist. Auch die angrenzenden Ortsteile Schwanewede und Leuchtenburg liegen in kurzer Entfernung und bieten weitere Einkaufs-, Versorgungs- und Freizeitmöglichkeiten.
Insgesamt vereint diese Wohnlage ruhiges Wohnen im Grünen mit guter Anbindung an Verkehr, Einkauf und Freizeit, sodass alle Vorteile der Stadt und des Umlands gleichermaßen genutzt werden können.
Sonstige Angaben
Falls auch Sie Interesse an einer zuverlässigen und professionellen Unterstützung beim Verkauf Ihrer Immobilie haben, steht Nordside Immobilien gerne zur Verfügung.
Das Unternehmen begleitet Eigentümer von der ersten Beratung bis zum erfolgreichen Abschluss – transparent, engagiert und mit der richtigen Markterfahrung.
Für weitere Informationen oder zur Vereinbarung eines unverbindlichen Gesprächs kann jederzeit Kontakt aufgenommen werden.
Impressum
Christina-Marie Breitenstein
Nordside Immobilien
Feldhäuser Straße 23B
28865 Lilienthal
0151 519 55 483
breitenstein(at)nordside-immobilien.de
Grundriss
Grundriss Erdgeschoss
>
>
Grundriss Obergeschoss
>
>
Grundriss Dachboden
>
>
Grundriss Keller
>
>
Adresse
28755 Bremen
Interessante Orte
Preis- und Lageinformationen
Preistrend für Bestandsimmobilien in Aumund-Hammersbeck