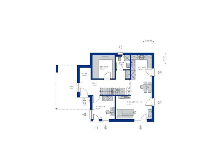
Das projektierte Bien-Zenker Haus EVOLUTION 136 in Hamburg besticht durch seine geschmackvolle Architektur und vielfältigen Möglichkeiten. Mit einer Wohnfläche von 140 m² und einer durchdachten Aufteilung von 5 Zimmern, inklusive 3 Schlafzimmern und 2 Badezimmern, bietet es der ganzen Familie den idealen Rückzugsort. Die clevere Raumaufteilung ermöglicht eine harmonische Verbindung von Arbeit und Freizeit im Erdgeschoss, während das Obergeschoss individuelle Rückzugsräume für Privatsphäre und Ruhe bereithält. Ein besonderes Highlight ist die elegante, geradläufige Treppe, die den Eingangsbereich aufwertet und die beiden Etagen nahtlos verbindet.
Das Haus überzeugt nicht nur architektonisch, sondern auch durch seine Komfortdetails. Lichtdurchflutete Räume schaffen eine einladende Atmosphäre und ermöglichen die Verwirklichung persönlicher Designwünsche. Der großzügige Garten mit rund 770 m² Grundstücksfläche lädt zum Entspannen und Spielen ein. Die angrenzenden Terrassen und Balkone sind ideal für gesellige Abende mit Freunden und Familie.
Die angebotene Ausbaustufe umfasst den gesamten Bauprozess bis zur letzten Fliese. Wir übernehmen sowohl den Rohbau als auch den Innenausbau, sodass Sie sich um nichts kümmern müssen. Alle Anforderungen des staatlichen Qualitätssiegels für Nachhaltigkeit werden erfüllt, und Sie profitieren von maximalem Wohnkomfort. Zudem sichern Sie sich attraktive KfW-Förderungen, um den Bauablauf wirtschaftlich zu gestalten. Genießen Sie den stressfreien Weg zu Ihrem Traumhaus mit Bien-Zenker!
Grundrisse und Abbildungen können Extras zeigen. Flächenangaben nach DIN 277.
Ihr Wunschhaus individuell geplant in Hamburg - Rahlstedt mit guter Anbindung
22149 Hamburg
Die vollständige Adresse der Immobilie erhalten Sie vom Anbieter.
Auf Karte anzeigen
Die vollständige Adresse der Immobilie erhalten Sie vom Anbieter.
Finanzierungszertifikat
In nur zwei Minuten zu Ihrem persönlichen Finanzierungszertifkat.
Infos
| Haustyp | Einfamilienhaus |
|---|---|
| Wohnfläche ca. | 140 m2 |
| Grundstücksfläche | 770 m2 |
| Zimmer | 5 |
| Schlafzimmer | 3 |
| Badezimmer | 2 |
Kosten
| Kaufpreis |
825.400 € |
|---|
Finanzierungsrechner:
Kaufpreis:
600.000 €
Eigenkapital:
600.000 €
Monatliche Rate
0 €
Effektiver Jahreszins
0 %
Sollzinsbindung
10 Jahre
Bausubstanz & Energieausweis
| Baujahr | unbekannt |
|---|---|
| Bauphase | Haus in Planung (projektiert) |
| Qualität der Austattung | Gehoben |
Beschreibung des Objekts
Ausstattung
Der Grundriss des EVOLUTION 136 ist durchdacht und bietet eine perfekte Aufteilung für Ihre Bedürfnisse. Mit 5 Zimmern auf 140 m² Wohnfläche haben Sie ausreichend Platz für die ganze Familie. Die 3 Schlafzimmer sind ruhig gelegen und bieten jedem einen Rückzugsort, während die 2 Badezimmer Funktionalität und Komfort vereinen und entspanntes Wohnen ermöglichen. Die kluge Raumaufteilung sorgt dafür, dass Sie im Erdgeschoss Wohn- und Arbeitsbereiche harmonisch kombinieren können, während das Obergeschoss individuelle Rückzugsmöglichkeiten bietet.
Besonderheiten wie der geräumige Garten und die lichtdurchfluteten Räume bereichern Ihr Zuhause und schaffen eine behagliche Atmosphäre. Genießen Sie die Sonne auf der Terrasse oder im Garten, der mit seinen 770 m² genügend Platz für Freizeitaktivitäten bietet. Die geradläufige Treppe führt elegant ins Obergeschoss, welches mit offenen Räumen und großen Fenstern eine einladende Lichtstimmung schafft. Hier fühlen Sie sich sofort wohl und können Ihre kreativen Einrichtungswünsche umsetzen.
In der gewählten Ausbaustufe übernehmen wir den kompletten Bau für Sie, sodass Sie sich um nichts kümmern müssen. Vom Rohbau bis zur letzten Fliese wird alles professionell umgesetzt und entspricht höchsten Nachhaltigkeitsstandards. Dies garantiert Ihnen nicht nur maximalen Komfort, sondern auch eine stressfreie Bauphase mit attraktiven KfW-Förderungen. So wird der Weg in Ihr neues Zuhause zu einem entspannten Erlebnis, bei dem Sie stets im Mittelpunkt stehen.
Lage
Hamburg bietet hervorragende Lebensqualität und zahlreiche Möglichkeiten für Bildung, Gesundheit, Einkauf und Freizeit. In unmittelbarer Nähe zu Ihrem neuen Zuhause im Stadtteil Rahlstedt finden Sie viele Schulen, Kindergärten und Bildungseinrichtungen, die eine optimale Förderung Ihrer Kinder gewährleisten. Die Gesundheitsversorgung ist durch moderne Kliniken und Arztpraxen gesichert, die schnell erreichbar sind und Ihnen hohe Sicherheit bieten.
Einkaufsmöglichkeiten sind reichlich vorhanden. Ob große Einkaufszentren, lokale Geschäfte oder gemütliche Märkte - hier finden Sie alles für den täglichen Bedarf. Auch für Freizeitaktivitäten ist gesorgt: Parks, Sporteinrichtungen und kulturelle Angebote laden zu abwechslungsreichen Unternehmungen ein.
Die Verkehrsanbindung in Hamburg ist hervorragend. Dank eines gut ausgebauten öffentlichen Nahverkehrsnetzes sind Sie schnell und unkompliziert in der gesamten Stadt unterwegs. Auch die Autobahn ist in kurzer Zeit zu erreichen, was Pendlern und Reisenden zugutekommt. Genießen Sie die Vorzüge einer lebendigen Stadt, die gleichzeitig genügend Raum für Erholung und Natur bietet.
Sonstige Angaben
Der angegebene Wert zur Grunderwerbsteuer ist ein automatisierter Wert des Portalbetreibers und entspricht nicht der Realität, da die Grunderwerbsteuer nur auf den im Gesamtangebot enthaltenen Grundstückswert berechnet wird.
Inkl. PV-Anlage und Speicher für die eigene Stromversorgung.
Auf Wunsch können alle Kriterien für eine KFN-QNG-Förderung erfüllt werden.
Hausabbildungen mit Sonderwünschen.
Grundrisse können individuell geändert und angepasst werden. Auf Wunsch ist ein Keller möglich.
Adresse
22149 Hamburg
Interessante Orte
Preis- und Lageinformationen
Preistrend für Bestandsimmobilien in Rahlstedt
>
>