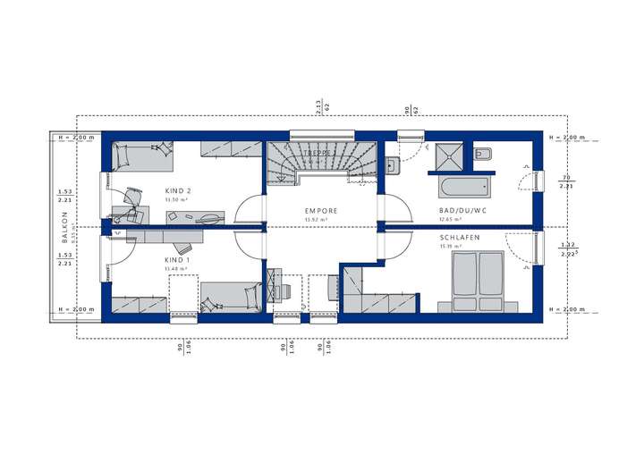
Das Bien-Zenker BALANCE 148 ist ein modernes und stilvolles Fertighaus, das individuell nach Ihren Vorstellungen gestaltet werden kann. Die Wohnfläche von 148 m² auf einem 450 m² großen Grundstück bietet ausreichend Platz für eine vierköpfige Familie. Die Architektur des Hauses beeindruckt mit einer zentralen Geschosstreppe, die dem Erdgeschoss eine besondere Note verleiht und das Wohnen zum Erlebnis macht. Die zonierte Raumaufteilung schafft eine klare Struktur und verbindet die Wohnbereiche harmonisch. Ein besonderes Highlight ist die lichtdurchflutete Empore, die als Kreativplatz dient und eine einladende Atmosphäre schafft.
Ästhetik und Funktionalität stehen beim BALANCE 148 im Vordergrund. Drei Schlafzimmer und zwei Badezimmer bieten Rückzugsmöglichkeiten und Komfort für die gesamte Familie. Die durchdachte Raumaufteilung gewährleistet Privatsphäre und gemeinschaftliches Wohnen im Einklang. Große Fensterflächen lassen viel Licht herein und bieten einen schönen Blick in die Natur.
In der Ausbaustufe "Schlüsselfertig" übernimmt Bien-Zenker den gesamten Hausbau, vom Rohbau bis zur letzten Fliese, unter Berücksichtigung aller Anforderungen des staatlichen Qualitätssiegels für Nachhaltigkeit. Dies bietet maximalen Komfort und ermöglicht attraktive Förderungen über die KfW. Lehnen Sie sich entspannt zurück, während wir Ihr neues Zuhause erschaffen.
Es sind individuelle Anpassungen aufgrund des Bebauungsplans zu berücksichtigen.
Grundrisse und Abbildungen können Extras zeigen. Flächenangaben nach DIN 277.
Bien-Zenker: Individuelles Wohnen mit Stil in Hamburg - Volksdorf mit guter Anbindung
22359 Hamburg
Die vollständige Adresse der Immobilie erhalten Sie vom Anbieter.
Auf Karte anzeigen
Die vollständige Adresse der Immobilie erhalten Sie vom Anbieter.
Finanzierungszertifikat
In nur zwei Minuten zu Ihrem persönlichen Finanzierungszertifkat.
Infos
| Haustyp | Einfamilienhaus |
|---|---|
| Wohnfläche ca. | 148 m2 |
| Grundstücksfläche | 450 m2 |
| Zimmer | 4 |
| Schlafzimmer | 3 |
| Badezimmer | 2 |
Kosten
| Kaufpreis |
885.640 € |
|---|
Finanzierungsrechner:
Kaufpreis:
600.000 €
Eigenkapital:
600.000 €
Monatliche Rate
0 €
Effektiver Jahreszins
0 %
Sollzinsbindung
10 Jahre
Bausubstanz & Energieausweis
| Baujahr | unbekannt |
|---|---|
| Bauphase | Haus in Planung (projektiert) |
| Qualität der Austattung | Gehoben |
Beschreibung des Objekts
Ausstattung
Der Grundriss des Bien-Zenker BALANCE 148 ist so konzipiert, dass er den Bedürfnissen einer modernen Familie gerecht wird. Mit drei einladenden Schlafzimmern und zwei funktionalen Badezimmern bietet Ihr zukünftiges Zuhause ausreichend Platz für alle Familienmitglieder. Die durchdachte Anordnung der Räume gewährleistet nicht nur Privatsphäre, sondern auch eine angenehme Raumwirkung, die das Zusammenleben fördert. Die lichtdurchflutete Empore fungiert als kreativer Rückzugsort und bringt eine besondere Leichtigkeit in den Wohnbereich.
Komfort wird im BALANCE 148 großgeschrieben. Genießen Sie die großzügigen Fensterfronten, die nicht nur für eine hervorragende Belichtung sorgen, sondern auch für eine harmonische Verbindung zwischen Innen- und Außenbereich. Die Empore lädt dazu ein, den Alltag hinter sich zu lassen und sich in einer inspirierenden Umgebung zu entfalten. Darüber hinaus sorgt ein gut geplanter Abstellraum dafür, dass alles seinen Platz hat und Ordnung herrscht, was besonders für Familien von großem Nutzen ist.
Die Ausbaustufe "Schlüsselfertig" bietet Ihnen den Vorteil eines rundum sorglosen Bauablaufs. Bien-Zenker kümmert sich um alle Details, sodass Sie sich ganz auf Ihre Wünsche konzentrieren können. Im Preis sind alle notwendigen Leistungen enthalten, vom Rohbau über die Installation bis hin zu den letzten Feinheiten. Dies garantiert nicht nur einen reibungslosen Ablauf, sondern auch eine hohe Qualität, die Sie bei jedem Schritt des Bauprozesses erleben werden.
Lage
Volksdorf, ein Stadtteil von Hamburg, bietet eine ideale Umgebung für Ihr neues Zuhause. Der aktuelle Bebauungsplan führt zu Anpassungen in der Infrastruktur, was die Attraktivität des Viertels weiter erhöht. Hamburg selbst ist eine pulsierende Metropole mit zahlreichen Möglichkeiten für Bildung, Gesundheit, Einkauf und Freizeit.
In der Nähe Ihres neuen Zuhauses befinden sich erstklassige Schulen und Kindergärten sowie viele medizinische Einrichtungen und Fachärzte, die eine hervorragende Gesundheitsversorgung sicherstellen. Einkaufsmöglichkeiten für den täglichen Bedarf, große Shopping-Center und lokale Märkte laden zum Bummeln ein. Die Freizeitgestaltung kommt ebenfalls nicht zu kurz: Parks, Sporteinrichtungen und kulturelle Angebote bieten für jeden Geschmack etwas.
Dank der hervorragenden Anbindung an den öffentlichen Nahverkehr erreichen Sie schnell die Innenstadt und andere Stadtteile. Auch die Autobahn ist nur wenige Minuten entfernt und ermöglicht eine schnelle Erreichbarkeit umliegender Städte. In dieser lebhaften Umgebung werden Sie und Ihre Familie sich schnell wohlfühlen und das Leben in vollen Zügen genießen können.
Sonstige Angaben
Der angegebene Wert zur Grunderwerbsteuer ist ein automatisierter Wert des Portals und entspricht nicht der Realität, da die Grunderwerbsteuer nur auf den Grundstückswert des Gesamtangebots berechnet wird.
Inklusive PV-Anlage und Speicher für die eigene Stromversorgung.
Auf Wunsch können alle Kriterien für eine KFN-QNG-Förderung erfüllt werden.
Hausabbildungen mit Sonderwünschen.
Grundrisse können individuell geändert und angepasst werden.
Auf Wunsch ist ein Keller möglich.
Adresse
22359 Hamburg
Interessante Orte
Preis- und Lageinformationen
Preistrend für Bestandsimmobilien in Volksdorf
>
>