Die Immobilie war ursprünglich ein 1965 erbauter Bungalow auf einem wunderschönen, süd-westlich ausgerichtetem Grundstück mit einer Fläche von circa 1.018 m².
Im Jahr 2008 wurde der Bungalow um eine Etage aufgestockt. Im Jahr 2022 erfolgte eine umfassende Kernsanierung des gesamten Objekts.
Das Grundstück ist dank hoher Hecken und eingewachsener Bepflanzung rundum blickgeschützt und eingezäunt und bietet ein hohes Maß an Privatsphäre.
Der besondere Charme dieses Hauses liegt in der großzügigen Raumaufteilung, die durch den durchdachten Grundriss ermöglicht wird. Im EG befindet sich die offene Küche , welche mit hochwertigen Einbaugeräten und einem Weinkühlschrank ausgestattet ist. Ein Highlight bietet der lichtdurchflutete Wohn- und Essbereich. Ein Gästebad, ein Schlafzimmer mit angeschlossenem Ankleidezimmer sowie ein großzügiges Bad en suite runden das Erdgeschoss ab. Im OG befinden sich zwei Schlafzimmer, ein Badezimmer mit getrenntem WC und ein Ankleidezimmer/ Abstellraum. Die drei angeschlossenen Balkone bieten einen wunderschönen Blick in den gepflegten Garten.
Auf dem Grundstück befindet sich ein Gartenhaus in Massivbauweise, das ehemals als Poolhaus diente. Der Pool wurde professionell stillgelegt und durch eine hochwertige Holzkonstruktion eines Tischlers elegant überbaut. Dadurch kann das Gebäude heute flexibel und vielseitig genutzt werden – etwa als Gäste- oder Aufenthaltsbereich, Atelier oder für private Feiern. Es verfügt über ein eigenes Badezimmer und eine großzügige Dusche, es wird beheizt über Heizkörper und derzeit als Sport- und Fitnessraum genutzt.
Das Haus verfügt über zwei großzügige Terrassen. Eine Hauptterrasse (Süd-West-Ausrichtung) liegt direkt am Haus und eine weitere nach Süden ausgerichtete Terrasse, welche direkt am ehemaligen Poolhaus liegt.
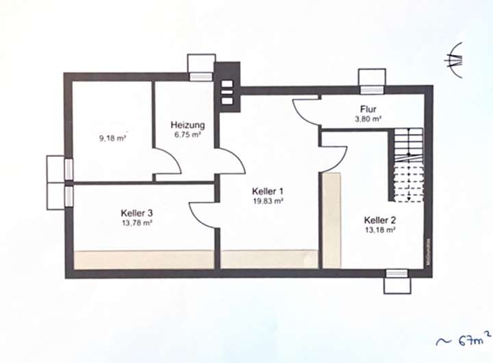
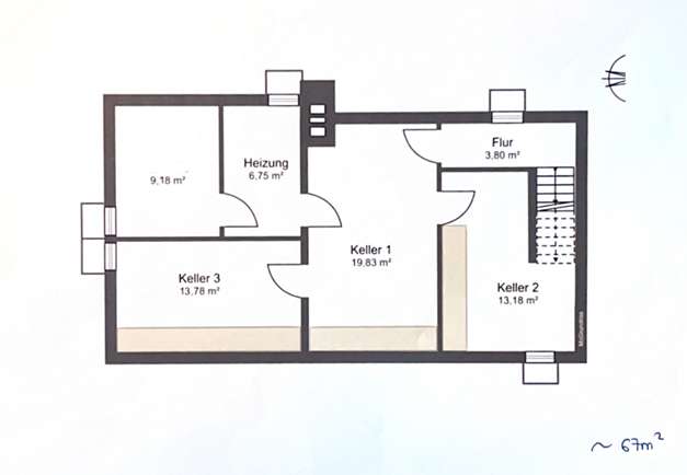
Die Immobilie ist teilunterkellert; hier sind 4 weitere Räume zu finden.
Zusätzlich verfügt die Immobilie über eine Garage und zwei Außenstellplätze.
Traumhaftes Einfamilienhaus in Bestlage von Lemsahl – Mellingstedt
22397 Hamburg
Die vollständige Adresse der Immobilie erhalten Sie vom Anbieter.
Auf Karte anzeigen
Die vollständige Adresse der Immobilie erhalten Sie vom Anbieter.
Finanzierungszertifikat
In nur zwei Minuten zu Ihrem persönlichen Finanzierungszertifkat.
Infos
| Haustyp | Einfamilienhaus |
|---|---|
| Etagenzahl | 3 |
| Wohnfläche ca. | 179 m2 |
| Nutzfläche | 137 m2 |
| Grundstücksfläche | 1.018 m2 |
| Zimmer | 5,5 |
| Schlafzimmer | 3 |
| Badezimmer | 4 |
| Garage/Stellplatz | Garage |
| Anzahl Garage/Stellplatz | 1 |
Kosten
| Kaufpreis |
1.290.000 € |
|---|---|
| Provision | Nein |
Finanzierungsrechner:
Kaufpreis:
600.000 €
Eigenkapital:
600.000 €
Monatliche Rate
0 €
Effektiver Jahreszins
0 %
Sollzinsbindung
10 Jahre
Bausubstanz & Energieausweis
| Baujahr | 1965 |
|---|---|
| Letzte Sanierung | 2021 |
| Bauphase | Haus fertig gestellt |
| Objektzustand | Modernisiert |
| Qualität der Austattung | Luxus |
| Heizungsart | Wärmepumpe |
| Wesentliche Energieträger | Strom |
| Energieausweis | liegt vor |
| Energieausweistyp | Bedarfsausweis |
| Energieverbrauchskennwert | 75,2 kWh/(m²*a) |
| Energieeffizienzklasse | B |
75,2
kWh/(m²*a)
Energieeffizienzklasse B
- A+
- A
- B
- C
- D
- E
- F
- G
- H
- 0
- 25
- 50
- 75
- 100
- 125
- 150
- 175
- 200
- 225
- >250
Beschreibung des Objekts
Lage
Das Einfamilienhaus befindet sich im idyllischen Stadtteil Lemsahl-Mellingstedt im Bezirk Wandsbek, einem der grünsten und ruhigsten Wohngebiete Hamburgs und liegt in einer verkehrsberuhigten Anliegerstraße mit einer Höchstgeschwindigkeit von 30 km/h. Sie liegt zentral im Ortsteil und bietet eine familienfreundliche Nachbarschaft mit gepflegten Einfamilienhäusern und viel Grün.
Die Umgebung zeichnet sich durch ihre naturnahe Lage aus. In unmittelbarer Nähe befinden sich der Alsterlauf, weitläufige Wiesen und Wälder, die zu Spaziergängen, Radtouren und Freizeitaktivitäten einladen. Trotz der ruhigen Lage ist die Anbindung an den öffentlichen Nahverkehr gut: Die Bushaltestelle "Ödenweg" (ca. 600 m) ist fußläufig erreichbar und bietet mit den Linien 176 und 276 regelmäßige Verbindungen in Richtung Hamburger Innenstadt und in die umliegenden Stadtteile. Mit dem Auto ist man in 20 min am Flughafen und in 40 min in der Innenstadt.
Einkaufsmöglichkeiten für den täglichen Bedarf, Schulen, Kindergärten und medizinische Einrichtungen befinden sich in der näheren Umgebung und sind sowohl mit dem Auto als auch mit dem Fahrrad gut erreichbar. Für Erholung und Freizeitgestaltung liegen der nahegelegene Golfclub Treudelberg sowie das Naturschutzgebiet Rodenbeker Quellental vor Ort.
Insgesamt bietet die Lage eine perfekte Kombination aus naturnahem Wohnen und guter Infrastruktur, ideal für Familien und alle, die ein ruhiges Zuhause im Grünen suchen, ohne auf die Vorzüge der Großstadt verzichten zu wollen.
Sonstige Angaben
Ausstattungs-Highlights
• Sanierung 2022 – anspruchsvolles Design & Top-Materialien
• Großzügiger, heller und offener Wohn- und Essbereich
• Hochwertiges Echtholz-Eichenparkett im XL-Fischgrät-Muster
• Fußbodenheizung im EG
• Teilunterkellert
• Terrasse mit Garten (Süd- Westausrichtung)
• Uneinsehbares Grundstück
• Multifunktionales, ehemaliges Poolhaus mit großer Fensterfront
• Perfekter und durchdachter Grundriss
Modernisierungen / Zustand
• 2022 neue Viessmann Heizungsanlage und Erneuerung aller Rohre und Umrüstung auf Luftwärmepumpe
• 2022 Installation einer PV Anlage mit einer Kapazität von circa 7,5 kWp
• 2022 Gesamte Elektrik, CAT 7 Verkabelung
• 2022 Sanierung aller Böden und Bäder und Umrüstung auf Fußbodenheizung im EG
• 2022 Alle Wände glatt verputzt
• 2022 Alle Fenster neu (ehemaliges Poolhaus/ Gartenhaus tlw. erneuert)
• 2022 Vorkehrungen für Wallbox Installation
• 2022 Einbau Klimaanlage in beiden Kinderzimmern im OG mit Außengerät
• 2017 Einblasdämmung
Die Immobilie befindet sich in einem sehr gepflegten und einzugsbereiten Zustand.
Grundriss
Grundriss EG
>
>
Grundriss OG
>
>
Grundriss Keller
>
>
Adresse
22397 Hamburg
Interessante Orte
Preis- und Lageinformationen
Preistrend für Bestandsimmobilien in Lemsahl-Mellingstedt