ERST BAUEN – DANN ZAHLEN ! Bei uns zahlen Sie erst, wenn Ihr ScanHaus steht.
ScanHaus, der Fertighaushersteller !
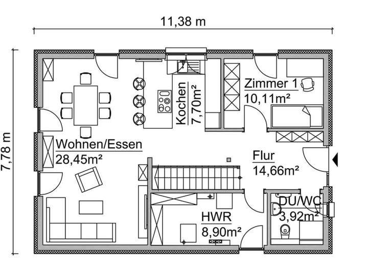
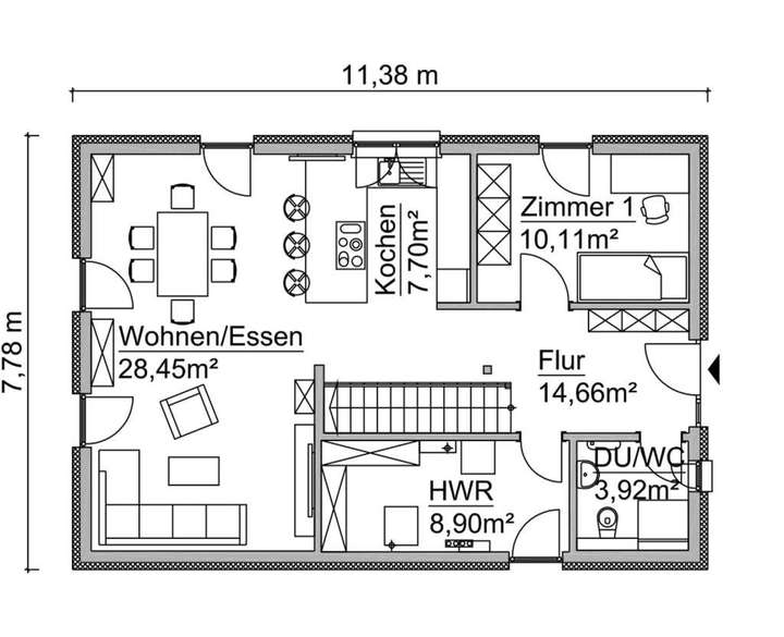
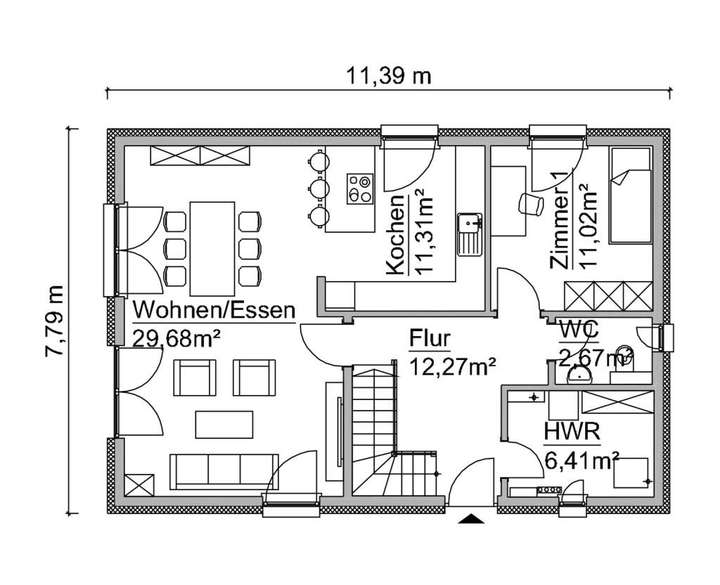
Familienfreundlich das Wohnkonzept des SH 142 ist auf insgesamt fünf Zimmer ausgelegt. Bei Variante B erschließen sich über den Flur der mit 29 m² angelegte Ess- und Wohnbereich mit offener Küche, ein weiteres Zimmer, Hauswirtschaftsraum und Gäste-WC. Im Dachgeschoss wurden das Schlafzimmer, zwei weitere Zimmer und das Vollbad – alle von der Diele aus erreichbar – geplant.
Bei ScanHaus Marlow haben bereits viele Haustypen mehrere Grundrissvarianten. Sollte Ihnen keine Variante zusprechen, ist es selbstverständlich möglich den Grundriss nach Ihren individuellen Wünschen und Bedürfnissen in Abstimmung mit unseren Architekten anzupassen.
Bestseller SH 142 Familien freundliches KfW Effizienzhaus 40 incl. Grundstück
31234 Edemissen
Die vollständige Adresse der Immobilie erhalten Sie vom Anbieter.
Auf Karte anzeigen
Die vollständige Adresse der Immobilie erhalten Sie vom Anbieter.
Finanzierungszertifikat
In nur zwei Minuten zu Ihrem persönlichen Finanzierungszertifkat.
Infos
| Haustyp | Einfamilienhaus |
|---|---|
| Etagenzahl | 2 |
| Wohnfläche ca. | 142 m2 |
| Nutzfläche | 142 m2 |
| Grundstücksfläche | 768 m2 |
| Zimmer | 5 |
| Schlafzimmer | 3 |
| Badezimmer | 1 |
Kosten
| Kaufpreis |
409.500 € |
|---|---|
| Provision | Nein |
Finanzierungsrechner:
Kaufpreis:
600.000 €
Eigenkapital:
600.000 €
Monatliche Rate
0 €
Effektiver Jahreszins
0 %
Sollzinsbindung
10 Jahre
Bausubstanz & Energieausweis
| Baujahr | 2027 |
|---|---|
| Bauphase | Haus in Planung (projektiert) |
| Objektzustand | Erstbezug |
| Qualität der Austattung | Gehoben |
| Heizungsart | Wärmepumpe |
| Energieausweis | liegt vor |
Beschreibung des Objekts
Ausstattung
ERST BAUEN – DANN ZAHLEN ! Bei uns zahlen Sie erst, wenn Ihr ScanHaus steht.
Mit einer absoluten Festpreisgarantie sind Sie auf der sicheren Seite.
Inklusive folgender Ausstattungsmerkmale:
° KfW Effizienzhaus 40 im Grundpreis
° 20 cm Erdarbeiten u. Bodenplatte
° Estrich im gesamten EG+OG
° Putzfassade inkl. Wärmedämmverbundsystem
° Fußbodenheizung im EG + OG sowie modernster Luft/Wasser/Wärmepumpe
° 3-fach-verglaste Kunststoff-Isolierfenster inkl. Grundlüftungssystem und Aluminium-Rolläden
° komplett fertiger Innenausbau
nur Bodenbeläge sowie Maler- und Spachtelarbeiten in Eigenleistung.
° Innentüren inkl. Drückergarnituren
° Sanitärelemente für Hauptbad und Gäste-WC inkl.
° Blower Door Test
Lage
Der Grundstückspreis ist im Angebot mit einkalkuliert.
Das Grundstück präsentiert sich als Baulücke und bietet eine ideale Gelegenheit, Ihr individuelles Eigenheim zu realisieren.
Breite 16,0m - Tiefe 46m
Die Bebauung richtet sich nach §34 des Baugesetzbuches (BauGB), was Flexibilität und individuelle Gestaltungsmöglichkeiten ermöglicht.
Das Grundstück ist eine Baulücke in einer ruhigen Wohngegend, was optimale Bedingungen für ein behagliches Zuhause schafft.
Bebauung nach §34 BauGB: Dies ermöglicht eine individuelle Bebauung, die sich harmonisch in die umliegende Bebauung einfügt.
Internetgeschwindigkeit: Das Grundstück profitiert von einer beeindruckenden Internetgeschwindigkeit von 1000 MBit/s, um modernen Wohn- und Arbeitsanforderungen gerecht zu werden.
Sonstige Angaben
Das Grundstück ist im obigen Preis eingerechnet, es wird ohne zusätzliche Provision für einen ScanHaus Bauherren bereitgestellt.
Zusätzliche Baunebenkosten müssen noch hinzugerechnet werden. Hierüber beraten wir Sie gern.
Wir bieten Ihnen interessante Finanzierungsmöglichkeiten inklusive Beantragung aller Fördermittel!
Die in dieser Anzeige dargestellten Abbildungen können zum Teil aufpreispflichtige Sonderausstattungen enthalten.
Profitieren Sie von einem der gesündesten und erfahrensten Unternehmen in der Branche! Auch dieses Jahr, wurden wir wieder mit der Bestnote im Bereich
Unternehmensliquidität ausgezeichnet! BESSER GEHT ES NICHT!
Nicht das passende Haus für Ihre Bedürfnisse?
Nicht das passende Grundstück?
Nicht Ihr gewünschtes Budget?
Kontaktieren Sie mich am besten über den Button Nachrichten !
Musterhaus Hannover/Laatzen
Oesselser Straße 36
30880 Laatzen
Tel.: 0179/5343242
Grundriss
SH_142_Var.B_EG
>
>
SH_142_Var.B_DG
>
>
SH_142_Var.D_EG
>
>
SH_142_Var.D_DG
>
>
Adresse
31234 Edemissen
Interessante Orte
Preis- und Lageinformationen
Preistrend für Bestandsimmobilien in Edemissen