Dieses ansprechende Neubauprojekt entsteht in ruhiger Wohnlage im Hamburger Stadtteil Allermöhe, im Bezirk Bergedorf. Die Umgebung ist geprägt von einem naturnahen Wohnumfeld, gepflegten Straßen und einer angenehmen Nachbarschaft. Einkaufsmöglichkeiten, Schulen und Kindergärten befinden sich in bequemer Reichweite. Die nahegelegene Bushaltestelle "Allermöher Deich" befindet sich unmittelbar vor der Haustür und bietet eine gute Anbindung an die Hamburger Innenstadt sowie an umliegende Stadtteile. Die Nähe zur Dove Elbe und den weitläufigen Grünflächen unterstreicht die besondere Wohnqualität dieser Lage.
Informationen zum Grundstück:
-Süd-West-Ausrichtung
-Gesamtgröße: ca. 921 m² - aufgeteilt in 414 m² & 507m²
Details zum Haus:
Es handelt sich um ein Neubau-Doppelhaus in Massivbauweise mit klassischem Satteldach, geplant nach den Vorgaben des Gebäudeenergiegesetzes (GEG). Je Wohneinheit erstrecken sich zwei Ebenen mit Wohnen/Essen im Erdgeschoss und drei Schlafräumen im Dachgeschoss; moderne Haustechnik wie Luft-Wasser-Wärmepumpe, kontrollierte Be-/Entlüftung und 3-fach-Verglasung ist vorgesehen.
-Familienfreundlicher Grundriss mit klaren Zonen (Wohnen unten, Schlafen oben)
-Moderne Haustechnik: Luft-Wasser-Wärmepumpe, kontrollierte Be-/Entlüftung
-3-fach verglaste Fenster und durchgängige Fußbodenheizung
-Niedriger Energiebedarf - effizienter Neubau nach GEG
-Terrasse und Stellplatz am Haus
-Qualitätsnachweis durch Blower-Door-Test
-Bezugsfreundliche Planung: kurze Wege, funktionale Räume, viel Tageslicht
Da es sich um ein projektiertes Bauvorhaben handelt, haben Sie die Möglichkeit, Ihre persönlichen Wünsche in die Planung einfließen zu lassen.
Dieses Angebot erfolgt in Zusammenarbeit mit dem Bauunternehmen „Kagebau“ auf Basis der beigefügten Baubeschreibung, welche Sie auf Anfrage erhalten.
Neubau-Doppelhaushälfte mit Zukunft: 4 Zimmer, ca. 121 m² - Feldrandlage (VORNE)
21037 Hamburg
Die vollständige Adresse der Immobilie erhalten Sie vom Anbieter.
Auf Karte anzeigen
Die vollständige Adresse der Immobilie erhalten Sie vom Anbieter.
Finanzierungszertifikat
In nur zwei Minuten zu Ihrem persönlichen Finanzierungszertifkat.
Infos
| Haustyp | Doppelhaushaelfte |
|---|---|
| Etagenzahl | 2 |
| Wohnfläche ca. | 121 m2 |
| Grundstücksfläche | 414 m2 |
| Bezugsfrei ab | nach Vereinbarung |
| Zimmer | 4 |
| Schlafzimmer | 3 |
| Badezimmer | 1 |
| Garage/Stellplatz | Außenstellplatz |
| Anzahl Garage/Stellplatz | 2 |
Kosten
| Kaufpreis |
458.252 € |
|---|---|
| Provision |
6,25% inkl. MwSt. 6,25% inkl. MwSt. des beurkundeten Kaufpreises. Die Provision ist vom Käufer nach erfolgreicher Vermittlung des Kaufvertrags zu zahlen. |
Finanzierungsrechner:
Kaufpreis:
600.000 €
Eigenkapital:
600.000 €
Monatliche Rate
0 €
Effektiver Jahreszins
0 %
Sollzinsbindung
10 Jahre
Bausubstanz & Energieausweis
| Baujahr | 2026 |
|---|---|
| Bauphase | Haus in Planung (projektiert) |
| Energieausweis | liegt zur Besichtigung vor |
Beschreibung des Objekts
Lage
Dieses Neubauprojekt entsteht in einem gewachsenen und zugleich naturverbundenen Wohngebiet im Hamburger Osten, im Stadtteil Allermöhe – in direkter Nähe zur Dove Elbe. Die Umgebung bietet eine angenehme Mischung aus ländlicher Ruhe, familienfreundlichen Wohnstraßen und grünen Rückzugsorten. Die Marschlandschaften, Deichwege und nahegelegenen Naturschutzgebiete laden zu Spaziergängen, Radtouren und Erholung im Freien ein und unterstreichen die hohe Wohn- und Lebensqualität dieser Lage.
Auch die verkehrstechnische Anbindung ist gut: Die Bushaltestelle „Allermöher Deich“ befindet sich in unmittelbarer Nähe und wird regelmäßig von der Buslinie 321 angefahren. Die S-Bahn-Station „Allermöhe“ ist etwa 1,5 Kilometer entfernt – von dort aus besteht eine direkte Verbindung in die Hamburger Innenstadt. Über die Autobahnen A25 und A1 ist die Metropolregion ebenfalls bequem erreichbar – ideal für Pendler und alle, die flexibel unterwegs sein möchten.
Die Nahversorgung ist solide: Supermärkte, Apotheken, Bäcker und weitere Einkaufsmöglichkeiten für den täglichen Bedarf befinden sich in der Umgebung. Schulen, Kitas und ärztliche Versorgung sind ebenfalls gut erreichbar. Für größere Besorgungen bieten sich die Einkaufsmöglichkeiten im benachbarten Bergedorf an.
Dieses Neubauprojekt verbindet modernes Wohnen mit naturnaher Lage, guter Infrastruktur und einer entspannten Lebensweise. Wer ein Zuhause mit zeitgemäßer Architektur, viel Freiraum und einer ruhigen, aber gut angebundenen Lage sucht, wird hier fündig.
Sonstige Angaben
Wichtige Informationen:
1. Weder wir als Maklerunternehmen noch die Verkäufer/Eigentümer übernehmen eine Haftung bezüglich der Bebaubarkeit des Grundstücks.
2. Das dargestellte Haus dient als Beispiel und kann von dem tatsächlich angebotenen Objekt abweichen.
Es können zudem Sonderausstattungen enthalten sein.
3. Das Gesamtgrundstück umfasst ca. 921 m² und wird in zwei Grundstücke aufgeteilt (414 m² & 507 m²). In diesem Angebot bezieht sich der Verkauf auf die Hälfte eines Doppelhauses - mit einer eigenen Grundstücksfläche von ca. 414 m² (vorderes Grundstück). Sprechen Sie uns für das Nachbargrundstück (hinten) gerne an!
4. Im angegebenen Kaufpreis sind die Baunebenkosten nicht enthalten. Diese belaufen sich voraussichtlich ab ca. 50.000,00 €.
5. Die ca. 20 m² große Terrasse ist nicht im Angebot enthalten. Der Kunde kann sich die Terrasse individuell gestalten lassen.
Das Angebot hierzu erhält der Käufer auf Anfrage!
Preis des Grundstücks und Provision:
Die Käuferprovision beträgt 6,25% inkl. MwSt. des beurkundeten Kaufpreises des Grundstücks. Der Kaufpreis für das angebotene Grundstück liegt bei 203.760€ €. Die Provision ist vom Käufer nach erfolgreicher Vermittlung des Kaufvertrages zu zahlen.
Für die Gestaltung Ihres neuen Zuhauses haben Sie die Möglichkeit, direkt mit dem Bauträger in Kontakt zu treten und aktiv an der Planung mitzuwirken, um Ihre persönlichen Wünsche umzusetzen.
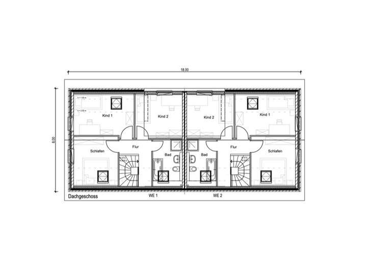
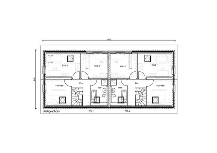
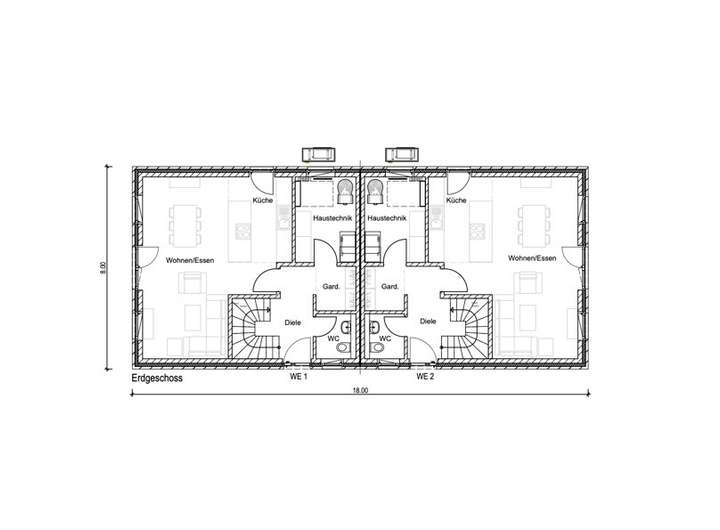
Grundriss
Grundriss Erdgeschoss
>
>
Grundriss 1. Obergeschoss
>
>
Grundrisse Seitenansicht
>
>
Adresse
21037 Hamburg
Interessante Orte
Preis- und Lageinformationen
Preistrend für Bestandsimmobilien in Allermöhe