Das im Jahr 2007 in massiver Bauweise errichtete Mittelreihenhaus befindet sich auf einem ca. 151 m² großen Grundstück (Miteigentumsanteil) und bietet mit rund 117 m² Wohnfläche ein komfortables Zuhause für Paare und Familien.
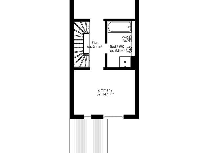
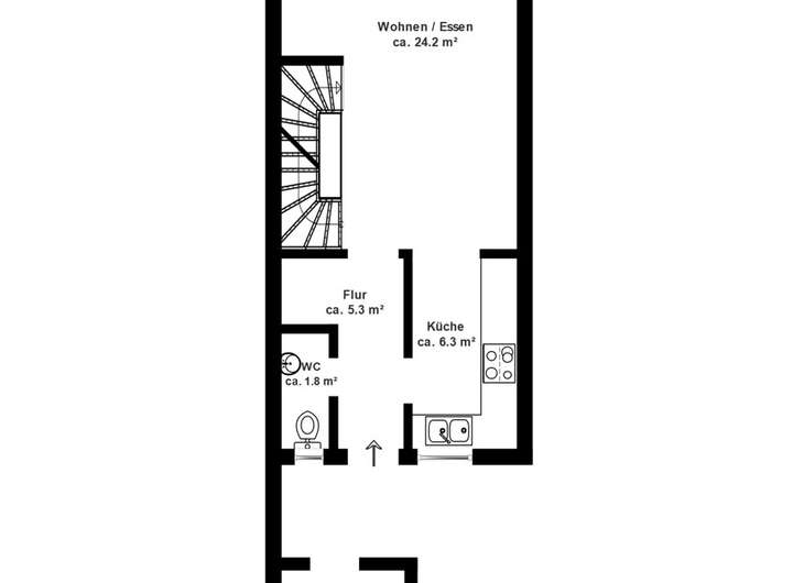
Im Erdgeschoss empfängt Sie ein freundlicher Flur mit Gäste-WC. Der helle Essbereich mit offen gestalteter Küche sowie das großzügige Wohnzimmer mit Zugang zur Terrasse und zum Vollkeller schaffen eine angenehme Wohnatmosphäre mit viel Tageslicht. Das 1. Obergeschoss verfügt über zwei gut geschnittene Schlafzimmer und ein Vollbad. Im Dachgeschoss befindet sich ein großzügiges Studio mit angrenzendem, wohnlich ausgebautem Zusatzraum, ideal als Arbeits-, Hobby- oder Rückzugsbereich.
Der Vollkeller mit Waschküche und zusätzlichem Nutzraum bietet vielseitige Verwendungsmöglichkeiten. Ein Carport ergänzt dieses attraktive Immobilienangebot.
Einziehen & wohlfühlen – 4 Zimmer mit Carport
22143 Hamburg
Die vollständige Adresse der Immobilie erhalten Sie vom Anbieter.
Auf Karte anzeigen
Die vollständige Adresse der Immobilie erhalten Sie vom Anbieter.
Finanzierungszertifikat
In nur zwei Minuten zu Ihrem persönlichen Finanzierungszertifkat.
Infos
| Haustyp | Reihenmittelhaus |
|---|---|
| Etagenzahl | 3 |
| Wohnfläche ca. | 117 m2 |
| Grundstücksfläche | 151 m2 |
| Bezugsfrei ab | nach Vereinbarung |
| Zimmer | 4 |
| Garage/Stellplatz | Carport |
| Anzahl Garage/Stellplatz | 1 |
Kosten
| Kaufpreis |
534.000 € |
|---|---|
| Provision |
3,57 % inkl. MwSt. |
Finanzierungsrechner:
Kaufpreis:
600.000 €
Eigenkapital:
600.000 €
Monatliche Rate
0 €
Effektiver Jahreszins
0 %
Sollzinsbindung
10 Jahre
Bausubstanz & Energieausweis
| Baujahr | 2007 |
|---|---|
| Objektzustand | Gepflegt |
| Heizungsart | Fernwärme |
| Wesentliche Energieträger | Fernwärme |
| Energieausweis | liegt vor |
| Energieausweistyp | Verbrauchsausweis |
| Energieverbrauchskennwert | 48,0 kWh/(m²*a) |
| Energieeffizienzklasse | A |
48,0
kWh/(m²*a)
Energieeffizienzklasse A
- A+
- A
- B
- C
- D
- E
- F
- G
- H
- 0
- 25
- 50
- 75
- 100
- 125
- 150
- 175
- 200
- 225
- >250
Beschreibung des Objekts
Ausstattung
Die Immobilie befindet sich in einem sehr gepflegten Zustand und ist überwiegend im ursprünglichen Ausstattungsstandard erhalten. Vor der Haustür steht ein massiver Schuppen mit zusätzlichem Müllraum zur Verfügung.
Die Fassade wurde im Jahr 2024 neu gestrichen und präsentiert sich in einer freundlichen Orange-Weiß-Kombination.
Hochwertige Details wie Parkettboden, eine helle Küche, ein modernes Badezimmer sowie der großzügige, wohnlich nutzbare Kellerraum unterstreichen den Charakter des Hauses.
Die Beheizung erfolgt über Fernwärme. In Kombination mit der massiven Bauweise und zweifach verglasten Fenstern erreicht die Immobilie die Energieeffizienzklasse A und bietet eine nachhaltige Energielösung.
Lage
Rahlstedt liegt am nordöstlichen Rand Hamburgs, gehört zum Bezirk Wandsbek und grenzt an den Schleswig-Holsteinischen Kreis Stormarn. Villengebiete mit herrschaftlichen Jugendstilvillen, gewachsene Einfamilienhausgebiete und Reihenhaussiedlungen sowie moderne Wohnanlagen mit Eigentumswohnungen zeichnen ein abwechslungsreiches Bild. Rahlstedt ist einer der größten Stadtteile Hamburgs und bietet eine Vielzahl an Einkaufsmöglichkeiten, Restaurants, Schulen und Kindergärten. Der zweimal wöchentlich stattfindende Markt in Rahlstedt sowie das Rahlstedt Center erweitern das Angebot. Ein besonderes Highlight für Naturliebhaber bietet das nahegelegene Naturschutzgebiet Höltigbaum, welches zum Wandern, zu ausgiebigen Spaziergängen und zum Fahrradfahren einlädt. Vom Bahnhof Rahlstedt besteht eine direkte Verbindung zum Hamburger Hauptbahnhof, die Fahrzeit beträgt von dort ca. elf Minuten. Über die B75 und die Autobahnauffahrten Stapelfeld (Autobahn 1) und Jenfeld (Autobahn 24) ist Rahlstedt auch mit dem PKW sehr gut angebunden. Das Mehrfamilienhaus ist zentral gelegen, Einkaufsmöglichkeiten des täglichen Bedarfs sowie verschiedene Kitas und Schulen befinden sich in fußläufiger Entfernung.
Grundriss
Grundriss EG
>
>
Grundriss OG
>
>
Grundriss DG
>
>
Adresse
22143 Hamburg
Interessante Orte
Preis- und Lageinformationen
Preistrend für Bestandsimmobilien in Rahlstedt