Wir führen jederzeit Besichtigungen nach Ihrer Immoscout Mail-Anfrage & telefonischer Absprache in Einzelterminen durch und freuen uns über Ihr ernsthaftes & zielgerichtetes Interesse.
Dieses erstklassige, exzellente & sehr spannende Wohn- und Geschäftshaus bietet wunderbares, entspanntes Wohnen, Leben und Arbeiten auf 2 Einheiten/ Etagen (EG & OG/DG) verteilt, mit einer Geschäfts-/ Büroeinheit (ehemals Bäckerei mit Shop und Produktion - Geräte / Backöfen noch vorhanden und könnten auch erworben werden), mit jeweils eigenen Eingängen und der Möglichkeit alle Einheiten mit einfachen Umbauten miteinander verbinden zu können.
Umbau der ehemaligen Bäckerei zu wohnlichen Zwecken oder zu einer weiteren Wohnung seitens des Käufers, könnte mit einer Nutzungsänderung & Betreuung durch einen Architekten möglich sein.
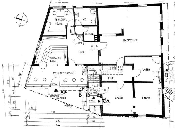
Das Wohn- & Geschäftshaus ist insgesamt in 2 Einheiten aufgeteilt:
I. Einheit EG Backshop & Bäckerei / Produktion & Steh-Café mit ca. 150,20 + ca. 18,75 qm = insgesamt ca. 168,95 qm.
II. Einheit OG. /DG. - 4 Zimmer-Wohnung mit ca. 131,90 qm - Top Wohnung - sehr spannend & richtig wunderbar ausgebaut.
Das Grundstück hat eine Größe von ca. 407 qm.
Beim Umbau des Hauses in ein Wohn- & Geschäftshaus wurde alles super durchdacht und mit hervorragender ausgeführter Gestaltung sind die Räumlichkeiten des Lebens in optimaler Verbindung zueinander konzipiert.
Das Haus wurde ca. im Jahre 1900 errichtet und wurde in den Jahrzehnten immer gepflegt, erweitert & umgebaut. Im Jahr 2002 wurde das Haus mit Gewerbefläche und der Wohnung aufwendig restauriert & saniert.
Die Dacheindeckung/ Dachstuhl wurde auch bereits 2002 erneuert/ erneuert, Fenster in der Wohnung auch 2002 erneuert und 2019 wurde eine neue Gasheizung eingebaut.
Die Einrichtung der Bäckerei (Tresen, Inventar, Öfen usw....ca. aus 2017/18 ) wird geräumt oder kann nach Absprache übernommen werden.
Ein schöner Garten-Terrassen-Innenhof, welcher durch ein hohe Umzäunung uneinsehbar von Außen ist, bildet eine schöne Einheit mit dem Gesamtgebäude.
Im Innenhofbereich sind auch zwei Garagen, die als weitere Nutzfläche/ Lager dienlich sein können.
Die Gewerbefläche ist nicht vermietet und die Wohnung ist seit einem Jahr vermietet (normaler MV). Es besteht ein angenehmes Mietverhältnis mit dem Mieter.
Modernes, perfektes & exzellentes Wohnen und Arbeiten in einem altehrwürdigen Haus, verteilt auf zwei Etagen.
LK Peine - Mehrum: Wohn- & Geschäftshaus mit 1x großer Wohnung und 1x Gewerbeeinheit in Top Lage!
31249 Hohenhameln
Die vollständige Adresse der Immobilie erhalten Sie vom Anbieter.
Auf Karte anzeigen
Die vollständige Adresse der Immobilie erhalten Sie vom Anbieter.
Finanzierungszertifikat
In nur zwei Minuten zu Ihrem persönlichen Finanzierungszertifkat.
Infos
| Haustyp | Einfamilienhaus |
|---|---|
| Etagenzahl | 2 |
| Wohnfläche ca. | 131 m2 |
| Nutzfläche | 300 m2 |
| Grundstücksfläche | 407 m2 |
| Bezugsfrei ab | Nach Absprache ! |
| Zimmer | 8 |
| Schlafzimmer | 2 |
| Badezimmer | 3 |
| Garage/Stellplatz | Garage |
| Anzahl Garage/Stellplatz | 2 |
Kosten
| Kaufpreis |
299.000 € |
|---|---|
| Provision |
3,57 % inkl. 19 % MwSt. vom Kaufpreis Die Provision / Courtage in Höhe von 3,57 % inkl. 19 % gesetzlicher MwSt. auf den Kaufpreis ist mit dem Zustandekommen des notariellen Vertragsabschluss / Beurkundung verdient, fällig und vom Käufer direkt nach Abschluss zu zahlen. Wir haben mit dem Verkäufer einen abgeschlossenen Provisionsvertrag in gleicher Höhe getätigt. Sie erreichen uns jederzeit per Immoscout Mail-Anfrage oder telefonisch unter: 0174 - 3333 111 Andreas W. Schwarz |
Finanzierungsrechner:
Kaufpreis:
600.000 €
Eigenkapital:
600.000 €
Monatliche Rate
0 €
Effektiver Jahreszins
0 %
Sollzinsbindung
10 Jahre
Bausubstanz & Energieausweis
| Baujahr | 1900 |
|---|---|
| Letzte Sanierung | 2019 |
| Bauphase | Haus fertig gestellt |
| Objektzustand | Modernisiert |
| Qualität der Austattung | Normal |
| Heizungsart | Gas-Heizung |
| Wesentliche Energieträger | Gas |
| Energieausweis | liegt zur Besichtigung vor |
Beschreibung des Objekts
Ausstattung
Bei diesem wunderbaren Haus mit Gewerbeeinheit & einer Wohnung ist eigenbedarfsmäßige Nutzung bestens gegeben, da alle Einheiten räumlich miteinander verbunden werden könnten und es kann auch prima als Anlageobjekt für Vermietungen gesehen werden.
Die Vermietbarkeit ist in dieser Lage als recht gut zu betrachten, spätere Verwertbarkeit und Wertsteigerung ebenfalls recht gut.
Super Invest - Wohnen und die Möglichkeit der zusätzlichen Einnahmequelle durch die Vermietbarkeit der Geschäftsfläche.
Die ganze Einheit begeistert einfach mit Ihrem Charme & bietet viel Potential in der Nutzungs- und Wohnmöglichkeit.
Lage
Dieses exzellente Wohn- & Geschäftshaus liegt in einer wunderbaren Lage von Mehrum, Stadtteil von Hohenhameln im Landkreis Peine direkt an der Durchfahrtsstraße.
Schnelle Anbindung nach Peine, Sehnde, Lehrte, Burgdorf, Hannover und anderer beliebter Ziele.
Zudem liegen Natur- und Erholungsgebiet mit Wäldern & Feldern direkt vor der Tür - Nähe auch zum Mittellandkanal.
Bestes Wohnen - Top Lage - Prima Anbindung!
Sonstige Angaben
Der Maklervertrag mit uns kommt durch die schriftliche Vereinbarung oder durch die Inanspruchnahme unserer Maklertätigkeit auf Grundlage des Objekt Exposés und seiner vertraglichen Bedingungen zustande.
Die Provisionsvereinbarung wird wie folgt vereinbart, erfolgt in Textform und Bedarf der Bestätigung des jeweiligen Interessenten in Schriftform eines Maklervertrages.
Es ist eine Courtage/ Provision in Höhe von 3,57 % inkl. 19 % gesetzlicher MwSt. auf den Kaufpreis nach notariellen Vertragsabschluss/ Beurkundung verdient, fällig und vom Käufer direkt nach Abschluss zu zahlen.
Wir haben einen entgeltpflichtigen Maklervertrag über den gleichen Provisionssatz mit dem Verkäufer abgeschlossen.
Alle Angaben sind ohne Gewähr und basieren ausschließlich auf Informationen, die uns von unseren Auftraggeber/ vom Eigentümer des Objektes zur Verfügung gestellt wurden.
Wir übernehmen keine Gewähr für die Vollständigkeit, Richtigkeit und Aktualität dieser Angaben.
Die Kontaktaufnahme zwischen Interessenten/ Käufer zum Eigentümer ist grundsätzlich über uns einzuleiten.
Auch eine Besichtigung des Objektes oder Ansprechen des Eigentümers darf nur im Einvernehmen mit uns vorgenommen werden.
Dieses bitten wir zu respektieren!
Die Grunderwerbsteuer, Notar- und Grundbuchkosten sind vom Käufer zu tragen.
Im übrigen gelten unsere Allgemeinen Geschäfts- und Datenschutzbestimmungen.
Gerne beraten wir Sie beim angedachten Verkauf Ihrer Immobilie.
Nutzen Sie bitte unser kostenloses Bewertungsangebot für Ihre Immobilie.
Wir freuen uns darauf, Sie persönlich kennenzulernen und Ihnen erfolgreich zur Seite stehen zu dürfen.
Sie erreichen uns jederzeit telefonisch unter 0174 - 3333 111 oder über Ihre Mail Anfrage bei Immoscout, welche dem Telefonat vorangehen sollte.
Herzlichen Dank und Gruß,
Andreas W. Schwarz
Adresse
31249 Hohenhameln
Interessante Orte
Preis- und Lageinformationen
Preistrend für Bestandsimmobilien in Hohenhameln