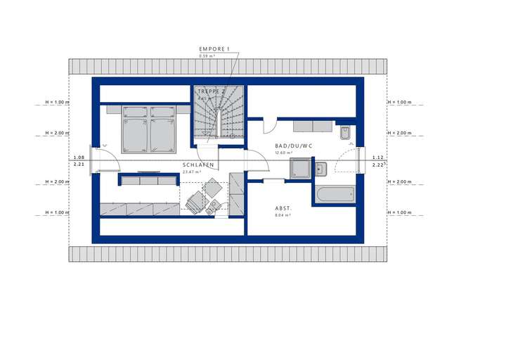
Das BALANCE 175 überzeugt durch seine kluge Architektur und flexible Raumgestaltung, die sich den individuellen Bedürfnissen seiner Bewohner anpasst. Auf drei Etagen erstreckt sich das Haus über eine großzügige Wohnfläche von 180 m² und bietet ausreichend Raum für die ganze Familie. Das Erdgeschoss besticht durch den lichtdurchfluteten Wohn-, Ess- und Kochbereich, das Herzstück des Familienlebens, ideal für unvergessliche Momente mit Ihren Liebsten. In der oberen Etage lassen sich drei Kinderzimmer, ein Büro und ein privater Elternbereich gestalten. Alternativ kann das Dachgeschoss als kreatives Studio dienen. Mit seinem durchdachten Grundriss passt sich das Haus optimal an Ihre Lebensweise an - egal ob für größere Familien oder Paare, die großzügigen Raum schätzen.
Ein weiterer Pluspunkt des BALANCE 175 sind die komfortablen Details, die den Alltag bereichern. Der großzügige Wohnbereich ist mit großen Fenstern ausgestattet, die eine helle und freundliche Atmosphäre schaffen und den Blick in den eigenen Garten ermöglichen. Auf der Terrasse, die nahtlos in den Wohnraum übergeht, können Sie entspannte Stunden genießen. Die drei Badezimmer bieten ausreichend Privatsphäre und ermöglichen, dass auch größere Familien entspannt ihren Morgen beginnen können. Abstellräume und ein gut durchdachter Grundriss sorgen dafür, dass alles seinen Platz findet und Ihr Zuhause stets aufgeräumt ist.
Wir freuen uns, Ihnen diese Immobilie in der Ausbaustufe "Schlüsselfertig" anzubieten. Das bedeutet für Sie: Wir übernehmen den kompletten Hausbau vom Rohbau bis zur letzten Fliese. Dabei garantieren wir die Erfüllung aller Anforderungen des staatlichen Qualitätssiegels für Nachhaltigkeit. So profitieren Sie nicht nur von einem hohen Wohnkomfort, sondern sichern sich auch attraktive Förderungen über die KfW, die Ihnen helfen, Ihr Traumhaus zu verwirklichen. Der Bauablauf wird für Sie so angenehm wie möglich gestaltet, sodass Sie sich ganz auf die Vorfreude auf Ihr neues Zuhause konzentrieren können.
Grundrisse und Abbildungen können Extras zeigen. Flächenangaben nach DIN 277.
Bien-Zenker: Ihr Wunschhaus Individuell geplant für die Familie im Hamburger Stadtteil - Volksdorf
22359 Hamburg
Die vollständige Adresse der Immobilie erhalten Sie vom Anbieter.
Auf Karte anzeigen
Die vollständige Adresse der Immobilie erhalten Sie vom Anbieter.
Finanzierungszertifikat
In nur zwei Minuten zu Ihrem persönlichen Finanzierungszertifkat.
Infos
| Haustyp | Einfamilienhaus |
|---|---|
| Wohnfläche ca. | 180 m2 |
| Grundstücksfläche | 1.000 m2 |
| Zimmer | 6 |
| Schlafzimmer | 5 |
| Badezimmer | 3 |
Kosten
| Kaufpreis |
1.370.400 € |
|---|
Finanzierungsrechner:
Kaufpreis:
600.000 €
Eigenkapital:
600.000 €
Monatliche Rate
0 €
Effektiver Jahreszins
0 %
Sollzinsbindung
10 Jahre
Bausubstanz & Energieausweis
| Baujahr | unbekannt |
|---|---|
| Bauphase | Haus in Planung (projektiert) |
| Qualität der Austattung | Gehoben |
Beschreibung des Objekts
Ausstattung
Der Grundriss des BALANCE 175 ist optimal auf Ihre Bedürfnisse abgestimmt und bietet mit sechs Zimmern, darunter fünf Schlafzimmer und drei Badezimmer, den Raum für ein harmonisches Familienleben. Die durchdachte Aufteilung sorgt dafür, dass sowohl Rückzugsmöglichkeiten als auch Gemeinschaftsflächen perfekt aufeinander abgestimmt sind. Egal ob für Kinder, Homeoffice oder Gäste - hier findet jeder seinen Platz und Privatsphäre wird großgeschrieben.
Komfort ist in diesem Haus nicht nur ein Wort, sondern ein spürbares Gefühl. Die lichtdurchfluteten Räume schaffen eine einladende und warme Atmosphäre. Besonders hervorzuheben sind die großzügigen Fensterfronten, die nicht nur für viel Tageslicht sorgen, sondern auch einen direkten Zugang zur Terrasse ermöglichen. Der Außenbereich lädt zum Verweilen ein und bietet Ihnen die Möglichkeit, entspannte Stunden im Freien zu genießen. Abstellräume sorgen dafür, dass Sie immer ausreichend Stauraum zur Verfügung haben und der durchdachte Schnitt des Hauses bietet Ihnen zahlreiche Gestaltungsmöglichkeiten.
Mit der Ausbaustufe "Schlüsselfertig" genießen Sie den Vorteil eines stressfreien Bauprozesses. Wir kümmern uns um alles - von der Planung bis zur kompletten Umsetzung des Innenausbaus. Im Preis sind alle nötigen Arbeiten enthalten, sodass Sie sich um nichts kümmern müssen. Diese Herangehensweise garantiert Ihnen nicht nur eine hohe Bauqualität, sondern auch die Sicherheit, dass Ihr Zuhause nach den neuesten Standards der Nachhaltigkeit gebaut wird. So können Sie beruhigt in Ihre neue Heimat einziehen und sich auf das Wesentliche konzentrieren: Ihr neues Leben in Ihrem Bien-Zenker Haus.
Lage
Hamburg ist nicht nur ein pulsierendes Zentrum für Kultur und Wirtschaft, sondern auch ein Lebensraum, der zahlreiche Möglichkeiten für Bildung, Gesundheit, Einkauf und Freizeit bietet. Besonders im Stadtteil Volksdorf finden Sie eine Vielzahl von Schulen, Kindergärten und Bildungseinrichtungen, die eine hervorragende Ausbildung für Ihre Kinder garantieren. Darüber hinaus sind medizinische Einrichtungen und Fachärzte in der Nähe, die eine umfassende Gesundheitsversorgung sicherstellen.
Einkaufsmöglichkeiten sind reichlich vorhanden: Ob große Einkaufszentren oder kleine Boutiquen, hier bleibt kein Wunsch unerfüllt. Auch für Ihre Freizeitgestaltung ist gesorgt - zahlreiche Parks, Sporteinrichtungen und kulturelle Angebote laden dazu ein, die Umgebung zu erkunden und aktiv zu werden. Die hervorragende Anbindung an den öffentlichen Personennahverkehr ermöglicht es Ihnen, die Stadt schnell zu erreichen. Die Autobahn ist ebenfalls in unmittelbarer Nähe, wodurch Sie bequem und schnell in die umliegenden Regionen gelangen. Hamburg bietet Ihnen all das, was Sie für ein erfülltes Leben benötigen - und das direkt vor Ihrer Tür.
Sonstige Angaben
Der hier angegebene Wert zur zu zahlenden Grunderwerbsteuer ist ein vom Portalbetreiber automatisierter Wert, der nicht der Realität entspricht, da die Grunderwerbsteuer nur auf den im Gesamtangebot einberechneten Grundstückswert berechnet wird.
Inkl. PV - Anlage und Speicher für die eigene Stromversorgung
Auf Wunsch können alle Kriterien für eine KFN - QNG Förderung erfüllt werden.
Hausabbildungen mit Sonderwünschen
Grundrisse können individuell geändert und angepasst werden
Auf Wunsch ist ein Keller möglich
Adresse
22359 Hamburg
Interessante Orte
Preis- und Lageinformationen
Preistrend für Bestandsimmobilien in Volksdorf
>
>
>