🌿 Ein Zuhause mit Geschichte - und einem ganz besonderen Gefühl
Dieses charmante Ein- bis Zweifamilienhaus gehört zu einem alten Gründerzeit-Ensemble und trägt über 120 Jahre Braunschweiger Stadtgeschichte in sich. Wo einst Pferde standen und später eines der ersten Autos der Stadt untergebracht wurde, entstand Mitte des 20. Jahrhunderts ein Wohnhaus mit Persönlichkeit, Charakter und einem unverwechselbaren Charme.
Schon beim Betreten spürt man:
Dieses Haus lebt.
Es erzählt Geschichten - und wartet darauf, neue zu schreiben.
✨ Die Räume - hell, offen, herzlich
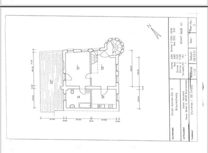
Die ca. 200 m² Wohnfläche verteilen sich aktuell auf zwei liebevoll gestaltete Wohnungen, die getrennt genutzt oder zu einem großzügigen Einfamilienhaus verbunden werden können.
Der offene Grundriss, die hohen Decken und die vielen Fenster schaffen eine besondere Wohnatmosphäre: lichtdurchflutet, einladend und warm.
Die Dielenböden verleihen dem Haus einen ursprünglichen, authentischen Charakter, während die modernisierten Bereiche Komfort und Alltagstauglichkeit mitbringen.
🌅 Dachterrasse & Garten - zwei Orte zum Durchatmen
Eines der Highlights ist die neu angelegte Dachterrasse - ein Platz für heiße Sommertage, laue Abende, ein Glas Wein zum Sonnenuntergang oder das erste Frühstück im Morgenlicht.
Der wunderschön gestaltete Garten ist ein kleiner Ruhepol mitten in der Stadt. Hier findet man Platz für Kinder, Tiere, Freunde - oder einfach für sich selbst.
🛠️ Gepflegt, modernisiert, direkt wohlfühlbereit
In den letzten Jahren wurde viel investiert, u. a.:
Teilisolierung
neuen Gartenanlage
neugestaltete Dachterrasse
Neuversiegelung des Daches
Putzarbeiten im Erdgeschoss
Die Gas-Zentralheizung sorgt zuverlässig für Wärme, ein Fernwärmeanschluss ist problemlos möglich. Ein KFZ-Stellplatz direkt vor dem Haus erleichtert den Alltag.
🛁 3 Tageslichtbäder - Licht, Luft und Komfort
Helle Bäder, teilweise mit Badewanne und Dusche, bieten alles, was man sich für ein entspanntes Zuhause wünscht.
Die Einbauküche im Erdgeschoss gehört zum Haus und fügt sich harmonisch in das Ambiente ein.
💡 Kapitalanlage & Eigennutzung - beides möglich
Aktuell sind beide Wohnungen zuverlässig vermietet (Jahreskaltmiete: 20.880 €). Das Haus eignet sich daher ideal als:
Kapitalanlage
spätere Eigennutzung
Mehrgenerationenhaus
Wohnen mit separatem Büro oder Praxis
Ein großes Familienzuhause, wenn beide Wohneinheiten verbunden werden
Ein Energieausweis liegt vor und wird bei der Besichtigung übergeben.
Ultraschnelles Glasfaser-Internet ist bereits vorhanden.
❤️ Ein Haus für Menschen, die etwas Besonderes suchen
Dieses Haus ist mehr als Wände, Zimmer und Quadratmeter.
Es ist ein Zuhause, das man fühlt.
Ein Ort, an dem man die eigene Geschichte weiterschreiben kann - mit Platz für Träume, Ruhe, Familie, Freunde und Leben.
Charmantes Ein- bis Zweifamilienhaus mit Garten & Dachterrasse - ruhige Lage in BS
Ernst-Amme-Str. 2,
38114 Braunschweig
Auf Karte anzeigen
Finanzierungszertifikat
In nur zwei Minuten zu Ihrem persönlichen Finanzierungszertifkat.
Infos
| Haustyp | Einfamilienhaus |
|---|---|
| Etagenzahl | 3 |
| Wohnfläche ca. | 200 m2 |
| Nutzfläche | 2 m2 |
| Grundstücksfläche | 250 m2 |
| Bezugsfrei ab | nach Absprache |
| Zimmer | 5 |
| Schlafzimmer | 5 |
| Badezimmer | 3 |
| Garage/Stellplatz | Außenstellplatz |
| Anzahl Garage/Stellplatz | 1 |
Kosten
| Kaufpreis |
620.000 € |
|---|---|
| Provision | Nein |
Finanzierungsrechner:
Kaufpreis:
600.000 €
Eigenkapital:
600.000 €
Monatliche Rate
0 €
Effektiver Jahreszins
0 %
Sollzinsbindung
10 Jahre
Bausubstanz & Energieausweis
| Baujahr | unbekannt |
|---|---|
| Objektzustand | Gepflegt |
| Heizungsart | Zentralheizung |
| Energieausweis | liegt zur Besichtigung vor |
Beschreibung des Objekts
Ausstattung
Terrasse, Garten, Dachterrasse, Vollbad, Duschbad, Einbauküche, Gäste-WC, Parkett, Laminat, Fliesen
Lage
📍 Die Lage - ruhig, zentral, begehrt
Die Ernst-Amme-Straße ist eine ruhige Seitenstraße, gleichzeitig aber nah am Leben der Stadt.
Einkaufen, Kultur, Nahverkehr, Freizeit, Restaurants - alles ist auf kurzem Wege erreichbar. Ein Ort, an dem man die Balance zwischen Ruhe und urbanem Leben perfekt genießen kann.
Infrastruktur (im Umkreis von 5 km):
Apotheke, Lebensmittel-Discount, Allgemeinmediziner, Kindergarten, Grundschule, Hauptschule, Realschule, Gymnasium, Gesamtschule, Öffentliche Verkehrsmittel
Sonstige Angaben
Heizungsart: Zentralheizung
Energieausweis nicht vorhanden
Makleranfragen nicht erwünscht. Nach § 7 UWG sind unaufgeforderte Kontaktaufnahmen durch Makler ohne ausdrückliche Einwilligung des Empfängers verboten!
ohne-makler (OM) ist weder Anbieter noch Vermittler der Immobilie. OM betreibt eine Plattform für Immobilieneigentümer, die unter anderem die gleichzeitige Veröffentlichung einzelner Inserate auf mehreren Immobilienportalen ermöglicht. Die Inhalte dieser Inserate werden ausschließlich von Dritten verantwortet. Für die Richtigkeit, Vollständigkeit oder Rechtmäßigkeit der Angaben übernimmt OM keine Haftung. Hinweise auf mögliche Rechtsverstöße können jederzeit gemeldet werden und werden nach Prüfung umgehend bearbeitet.
Weitere Dokumente
20260203-Expose10Adresse
Ernst-Amme-Str. 2, 38114 Braunschweig
Interessante Orte
Preis- und Lageinformationen
Preistrend für Bestandsimmobilien in Westliches Ringgebiet