Die Doppelhaushälfte mit Staffelgeschoss in attraktiver Lage von Bad Homburg wird als geschlossener Rohbau angeboten. Die großzügige Architektur sowie die hohe Anzahl an Zimmern überzeugen durch ein durchdachtes und zeitgemäßes Wohnkonzept.
Diese moderne Doppelhaushälfte im Villenstil und großzügigem Raumkonzept überzeugt durch eine durchdachte Architektur, lichtdurchflutete Räume und ein großzügiges Platzangebot auf allen Ebenen.
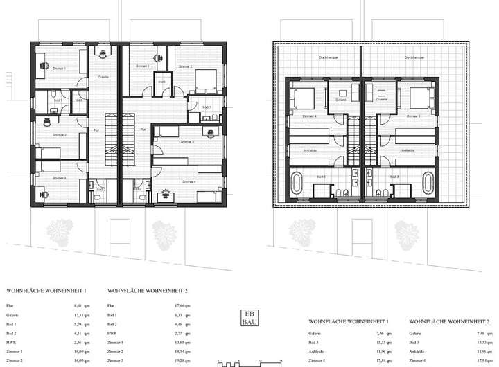
Im Erdgeschoss empfängt Sie eine geräumige Eingangsdiele mit Zugang zum Hauswirtschaftsraum sowie einem separaten Gäste-WC. Geradeaus öffnet sich der beeindruckende, über 55 m² große Wohn- und Essbereich, der nahtlos in die offene Küche mit weiteren über 15 m² übergeht. Hier bietet sich ausreichend Platz für eine moderne Einbauküche mit allen Elektrogeräten sowie eine Kochinsel als zentralen Treffpunkt. Große Fensterflächen sorgen für helle, freundliche Räume und ein angenehmes Wohnambiente.
Vom Wohnbereich aus gelangen Sie über eine Schiebetür direkt auf die Terrasse und in den Garten – ideal für entspannte Stunden im Freien.
Die auf der linken Hausseite gelegene Garage verfügt ebenfalls über einen direkten Zugang in den Gartenbereich.
Das Obergeschoss erreichen Sie über eine gerade Treppe. Hier erwartet Sie eine offene Galerie, drei weitere großzügige Schlafzimmer, ein Abstell- bzw. Hauswirtschaftsraum sowie zwei moderne Badezimmer mit Dusche, WC und Waschtisch.
Über eine weitere gerade Treppe gelangen Sie in das Staffelgeschoss. Dort befindet sich ein Galeriebereich, der sich hervorragend als gemütlicher Lesebereich/Arbeitsbereich eignet. Direkt angeschlossen ist das Elternschlafzimmer, von welchem Sie auch auf die 24 m² große Dachterrasse gelangen. Anschließend an das Schlafzimmer haben wir noch eine geräumige Ankleide. Ein weiteres Highlight ist das über 15 m² große Badezimmer, das keine Wünsche offenlässt.
Architektur trifft Wohnkomfort – Moderne Doppelhaushälfte!
61352 Bad Homburg vor der Höhe
Die vollständige Adresse der Immobilie erhalten Sie vom Anbieter.
Auf Karte anzeigen
Die vollständige Adresse der Immobilie erhalten Sie vom Anbieter.
Finanzierungszertifikat
In nur zwei Minuten zu Ihrem persönlichen Finanzierungszertifkat.
Infos
| Haustyp | Doppelhaushaelfte |
|---|---|
| Wohnfläche ca. | 237 m2 |
| Nutzfläche | 18,15 m2 |
| Grundstücksfläche | 384 m2 |
| Zimmer | 6 |
| Schlafzimmer | 5 |
| Badezimmer | 3 |
| Garage/Stellplatz | Garage |
| Anzahl Garage/Stellplatz | 1 |
Kosten
| Kaufpreis |
1.375.000 € |
|---|---|
| Provision |
2,38% inkl. MwSt. Wir haben einen provisionspflichtigen Maklervertrag mit dem Verkäufer in gleicher Höhe abgeschlossen. |
Finanzierungsrechner:
Kaufpreis:
600.000 €
Eigenkapital:
600.000 €
Monatliche Rate
0 €
Effektiver Jahreszins
0 %
Sollzinsbindung
10 Jahre
Bausubstanz & Energieausweis
| Baujahr | 2026 |
|---|
Beschreibung des Objekts
Ausstattung
Geschlossener Rohbau inkl. Dach - hochwertiger Fenster mit dreifach Isolierverglasung-Hauseingangstür und geebnetem Grundstück und Randbepflanzung. Fertigstellung ca. April 2026.
Das Objekt bietet Ihnen maximale Flexibilität:
Sie haben die Möglichkeit, die Doppelhaushälfte als geschlossenen Rohbau zu erwerben und den Innenausbau nach Ihren eigenen Vorstellungen mit eigenen Handwerkern zu realisieren. Alternativ kann das Haus auch schlüsselfertig übernommen werden.
Der Kaufpreis für die schlüsselfertige Ausführung beträgt 1,725 Mio. €. Schlüsselfertige Ausführung - Fertigstellung ca. September 2026. Mit hochwertiger Ausstattung - wird mit den Kaufinteressenten besprochen bzw. bemustert.
Diese Immobilie vereint modernes Wohnen, großzügige Flächen und flexible Nutzungsmöglichkeiten – ideal für Familien oder anspruchsvolle Paare.
Lage
Bad Homburg ist als moderner Wirtschaftsstandort und begehrter Wohnort der Mittelpunkt des Hochtaunuskreises. Nicht umsonst wird mit dem Slogan „Champagnerluft und Tradition“ geworben. Hier finden Sie zahlreiche Kur- und Kongresseinrichtungen. Das Casino wird als „die Mutter von Monte Carlo“ bezeichnet.
Die Kreisstadt grenzt südöstlich an Frankfurt am Main und liegt am Fuße des Saalburgpasses. Anschlüsse bestehen zur A661 und A5. Mit den RMV-Linien U2 und S5, der Taunusbahn und Regionalbussen können Sie schnelle Verbindungen in alle Stadtteile, ins Umland und nach Frankfurt nutzen. Park & Ride Möglichkeiten finden Sie direkt an den Bahnhöfen.
Für den „täglichen Bedarf“ stehen Ihnen im Innenstadtbereich und in den einzelnen Stadtteilen Supermärkte, Apotheken, Restaurants und Gaststätten zur Verfügung. Das Einzelhandelsangebot reicht von Bekleidung über Raumbedarf bis hin zu Angeboten aus dem regionalen Anbau.
Das schulische Angebot bietet Grundschulen, Gymnasien, ein internationales zweisprachliches Gymnasium und eine private Wirtschaftsschule. Vielfältige Kinderbetreuungsmöglichkeiten können genutzt werden.
Für Ihre Freizeitgestaltung können Sie wählen zwischen der „Natur vor der Haustür“ und vielfältigen Sport-, Kunst- und Kulturvereinen, einer Volkshochschule, einer Musikschule, Museen (z. B. Horax-Museum, Sinclair-Haus) und Galerien.
Sonstige Angaben
Gerne stehen wir Ihnen für ein Beratungs- und Besichtigungstermin zur Verfügung.
Sie möchten selbst eine Immobilie verkaufen?
Wir ermitteln einen seriösen und marktgerechten Wert Ihrer Immobilie. Mit einem individuell für Sie abgestimmten Vermarktungsplan optimieren wir die Verkaufschancen. Als Tochtergesellschaft der Frankfurter Volksbank Rhein/Main unterstützt uns hierbei unser umfangreiches Netzwerk. Gerne begleiten wir Sie auf dem Weg zum erfolgreichen Verkauf Ihrer Immobilie und stehen Ihnen auch noch nach dem Beurkundungstermin zur Verfügung.
Für alle Fragen zur Finanzierung stehen Ihnen die Spezialisten der Frankfurter Volksbank Rhein/Main zur Verfügung. Hier stellen wir gerne einen Kontakt her.
Sprechen Sie uns an – wir freuen uns auf Sie!
Grundriss
DHH 1-EG
>
>
DHH 1-OG
>
>
DHH 1-Staffelgeschoss
>
>
Erdgeschoss
>
>
Ober- und Staffelgeschoss
>
>
Adresse
61352 Bad Homburg vor der Höhe
Interessante Orte
Preis- und Lageinformationen
Preistrend für Bestandsimmobilien in Bad Homburg vor der Höhe