Willkommen in Ihrem neuen Zuhause!
Dieses einzigartige Fachwerkhaus (Denkmalschutz) vereint historischen Charme und moderne Wohnkultur auf perfekte Weise. Liebevoll im Jahr 2021 modernisiert, bietet es 77 m² Wohnfläche. Ein echtes Juwel für alle, die Wert auf Stil und Individualität legen!
Das Haus strahlt in neuem Glanz, ohne dabei seinen ursprünglichen Charakter zu verlieren. Die sichtbaren Fachwerkelemente sorgen für eine warme, einladende Atmosphäre, während die durchgeführte Modernisierung zeitgemäßen Komfort garantiert.
Im Zuge einer umfassenden Erneuerung 2021 wurden unter anderem folgende Arbeiten durchgeführt:
Elektrik: größtenteils erneuert, moderne Technik sorgt für Sicherheit und Komfort.
Heizung: Eine neue, energieeffiziente Viessmann-Gas-Brennwert-Heizungsanlage (Energieeffizienzklasse „A“) bietet wohlige Wärme und spart gleichzeitig Energiekosten.
Zusätzlich wurden die Gas- und Wasserleitungen, die Küche, die Terrassenabdichtung, die Fassade (2017) und Weiteres erneuert, um ein rundum zeitgemäßes Wohngefühl zu schaffen.
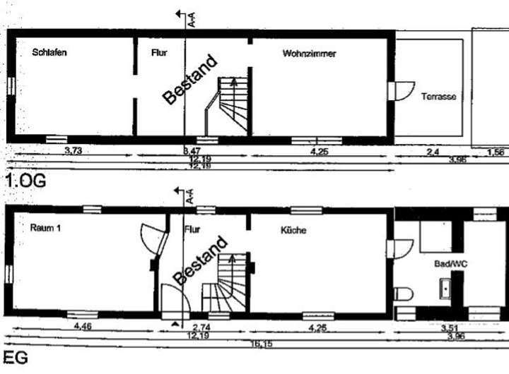
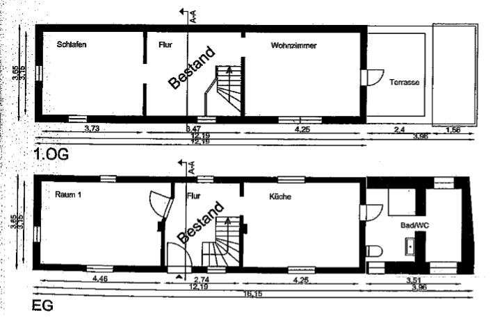
Das Haus bietet auf zwei Ebenen eine durchdachte Raumaufteilung, die sowohl praktische als auch ästhetische Ansprüche erfüllt.
Im Erdgeschoss befindet sich neben der Diele ein gemütliches Wohn- und Esszimmer, die vollausgestattete Küche mit integrierter Theke, ein stilvolles Duschbad sowie ein praktischer Hauswirtschaftsraum.
Über eine schöne Holztreppe gelangen Sie ins Obergeschoss mit einem großzügigen Schlafzimmer und einem hellen Arbeits-/Lesezimmer. Von hier haben Sie direkten Zugang zu einer Terrasse, die wie geschaffen ist für erholsame Stunden im Freien.
Zusätzliche Fläche, welche nicht in der Wohnfläche berücksichtigt ist, bietet eine kleine Galerie unter dem Dach – ideal als weitere Schlafmöglichkeit oder für selten genutzte Gegenstände.
Das pflegeleichte Grundstück verfügt über einen eigenen Außenstellplatz und ein Gartenhaus, das zusätzlichen Stauraum bietet.
Die monatlichen Nebenkosten (inkl. Grundsteuer, Abfall, Wasser, Gas und Gebäudeversicherung) sind mit knapp 170,– EUR besonders günstig.
Lassen Sie sich von dieser besonderen Immobilie begeistern und vereinbaren Sie noch heute einen Besichtigungstermin!
We also speak English, please call 06196-5261198.
Modernisiert mit Stil und Liebe im Herzen von Bad Soden-Neuenhain
65812 Bad Soden am Taunus
Die vollständige Adresse der Immobilie erhalten Sie vom Anbieter.
Auf Karte anzeigen
Die vollständige Adresse der Immobilie erhalten Sie vom Anbieter.
Finanzierungszertifikat
In nur zwei Minuten zu Ihrem persönlichen Finanzierungszertifkat.
Infos
| Haustyp | Einfamilienhaus |
|---|---|
| Etagenzahl | 2 |
| Wohnfläche ca. | 77 m2 |
| Nutzfläche | 23 m2 |
| Grundstücksfläche | 106 m2 |
| Bezugsfrei ab | ab sofort |
| Zimmer | 3 |
| Schlafzimmer | 1 |
| Badezimmer | 1 |
| Garage/Stellplatz | Außenstellplatz |
| Anzahl Garage/Stellplatz | 1 |
Kosten
| Kaufpreis |
350.000 € |
|---|---|
| Provision |
3,57 % inkl. MwSt. |
Finanzierungsrechner:
Kaufpreis:
600.000 €
Eigenkapital:
600.000 €
Monatliche Rate
0 €
Effektiver Jahreszins
0 %
Sollzinsbindung
10 Jahre
Bausubstanz & Energieausweis
| Letzte Sanierung | 2021 |
|---|---|
| Bauphase | Haus fertig gestellt |
| Denkmalschutzobjekt | Ja |
| Objektzustand | Modernisiert |
| Qualität der Austattung | Normal |
| Heizungsart | Zentralheizung |
| Wesentliche Energieträger | Erdgas leicht |
| Energieausweis | laut Gesetz nicht erforderlich |
Beschreibung des Objekts
Ausstattung
-Einbauküche (2021)
-Neue Gas- und Wasserleitungen (2021)
-Neue Elektrik (2021)
- Fassadensanierung (2017)
-Dielenboden
-Duschbad
-Hauswirtschaftsraum
-Terrasse mit neuer Abdichtung (2021)
- Isolierverglasung
-Klappläden
-Viessmann Gas-Brennwert-Heizung (2021)
-Gartenhaus
-Kfz-Außenstellplatz
-u. v. a.
Lage
Bad Soden ist ein wichtiger Wohn- und Arbeitsraum, westlich von Frankfurt/M. und ist wie die benachbarten Städte Königstein/Ts. und Kronberg/Ts. für seine teuren und schönen Wohnlagen bekannt.
Die Entfernung zum Stadtzentrum Frankfurt beträgt ca. 15 KM, zum Flughafen Frankfurt ca. 20 KM und zur Landeshauptstadt Wiesbaden ca. 33 KM. Das nahe gelegene Main-Taunus-Zentrum ist mit seinen vielseitigen Geschäften schnell zu erreichen. Diverse Sport- und Freizeitmöglichkeiten sind ebenfalls vorhanden.
Bad Soden besteht aus der Kernstadt sowie den beiden Stadtteilen Neuenhain und Altenhain. Die A 66 ist in wenigen Autominuten zu erreichen und bietet eine hervorragende Anbindung an Frankfurt, Wiesbaden und Mainz. Die Verkehrsanbindung mit Bus und S-Bahn ist ebenfalls sehr gut.
Unabhängig vom Bad Sodener Stadtzentrum bietet der Stadtteil Neuenhain alle erforderlichen Einkaufsmöglichkeiten (u.a. REWE, Metzger, Apotheke, zwei Bäcker), vielseitige Gastronomie wie auch diverse Ärzte und eine Apotheke.
Neben einigen Kindertagesstätten befindet sich in Neuenhain ebenso eine Grundschule. Mehrere weiterführende Schulen sind im Umkreis von drei Kilometern erreichbar.
Der Feldberg ist nur ein paar Autominuten entfernt, aber auch in unmittelbarer Umgebung der Immobilie gibt es schöne Fahrrad- und Wanderwege über weitläufige Felder oder die angrenzenden Wälder.
Sonstige Angaben
Wir bitten darum, dass Sie uns Ihre Anfrage über das Kontaktformular schicken.
Bitte haben Sie Verständnis, dass unvollständige Anfragen nicht sofort bearbeitet werden können.
Sie möchten Ihre Immobilie verkaufen oder vermieten? Gerne erstellen wir Ihnen eine kostenfreie Marktpreiseinschätzung oder informieren Sie über die aktuelle Marktsituation. Sprechen Sie uns an, wir beraten Sie gerne!
Provisionshinweis:
Mit der Anfrage bei und durch Inanspruchnahme der Dienstleistung der Firma RINKLEIB Immobilien wird ein Maklervertrag geschlossen.
Sollte durch unsere Nachweis- oder Vermittlungstätigkeit ein notarieller Kaufvertrag zustande kommen, ist vom Käufer eine Provision in Höhe von 3,57 % (inkl. 19 % MwSt.) des Kaufpreises an RINKLEIB Immobilien zu zahlen. Wir haben einen provisionspflichtigen Maklervertrag in gleicher Höhe mit dem Verkäufer abgeschlossen. Die Provision ist mit Vertragsabschluss verdient und fällig.
Haftungsausschluss:
Alle Angaben sind ohne Gewähr und basieren ausschließlich auf Informationen, die uns von unserem Auftraggeber übermittelt wurden. Wir übernehmen keine Gewähr für die Vollständigkeit, Richtigkeit und Aktualität dieser Angaben. Zwischenverkauf bleibt vorbehalten.
Hinweis zum Geldwäschegesetz:
Als Immobilienmakler sind wir nach § 1, 2 Abs. 1 Nr. 10, 4 Abs. 3 Geldwäschegesetz (GwG) dazu verpflichtet, die Identität des Vertragspartners festzustellen und zu überprüfen. Hierzu ist es erforderlich, dass wir die relevanten Daten Ihres Personalausweises festhalten – beispielsweise mittels einer Kopie. Das Geldwäschegesetz (GwG) sieht vor, dass der Makler die Kopien bzw. Unterlagen fünf Jahre aufbewahren muss.
Grundriss
Grundriss
>
>
Adresse
65812 Bad Soden am Taunus
Interessante Orte
Preis- und Lageinformationen
Preistrend für Bestandsimmobilien in Bad Soden am Taunus