Dieses liebevoll modernisierte Reihenmittelhaus vereint zeitgemäßen Wohnkomfort mit durchdachter Ausstattung und schafft ein Zuhause zum Ankommen und Wohlfühlen. Die Immobilie überzeugt durch eine harmonische Raumaufteilung, hochwertige Ausstattungsdetails und einen gepflegten, nahezu pflegeleichten Außenbereich.
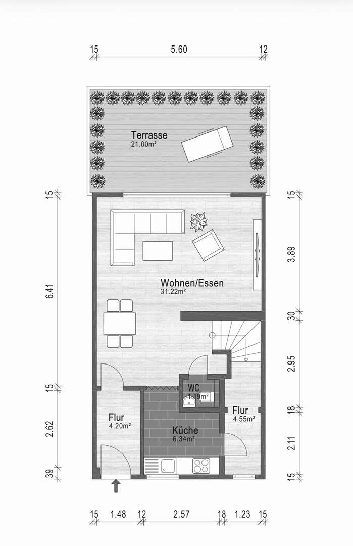
Bereits beim Betreten des Hauses empfängt Sie ein freundlicher Eingangsbereich mit Platz für eine Garderobe. Eine elegante Glastür trennt diesen Bereich vom Wohnraum und sorgt gleichzeitig für eine helle, offene Atmosphäre.
Das Erdgeschoss bildet mit dem offenen Wohn- und Essbereich das Herzstück des Hauses. Große Fensterfronten lassen viel Tageslicht herein und eröffnen einen schönen Blick in den 2024 neu gestalteten, blickdichten Garten. Die Küche ist offen integriert und bietet kurze Wege sowie eine kommunikative Wohnatmosphäre. Direkt angrenzend befindet sich ein praktischer Hauswirtschaftsraum mit Platz für Vorräte, Waschmaschine und Trockner. Ein Gäste-WC ergänzt das Raumangebot auf dieser Ebene.
Der Garten wurde im Jahr 2024 aufwendig und modern gestaltet. Neben einem großzügigen Gartenhaus mit viel Stauraum lädt die überdachte Terrasse zum Verweilen ein. Die integrierte elektrische Unterdachmarkise sorgt auch an warmen Tagen für angenehmen Schatten. Eine automatische Bewässerungsanlage übernimmt die Gartenpflege nahezu selbstständig.
Im Obergeschoss stehen zwei gut geschnittene Schlafzimmer zur Verfügung, von denen sich eines ideal als Kinderzimmer oder Home-Office eignet. Das großzügige Badezimmer ist mediterran gestaltet und mit einer Eckbadewanne sowie einer ebenerdigen Dusche ausgestattet - ein Ort der Entspannung.
Zusätzlichen Stauraum bietet der Dachboden, der zudem ausbaufähig ist. Ein vorhandener Schornstein ermöglicht den Einbau eines Kamins. Fußbodenheizung im Untergeschoss sowie im Badezimmer sorgt für angenehmen Wohnkomfort. Alle Wohnräume sind mit hochwertigem, fußwarmem Vinylboden ausgestattet.
Alle Fenster verfügen über Rollläden sowie Insektenschutzgitter. Das Dachfenster im Kinder- bzw. Home-Office-Zimmer ist mit einem praktischen Plissee versehen.
Zwei PKW-Stellplätze befinden sich direkt vor dem Haus. Eine Wallbox für Elektrofahrzeuge ist ebenfalls vorhanden. Die Beheizung erfolgt umweltfreundlich über Fernwärme. Ein Glasfaseranschluss ist für Frühjahr 2026 vorgesehen.
Finanzierungszertifikat
In nur zwei Minuten zu Ihrem persönlichen Finanzierungszertifkat.
Infos
| Haustyp | Reihenmittelhaus |
|---|---|
| Etagenzahl | 1 |
| Wohnfläche ca. | 98 m2 |
| Grundstücksfläche | 192 m2 |
| Bezugsfrei ab | sofort |
| Zimmer | 3 |
| Schlafzimmer | 2 |
| Badezimmer | 1 |
| Garage/Stellplatz | Außenstellplatz |
| Anzahl Garage/Stellplatz | 2 |
Kosten
| Kaufpreis |
337.900 € |
|---|---|
| Provision | Nein |
Finanzierungsrechner:
Kaufpreis:
600.000 €
Eigenkapital:
600.000 €
Monatliche Rate
0 €
Effektiver Jahreszins
0 %
Sollzinsbindung
10 Jahre
Bausubstanz & Energieausweis
| Baujahr | 2007 |
|---|---|
| Bauphase | Haus fertig gestellt |
| Objektzustand | Modernisiert |
| Wesentliche Energieträger | Fernwärme |
| Energieausweis | liegt vor |
| Energieausweistyp | Verbrauchsausweis |
| Energieverbrauchskennwert | 93,6 kWh/(m²*a) |
| Energieeffizienzklasse | C |
93,6
kWh/(m²*a)
Energieeffizienzklasse C
- A+
- A
- B
- C
- D
- E
- F
- G
- H
- 0
- 25
- 50
- 75
- 100
- 125
- 150
- 175
- 200
- 225
- >250
Beschreibung des Objekts
Ausstattung
Terrasse, Garten, Vollbad, Einbauküche, Gäste-WC
Bemerkungen:
•Offener Wohn- und Essbereich mit moderner Küche
•Hauswirtschaftsraum mit Platz für Vorräte, Waschmaschine & Trockner
•Gäste-WC im Erdgeschoss
•2 Schlafzimmer (Kinderzimmer/Home-Office möglich)
•Großzügiges Bad mit Eckbadewanne & ebenerdiger Dusche
•Fußbodenheizung im Untergeschoss & Bad
•Hochwertiger, fußwarmer Vinylboden in allen Wohnräumen
•Rollläden an allen Fenstern (außer Dachfenster)
•Dachfenster mit Plissee
•Insektenschutzgitter an allen Fenstern
•Ausbaufähiger Dachboden
•Schornstein vorhanden (Kamin möglich)
•Blickdichter Garten (neu gestaltet 2024)
•Gartenhaus mit viel Stauraum
•Überdachte Terrasse mit elektrischer Unterdachmarkise
•Automatische Bewässerungsanlage
•2 PKW-Stellplätze direkt am Haus
•Wallbox für Elektrofahrzeuge
•Fernwärme
•Glasfaseranschluss beantragt (Installation Frühjahr 2026)
Lage
Das Reihenmittelhaus befindet sich in Wendschott, einem beliebten und ruhigen Ortsteil, eingebettet in eine gewachsene Wohnsiedlung mit überwiegend Ein- und Reihenhäusern. Die Lage zeichnet sich durch ihre angenehme Ruhe und Familienfreundlichkeit aus. Das Haus liegt in einer verkehrsberuhigten 30er-Zone, fernab von Durchgangsverkehr - ideal für Familien, Paare oder alle, die ein entspanntes Wohnumfeld schätzen.
Die Nahversorgung ist hervorragend: Eine Einkaufsmöglichkeit befindet sich nur etwa 500 Meter entfernt und ist bequem zu Fuß oder mit dem Fahrrad erreichbar. Weitere Einrichtungen des täglichen Bedarfs, Kindergärten, Schulen sowie Freizeit- und Sportangebote befinden sich in der näheren Umgebung.
Dank der guten Anbindung sind umliegende Stadtteile und das überregionale Verkehrsnetz schnell erreichbar. Gleichzeitig bietet die Umgebung zahlreiche Möglichkeiten für Spaziergänge, Fahrradtouren und Erholung im Grünen.
Wendschott verbindet ruhiges Wohnen mit einer guten Infrastruktur - eine Lage, die Lebensqualität und Alltagstauglichkeit optimal vereint.
Infrastruktur (im Umkreis von 5 km):
Lebensmittel-Discount, Allgemeinmediziner, Kindergarten, Grundschule, Öffentliche Verkehrsmittel
Sonstige Angaben
Heizungsart: Fußbodenheizung
Energieträger: Fernwärme
Der Verkauf der Immobilie erfolgt privat.
Die gesamte Kommunikation sowie Terminabsprachen erfolgen über Herrn Wenderoth.
Makleranfragen nicht erwünscht. Nach § 7 UWG sind unaufgeforderte Kontaktaufnahmen durch Makler ohne ausdrückliche Einwilligung des Empfängers verboten!
ohne-makler (OM) ist weder Anbieter noch Vermittler der Immobilie. OM betreibt eine Plattform für Immobilieneigentümer, die unter anderem die gleichzeitige Veröffentlichung einzelner Inserate auf mehreren Immobilienportalen ermöglicht. Die Inhalte dieser Inserate werden ausschließlich von Dritten verantwortet. Für die Richtigkeit, Vollständigkeit oder Rechtmäßigkeit der Angaben übernimmt OM keine Haftung. Hinweise auf mögliche Rechtsverstöße können jederzeit gemeldet werden und werden nach Prüfung umgehend bearbeitet.
Grundriss
Grundriss
>
>
Grundriss
>
>
Adresse
Zur Wipperaller -, 38448 Wolfsburg
Interessante Orte
Preis- und Lageinformationen
Preistrend für Bestandsimmobilien in Wendschott