Diese neu errichtete Villa im klassisch-hanseatischen Stil überzeugt durch traditionelle Architektur, moderne Technik und höchste Energieeffizienz. Auf einem sonnigen Südgrundstück mit ca. 1.022 m² bietet das Haus rund 393 m² Gesamtfläche (davon ca. 326 m² Wohnfläche) und ein hochwertiges, stilvolles Wohnambiente.
Charakteristisch sind das geschwungene Mansarddach, ein Erker, schwarze Sprossenfenster und elegante Fensterläden. Innen erwarten Sie großzügige Raumhöhen, Fischgrätparkett, Eichendielen, maßgefertigte Einbauten sowie moderne Loft-Türen aus Stahl und Glas.
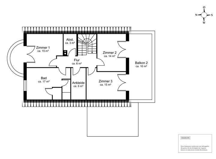
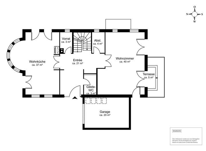
Das Erdgeschoss besticht durch eine offene Wohn- und Esslandschaft mit Kamin und Gartenzugang. Im Obergeschoss liegen drei Schlafzimmer mit Balkon und Dachterrasse sowie ein Familienbad. Das Dachgeschoss bildet eine exklusive Master-Suite mit Ankleide und Bad en suite.
Das Untergeschoss (2,50 m Deckenhöhe) bietet zwei tagesbelichtete Räume, ein Duschbad sowie Hauswirtschafts- und Technikräume – ideal für Fitness oder Hobby. Der angelegte Garten mit Rasen, heimischer Bepflanzung und Beleuchtung rundet das Angebot ab.
Ein stilvolles, effizientes und wertbeständiges Zuhause auf höchstem Niveau.
Zeitlose Eleganz in exklusiver Lage – eine Villa der Extraklasse
22609 Hamburg
Die vollständige Adresse der Immobilie erhalten Sie vom Anbieter.
Auf Karte anzeigen
Die vollständige Adresse der Immobilie erhalten Sie vom Anbieter.
Finanzierungszertifikat
In nur zwei Minuten zu Ihrem persönlichen Finanzierungszertifkat.
Infos
| Haustyp | Villa |
|---|---|
| Etagenzahl | 4 |
| Wohnfläche ca. | 326 m2 |
| Nutzfläche | 67 m2 |
| Grundstücksfläche | 1.022 m2 |
| Zimmer | 7 |
| Schlafzimmer | 4 |
| Badezimmer | 3 |
| Garage/Stellplatz | Garage |
| Anzahl Garage/Stellplatz | 1 |
Kosten
| Kaufpreis |
3.950.000 € |
|---|---|
| Provision |
3,57 % inkl. der gesetzl. MwSt., bezogen auf den Kaufpreis |
Finanzierungsrechner:
Kaufpreis:
600.000 €
Eigenkapital:
600.000 €
Monatliche Rate
0 €
Effektiver Jahreszins
0 %
Sollzinsbindung
10 Jahre
Bausubstanz & Energieausweis
| Baujahr | 2024 |
|---|---|
| Objektzustand | Erstbezug |
| Heizungsart | Wärmepumpe |
| Energieausweis | liegt vor |
| Energieausweistyp | Bedarfsausweis |
| Energieverbrauchskennwert | 17,7 kWh/(m²*a) |
| Energieeffizienzklasse | A+ |
17,7
kWh/(m²*a)
Energieeffizienzklasse A+
- A+
- A
- B
- C
- D
- E
- F
- G
- H
- 0
- 25
- 50
- 75
- 100
- 125
- 150
- 175
- 200
- 225
- >250
Beschreibung des Objekts
Ausstattung
- Klassisch-hanseatische Architektur kombiniert mit moderner Haustechnik
- Hochwertiges Fischgrätparkett in den Wohnbereichen
- Eichendielen in den Schlafzimmern
- Maßgefertigte Tischlereinbauten
- Loft-Türen aus Stahl und Glas
- Hochwertige Bäder mit Fliesen, Sanitärkeramik von Laufen und Armaturen von Herzbach
- Großzügiges Masterbad mit Raumhöhe bis unter den Dachfirst
- Heller Küchenbereich mit Essplatz im Erker und bodentiefen Fenstern
- Direkter Zugang vom Wohnbereich in den Garten
- Luft-Wasser-Wärmepumpe
- Fußbodenheizung auf allen Ebenen
- Be- und Entlüftungsanlage mit Wärmerückgewinnung
- Endenergiebedarf 17,7 kWh/(m²·a), Energieeffizienzklasse A+
- Glasfaseranschluss
- Garage
- Großzügige Terrassen- und Balkonflächen
- Angelegter Südgarten mit heimischer Bepflanzung, Pflasterungen und Beleuchtung
Lage
Klein Flottbek zählt zu den exklusivsten und zugleich idyllischsten Wohnlagen im Hamburger Westen. Das Umfeld ist geprägt von eleganten Villen, gepflegten Gärten und altem Baumbestand – ideal für alle, die Ruhe, Privatsphäre und hanseatisches Flair schätzen.
In direkter Nachbarschaft liegen der Hamburger Polo Club, der Jenischpark, der Botanische Garten und das Elbufer. Diese weitläufigen Grün- und Freizeitflächen bieten vielfältige Möglichkeiten für Spaziergänge, Sport und Erholung.
Die Infrastruktur ist hervorragend: In Othmarschen und Nienstedten finden sich hochwertige Geschäfte, Feinkostläden, Boutiquen und Cafés. Das Elbe-Einkaufszentrum ist in wenigen Minuten erreichbar und deckt den täglichen Bedarf komfortabel ab.
Für Familien bietet die Lage beste Voraussetzungen. Das Jenisch-Gymnasium ist fußläufig erreichbar, weitere renommierte Schulen wie ISH, Christianeum und Gymnasium Hochrad liegen in kurzer Distanz. Die S-Bahn-Station Klein Flottbek ermöglicht eine schnelle Anbindung an die Hamburger Innenstadt in nur ca. 15 Minuten.
Klein Flottbek verbindet Exklusivität, Natur und urbanen Komfort – eine der begehrtesten Adressen der Hansestadt.
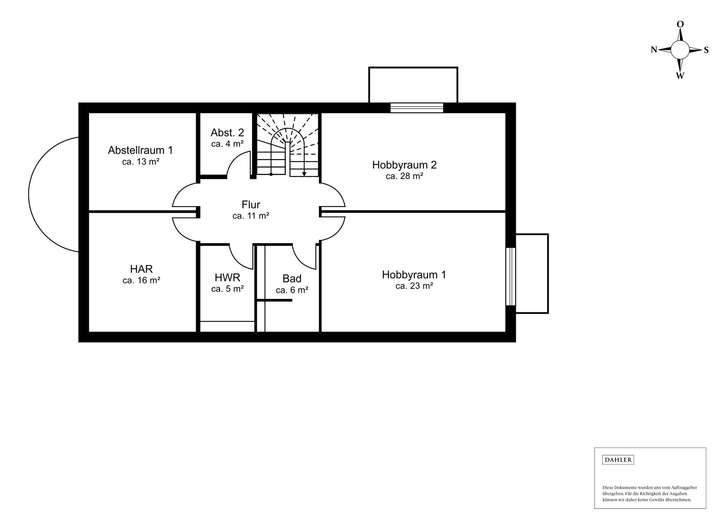
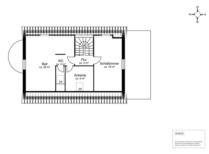
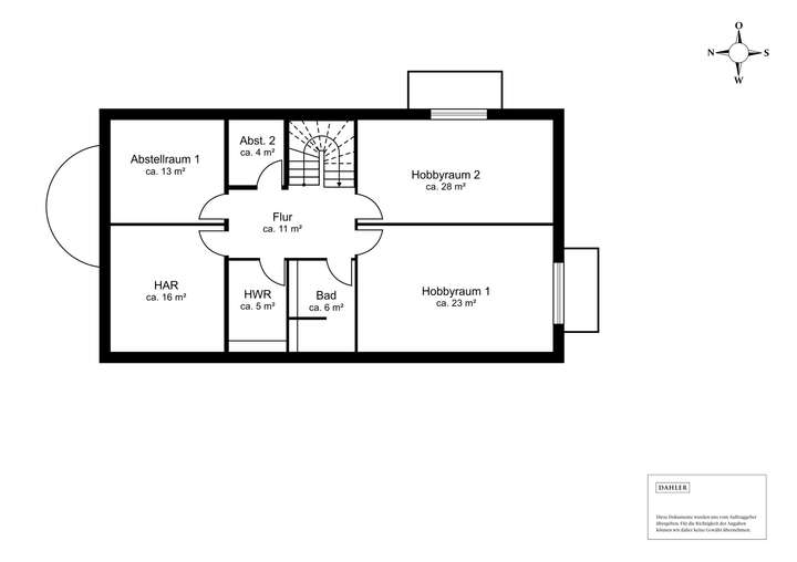
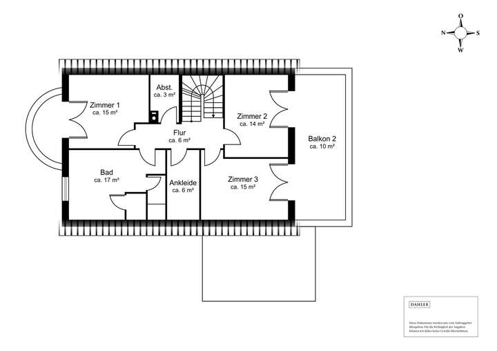
Grundriss
Grundriss Obergeschoss
>
>
Grundriss Dachgeschoss
>
>
Grundriss Untergeschoss
>
>
Adresse
22609 Hamburg
Interessante Orte
Preis- und Lageinformationen
Preistrend für Bestandsimmobilien in Osdorf