Dieses im Jahr 1965 errichtete Einfamilienhaus liegt auf einem 271qm großen Grundstück in ruhiger Sackgassenlage nahe des Motzener Fähranlegers und verfügt über eine Wohnfläche von ca. 88m². Die angenehme Umgebung und die überschaubare Grundstücksgröße bieten ideale Voraussetzungen für ruhiges und komfortables Wohnen.
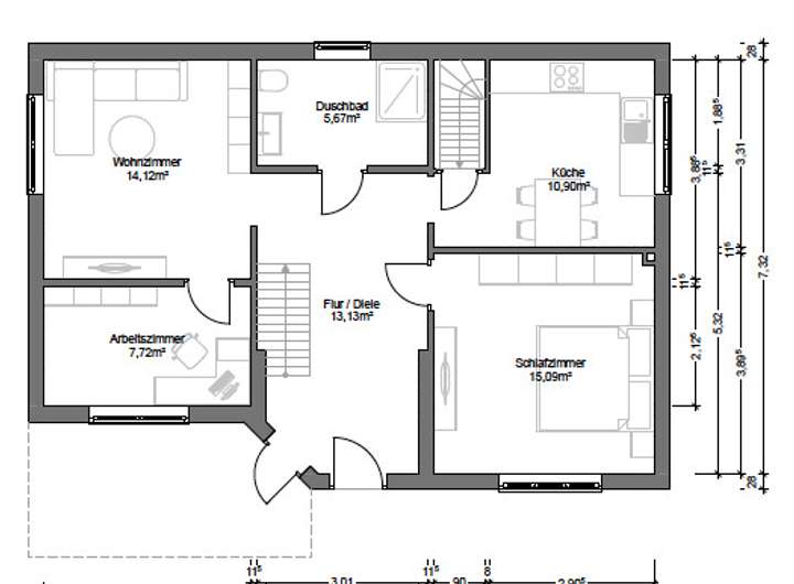
Besonders hervorzuheben ist die nahezu ebenerdige Raumaufteilung, die ein alltagstaugliches und barrierearmes Wohnen ermöglicht. Über die Haustür gelangen Sie direkt in den zentralen Flur, von dem aus alle wesentlichen Räume bequem erreichbar sind.
Im Erdgeschoss befinden sich das Schlafzimmer, die Küche mit Abstellraum und Zugang zum Teilkeller sowie das ebenerdige, rollstuhlgerechte Badezimmer. Das helle Wohnzimmer mit angrenzendem Büro bietet ausreichend Platz für Wohnen und Rückzug. Zudem besteht von hier aus der Zugang zum Wintergarten, der als geschützter Aufenthaltsraum mit Blick in den Garten dient. Im Erdgeschoss befindet sich eine Stufe vom Flur zur Küche.
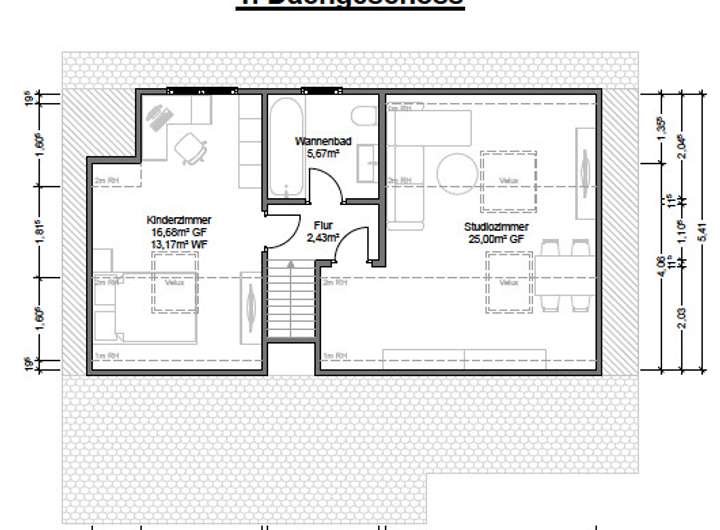
Das Obergeschoss erreichen Sie über die Treppe aus dem Flur und verfügt über zwei weitere Räume sowie ein Wannenbad mit Toilette. Das Dachgeschoss wurde im Jahr 2008 ausgebaut und bietet zusätzliche Wohn- und Nutzfläche.
Der pflegeleichte Garten ist direkt vom Wintergarten aus zugänglich und lädt zu entspannten Stunden im Freien ein. Zwei Außenstellplätze befinden sich unmittelbar vor dem Haus und sorgen für kurze Wege.
Diese Immobilie eignet sich ideal für Senioren, Paare oder kleine Familien, die Wert auf ebenerdiges Wohnen, eine ruhige Lage und eine praktische Raumaufteilung legen.
Berne-Motzen | Charmantes Einfamilienhaus mit zwei Stellplätzen auf kleinem Grundstück
27804 Berne
Die vollständige Adresse der Immobilie erhalten Sie vom Anbieter.
Auf Karte anzeigen
Die vollständige Adresse der Immobilie erhalten Sie vom Anbieter.
Finanzierungszertifikat
In nur zwei Minuten zu Ihrem persönlichen Finanzierungszertifkat.
Infos
| Haustyp | Einfamilienhaus |
|---|---|
| Etagenzahl | 2 |
| Wohnfläche ca. | 87 m2 |
| Nutzfläche | 35,94 m2 |
| Grundstücksfläche | 271 m2 |
| Bezugsfrei ab | nach Absprache |
| Zimmer | 5 |
| Schlafzimmer | 3 |
| Badezimmer | 2 |
| Garage/Stellplatz | Außenstellplatz |
| Anzahl Garage/Stellplatz | 2 |
Kosten
| Kaufpreis |
210.000 € |
|---|---|
| Provision |
3,57 % (inkl. MwSt.) vom beurkundeten Kaufpreis (Käuferprovision) |
Finanzierungsrechner:
Kaufpreis:
600.000 €
Eigenkapital:
600.000 €
Monatliche Rate
0 €
Effektiver Jahreszins
0 %
Sollzinsbindung
10 Jahre
Bausubstanz & Energieausweis
| Baujahr | 1965 |
|---|---|
| Objektzustand | Modernisiert |
| Heizungsart | Gas-Heizung |
| Wesentliche Energieträger | Gas |
| Energieausweis | liegt vor |
| Energieausweistyp | Bedarfsausweis |
| Energieverbrauchskennwert | 230,8 kWh/(m²*a) |
| Energieeffizienzklasse | G |
230,8
kWh/(m²*a)
Energieeffizienzklasse G
- A+
- A
- B
- C
- D
- E
- F
- G
- H
- 0
- 25
- 50
- 75
- 100
- 125
- 150
- 175
- 200
- 225
- >250
Beschreibung des Objekts
Ausstattung
+ komplett saniert 2008 (Dachstuhl, Decken, Estrich, Bäder)
+ Elektrik-3-adrig
+ Bad im EG aus 2021
+ Fenster im DG aus 2008
+ Wintergarten aus 2008
+ Terrasse
+ Einbauküche
+ Buderus Gas-Heizung aus 1996
+ WW über Durchlauferhitzer 2023
+ Teilkeller mit Gewölbedecke
+ Gartenhaus 2025
+ 2 PKW Stellplätze
+ eingezäuntes Grundstück
Lage
Die Immobilie befindet sich in ruhiger und naturnaher Lage in Motzen, unweit des beliebten Fähranlegers an der Weser. Die direkte Nähe zum Wasser prägt den besonderen Charakter dieses Wohnstandortes und bietet ein hohes Maß an Lebensqualität für alle, die Ruhe, Natur und maritimes Flair schätzen.
Der Fähranleger Motzen ermöglicht eine schnelle und bequeme Verbindung nach Bremen-Blumenthal und stellt damit eine attraktive Alternative für Berufspendler dar. Gleichzeitig ist die Umgebung geprägt von gepflegter Wohnbebauung, Deichlandschaften und weitläufigen Spazier- und Radwegen entlang der Weser – ideal für Freizeitaktivitäten und Erholung im Grünen.
Einkaufsmöglichkeiten für den täglichen Bedarf, Schulen, Kindergärten sowie ärztliche Versorgung befinden sich im nahegelegenen Ortskern von Berne und sind in wenigen Fahrminuten erreichbar. Eine gute Anbindung an das regionale Straßennetz sorgt zudem für eine zügige Erreichbarkeit der umliegenden Orte sowie der Stadt Bremen.
Sonstige Angaben
Wir weisen darauf hin, dass die von uns weitergegebenen Objektinformationen, Unterlagen, Pläne etc. vom Auftraggeber stammen. Eine Haftung für die Richtigkeit oder Vollständigkeit der Angaben übernehmen wir nicht. Es obliegt daher unseren Kunden, die darin enthaltenen Objektinformationen und Angaben auf ihre Richtigkeit hin zu überprüfen. Alle Immobilienangebote sind freibleibend und vorbehaltlich Irrtümer, Zwischenverkauf- und Vermietung oder sonstiger Zwischenverwertung.
Geldwäsche: Die Rutz Immobilien GmbH ist als Immobilienmaklerunternehmen gemäß § 2 Abs. 1 Nr. 14 und § 11 Abs. 1, 2 des Geldwäschegesetzes (GwG) verpflichtet, die Identität ihrer Vertragspartner zu überprüfen, sobald eine Geschäftsbeziehung entsteht oder ernsthaftes Interesse an einem Immobilienkaufvertrag besteht.
Dafür erfassen wir nach § 11 Abs. 4 GwG die relevanten Daten Ihres Personalausweises (bei natürlichen Personen), beispielsweise durch eine Kopie. Handelt es sich um eine juristische Person, ist ein Handelsregisterauszug erforderlich, aus dem der wirtschaftlich Berechtigte hervorgeht.
Das Geldwäschegesetz verpflichtet uns, diese Unterlagen für einen Zeitraum von fünf Jahren aufzubewahren. Zudem sind Sie als unser Vertragspartner gemäß § 11 Abs. 6 GwG zur Mitwirkung verpflichtet.
Grundriss
Grundriss Erdgeschoss
>
>
Grundriss Dachgeschoss
>
>
Grundriss Kellergeschoss
>
>
Adresse
27804 Berne
Interessante Orte
Preis- und Lageinformationen
Preistrend für Bestandsimmobilien in Berne