Diese exklusive Villa überzeugt mit großzügiger Architektur, hochwertiger Ausstattung und einem durchdachten Raumkonzept über insgesamt vier Ebenen. Das Haus bietet außergewöhnliche Wohnqualität mit lichtdurchfluteten Räumen, großen Fensterflächen und edlen Materialien wie Eichenparkett in allen Wohnbereichen. Die zeitlose Gestaltung und die luxuriöse Ausführung schaffen ein Wohnambiente, das Eleganz und Komfort auf höchstem Niveau vereint.
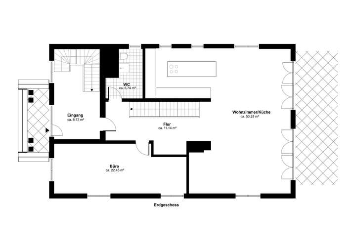
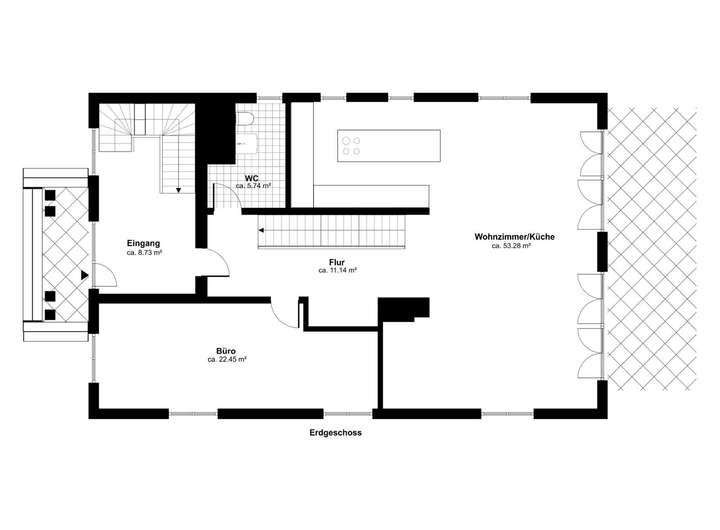
Das Erdgeschoss bildet das Herzstück des Hauses: Ein großzügiger Wohn- und Essbereich mit moderner Küche samt Kochinsel öffnet sich über große Fensterfronten zur Terrasse. Von hier aus genießen Sie den Blick in den weitläufigen Garten und ins Grüne. Ein absolutes Highlight ist der integrierte ca. 9 Meter lange Pool, der den Außenbereich in eine private Wohlfühloase verwandelt. Ergänzt wird diese Ebene durch ein weiteres Zimmer, das sich ideal als Büro oder Gäste-/Schlafzimmer eignet, sowie ein modernes Bad. Im Obergeschoss befinden sich drei gut geschnittene Zimmer, ein separater Ankleideraum sowie zwei hochwertig ausgestattete Vollbäder. Großformatige Fliesen, stilvolle Details und klare Linien unterstreichen den exklusiven Charakter.
Die durchdachte Aufteilung bietet ideale Voraussetzungen für Familien und schafft gleichzeitig Rückzugsmöglichkeiten mit viel Privatsphäre. Das Souterrain ist vollwertig nutzbar und erweitert die Villa um vielseitige Flächen: Neben einer Waschküche stehen hier zwei weitere Zimmer zur Verfügung. Ein Sport- und Saunabereich mit eigenem Vollbad schafft zusätzlichen Komfort und verwandelt diese Ebene in einen privaten Wellnessbereich.
Das Dachgeschoss ist als separate Einliegerwohnung konzipiert und derzeit möbliert vermietet. Die Nettokaltmiete beträgt € 17.400 p. a. Bei Bedarf kann diese Einheit frei geliefert werden. Hier erwartet Sie ein offener Wohn- und Essbereich mit Loggia und schönem Blick in den Garten. Zwei weitere Zimmer, ein Gäste-Bad sowie ein Vollbad bieten ein vollwertiges, eigenständiges Wohnkonzept – ideal für Gäste, Familie oder als separate Nutzung. Ein eigener Kellerraum ist dieser Einheit ebenfalls zugeordnet. Insgesamt vereint diese Villa großzügiges Wohnen, hochwertige Ausstattung und ein außergewöhnliches Außenangebot mit Pool und Garten – ein seltenes Zuhause für Menschen mit Anspruch an Stil, Raum und Lebensqualität.
MODERNE VILLA – MIT POOL UND WEITBLICK INS GRÜNE
22391 Hamburg
Die vollständige Adresse der Immobilie erhalten Sie vom Anbieter.
Auf Karte anzeigen
Die vollständige Adresse der Immobilie erhalten Sie vom Anbieter.
Finanzierungszertifikat
In nur zwei Minuten zu Ihrem persönlichen Finanzierungszertifkat.
Infos
| Haustyp | Einfamilienhaus |
|---|---|
| Wohnfläche ca. | 305 m2 |
| Nutzfläche | 98,77 m2 |
| Grundstücksfläche | 1.450 m2 |
| Bezugsfrei ab | nach Absprache |
| Zimmer | 9 |
| Badezimmer | 4 |
| Anzahl Garage/Stellplatz | 4 |
Kosten
| Kaufpreis |
3.300.000 € |
|---|---|
| Provision |
3,57 % inkl. ges. MwSt. Die Käufercourtage i.H.v. 3,57 % inkl. ges. MwSt. ist nach Notarvertragsabschluss verdient und fällig. |
Finanzierungsrechner:
Kaufpreis:
600.000 €
Eigenkapital:
600.000 €
Monatliche Rate
0 €
Effektiver Jahreszins
0 %
Sollzinsbindung
10 Jahre
Bausubstanz & Energieausweis
| Baujahr | 2022 |
|---|---|
| Objektzustand | Gepflegt |
| Qualität der Austattung | Luxus |
| Heizungsart | Wärmepumpe |
| Wesentliche Energieträger | Umweltwärme |
| Energieausweis | liegt vor |
| Energieausweistyp | Bedarfsausweis |
| Energieverbrauchskennwert | 10,2 kWh/(m²*a) |
| Energieeffizienzklasse | A+ |
10,2
kWh/(m²*a)
Energieeffizienzklasse A+
- A+
- A
- B
- C
- D
- E
- F
- G
- H
- 0
- 25
- 50
- 75
- 100
- 125
- 150
- 175
- 200
- 225
- >250
Beschreibung des Objekts
Ausstattung
● Einbauküche mit Kochinsel
● Wärmepumpenheizung
● Fußbodenheizung in allen Etagen
● Carport mit Wallbox und Stellplatz direkt am Haus
● Exklusive Außenanlage
● Direkter Zugang vom Wohn-Essbereich zur Terrasse und Pool
● Eichenparkett
● Sauna im Souterrain
● Einliegerwohnung im Dachgeschoss mit Loggia
● Hochwertige Bäder mit großformatigen Fliesen
Lage
Wellingsbüttel, im Nordosten Hamburgs gelegen, vereint städtischen Komfort mit der Ruhe und Schönheit der Natur. Zwischen der Kombination aus urbanem Flair und naturnaher Erholung, bietet Wellingsbüttel einen eleganten Rückzugsort für alle, die Weitläufigkeit, frische Luft und Ruhe schätzen. Uferwege entlang der Alster laden zu entspannten Spaziergängen oder ausgedehnten Radtouren ein – ideal, um den Alltag hinter sich zu lassen.
Das Ortszentrum von Wellingsbüttel bietet eine vielseitige Auswahl an Einkaufsmöglichkeiten, charmanten Cafés und einladenden Restaurants. Ebenso können Sie dienstags und freitags den charmanten Wellingsbüttler Wochenmarkt mit seinem abwechslungsreichen Angebot an frischen Lebensmitteln und lokalen Produkten besuchen.
Familienfreundlichkeit steht in Wellingsbüttel an erster Stelle. Die ruhigen Straßen und die Nähe zur Natur schaffen eine sichere Umgebung für Kinder. Zudem bietet die Umgebung eine hervorragende Auswahl an Kindergärten und Schulen. Der Tennis- und Hockey-Club Klipper THC e.V. befindet sich in direkter Nähe, wo Sportbegeisterte jeden Alters ihren Leidenschaften nachgehen können.
Zum Shoppen, Bummeln und Treffen lädt das bekannte Alstertal-Einkaufszentrum ein. Es bietet eine breite Palette an Geschäften, Boutiquen und Restaurants. Hier finden Sie alles, was das Herz begehrt.
Trotz der ruhigen, familienfreundlichen Atmosphäre ist man in Wellingsbüttel hervorragend angebunden: Die S-Bahnstationen „Wellingsbüttel“ und „Hoheneichen“ sorgen für eine schnelle Verbindung in die Hamburger Innenstadt sowie in nahegelegene Stadtteile wie Eppendorf oder Winterhude. Der Flughafen ist ebenfalls in kurzer Zeit erreichbar.
Grundriss
Erdgeschoss
>
>
1. Obergeschoss
>
>
2. Obergeschoss
>
>
Souterrain
>
>
Adresse
22391 Hamburg
Interessante Orte
Preis- und Lageinformationen
Preistrend für Bestandsimmobilien in Wellingsbüttel