Dieses gut durchdachte, mit viel Hightech ausgestattete Reiheneckhaus, befindet sich in ruhiger, zentraler Lage in Frankfurt-Dornbusch und wird Sie nicht nur mit einem liebevoll angelegten Garten begeistern!
Eine attraktive Wohnlage mit Nähe zum Naturgebiet und einer guten Anbindung an öffentliche Verkehrsmittel, Einkaufsmöglichkeiten und Bildungseinrichtungen. Diese Kombination macht die Umgebung zu einem idealen Wohnort für Familien, Berufspendler und Naturliebhaber.
Neben einem hellen Wohn- / Essbereich mit großer Glasfensterfront mit Blick in den idyllisch angelegten Garten, einem außergewöhnlich eingerichtetem Badezimmer im 1. Obergeschoss, einem begehbaren Kleiderschrank und einem Luxus-Masterbad mit Dampfdusche und Whirpoolfunktion im Dachgeschoss, erleben Sie ein besonderes Hyghlight im eigenen Heimkino im Untergeschoss des Hauses.
Eine große, nach Süden ausgerichtete Terrasse mit hellem Granitboden, ein harmonisch angelegter Garten mit einer Regenwasserzysterne, einer Holzgartenhütte und einem Bachlauf mit kleinem, beleuchtetem Fischteich, runden das Angebot schließlich ab.
Das Wohnhaus ist in fast allen Räumen mit sparsamen Bewegungsmeldern ausgestattet. Zudem sichert das Haus ein Überwachungssystem von insgesamt 10 Kameras.
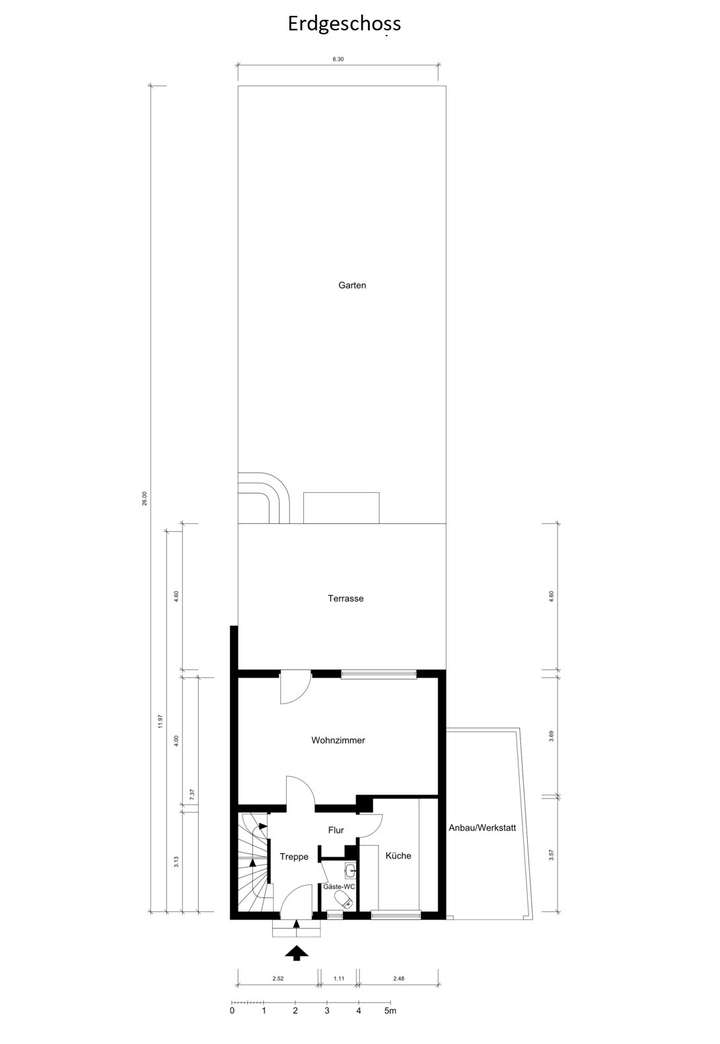
Im Erdgeschoss befindet sich neben einer praktisch, versteckten Garderobe, das stilvoll ausgestattete Gäste-WC mit Handwaschbecken, frei hängendem WC, TV und Warmwasseranschluß.
Die funktionale, helle Einbauküche, ist mit zusätzlich verstecktem Stauraum und hochwertigen Elektrogeräten ausgestattet. 2016 wurde die Einbauküche komplett erneuert, ein neuer Laminatfußboden und eine elektr. Fußbodenheizung verlegt.
Über eine Treppe gelangen Sie in das Obergeschoss des Hauses. Hier befinden sich zwei Schlafzimmer. Eines davon hat Zugang zu einem Balkon.
Weiter gibt es auf dieser Ebene ein ausgefallenes Badezimmer zu entdecken. Das Badezimmer ist mit einer Dusche, einem großen modernem Handwaschbecken, einem WC und einem schicken Lamelleneinbauschrank ausgestattet.
Über eine weitere Treppe, welche sich in einem Durchgangszimmer befindet, gelangen Sie in das mit hochwertigem Holz verkleidete Dachgeschoss.
Das Durchgangszimmer kann z.B. als Hobbyraum, Büro oder Ankleidezimmer genutzt werden.
Das Dachgeschoss kann nicht nur mit einem erholsamen, großen Schlafraum begeistern, sondern bietet neben einem begehbaren Kleiderschrank und einer weiteren geschickt versteckten Abstellfläche, auch ein Luxuriöses Masterbad zur Entspannung und Erholung.
Das lichtdurchflutete Masterbad, ist nicht nur mit einer Dampfdusche mit Whirlepool-Funktion, einem frei hängendem WC, einem Bidet, zwei Handwaschbecken und einer elektr. Handtuchheizung ausgestattet, sondern ebenso mit einer elektr. Fußbodenheizung.
Das Dachgeschoss verfügt über eine Heizung und eine Klimaanlage.
Im Aussenbereich befindet sich die Terrasse, welche mit hellen Granitplatten belegt ist und eine elektr. Markise hat.
Ein Außenkühlschrank und weiteren praktischen Stauraum, finden Sie versteckt in einem dezenten Schrank, direkt auf der Terrasse.
Der große Garten, lässt das Herz jeden Hobbygärtners höher schlagen!
Hier gibt es viel zu entdecken, wie z.B. einen Fischteich mit Beleuchtung, einen Bachlauf zur Grundstückstrennung und viel Platz für ein Gemüsebeet und Bepflanzungen aller Art. Im Garten befindet sich außerdem eine Regenwasseranlage, welche eine Verbindung zu den Toilettenspülungen im Hauses hat, sowie für die Gartenbewässerung genutzt werden kann.
In der Holzgartenhütte lassen sich bequem Ihre Gartengeräte, Fahrräder oder Gartenmöbel verstauen.
Profi Concept: Frankfurt, außergewöhnliches Reiheneckhaus in guter Lage in Dornbusch
Ziegenhainerstr. 207,
60433 Frankfurt am Main
Auf Karte anzeigen
Finanzierungszertifikat
In nur zwei Minuten zu Ihrem persönlichen Finanzierungszertifkat.
Infos
| Haustyp | Reiheneckhaus |
|---|---|
| Etagenzahl | 2 |
| Wohnfläche ca. | 102 m2 |
| Nutzfläche | 175,9 m2 |
| Grundstücksfläche | 223 m2 |
| Bezugsfrei ab | Nach Absprache |
| Zimmer | 5 |
| Schlafzimmer | 4 |
| Badezimmer | 2 |
| Garage/Stellplatz | Außenstellplatz |
| Anzahl Garage/Stellplatz | 1 |
Kosten
| Kaufpreis |
900.000 € |
|---|---|
| Provision |
3,57% inkl. MwSt. In unserer Courtage ist die gesetzliche MwSt. enthalten. Für die Besichtigung und Beratung entstehen Ihnen keinerlei Kosten und Gebühren. Gem. § 656 c BGB zahlt der Verkäufer die gleiche Courtage wie der Käufer. Unsere Courtage ist erst bei Abschluss des Kaufvertrages fällig. |
Finanzierungsrechner:
Kaufpreis:
600.000 €
Eigenkapital:
600.000 €
Monatliche Rate
0 €
Effektiver Jahreszins
0 %
Sollzinsbindung
10 Jahre
Bausubstanz & Energieausweis
| Baujahr | 1955 |
|---|---|
| Bauphase | Haus fertig gestellt |
| Objektzustand | Modernisiert |
| Qualität der Austattung | Gehoben |
| Heizungsart | Gas-Heizung |
| Wesentliche Energieträger | Erdgas schwer |
| Energieausweis | liegt vor |
| Energieausweistyp | Bedarfsausweis |
| Energieverbrauchskennwert | 86,8 kWh/(m²*a) |
| Energieeffizienzklasse | C |
86,8
kWh/(m²*a)
Energieeffizienzklasse C
- A+
- A
- B
- C
- D
- E
- F
- G
- H
- 0
- 25
- 50
- 75
- 100
- 125
- 150
- 175
- 200
- 225
- >250
Beschreibung des Objekts
Ausstattung
Ausstattung:
- Hightech-Ausstattung im ganzen Haus, inkl. Badezimmer
- Heimkino / Cine-Bar im Keller
- Weiteres Bürozimmer / Schlafzimmer im Keller mit Not-Ausgang zum Garten
- Gas-Zentralheizung
- Elektrische Rollläden an allen Fenstern
- überwiegend Bewegungsmelder im Haus
- EKB mit folgender Ausstattung:
- hochwertiges Inductionskochfeld
- Abzugshaube von Siemens
- Backofen auf Arbeitshöhe von AEG
- Spülmaschine von Miele
- Große Kühl- & Gefrierkombination (Amerikanischer Side-by-Side-Kühlschrank)
- Fußbodenheizung
- Dachgeschoß mit Luxus-Masterbad und Dampfdusche mit Whirlpoolfunktion
- begehbarer Kleiderschrank mit Strom und Steckdosen
- Klimaanlage und Heizung im Dachgeschoß
- lichtdurchfluteter Wohn- / Essbereich
- große Fensterfront im Wohnzimmer mit Ausgang zur Terrasse
- großzügige Terrasse mit hellem Granitsteinboden und elektr. Markise
- Idyllisch angelegter Garten mit:
- praktischem Holzgartenhaus
- beleuchtetem Wasserbrunnen
- einem Bachlauf mit Fischteich
- einer Regenwasseranlage
- Haustür mit Kameraüberwachung
- Türsprechanlage mit elektr. Türöffner
per Pin-Code und Chip
- Kameraüberwachung mit 10 System-Kameras inkl. Parkplatzüberwachung
- Die Hausdachfläche ist Photovoltaik geeignet.
- PKW-Außenstellplatz mit abgesenktem Bordstein
Aufteilung der Räume wie folgt:
- Erdgeschoss mit ca. 40,7 qm
- Wohnzimmer mit ca. 24,8 qm
- Küche mit ca. 8,3 qm
- Flur mit ca. 5,9 qm
- Gäste-WC mit ca. 1,7 qm
- Terrasse (nur anteilig in der
Wohnfläche enthalten)
- Obergeschoss ca. 40,3 qm
- Schlafzimmer 1 mit ca. 10,4 und Balkon mit ca. 3,4 qm
- Schlafzimmer 2 mit ca. 14,2 qm
- Badezimmer mit ca. 4,2 qm
- Flur mit ca. 2,5 qm
- Durchgangszimmer mit ca. 9,0 qm
- Dachgeschoss mit ca. 36,1 qm:
- Schlafzimmer mit ca. 21,0 qm
- Masterbad - Luxusbad mit ca. 4,8 qm
- begehbarer Kleiderschrank mit ca. 10,3 qm
- Untergeschoss mit ca. 58,8 qm
- Büroraum mit ca. 23,1 qm (Ausbau unter der Terrasse)
- Heizungsraum mit ca. 2,6 qm
- Waschküche mit ca. 8,3 qm
- Kellerraum / Heimkino / Cine-Bar mit ca, 24,8 qm
- Flur
Anbau / Motorradgarage / Werkstatt mit ca. 14,7 qm.
Der Bodenbelag ist wie folgt:
UG: überwiegend Teppich
EG: Laminat in Küche und Wohnzimmer, Fliesen im Gäste-WC und Eingangsbereich / Hausflur
OG: Parkette im Flur und Balkonzimmer, Teppich im Schlafzimmer und Durchgangszimmer, blaue Mosaik-Steine im Badezimmer.
DG: Teppich im Schlafzimmer und Laminat im Badezimmer
Terrasse: Granitsteinboden
Treppe im UG / OG: Teppich
Letzte Modernisierungen:
1993 Kompl. Neueindeckung Hausdach, Ausbau DG mit Schallisolierung zum Nachbarhaus, Einbau Klimaanlage mit Heizung
1994 Neue Außenfassade mit Anstrich
1995 EG: Erneuerung Steinfußboden im Flur und Gäste-WC
2002 OG: Balkonsanierung
2003 UG: Unterkellerung der Terrasse als Büroraum
2004 UG: Umbau Cine - Bar
2004 EG: Wintergartengenehmigung als Wohnraumerweiterung gem. Pläne (wurde bisher nicht verwirklicht)
2005 EG: Fußboden Wohnzimmer erneuert, Heizkörper im Wohnzimmer getauscht und Heizungsanschluss Wintergarten verlegt
2006 Untere Terrasse angelegt
2007 Terrasse isoliert
2008 Neue Haustür mit Kamera und Vordach
2015 Kamera-Überwachungsanlage eingebaut
2016 EG: Einbauküche und Fußboden erneuert, neue Fußbodenheizung verlegt
2018 Neues Holzgartenhaus
2020 Schornsteinsanierung
2022 DG: Sanierung Master - Luxusbad
Lage
Die Ziegenhainer Straße befindet sich in der „Albert-Schweitzer-Siedlung“ im Stadtteil Dornbusch, im Norden von Frankfurt am Main. Die tolle Lage zeichnet sich durch eine Mischung aus einer guten Infrastruktur und grünen Rückzugsorten aus.
Die nächste Bushaltestelle (Linie 69) ist in ca. 5 Gehminuten schnell zu erreichen.
Auch div. Einkaufsmöglichkeiten wie z.B. Supermärkte, Bäckereien, u.v.m. erreichen Sie in wenigen Minuten zu Fuß.
Für ein gemeinsames Beisammensein und das leibliche Wohl ist natürlich auch gesorgt. Sie erreichen in ca. 5-10 Gehminuten eine Vielzahl von Restaurants und Cafés.
Einen erholsamen Spaziergang können Sie in einer der gepflegten Grün- und Parkanlagen vor Ort und der näheren Umgebung unternehmen. Der weitläufige SINAI-Park z.B. ist in wenigen Minuten erreichbar und bietet Ihnen zahlreiche Freizeitmöglichkeiten wie Spaziergänge, Joggen und Radfahren.
Bildungseinrichtungen, Kindergärten und Schulen, wie z.B. die Waldorfschule, sind in ca. 5 Gehminuten schnell und sicher zu erreichen.
Frisöre, Ärzte und Apotheken, Physiotherapeuten, Buchhandlungen, eine Poststelle und vieles mehr, wird Sie ebenso direkt vor Ort begeistern können.
Der nächste Bahnhof befindet sich in unmittelbarer Nähe und ist in ca. 10 Gehminuten gut zu erreichen. Von hier aus können Sie bequem die S6 oder die U (1,2,3,8) nehmen.
Sonstige Angaben
Alle Informationen beruhen auf den Angaben des Eigentümers. Für die Richtigkeit und Vollständigkeit wird keine Haftung übernommen.
Änderungen bleiben vorbehalten.
Solten mehrere Kaufinteressenten vorhanden sein, so behält sich der Verkäufer das Recht vor ins Bieterverfahren zu wechseln.
Hinweis zum Geldwäschegesetz, nach § 2 Abs. 1 Nr. 10 GwG sind wir verpflichtet, Kaufinteressenten zu identifizieren. Hierzu müssen wir von jedem Interessenten die pers. Daten (BPA) aufnehmen.
Hinweis zum gesetzlichen Widerrufsrecht bei Fernabsatzverträgen:
Nach den EU-Verbraucherschutzrichtlinien sind Makler seit dem 13.06.2014 dazu verpflichtet, den Kunden über sein Widerrufsrecht zu informieren.
Ein Fernabsatzvertrag ist schon zustande gekommen, wenn Sie uns telefonisch, per Fax oder per Mail kontaktieren.
Wir bitten daher um Ihr Verständnis, wenn wir Ihnen vor Vereinbarung eines Besichtigungstermins oder Überlassung von Unterlagen erst die detaillierten Informationen zu Ihrem Widerrufsrecht zukommen lassen müssen.
Erst danach können wir im vollen Umfang für Sie tätig werden.
Mit Ihrer Kontaktaufnahme willigen Sie bis auf Widerruf ein, dass wir Ihre Daten speichern dürfen und uns sowohl telefonisch als auch via SSL / TLS verschlüsseltem E-Mailverkehr mit Ihnen in Verbindung setzen dürfen.
Unser Service für Sie:
- Wir unterstützen Sie bei der
Organisation Ihres Umzuges.
- Wir übernehmen gerne den Verkauf
oder die Vermietung Ihrer
Altimmobilie und sorgen so für
einen reibungslosen Übergang.
- Wertermittlung Ihrer Immobilie über
einen Gutachter
- Geprüfter Energieausweis - Experte
- Finanzierungsservice mit Top-
Konditionen
- Aktuell ca. 300 Finanzierungspartner.
- Weitere Objekte finden Sie unter
www.proficoncept-gmbh.de
Übrigens:
Sie wissen wer eine Immobilie oder ein Grundstück verkaufen oder vermieten möchte?
Wir honorieren jede erfolgreiche Vermittlung !!!
Weitere Dokumente
Geldwäschegesetz KundeninfoGrundriss
UG Grundriss
>
>
EG Grundriss
>
>
OG Grundriss
>
>
DG Grundriss
>
>
Adresse
Ziegenhainerstr. 207, 60433 Frankfurt am Main
Interessante Orte
Preis- und Lageinformationen
Preistrend für Bestandsimmobilien in Eschersheim